Erfahrung/Meinung zum Thema "offener Wohn/Essbereich"

Diskutiere Erfahrung/Meinung zum Thema "offener Wohn/Essbereich" im Architektur Allgemein Forum im Bereich Architektur; Hallo, vorab: Das Thema ist zweifelsohne eine sehr subjektive Sache, ich möchte trotzdem gerne nach euren Erfahrungen und Meinungen fragen! :)...

  1. querty

    querty

    Dabei seit:
    10.01.2016
    Beiträge:
    41
    Zustimmungen:
    0
    Beruf:
    Softwareentwickler
    Ort:
    Burgenland
    Hallo,

    vorab: Das Thema ist zweifelsohne eine sehr subjektive Sache, ich möchte trotzdem gerne nach euren Erfahrungen und Meinungen fragen! :)

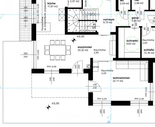
    In unserem derzeitigen Entwurf sind Küche und Essbereich relativ stark getrennt im Vergleich zu vielen "aktuellen" Entwürfen, wo Esszimmer und Wohnzimmer 1 großer Raum sind.
    Das war von uns bewusst so gewünscht, da wir denken dass sich dadurch der Vorteil ergibt, dass man im Essbereich und Wohnbereich unterschiedliche Tätigkeiten durchführen kann, ohne sich gegenseitig zu stören.
    z.B.
    - Frau sitzt mit Freundinnen am Esstisch und unterhalten sich, Männerrunde kann gleichzeitig im Wohnzimmer fernsehen (oder umgekehrt)
    - Kind 1 macht am Esstisch Hausaufgabe, Kind 2 ist bereits fertig und kann im Wohnzimmer spielen.


    Vorteile von mehr Offenheit, also 1 großer Raum wäre aber:
    - wirkt größer und großzügiger, weil ein einzelner, großer Raum (wobei in unserem Entwurf aber auch der Essbereich recht groß ist)
    - mehr Offenheit also man kann vom Essplatz direkt bis ins Wohnzimmer sehen
    - Spielbereich im Wohnzimmer des Kindes von Eltern aus (die mit Freunden am Esstisch sitzen) einsehbar

    Derzeit bin ich mir einfach völlig unsicher, was ich bzw. wir hier nun wirklich final möchten.
    In der dzt. Wohnung ist es so, dass Küche durch einen Gang vom Ess/Wohnbereich getrennt sind => das möchten wir sicher nicht, weil dabei die Person in der Küche keinen Kontakt zu den anderen Personen im Esszimmer/Wohnzimmer hat

    Grundsätzlich finde ich einen offenen Wohn+Essbereich nett und kenne ich von den Häusern von Freunden.
    Das man in den 2 Räumen Tätigkeiten durchführen kann, ohne sich gegenseitig zu "stören" finde ich aber schon auch gut.

    Was wären für euch wichtig Argumente für/gegen eine bestimmte Variante?
    Wie sind eure Pläne und was war die Entscheidung für/gegen einen offen Wohn- Essbereich?

    Danke für eure Antworten!
     

    Anhänge:

  2. lego86

    lego86

    Dabei seit:
    09.03.2016
    Beiträge:
    118
    Zustimmungen:
    1
    Beruf:
    Informatiker
    Ort:
    Emden
    Ich finde die Idee gut, dass man es etwas abgrenzt aber trotzdem "irgendwie" zusamen lässt. Allerdings benötigt man so natürlich wesentlich mehr Platz als wenn man es in "einem Raum" unterbingt. man könnte mit Sicherheit 10-12 qm sparen und das sind dann auch mal schnell 10.000-20.000€ Euro.

    Wir haben Wohn-undEssbereich zusammen aber einen Tunnelkamin als Raumtrenner. Küche hat bei uns 17qm und Wohn - Esszimmer 33qm und wir haben von der Küche zum Wohn-Esszimmer eine 1,60m breite Schiebetür.
     
  3. #3 mayer9810, 21.04.2016
    mayer9810

    mayer9810

    Dabei seit:
    15.02.2016
    Beiträge:
    9
    Zustimmungen:
    0
    Beruf:
    Angestellter
    Ort:
    Pottenstein
    Hallo,

    mit gefällt deine Idee auch ganz gut. Ist da eine Schiebetür als Raumtrenner eingeplant?
    Wir haben alles in einem auf ca. 50 qm in L-Form verteilt. Als Raumtrenner fungiert eine halb-hohe Abmauerung die Essbereich von Wohnzimmer trennt. Zwischen Essen und Küche ist alles offen. In unsere alten Wohnung war alles offen. Was nicht als störend empfunden wurde. Lästig ist immer noch wenn die Küche nicht aufgeräumt ist. :-)
     
  4. #4 jodler2014, 21.04.2016
    jodler2014

    jodler2014

    Dabei seit:
    20.12.2014
    Beiträge:
    3.907
    Zustimmungen:
    542
    Beruf:
    Angestellter
    Ort:
    RP
    [Off-Topic entfernt]

    Der Wohn und Essbereich hat für meinen Geschmack eine doppelte Trennung.
    Und zwar die Wand mit Vorsprung im Bereich des Kamin und die Schiebetür .

    Die Schiebetür zum WoZi würde ich streichen,weil die Sichtachse in den Garten ( ? ) unterbrochen wird.
     
  5. #5 Basti2709, 22.04.2016
    Basti2709

    Basti2709

    Dabei seit:
    06.08.2015
    Beiträge:
    50
    Zustimmungen:
    2
    Beruf:
    Angestellter
    Ort:
    Brandenburg
    Ansicht finde ich die Idee des Grundrisses ganz gut...ich hätte nur Angst, dass das Esszimmer (der größte Raum bei euch) nur zu wenigen Teilen auch wirklich genutzt wird. Bei uns spielt sich das Leben hauptsächlich in der Küche bzw. dem Wohnzimmer ab. Im Essbereich wird dann auch wirklich nur gegessen - Hausaufgaben werden zum Großteil im Hort erledigt. Es wird dann zum Durchgangszimmer...muss aber bei euch nicht sein.

    Auch würde ich mir die Einteilung des Wohnzimmers noch einmal überlegen. Aufgrund der zahlreichen Fenster hätte ich Probleme dort eine etwas größere Couch und einen Fernsehen einzurichten. Dieser könnte wohl nur an der Wand zwischen den beiden Fenstern angebracht werden...? Generell ist es im Wohn- Essbereich schwierig ein Sideboard/Kommode/Wohnwand zu stellen...?
     
  6. querty

    querty

    Dabei seit:
    10.01.2016
    Beiträge:
    41
    Zustimmungen:
    0
    Beruf:
    Softwareentwickler
    Ort:
    Burgenland
    Danke für eure Zahlreichen Antworten und Vorschläge!

    Stimmt, das ist uns auch aufgefallen, dass es einen relativ großen Bereich "vor" dem Esstisch gibt.
    Dieser ist einerseits ein Durchgangsbereich aber ergibt sich auch durch die restliche Aufteilung des Grundrisses.
    Gefallen tut es mir gut - man hat hier eine schöne "Sichtachse" vom Eingang durch diesen Breich bis ins Wohnzimmer zu den großen Fenstern und einfach Platz.
    Ich könnte mir auch vorstellen, den Esstisch weiter nach rechts zu rücken, dann entsteht auf der Westseite ein "Spielbereich" der gut einsehbar ist direkt von der Küche.


    Das hätten wir auch angedacht!
    Genau statt der Mauer, hinter welcher derzeit der Ofen eingezeichnet ist einen Tunnelkamin zu machen.
    Diese könnte man dann vom Esszimmer und Wohnzimmer gut sehen und man hätte auch etwas "Durchsicht" vom Esszimmer ins Wohnzimmer.
    Die eigentliche Trennung bleibt aber natürlich bestehen.
    Etwas Platz und somit Geld einsparen ist aber natürlich auch immer hilfreich, mal schaun ob man da noch was machen kann...


    Ja, vor dem Eingang ins Wohnzimmer ist eine Schiebetür geplant, ist auch am Plan so skizziert.

    Ich könnte mir wie gesagt auch gut vorstellen, dass es noch "offener" als derzeit ist - derzeit diskutieren wir noch über dieses Thema.
    Unsere Wohnung ist derzeit damit nicht vergleichbar, das ist Küche völlig abgetrennt und Ess-Wohnzimmer in einem Raum, der jedoch so groß wie das Wohnzimmer im oberen Plan ist.

    Stimmt, die "doppelte" Trennung ergibt sich halt so, dass die Schiebetür ja eine gegenüberliegende Wand braucht.
    Die Sichtachse finden wird auch sehr schön und die Schiebetür wäre wohl meiste Zeit offen, nur WENN jemand im Wohnzimmer sitzt und Ruhe haben möchte, könnte er diese bei Bedarf schließen, das zumindest der Plan. ;)

    Wir kennen es von unseren Freunden schon so, dass wir am Esstisch zusammensitzen, wenn wir z.B. Brettspiele spielen oder die Männer eine Pokerrunde.
    Aber stimmt schon, manchmal ist es auch so, dass ein paar Leute am Esstisch sitzen, während die Kinder im Wohnzimmer von jemand "bespielt werden müssen". ;)
    Da ist es dann nett, wenn man zu dieser Person trotzdem Sichtkontakt hat und sich mit ihr unterhalten kann - das würde klar für eine mehr offene Gestaltung sprechen aus meiner Sicht.

    Die Fenster im Wohnzimmer sind noch nicht fix.
    Das ist aber halt die Südseite und nach Osten hat man eine schöne Aussicht und nach Westen kann man direkt auf die überbaute Terasse gelangen - daher die vielen Fenster. ;)
    Werden aber ev. noch reduziert...vermutlich dann wenn wir das 1. Angebot eingeholt haben.

    Danke für eure Unterstüztung!
     
  7. querty

    querty

    Dabei seit:
    10.01.2016
    Beiträge:
    41
    Zustimmungen:
    0
    Beruf:
    Softwareentwickler
    Ort:
    Burgenland
    Anbei noch 3 Ansichten in 3D ergänzt.
    - Mehr "offenen Gestaltung", also ohne der Wand vor dem Ofen und Schiebetür
    - Durchsicht (sollte dann ein Kamin sein, ist dzt. mit Holz skizziert)
    - wie am plan, also komplett durch eine Wand geschlossen

    3DSicht_offen.jpg

    3DSicht_KaminAbtrennung.jpg

    3DSicht_abgetrennt.jpg

    Bei der "offenen Ansicht" gefällt mir, dass man auch vom Esstisch bis zum Wohnzimmerfenster sehen kann.
    Das wirkt sicher großzügig, kostet aber nicht mehr als die anderen Variaten. ;)

    Bei der "geschlossenen Ansicht" hat man wie geschrieben der Vorteil, dass man bei Bedarf die Schiebetür schließen kann.
     
  8. querty

    querty

    Dabei seit:
    10.01.2016
    Beiträge:
    41
    Zustimmungen:
    0
    Beruf:
    Softwareentwickler
    Ort:
    Burgenland
    ...noch ein wenig überarbeitet, die Ansichten der offenen vs. geschlossenen Variante

    Wohnraum_offen.jpg

    Wohnraum_geschlossen.jpg
     
  9. #9 dieentebertram, 25.04.2016
    dieentebertram

    dieentebertram

    Dabei seit:
    11.06.2015
    Beiträge:
    26
    Zustimmungen:
    0
    Beruf:
    Elektroniker
    Ort:
    Braunschweig
    Bei der Variante offen hat man die Möglichkeit den Esstisch bei großer Gesellschaft auch viel länger zu machen ohne das man mit dem stück Mauer kollidiert.
     
  10. Nana55

    Nana55

    Dabei seit:
    13.09.2013
    Beiträge:
    452
    Zustimmungen:
    0
    Beruf:
    Angestellte
    Ort:
    Niederbayern (südlicher Lkr. Passau)
    Benutzertitelzusatz:
    Arroganz= Kunst, auf eigene Dummheit stolz zu sein
    "Offen" wirkt besser. Ob's praktischer ist, hängt von den persönlichen Lebensumständen / Vorlieben zusammen...
     
  11. querty

    querty

    Dabei seit:
    10.01.2016
    Beiträge:
    41
    Zustimmungen:
    0
    Beruf:
    Softwareentwickler
    Ort:
    Burgenland
    Danke für eure Vorschläge!

    Derzeit überlegen wir auch noch eine 3. Variante. :)
    Diese wäre: Statt der Wand im Esszimmer eine Glaswand vorsehen, welche an eine im Raum stehenden Säule anstößt.
    Die Schiebetür vom Wohnzimmer kann dann ebenfalls an diese Säule anstoßen.

    Sozusagen ein Kompromiss, mit der Möglichkeit, das Wohnzimmer abzutrennen (aus Sicht von Geräuschen beim z.B. Fernsehen), aber trotzdem durch die Glaswand Sichtkontakt zu haben.

    Klar bleibt dann der "Nachteil", dass das Esszimmer von der Größe her begrenzt wird - durch die Säule.
    Da das Esszimmer jedoch ohnehin sehr groß ist, empfinde ich das nicht als groben Nachteil.
    (Länge von der Wand bis zur Säule wäre 5,40m.

    TrennungMitSäule.jpg
     
  12. Tussie

    Tussie

    Dabei seit:
    28.04.2016
    Beiträge:
    11
    Zustimmungen:
    0
    Beruf:
    Bau
    Ort:
    Wurmlingen
    Ich finde die Idee super. kann ich mir voll und ganz vorstellen, würde ich ähnlich planen.
     
  13. querty

    querty

    Dabei seit:
    10.01.2016
    Beiträge:
    41
    Zustimmungen:
    0
    Beruf:
    Softwareentwickler
    Ort:
    Burgenland
    Danke für die Rückmeldung!
    Derzeit stehen nur noch die Variante "komplett offen" oder die Abtrennung mit Glaswand zur Diskussion.
     
  14. dive26

    dive26

    Dabei seit:
    11.07.2016
    Beiträge:
    21
    Zustimmungen:
    0
    Beruf:
    Selbständig EDV
    Ort:
    Wiener Neustadt
    Benutzertitelzusatz:
    Blog: whitecube.bonit.at
    Hallo querty,

    wir haben ebenfalls einen offenen Küche-Esszimmer-Wohnbereich (120 m2). Das ist super groß und uns gefällt das so. Einziger Nachteil sind die Kochegerüche. Frittieren in der Küche ist ein Nogo - da riecht der ganze Wohnbereich 1-2 Tage danach. Da kann die Dunstabzugshaube noch so gut sein - die Küchendämpfe und die Micro-Fetttröpfchen legen sich überall hin.

    Da wir aber keine Kinder haben, ist ein einziger großer Raum kein Thema. Bei Familien mit Kindern ist es sicher praktischer wenn man Räume teilen kann und so jeder seinen eigenen ungestörten Bereich hat.

    So wie auf Eurem Plan oben würde ich die Schiebetür im Wohnzimmer lassen. Wenn diese aus Glas ist, dann sieht das sicher sehr luftig aus. Bei Bedarf schließt man diese einfach. Ebenso die Schiebetür zum Vorraum.

    LG Roland
     
  15. #15 historyguy, 20.09.2016
    historyguy

    historyguy

    Dabei seit:
    20.09.2016
    Beiträge:
    8
    Zustimmungen:
    0
    Beruf:
    Angestellter
    Ort:
    Siegburg
    Also für mich geht eine offene Küche, auch wenn es schöner aussieht garnicht ... ausser für reiche Püngel die eh NIE in Ihrer Luxusküche kochen ! :-D

    Wie mein Vorredner schon sagte, das Küchenfett legt sich auf ALLE Möbel und es riecht !

    offener Wohn Essbereich ist da schon eher drin, wenn du das allerdings aus praktischen gründen trennen willst dann mach das, den Essbereich würde ich kleiner machen als den Wohnbereich. Nutze man ja nur zum Essen und wenn besuch für Kaffee und Kuchen da ist :-P
     
  16. #16 Tiefbaufotograf, 20.09.2016
    Tiefbaufotograf

    Tiefbaufotograf

    Dabei seit:
    02.09.2016
    Beiträge:
    333
    Zustimmungen:
    14
    Beruf:
    Tiefbauunternehmer
    Ort:
    Dortmund
    Die Räume sind zu klein um sie zu trennen (wenn das Euer Grundriss ist), drum würde ich nicht darüber nachdenken.
     
  17. lego86

    lego86

    Dabei seit:
    09.03.2016
    Beiträge:
    118
    Zustimmungen:
    1
    Beruf:
    Informatiker
    Ort:
    Emden
    also meine tropfen fett von der Bratpfanne sind bis jetzt nicht ins wohnzimmer gehüpft. ich habe auch auf meinem Küchentisch keinen Fettschleier (noch nie gahabt) und der steht ja in der Küche.

    Wir haben eine ordentlich Abzugshaube, aber selbst auf voller stufe nervt die nicht beim TV gucken.
     
  18. #18 Cglan05, 21.09.2016
    Cglan05

    Cglan05

    Dabei seit:
    16.10.2013
    Beiträge:
    213
    Zustimmungen:
    0
    Beruf:
    Techniker
    Ort:
    Niedersachsen
    Wir haben eine (Milch)Glaswand zwischen Wohn und Essbereich. wir sind damit sehr gut zufrieden. Trotz kleiner Kinder nicht so schmutzempfindlich wie befürchtet. Die Räume wirken groß und Lichtdurchflutet. Und wenn sie uns nicht mehr zusagt ist sie einfacher zu entfernen wie eine Mauer...
    Unser Raum ist ein L, wobei der kürzere Schenkel die Küche ist. Die Glaswand ist also ca 5m Lang, mit gr0ßer Schiebetür drin. Kostenpunkt inkl. Montage 3000€
     
  19. #19 historyguy, 21.09.2016
    historyguy

    historyguy

    Dabei seit:
    20.09.2016
    Beiträge:
    8
    Zustimmungen:
    0
    Beruf:
    Angestellter
    Ort:
    Siegburg
    was kochst du denn so ? :-D
     
  20. lego86

    lego86

    Dabei seit:
    09.03.2016
    Beiträge:
    118
    Zustimmungen:
    1
    Beruf:
    Informatiker
    Ort:
    Emden
    Von dem Schnitzel oder der Wurst in der Pfanne bis zur selbstgemachten Hühner oder Rindfleischsuppe ist alles dabei.
     
Thema: Erfahrung/Meinung zum Thema "offener Wohn/Essbereich"
Besucher kamen mit folgenden Suchen
  1. offener wohn ess berech

    ,
  2. offener wohn essbereich erfahrung

    ,
  3. erfahrungen offener wohnbereich

    ,
  4. offene küche erfahrungen,
  5. grundriss haus Küche Essbereich,
  6. grundriss getrenntes wohnzimmer,
  7. aufmass Malerarbeiten offener wohn und essbereich,
  8. wohn esszimmer grundriss,
  9. 40 qm wohn ess bereich,
  10. Wand zwischen Esszimmer und Wohnzimmer halb enfernt,
  11. wohn essbereich 40 qm,
  12. wohn und essbereich halb getrennt,
  13. offener oder geschlossener wohn und essbereich
Die Seite wird geladen...

Erfahrung/Meinung zum Thema "offener Wohn/Essbereich" - Ähnliche Themen

  1. Erfahrungen / Meinungen zur xxxx Fertiggarage

    Erfahrungen / Meinungen zur xxxx Fertiggarage: Hallo! Ich habe Interesse an der unten beschriebenen xxxx Fertiggarage. Gibt es schon Erfahrungen? Holzrahmen Bauweise 6x6m Sektionaltor xxxx...
  2. Begrüntes Garagendach - Erfahrungen, Meinungen

    Begrüntes Garagendach - Erfahrungen, Meinungen: Hallo, Wir sind in der Entwurfsphase und unsere Architektin kam mit dem Vorschlag, das Garagendach zu begrünen. Wir haben den Vorschlag...
  3. Carport/Garagenbau, eure Meinung und Erfahrung ist gefragt

    Carport/Garagenbau, eure Meinung und Erfahrung ist gefragt: Hallo Zusammen, seit Tagen zermattere ich mir den Kopf über das künftige Stellpätzchen für unsere PKW´s. Planung bis jetzt. Geräteraum in EL wo...
  4. brauche Meinungen/Erfahrungen Altbauvorhaben

    brauche Meinungen/Erfahrungen Altbauvorhaben: Hallo zusammen, okay, möchte Euch mal mit meinem Altbauvorhaben konfrontieren und erhoffe mir Kritik, Anregungen oder Verbesserungsvorschläge:...