15cm Vorwandelement mit Unterputz-WC-Spülkasten?

Diskutiere 15cm Vorwandelement mit Unterputz-WC-Spülkasten? im Sanitär Forum im Bereich Haustechnik; Hallo zusammen, ist es möglich einen WC-Unterputzspülkasten in ein Vorwandelement inkl. Fliese mit nur 15cm Tiefe zu verbauen? Von Villeroy &...

  1. Tanith

    Tanith

    Dabei seit:
    24.03.2024
    Beiträge:
    9
    Zustimmungen:
    0
    Hallo zusammen,

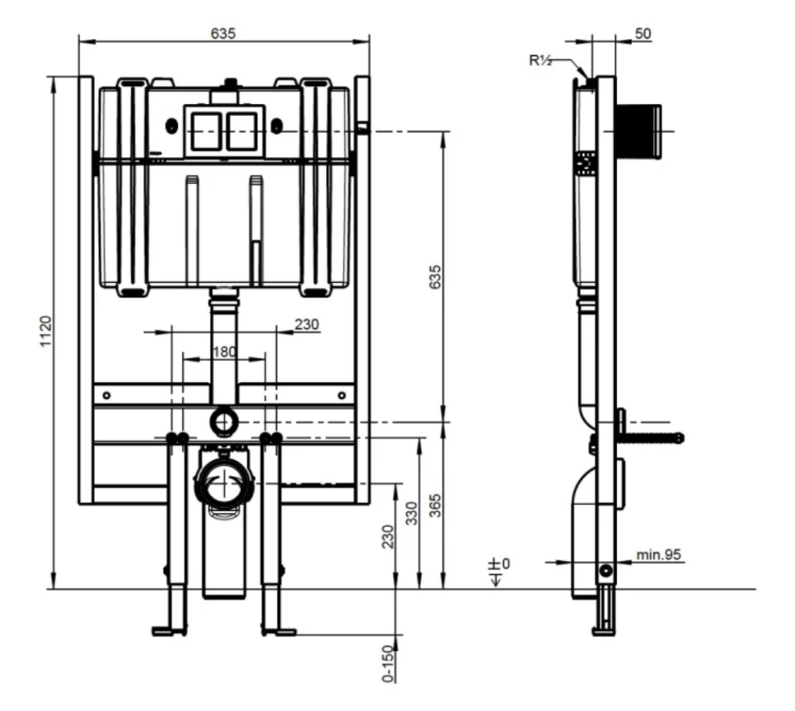
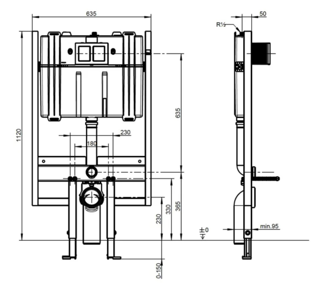
    ist es möglich einen WC-Unterputzspülkasten in ein Vorwandelement inkl. Fliese mit nur 15cm Tiefe zu verbauen?

    Von Villeroy & Boch scheint es einen besonders schmalen Spülkasten zu geben. (siehe Anhang)

    Aber das Abflussrohr scheint das Nadelöhr zu sein? Gibt es hier eine Lösung? Wir sind im Fußboden (Erdgeschoss ohne Keller) noch komplett flexibel in der Tiefe. Könnte hier ein Versprungbogen / Umlenkbogen bzw. Ablaufverbindung / Anschlussstutzen für den Abfluss der Toilette von DN 90 auf DN 100 helfen?
     

    Anhänge:

  2. #2 VollNormal, 29.03.2024
    VollNormal

    VollNormal

    Dabei seit:
    20.11.2021
    Beiträge:
    4.227
    Zustimmungen:
    2.858
    Beruf:
    Bauingenieur
    Ort:
    Bochum
    Das Modell, das du dir rausgesucht hast, scheint doch zu passen: 95 mm plus 2fach beplankt plus Fliesen macht 13 cm. Dann kannst du mit dem Ablauf noch 2 cm von der Wand wegbleiben.
     
  3. Tanith

    Tanith

    Dabei seit:
    24.03.2024
    Beiträge:
    9
    Zustimmungen:
    0
    Ja, danke dir. Meine Befürchtung ist, dass der Bogen von DN90 auf DN100 mit Schelle ggf. doch zu knapp sein könnte. Bei DN100 wäre noch 1 cm Platz. Keine Ahnung wie dick die Schelle noch aufträgt. Aber es ist vermutlich stark gequetscht, oder?
     
  4. #4 simon84, 29.03.2024
    simon84

    simon84
    Moderator

    Dabei seit:
    11.11.2012
    Beiträge:
    23.325
    Zustimmungen:
    6.939
    Beruf:
    Schrauber
    Ort:
    Muenchen
    Das geht sich aus bzw. Kann auf verschiedenste Arten und Weisen passend gemacht werden
     
    Tanith gefällt das.
  5. Tanith

    Tanith

    Dabei seit:
    24.03.2024
    Beiträge:
    9
    Zustimmungen:
    0
    Das klingt erstmal beruhigend. Also sollte es passen. Jetzt muss ich nur noch meinen Bauleiter überzeugen. Er scheint nicht glauben zu wollen, dass es WC-Vorwandelemente gibt, die so wenig auftragen, da das Abflussrohr im Element so platziert werden kann, dass am Ende nur ca. 15 cm statt der üblichen ca. 20cm benötigt werden.
     
Thema:

15cm Vorwandelement mit Unterputz-WC-Spülkasten?

Die Seite wird geladen...

15cm Vorwandelement mit Unterputz-WC-Spülkasten? - Ähnliche Themen

  1. Sturz bei 40cm Verteilerkasten Tiefe 15cm notwendig?

    Sturz bei 40cm Verteilerkasten Tiefe 15cm notwendig?: Hallo! Wir wollen in einer 30 cm NF-Ziegelwand im ganz oberen Bereich (ca. 20 cm von Decke entfernt) einen Verteilerkasten in die Wand...
  2. 15cm Loch im Boden EG füllen

    15cm Loch im Boden EG füllen: Hey zusammen, wir nehmen aktuell eine Wand zwischen Wohnzimmer und Küche bei uns raus. In der Wand war bisher eine Schiebetür ( 2 dünne Ytong...
  3. Rohbetondecke um 15cm erhöhen + 12cm weiterer Aufbau

    Rohbetondecke um 15cm erhöhen + 12cm weiterer Aufbau: Guten Tag allerseits, wir haben eine Stufe von etwa 15cm im Haus, die einen Ess- von einem Wohnbereich trennt. Nach dem lange der Gedanke war,...
  4. Fußbodenaufbau bei Holzständerbauweise - maximaler Schallschutz in 15cm?

    Fußbodenaufbau bei Holzständerbauweise - maximaler Schallschutz in 15cm?: Hallo zusammen, ein Thema das wir in der Planung leider etwas vernachlässigt haben ist der Fußbodenaufbau. Vorgegeben sind im EG 16cm, im UG und...
  5. Wand entfernen; 5,5m Spannweite; 15cm Stahlbetondecke

    Wand entfernen; 5,5m Spannweite; 15cm Stahlbetondecke: Hallo, Ich möchte eine Wand entfernen. Nun habe ich die Dokumente der Stadt erhalten und zu meinem erleichtern in der Aufführung den Punkt...