Abstandflächen bei Abrücken von Grenze? (DHH Bayern)

Diskutiere Abstandflächen bei Abrücken von Grenze? (DHH Bayern) im Baugesuch, Baugenehmigung Forum im Bereich Rund um den Bau; Hallo zusammen, ich habe bisher immer fleißig mitgelesen hier im Forum und bin begeistert vom Wissen, das hier geteilt wird. Nun habe ich selbst...

  1. #1 SebiBau, 07.09.2022
    Zuletzt bearbeitet: 07.09.2022
    SebiBau

    SebiBau

    Dabei seit:
    07.09.2022
    Beiträge:
    4
    Zustimmungen:
    0
    Hallo zusammen,

    ich habe bisher immer fleißig mitgelesen hier im Forum und bin begeistert vom Wissen, das hier geteilt wird.
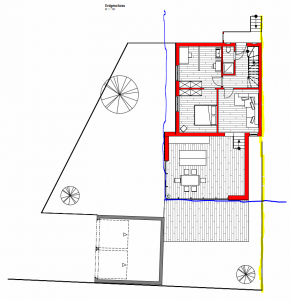
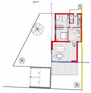
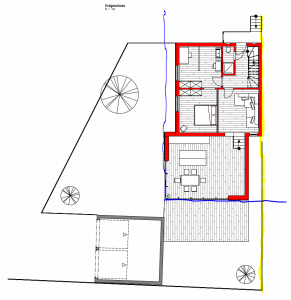
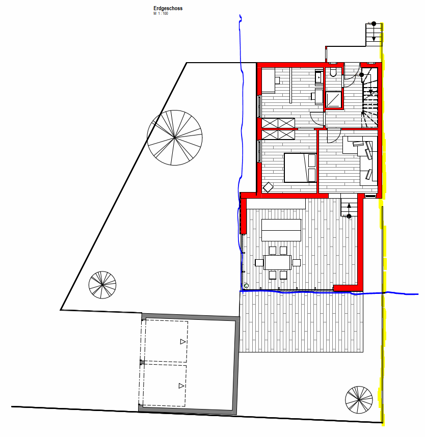
    Nun habe ich selbst eine Idee im Kopf und bräuchte einen ersten Rat, bevor ich tatsächlich zu Architekt und Gemeinde gehe. Es soll eine Wohnflächenerweiterung im Süden mit einem Anbau stattfinden. Eine erste Skizze (keine Planung!) habe ich mit angehängt.

    Grundlegende Infos:
    - Betands-DHH, Plan-Osten ist das spiegelverkehrt gleiche Haus gebaut (BJ 1955)
    - geplanter Anbau im Süden (in der Skizze der Raum mit dem Esstisch) bis zur Baugrenze (in Skizze Blau)
    - Grenzverlauf ziemlich genau Nord-Süd (in Skizze gelb gezeichnet, Gelb-markierte Wand ist die Kommunwand)
    - Standort Bayern, Gemeinde unter 250k Einwohner
    - B-Plan vorhanden: Wandhöhe, Dachform, GRZ, etc. wird eingehalten

    Aber:
    Gerne würde ich das Zimmer im Bestand plan rechtsunten (im Grundriss mit Couch) mit einem Fenster für Tageslicht und zum Lüften versehen. Damit müsste der Anbau von der Grenze etwas versetzt gebaut werden.

    Nun die Frage:
    Wenn ich den Anbau nun nicht direkt auf der Grenze baue (was erlaubt wäre, da unter 15m Gesamtlänge und als DHH gebaut), sondern einen Abstand lasse, muss dann automatisch mit den üblichen Abstandsflächen (0,4H, min. 3m) gerechnet und genehmigt werden? Das würde in unserem Falle vermutlich eine Abstandsflächenübernahme bedeuten.

    Viele Grüße aus Augsburg,
    Sebi


    Skizze.PNG
    Skizze 2.PNG

    Edit für ein besseres Verständnis.
     

    Anhänge:

  2. #2 Fred Astair, 07.09.2022
    Fred Astair

    Fred Astair

    Dabei seit:
    02.07.2016
    Beiträge:
    12.683
    Zustimmungen:
    6.555
    Beruf:
    Tänzer
    Ort:
    San Bernardino
    Dann hast Du keine Doppelhaushälfte sondern ein freistehendes EFH und musst alle Abstandsflächen einhalten. Ich bezweifle aber, dass das so genehmigt wird und Du auch keinen Architekten finden wirst, der seinen Ruf mit einer solchen Eingabeplanung ruinieren möchte.
    Du hast nämlich noch kein
     
  3. #3 SebiBau, 07.09.2022
    SebiBau

    SebiBau

    Dabei seit:
    07.09.2022
    Beiträge:
    4
    Zustimmungen:
    0
    Es ist ganz klar eine DHH. Untergeordneten Anbauten sind im Baufenster möglich und laut B-Plan möglich.
    Es wird doch nicht zum freistehenden EFH, nur weil ich anbaue, oder? Die Kommunwand im Osten bleibt ja auch weiterhin bestehen.

    Viele Grüße
    Sebi
     
  4. #4 Fred Astair, 07.09.2022
    Fred Astair

    Fred Astair

    Dabei seit:
    02.07.2016
    Beiträge:
    12.683
    Zustimmungen:
    6.555
    Beruf:
    Tänzer
    Ort:
    San Bernardino
    Ah sorry, dann hatte ich das falsch verstanden.
    Die Abstandsflächenexperten werden sich sicher noch melden.
     
  5. Dimeto

    Dimeto

    Dabei seit:
    22.07.2017
    Beiträge:
    1.635
    Zustimmungen:
    2.145
    Beruf:
    Vermessungsingenieur
    Ort:
    NRW
    Das habe ich nicht verstanden. Wer erlaubt das? Wer sagt, dass es erlaubt wäre? Was hat das mit den 15m zu tun und wo kommt dieses Maß her? Warum sollte die Bauweise als DHH einen Grenzabstand - also genau das Gegenteil - erlauben?
    Ja, vorbehaltlich anders lautender BPlan-Festsetzungen oder eventuell bestehender Ortssatzungen.
    Zur Vermeidung von weiteren Missverständnissen oder falschen oder irreführenden Ratschlägen hilft die Kenntnisgabe des vollständigen BPlanes.
     
    simon84 gefällt das.
Thema:

Abstandflächen bei Abrücken von Grenze? (DHH Bayern)

Die Seite wird geladen...

Abstandflächen bei Abrücken von Grenze? (DHH Bayern) - Ähnliche Themen

  1. Verständnisfrage Bebauungsplan Abstandflächen

    Verständnisfrage Bebauungsplan Abstandflächen: Hallo, in unserem Bebauungsplan steht folgendes (siehe Anhang). Nun ist es so, daß im Bebauungsplan Baulinien und Baugrenzen eingezeichnet sind...
  2. Abstandflächen bei Walmdach

    Abstandflächen bei Walmdach: Hallo, ich habe die Bayerische Bauordnung gelesen und die Beschreibung zur Berechnung der benötigten Abstandsflächen für einfache Varianten wie...
  3. Grenzbebauung und Abstandfläche/Fensteröffnung

    Grenzbebauung und Abstandfläche/Fensteröffnung: Liebe Forum-Mitglieder, ich habe momentan eine schwierige Frage, hoffe sehr dass ihr mir helfen könnt... Und zwar: Das Nachbargebäude steht...
  4. Bau einer maximal 1,40 m hohen Terrasse auf abfallendem Gelände, Abstandflächenv. NRW

    Bau einer maximal 1,40 m hohen Terrasse auf abfallendem Gelände, Abstandflächenv. NRW: Hallo, mein erster Eintrag, hoffentlich an der richtigen Stelle. Ich plane momentan ein eingeschossiges Einfamilienhaus, das 8 m breit und 11 m...
  5. Abstandflaeche

    Abstandflaeche: Hallo. Frage: Hiermit ist gesamte Wandfläche des Gebäude gemeint, oder nur die zum Nachbar? ...Abstandsflächen nicht erforderlich bei...