Abwasserrohr in Küche umverlegen trotz bereits gegossener Bodenplatte?

Diskutiere Abwasserrohr in Küche umverlegen trotz bereits gegossener Bodenplatte? im Sanitär Forum im Bereich Haustechnik; Liebes Forum, ich wäre sehr für Eure Hilfe und Einschätzung dankbar. Wir bauen ein EFH und letzte Woche hat der Rohbau begonnen. Die Bodenplatte...

  1. #1 FrankeInMuenchen, 30.04.2023
    FrankeInMuenchen

    FrankeInMuenchen

    Dabei seit:
    29.08.2020
    Beiträge:
    13
    Zustimmungen:
    1
    Liebes Forum,

    ich wäre sehr für Eure Hilfe und Einschätzung dankbar. Wir bauen ein EFH und letzte Woche hat der Rohbau begonnen. Die Bodenplatte (wie bauen ohne Keller) wurde letzte Woche gegossen und es wurde am Freitag auch schon mit den Mauerarbeiten begonnen. Die Abwasserrohre, die in die Bodenplatte gegossen wurden, wurden genau nach Ausführungsplan positioniert. Es liegt also kein Mangel vor. Allerdings wollen meine Frau und ich nun das Spülbecken der Küche doch noch in letzter Minute von der Kücheninsel in die dahinter liegende Küchenzeile verlegen. Dadurch könnten wir die Kücheninsel etwas verkleinern (ist uns irgendwie für unseren Grundriss zu groß geworden) und bekommen dennoch zusätzlich mehr Arbeitsfläche auf der Kücheninsel. Zudem könnte der Herd auf der Insel mittig angeordnet werden statt ganz außen. Ich weiß, das fällt uns sehr spät ein, aber lieber spät als nie.

    Jetzt zu meiner Frage: geht es technisch überhaupt noch, den Abwasseranschluss, der bereits in der Bodenplatte liegt und unter der Kücheninsel positioniert ist, so an die dahinterliegende Wand umzulegen, dass er für eine Spüle in der Küchenzeile genutzt werden kann? Oder könnte man alternativ ohne zu großen Aufwand einen zusätzlichen Abwasseranschluss an die Wand legen und beim nächsten Fallrohr anschließen (zum Beispiel im dahinter liegenden Technik-/HW-Raum)? Was würde man in diesem Fall mit dem überflüssigen Abwasseranschluss unter der Insel machen? Könnte man den ungenutzt (verschlossen) lassen? Oder fängt das dann das stinken an?

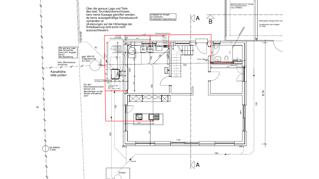
    Anbei sende ich Euch meinen Entwässerungsplan.

    Für Euer Feedback und Lösungsvorschläge danke ich Euch ganz herzlich im Voraus.

    Liebe Grüße
    Felix
     

    Anhänge:

  2. #2 JohnBirlo, 30.04.2023
    JohnBirlo

    JohnBirlo

    Dabei seit:
    28.05.2020
    Beiträge:
    1.228
    Zustimmungen:
    461
    Mal ganz davon abgesehen, dass der Grundriss der Küche irgendwie komisch ist, kannst du das Abwasserrohr einfach im Estrich verziehen. Ich gehe mal davon aus, ihr habt ca. 16cm Fußbodenaufbau?
     
  3. #3 Gast 85175, 30.04.2023
    Gast 85175

    Gast 85175 Gast

    Da ist ein Ablauf/Fallrohr direkt an der hinteren Küchenwand an der Ecke zur Aussenwand, da müsste man die Spüle problemlos angeschlossen bekommen. Ob man das Rohr in der Wand verziehen kann müsste man kucken, sonst sitzt es halt im HWR/Technik vor der Wand, fände ich auch noch akzeptabel.

    Wenn die nicht genutzte Stichleitung ordentlich verschlossen wird stinkt da auch nichts. Man könnte die aber trotzdem durch den Estrich bis unter die Insel führen, dann hast im Fall der Fälle wenigstens die Möglichkeit da mal durchzuspülen zu können.
     
  4. Yilmaz

    Yilmaz

    Dabei seit:
    28.03.2006
    Beiträge:
    7.260
    Zustimmungen:
    1.289
    Beruf:
    Maurer & Betonbaumeister
    Ort:
    Delbrück/Westfalen
    Benutzertitelzusatz:
    Maurer-und Betonbauermeister
    Ganze Erdgeschoss ist Verplant…
    Wie bereits geschrieben ist der Anschluss für Spüle auch auf der Bodenplatte verziehbar
     
    Gast 85175 gefällt das.
  5. #5 Gast 85175, 30.04.2023
    Gast 85175

    Gast 85175 Gast

    Jo, furchtbar, das ist so eine Unsitte geworden, zig Abläufe überalll… Und am Ende ist dann da doch noch ein Waschbecken im Technikraum, bei dem das Abwasserrohr durch den Zählerkasten gehen muss… Wie die Idioten…
     
  6. #6 Fred Astair, 30.04.2023
    Fred Astair

    Fred Astair

    Dabei seit:
    02.07.2016
    Beiträge:
    12.642
    Zustimmungen:
    6.511
    Beruf:
    Tänzer
    Ort:
    San Bernardino
    Wenns doch aber die Frau Bauherrin so will?
    Viel Spaß übrigens mit den ganzen Grundleitungen unter der Bodenplatte. Grundleitungen haben das Gebäude auf kürzestem Weg zu verlassen, um Revisionen und Reparaturen zu ermöglichen.
     
    seaway und Gast 85175 gefällt das.
  7. #7 Gast 85175, 30.04.2023
    Gast 85175

    Gast 85175 Gast

    Dann muss man das der werten Laiin sagen oder man hat halt selbst den Planungsfehler gemacht... Ich bin mir gerade nicht sicher, aber ich glaube das Ding dürfte da schon vom Spritzwasser her nicht sein... Ich sag's ja immer, Hauptsache Zapfstellen und Abläufe in den Grundriss reingewürfelt...
     
  8. mojo2

    mojo2

    Dabei seit:
    14.04.2021
    Beiträge:
    57
    Zustimmungen:
    22
    So besser? (Eure Leitungen wurden schon in Beton gegossen, aber das Forum dient ja auch der Nachwelt.)

    wasser.png
     
  9. #9 Gast 85175, 30.04.2023
    Gast 85175

    Gast 85175 Gast

    Du hast eins vergessen…
     
  10. mojo2

    mojo2

    Dabei seit:
    14.04.2021
    Beiträge:
    57
    Zustimmungen:
    22
    Mea culpa. So besser? wasser2.png
     
  11. #11 Gast 85175, 30.04.2023
    Gast 85175

    Gast 85175 Gast

    Und jetzt kannst noch überlegen ob es schlau ist das Regenwasser an den richtigen Stellen einzubinden, oder ob dir das Risiko zu groß ist. Da musst genauer kucken was du mit was verbindest und ob die da das Wasser dann nicht doch irgendwann mal zum WC raussprudelt. Ob du gerade den Kondensatauflauf von der WP gekillt hast seh ich nicht richtig, man weiß nicht so recht wie das alles gemeint ist...
     
  12. #12 driver55, 30.04.2023
    driver55

    driver55

    Dabei seit:
    22.02.2008
    Beiträge:
    6.840
    Zustimmungen:
    1.782
    Beruf:
    Dipl.-Ing.
    Ort:
    Pforzheim
    100 % Zustimmung.
    2/5 vom Platz belegt die Küche ohne Sitzmöglichkeit.
    Essen+Wohnen 3/5.
     
  13. #13 FrankeInMuenchen, 01.05.2023
    FrankeInMuenchen

    FrankeInMuenchen

    Dabei seit:
    29.08.2020
    Beiträge:
    13
    Zustimmungen:
    1
    Erst einmal vielen Dank für die Rückmeldung. Das ist wirklich toll, dass man hier so schnell Expertenmeinungen bekommt. Auch wenn das ein oder andere Feedback mit etwas mehr Empathie formuliert sein könnte .

    Zu den Entwässerungsleitungen: da sind wir tatsächlich Laien. Wenn das jetzt eher suboptimal gemacht wurde, ist das natürlich blöd. Aber wohl nicht mehr zu ändern. Aber zulässig ist das schon, oder? Sonst wäre das ja ein Mangel meines Bauträgers. Was macht man denn, wenn eine Abwasserleitung unter der Bodenplatte irgend wann einmal repariert werden muss? Kann man das i.d.R. mit einem Inliner reparieren? Oder muss man die Bodenplatte aufstemmen?

    Zum EG Grundriss: wie halten den ehrlich gesagt ganz und gar nicht für verplant. Unser Wohnen/Essen/Kochen hat insgesamt 50qm. Wir haben uns dabei bewusst für eine offene Küche entschieden, die auch prominent im Raum platziert sein darf. Auf der Rückseite der Kücheninsel ist eine Sitznische mit zwei Hockern und vor dem dahinterliegenden festverglasten Fenster kommt ein Sitzfenster vom Schreiner hin. In der (Wohn-)Küche wird also sehr wohl Leben stattfinden. Für Essen und Wohnen bleiben dann immer noch über 32qm übrig, was vollständig ausreicht. Uns gefällst also .
     
    Jozi90 gefällt das.
  14. #14 Fred Astair, 01.05.2023
    Fred Astair

    Fred Astair

    Dabei seit:
    02.07.2016
    Beiträge:
    12.642
    Zustimmungen:
    6.511
    Beruf:
    Tänzer
    Ort:
    San Bernardino
    Dann kommt der Presslufthammer BBBB...Bernhard.
    Und ja, es ist ein Mangel.
     
  15. Oehmi

    Oehmi

    Dabei seit:
    23.02.2023
    Beiträge:
    1.272
    Zustimmungen:
    614
    Beruf:
    Diplom-Kümmerer
    Ort:
    Niedersachsen
    Kommt auf den Schaden an. Ein Inliner wäre eine Möglichkeit, Sprayliner gibt es auch noch. Aber so richtig toll ist das alles nicht bei den kleinen Durchmessern.
     
  16. mojo2

    mojo2

    Dabei seit:
    14.04.2021
    Beiträge:
    57
    Zustimmungen:
    22
    Dass ein ganzes Bündel Abwasserleitungen unter der BoPla zusammenläuft, sieht man immer wieder. Im Allgemeinen arbeiten die viele Jahrzehnte problemlos. Von daher kein Grund für schlaflose Nächte. Und rund uns Haus kommt man auch nicht mehr so einfach dran, wenn dort erst mal Terrassenplatten in Mörtel liegen etc.

    Der Ton hier im Forum ist z.T. tatsächlich wenig emphatisch, das stimmt.

    Bei den Kommentaren zum verplanten Grundriss wäre ich entspannt. Das durften wir uns in der Planungsphase auch anhören. Im Nachhinein sind wir (bei den meisten Details) froh, bei unserer Planung geblieben zu sein.
     
  17. #17 Fasanenhof, 02.05.2023
    Fasanenhof

    Fasanenhof

    Dabei seit:
    20.02.2023
    Beiträge:
    1.435
    Zustimmungen:
    799
    Beruf:
    Ing für Maschinenbau
    Ort:
    Norddeutschland
    OT:
    Auch wenn ich eher konservativeren Entwürfen nahe stehe... ich verstehe wirklich nicht das Bohei um die großen Wohnküchen mit Kücheninsel.
    Es macht das Kochen kommunikativer und das Wohnzimmer aktiver. Ich sehe das immer wieder und ich finde es überwiegend okay so.

    Alternativ scheint ja der Trend eine Weile zu den "Dienerküchen" in Schuhkartongröße gegangen zu sein, und das finde ich deutlich schlimmer.
    Dann lieber die offene Wohnküche.
     
    Thomas So gefällt das.
  18. #18 Hercule, 02.05.2023
    Hercule

    Hercule

    Dabei seit:
    11.11.2019
    Beiträge:
    3.736
    Zustimmungen:
    865
    Erinnert mich an meinen Schwiegervater.
    Der hat irgendeine spezielle schöne Glaswand im Bad gemacht die genau zentrisch zum Waschbecken sein soll.
    Seine Frau will jetzt das Waschbecken 10cm weiter links - also exzentrisch :)
    Als Mann muss man es dann zähneknirschend machen und ärgert sich dann jahrzehntelang....
    Zum Glück gibt es Alkohol.
     
  19. #19 JohnBirlo, 02.05.2023
    JohnBirlo

    JohnBirlo

    Dabei seit:
    28.05.2020
    Beiträge:
    1.228
    Zustimmungen:
    461
    Sie ist aber eben nicht prominent im Raum. Ich würde die Kochinsel um 90Grad drehen und dann eine U-förmige Küche um die Insel machen. Die Arbeitsplatte kann dann in die beiden Fenster laufen. Dann musste den Kopf nicht drehen um die Kinder auf der Couch zu beobachten
     
  20. #20 Kriminelle, 02.05.2023
    Kriminelle

    Kriminelle

    Dabei seit:
    16.05.2013
    Beiträge:
    3.668
    Zustimmungen:
    2.022
    Beruf:
    .
    Ort:
    Niedersachsen
    Finde ich auch. Jeder so, wie er will.

    Liest sich nett. Hier treffen halt viele Geschmäcker und auch Funktionsplaner zusammen ;)

    Das ist jetzt aber auch nicht gerade das, was alle haben wollen. Das trifft auch nicht auf die Bodenfenster vor dem Tresen…

    Gute Entscheidung meiner Meinung nach.
    Könnte es allerdings sein, dass Ihr zu wenig AP habt? Die Gebrauchsutensilien haben bei Euch anscheinend keinen Platz, schnell abgelegt zu werden oder mehrere Tage zum Gebrauch zu stehen. Habt Ihr Kinder?
    Überprüft das einfach mal für Euch.
     
Thema:

Abwasserrohr in Küche umverlegen trotz bereits gegossener Bodenplatte?

Die Seite wird geladen...

Abwasserrohr in Küche umverlegen trotz bereits gegossener Bodenplatte? - Ähnliche Themen

  1. Abwasserrohr Küche mit 90grad

    Abwasserrohr Küche mit 90grad: Liebes Forum, wir bauen ein EFH mit Bodenplatte. Da wir unsere bestellte Kücheninsel kurzfristig noch etwas geändert haben, passt der...
  2. Schallschutz für Abwasserrohr in der offenen Küche

    Schallschutz für Abwasserrohr in der offenen Küche: Hallo zusammen, wir hatten für unseren Neubau gestern einen Termin mit dem Sanitärgewerk. Vor dem Termin hatte ich nachgefragt, ob wir an einer...
  3. Küche ohne Abwasserrohr???

    Küche ohne Abwasserrohr???: Hallo, Wir bauen ein Mittelreiehnhaus , als die Bodenplatte gebaut wurde , wurde unser Küchenabwasserrohr falsch ausgemessen sodass es nun...
  4. Abwasserrohr küche

    Abwasserrohr küche: Hey, ich habe ein problem, ich habe heute die abwasserrohre von der dusche und dem waschbecken die vom oberen bad runter in die küche laufen...
  5. Küche versetzen, Abwasserrohr um 4 Ecken verlegen

    Küche versetzen, Abwasserrohr um 4 Ecken verlegen: Liebe Experten, habe schon einige hilfreiche Tipps hier gefunden. Habe leider trotzdem noch 2 Fragen bei denen ihr mir ev. helfen könntet....