Altbau `56 / neue Fenster Sturz in Deckenhöhe?

Diskutiere Altbau `56 / neue Fenster Sturz in Deckenhöhe? im Sanierung konkret Forum im Bereich Altbau; Guten Tag miteinander, ich versuche das Problem einmal möglichst detailliert zu beschreiben, will aber vorher die Spannung rausnehmen - ich habe...

  1. HerrGe

    HerrGe

    Dabei seit:
    15.02.2025
    Beiträge:
    4
    Zustimmungen:
    0
    Guten Tag miteinander,

    ich versuche das Problem einmal möglichst detailliert zu beschreiben, will aber vorher die Spannung rausnehmen - ich habe sowohl einen Statiker als auch einen Bausachverständigen im Bekanntenkreis die ich ab kommenden Montag ebenso um Rat fragen möchte/werde.

    Meine Freundin und ich, haben ein Haus gekauft in dessen Kernsanierung wir uns derzeit befinden. Als Laie geht man natürlich viel weniger Professionell an die Angelegenheit als würde man eine Fachfirma mit der Sanierung beauftragen.

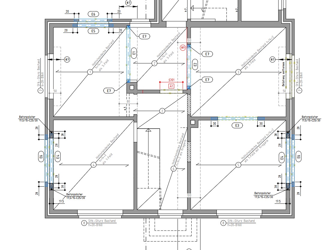
    Der Rolladenkasten ist 20 Hoch.
    Es handelt sich hierbei um die Stürze E4/(E6)
    Der Statiker sieht hierfür einen HEB120 S235 vor.
    Die Decke ist aus Betonhohlsteinstreifen, die Verlegerichtung ist wie man auf der Statik erkennt in Fensterrichtung

    Das Problem könnte schon offensichtlich geworden sein, aber wir soll das mit den Trägern passen? Kann das überhaupt passen? Stehe ich vielleicht etwas auf dem Schlauch und die Lösung ist weit weniger komplex?
    Aber die Betonhohlsteine lagern ja genau auf der Wand, oder genau an der Position in der der H-Träger sein müsste oder?

    Wie könnte eine mögliche Lösung aussehen, außer sich den Rolladenkasten zu sparen oder das Fenster gleich sein zu lassen?

    Ich bedanke mich schonmal vorab für die Hilfe :-)

    VG
     

    Anhänge:

  2. 415B

    415B

    Dabei seit:
    03.12.2024
    Beiträge:
    1.417
    Zustimmungen:
    246
    HEB 120 ist ein Stahlträger der von aussen eingesetzt wird. Soll denn das Fenster breiter werden oder warum ein neuer Sturz ? Falls du in Berlin / Umgebung wohnst bei GAAC in Mittenwalde bekommst du die günstig und sofort auf Maß zugeschnitten.
    Bauzentrum Mittenwalde - Baufachhandel für Profi und Privat.
     
Thema:

Altbau `56 / neue Fenster Sturz in Deckenhöhe?

Die Seite wird geladen...

Altbau `56 / neue Fenster Sturz in Deckenhöhe? - Ähnliche Themen

  1. Neue Fenster im Altbau = Schimmel nach 1,5 Monaten

    Neue Fenster im Altbau = Schimmel nach 1,5 Monaten: Hallo, wir renovieren gerade einen Altbau von 1991. Das Haus ist mit 36,5er Ziegeln gemauert. Wir haben die alten Holzfenster gegen 3-fach...
  2. Neue Fenster im Altbau

    Neue Fenster im Altbau: Hallo zusammen, wir haben uns von einer Firma in unserem Altbau von 1962 die Restlichen Alten Fenster tauschen lassen (einige waren schon neu)....
  3. Neue Fenster in Porenbeton Altbau (3 Fach oder 2 Fach)

    Neue Fenster in Porenbeton Altbau (3 Fach oder 2 Fach): Guten Tag zusammen, wir haben ein Einfamilienhaus aus dem Jahr 1972 gekauft, das komplett aus Porenbetonplatten besteht. Die Außenwände sind mit...
  4. Neue Fenster und Rollläden im Altbau - NUR PROBLEME

    Neue Fenster und Rollläden im Altbau - NUR PROBLEME: Hallo zusammen, wir haben uns Mitte 2023 im Rahmen der Sanierung unseres Einfamilienhauses von 1986 auch neue 3-fach verglaste Fenster und...
  5. Neue Fenster im Altbau; blauer Rahmen in Wärmebild sichtbar

    Neue Fenster im Altbau; blauer Rahmen in Wärmebild sichtbar: Hallo liebe Forengemeinschaft, wir haben in unserem Haus (Baujahr 1976) vier neue Fenster einbauen lassen. Außen wurden die Fenster an die...