Altbaukauf in Hannover – Wandstärken 51,5 / 44 / 40 / 24 cm – Wandaufbau & Dämmstrategie

Diskutiere Altbaukauf in Hannover – Wandstärken 51,5 / 44 / 40 / 24 cm – Wandaufbau & Dämmstrategie im Sanierung konkret Forum im Bereich Altbau; Hallo zusammen, ich plane den Kauf eines Altbaus in Hannover und möchte vorab besser verstehen, wie die Außenwände aufgebaut sind und welche...

  1. #1 Verpohlt, 28.10.2025
    Verpohlt

    Verpohlt

    Dabei seit:
    28.10.2025
    Beiträge:
    2
    Zustimmungen:
    0
    Hallo zusammen,

    ich plane den Kauf eines Altbaus in Hannover und möchte vorab besser verstehen, wie die Außenwände aufgebaut sind und welche Dämmmaßnahmen sinnvoll und technisch machbar wären. Vielleicht könnt ihr mir mit eurer Erfahrung weiterhelfen.

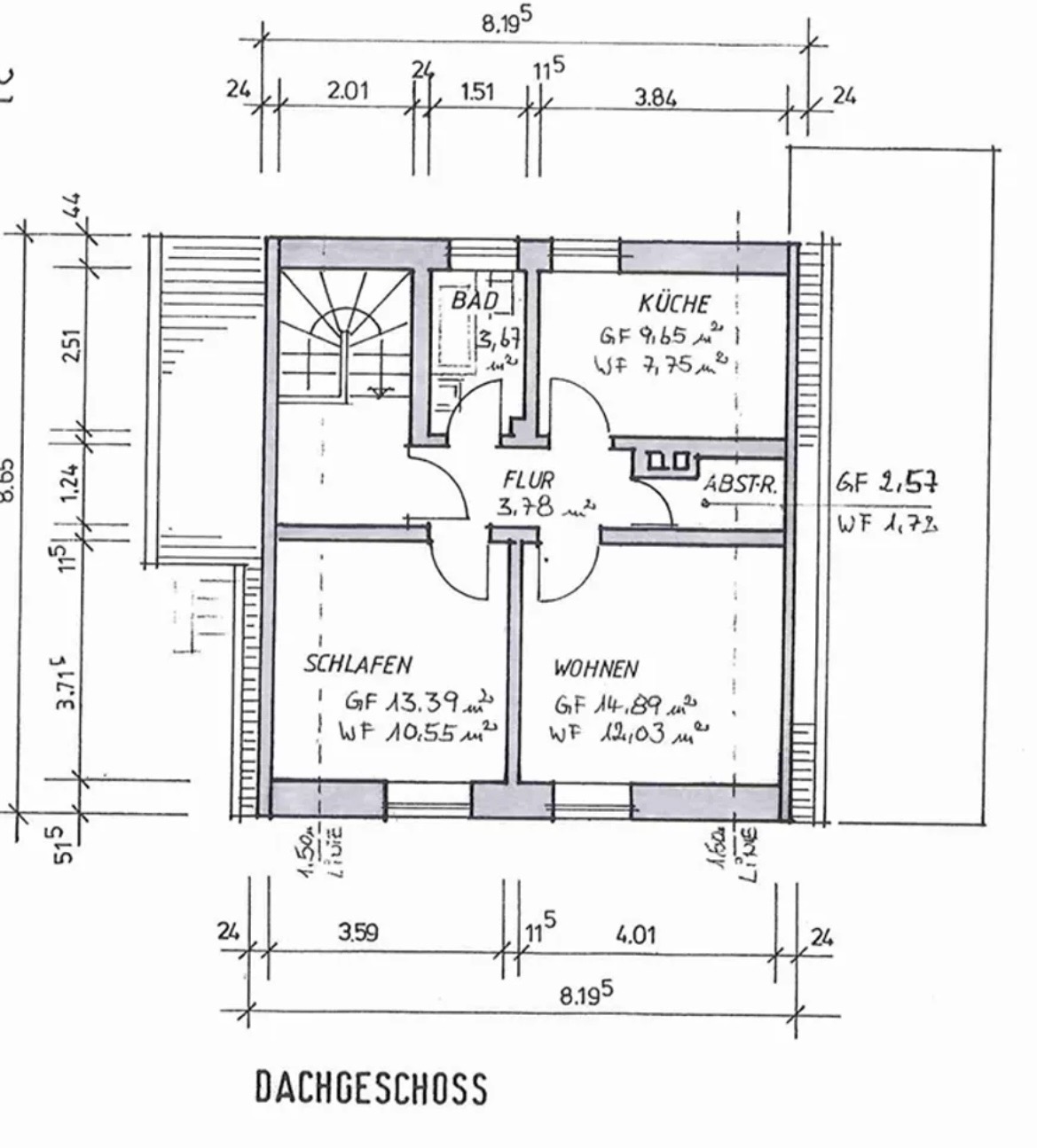
    Folgende Wandstärken habe ich gemessen bzw. aus den Plänen entnommen – alle Wände sind von außen verklinkert:

    • Vorderfassade: ca. 51,5 cm

    • Rückseite: ca. 44 cm

    • Rechte Außenwand: ca. 40 cm

    • Linke Außenwand: ca. 24 cm
    Meine Fragen:

    1. Ist bei diesen Wandstärken davon auszugehen, dass es sich um zweischaliges Mauerwerk mit Luftschicht handelt – oder könnten einzelne Wände massiv sein?

    2. Kann man den Klinker an der Vorderseite entfernen und dort ein WDVS aufbringen, während man die Seitenwände ebenfalls dämmt – oder sollte man alle Fassaden einheitlich behandeln?

    3. Gibt es typische Wandaufbauten für diese Maße (z. B. aus den 1920er–1950er Jahren), die ihr aus Erfahrung kennt?
    Ich freue mich über eure Einschätzungen, Erfahrungen oder Hinweise auf gute Quellen und Schnittzeichnungen. Vielen Dank!

    Viele Grüße Gerrit

    IMG_9809.jpeg IMG_9812.jpeg IMG_9810.jpeg
     
  2. #2 Fabian Weber, 28.10.2025
    Fabian Weber

    Fabian Weber

    Dabei seit:
    03.04.2018
    Beiträge:
    16.392
    Zustimmungen:
    6.522
    Fotos könnten hilfreich sein.
     
  3. #3 Verpohlt, 28.10.2025
    Verpohlt

    Verpohlt

    Dabei seit:
    28.10.2025
    Beiträge:
    2
    Zustimmungen:
    0
    Moin,
    Anbei ein paar Bilder. IMG_9816.jpeg IMG_9815.jpeg IMG_9814.jpeg IMG_9813.jpeg
     
Thema:

Altbaukauf in Hannover – Wandstärken 51,5 / 44 / 40 / 24 cm – Wandaufbau & Dämmstrategie

Die Seite wird geladen...

Altbaukauf in Hannover – Wandstärken 51,5 / 44 / 40 / 24 cm – Wandaufbau & Dämmstrategie - Ähnliche Themen

  1. Moin aus Garbsen (Hannover)

    Moin aus Garbsen (Hannover): Hallo zusammen, wie so oft, sucht man (als Häuslebesitzer) zu dem einen oder anderen Thema per Google im Internet herum. Da Euer Forum stets ganz...
  2. Altbaukauf - Faden verloren/Vorgehensweise

    Altbaukauf - Faden verloren/Vorgehensweise: Hiho, ich hab als Gast schon fleißig das Forum durchwühlt und eine sehr grobe Vorstellung, wie was evtl. funktionieren könnte bzgl. der...
  3. Altbaukauf und Sanierung sinnig?

    Altbaukauf und Sanierung sinnig?: Hallo liebes Forum, vor ein paar Monaten habe ich hier um Hilfe für einen Neubau ersucht. Da die Grundstücke in unserer Gegend zu teuer sind, ca....
  4. Ermittlung der Sanierungskosten für Preisverhandlung Altbaukauf

    Ermittlung der Sanierungskosten für Preisverhandlung Altbaukauf: Vielleicht ein etwas ungeschickter Titel, wußte es aber nicht besser auszudrücken. Wir haben eine interessante Immobilie, Bj.1970, mit 215m²...