Anbau an Einfamilienhaus

Diskutiere Anbau an Einfamilienhaus im Bauen mit Architekten Forum im Bereich Architektur; Hallo Zusammen, meine Frau und ich planen unser Häuschen mit einem Anbau zu erweitern. Ich habe es mal nach unseren Vorstellungen...

  1. #1 ic3cub3, 06.01.2017
    ic3cub3

    ic3cub3

    Dabei seit:
    06.01.2017
    Beiträge:
    14
    Zustimmungen:
    1
    Beruf:
    Anwendungstechniker
    Ort:
    Kempten
    Hallo Zusammen,


    meine Frau und ich planen unser Häuschen mit einem Anbau zu erweitern. Ich habe es mal nach unseren Vorstellungen aufgezeichnen. Jezt würde ich wenn möglich gern wissen ob das denn so möglich ist und ob es Kostentechnisch überhaupt Sinn macht.



    Das ist das momentane Haus.


    Datei_000 (13).jpg


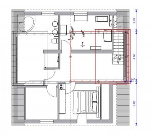
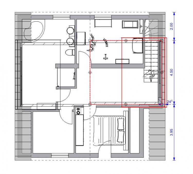
    Erweitert werden soll es 3 Meter nach hinten bei gleicher zwei Stöckiger höhe. Platz zur Grenze nach der Erweiterung ca 3,50m. 3 Meter müsste doch der Mindestabstand sein? Die Schwarze Linie gibt laut Bebauungsplan vor wo gebaut werden darf.

    Haus oben.JPG


    Kellergeschoss:

    Der Anbau würde auch Unterkellert werden. Die Treppe würde in ein eigenes Treppenhaus versetzt. Der alte Abgang wäre Boden

    Zeichnung Keller.jpg


    Erdgeschoss:

    Dort würde auch die Treppe ins Treppenhaus rechts umziehen.

    Zeichnung EG.jpg

    Obergeschoss:

    Dort würde der auch der alte Treppenabgang zugemacht werden. Wäre dann auch Boden.

    Zeichnung OG.jpg





    Hier noch ein paar Bilder:

    [​IMG]

    [​IMG]

    [​IMG]


    [​IMG]

    [​IMG]

    danke schon mal


    gruß Markus
     

    Anhänge:

  2. #2 Andreas Gr, 06.01.2017
    Andreas Gr

    Andreas Gr

    Dabei seit:
    22.10.2016
    Beiträge:
    588
    Zustimmungen:
    25
    Beruf:
    Zimmermeister
    Ort:
    Kölleda
    Warum soll angebaut werden ?
    Machbar ist vieles, die Frage ist eben ob die Kosten im Verhältnis zu dem Nutzen stehen.
     
  3. #3 ic3cub3, 06.01.2017
    ic3cub3

    ic3cub3

    Dabei seit:
    06.01.2017
    Beiträge:
    14
    Zustimmungen:
    1
    Beruf:
    Anwendungstechniker
    Ort:
    Kempten
    Hallo,

    der Grund für den Anbau ist der fehlende Platz für ein Büro und ein Kinderzimmer. Das derzeitige Kinderzimmer ist momentan das Büro. Da ich im Home Office arbeite benötige ich ein eigenes Zimmer. Das heutige Badezimmer ist leider auch viel zu klein und besitzt keine Dusche. Wir Duschen momentan in gebäugter haltung in der Badewanne aufgrund drr Dachschrägen.

    Noch ein Grund für den Anbau ist die Lage des Hauses.sehr ruig mit tollen Blick auf die Berge.

    gruß Markus
     
  4. #4 Andybaut, 06.01.2017
    Andybaut

    Andybaut

    Dabei seit:
    02.04.2015
    Beiträge:
    5.127
    Zustimmungen:
    329
    Beruf:
    Architekt
    Ort:
    Baden-Württemberg
    machbar ist vieles.
    Seh ich auch so.
    Ich würde mal den m² Nutzfläche innen mit 3000-3500€/m² incl. allen Honoraren ansetzen.
    In der Größenordnung wird sich das mindestens abspielen. Nach oben natürlich offen,
    falls die Heizung überfordert oder die Statik am Ende ist.

    Bitte nich auf die Zahlen festnageln. Das ist nur eine Größenordnung um die Sinnhaftigkeit
    des Vorhabens zu prüfen.
     
  5. #5 ic3cub3, 06.01.2017
    ic3cub3

    ic3cub3

    Dabei seit:
    06.01.2017
    Beiträge:
    14
    Zustimmungen:
    1
    Beruf:
    Anwendungstechniker
    Ort:
    Kempten
    Danke für die Antwort,

    Mit der Dimension habe ich schon gerechnet. heinzung müsste sowieso neu rein, diese ist 25 Jahre und mukkt langsam herum.

    Ist das mit dem Abstand zum Nachbar so mit den 3 Meter mindestabstand?

    Gruß

    Wie
     
  6. #6 Andybaut, 06.01.2017
    Andybaut

    Andybaut

    Dabei seit:
    02.04.2015
    Beiträge:
    5.127
    Zustimmungen:
    329
    Beruf:
    Architekt
    Ort:
    Baden-Württemberg
    kann ich so nicht sagen.
    Da solltest du einfach kurz auf dem Baurechtsamt anrufen und deine Flurnummer sagen.
    Die können dann anhand der allgemeinen gesetzlichen Regeln und anhand des Bebauungsplans sagen,
    wie groß der Abstand sein muss.

    Hab gegoogelt, Bayern sind aktuell 3m Mindestabstand.
    Aber durch den B-Plan und damals gültige Verordnungen kann der theoretisch auch größer sein.
     
  7. #7 ic3cub3, 07.01.2017
    ic3cub3

    ic3cub3

    Dabei seit:
    06.01.2017
    Beiträge:
    14
    Zustimmungen:
    1
    Beruf:
    Anwendungstechniker
    Ort:
    Kempten
    wie ist da die genaue Vorgehensweise für so einen Anbau?

    Ich war beim Bauamt und die meinte die benötigen erst mal einen Bauplan um sagen zu können ob gebaut werden kann.

    Also erst zum Architekt dann nochmal zum Bauamt?
     
  8. #8 Andybaut, 07.01.2017
    Andybaut

    Andybaut

    Dabei seit:
    02.04.2015
    Beiträge:
    5.127
    Zustimmungen:
    329
    Beruf:
    Architekt
    Ort:
    Baden-Württemberg
    je nach Bauamt kriegt man immer mal wieder so Pflaumen.
    Das sollte doch möglich sein, dass auch ohne Architekt zu sagen.

    Normalerweise braucht man da nur den Bebauungsplan und schaut nach ob nicht
    irgendwo eine Baulinie oder Baufenster eingezeichnet ist, das der Sache im Wege steht.
    Ich würde einfach eine Kopie des alten Lageplans nehmen und da eine rote Fläche
    für den geplanten Anbau einzeichnen und dann nochmals vorsprechen.

    Wenn die Herren das nicht wollen, dann lass dir eine Kopie des Bebauungsplanes geben,
    in dem vermerkt ist ob solche Restriktionen gegeben sind.
     
  9. #9 ic3cub3, 07.01.2017
    ic3cub3

    ic3cub3

    Dabei seit:
    06.01.2017
    Beiträge:
    14
    Zustimmungen:
    1
    Beruf:
    Anwendungstechniker
    Ort:
    Kempten
    Den Bebauungsplan habe ich schon gesehen. Habe die Fläche in der Bebaut werden darf oben in die Grafik 2 mit Schwarz eingezeichnet. Beim Orginalplan von 1962 erkennt man leider nix mehr.

    Die auf dem Bauamt meinten dass ich bevor sie mir sagen können bis wohin gebaut werden kann eine Entwurfszeichung benötige. Finde ich irgendwie sehr komisch. Wenn ich nun zum Architekt gehe das Zeichnen lasse und die mir das nicht genehmigen hab ich ja unnötig Geld rausgeworfen...
     
  10. #10 Andybaut, 07.01.2017
    Andybaut

    Andybaut

    Dabei seit:
    02.04.2015
    Beiträge:
    5.127
    Zustimmungen:
    329
    Beruf:
    Architekt
    Ort:
    Baden-Württemberg
    ich würd´s in den alten Lageplan einzeichnen und nochmals hingehen.
    Solche Vertröstungstaktiken von Bauämter kenne ich auch.
    Da hilft manchmal nur nerven.
     
  11. #11 ic3cub3, 09.01.2017
    ic3cub3

    ic3cub3

    Dabei seit:
    06.01.2017
    Beiträge:
    14
    Zustimmungen:
    1
    Beruf:
    Anwendungstechniker
    Ort:
    Kempten
    Abend Zusammen.

    war heute auf dem Bauamt um mich nochmal zu Informieren ob das mit den 3 Meter Grenzabstand zum Nachbarn soweit passt. Jetzt meinte der nette Herr dass es nicht nur die 3 Meter sind sonder dann man wenn man die Hauswand von meinem Haus und die Hauswand vom Nachbar umklappt dürften die sich nicht berühren und das wäre der Abstand der einzuhalten wäre.

    Kann ich mir ja irgendwie nicht vorstellen wenn ich die anderen Nachbarhäuser ansehe hat kaum einer so einen großen Abstand zum Nachbar.
    Vielleicht habe ich da auch was falsch verstanden oder gibt es so die Auflage wie von mir beschrieben?


    gruß
     
  12. #12 Andybaut, 09.01.2017
    Andybaut

    Andybaut

    Dabei seit:
    02.04.2015
    Beiträge:
    5.127
    Zustimmungen:
    329
    Beruf:
    Architekt
    Ort:
    Baden-Württemberg
    oh man sind das Ärsche auf deinem Amt.
    Im Grundsatz ist die Aussage teilweise richtig.
    Was er meinte sind Abstandsflächen die einzuhalten sind.
    Jetzt machen wirs anders. Wenn dem Nachbarn 3m reichen, dann wird das bei dir auch paßen,
    falls dein Haus nicht höher ist.


    http://www.bauarchiv.de/neu/baurecht/bauordnung/bayern/bayerischebauordnung6.htm
    sonst musst du dir das mal in aller Ruhe durchlesen und ein bischen malen.
     
  13. #13 ic3cub3, 09.01.2017
    ic3cub3

    ic3cub3

    Dabei seit:
    06.01.2017
    Beiträge:
    14
    Zustimmungen:
    1
    Beruf:
    Anwendungstechniker
    Ort:
    Kempten
    Danke für deine Antwort. Gemalt habe ich schon mal. Der vom Bauamt wollte auch noch eine Zeichung mit den Maßen um das nochmals zu Prüfen. Habe mal im Anhang die Maße. Was meinst du?


    Höhe.jpg Einreichung.jpg
     
  14. #14 Andybaut, 09.01.2017
    Andybaut

    Andybaut

    Dabei seit:
    02.04.2015
    Beiträge:
    5.127
    Zustimmungen:
    329
    Beruf:
    Architekt
    Ort:
    Baden-Württemberg
    jetzt malst du noch in rot die "geklappte" Hausfront ein.
    Dazu beginnst du an er linken oder rechten neuen Ecke und malst diese so hoch,
    wie die Wand später ist.
    Bei dir ist das der Schnittpunkt Wand/geplantes Gelände mit Wand/Oberkante Dachhaut.
    Daran schließt du dann das Dach an, dass du mit dem gleichen Winkel.......

    zu kompliziert, ich mal´s .-)

    lageplan.jpg
     
  15. #15 ic3cub3, 09.01.2017
    ic3cub3

    ic3cub3

    Dabei seit:
    06.01.2017
    Beiträge:
    14
    Zustimmungen:
    1
    Beruf:
    Anwendungstechniker
    Ort:
    Kempten
    Danke :-)

    habs kapiert, werde morgen mal bei Tageslicht messen. Glaub das wird ziemlich eng:mauer
     
  16. #16 Andybaut, 10.01.2017
    Andybaut

    Andybaut

    Dabei seit:
    02.04.2015
    Beiträge:
    5.127
    Zustimmungen:
    329
    Beruf:
    Architekt
    Ort:
    Baden-Württemberg
    Bitte auch noch Kapitel 6.5 beachten.
    Dort sind Regelungen für Wandbreiten bis 16m.
    Ist aber Gebietsabhängig. Musst du leider wieder nachfragen.
     
  17. #17 ic3cub3, 12.01.2017
    ic3cub3

    ic3cub3

    Dabei seit:
    06.01.2017
    Beiträge:
    14
    Zustimmungen:
    1
    Beruf:
    Anwendungstechniker
    Ort:
    Kempten
    So jetzt habe ich mal die Höhen gemessen. Höhe Mauer bis Dachanfang ca 3,2m. Gesammthöhe Haus 6m. Hoffe das dass so geht mit den 3 Metern an die Grenze bauen.

    Habe heute schon einmal die Unterschriften der Nachbarn eingeholt fürs Bauamt.
     
  18. #18 Andybaut, 12.01.2017
    Andybaut

    Andybaut

    Dabei seit:
    02.04.2015
    Beiträge:
    5.127
    Zustimmungen:
    329
    Beruf:
    Architekt
    Ort:
    Baden-Württemberg
    das klingt doch gut.
    Eine Rückmeldung über das Ergebnis wäre nett.
    Viel Erfolg.
     
  19. #19 ic3cub3, 16.01.2017
    ic3cub3

    ic3cub3

    Dabei seit:
    06.01.2017
    Beiträge:
    14
    Zustimmungen:
    1
    Beruf:
    Anwendungstechniker
    Ort:
    Kempten
    So heute nochmal beim Bauamt gewesen um das mit der 16m Regel zu klären. So wie es aussieht meinte er müsste es gehen von den Abstandsflächen. Nun habe ich Ihm erzählt dass ich auf jede Seite noch eine Gaube drauf machen möchte. Laut Gesetz wie ich weis heißt es ja dass man 2/3 Dachfläche mit Gaube versehen darf oder? Jetzt meinte der nette Herr dass ich mal eine Zeichnung mit Maßen einreichen soll und die das dann prüfen. Er meinte auch noch dass es irgendwas zu beachten gibt dass ich durch die Gauben nicht ein "Vollgeschoss" gezählt bekomm. Hab das aber irgendwie nicht verstanden. Er hat mir da nen Ausdruck mitgegeben. ( Im Anhang)

    Wieso können die einem denn nicht einfach mal eine vernünftige Aussage geben. Das darf ich und das nicht!!!

    Würden die Bilder so für die Einreichung passen?

    Gaube3.jpg Gaube1.jpg Gaube Maß.jpg gaube 2.jpg Datei_000 (16).jpg
     
  20. #20 Andybaut, 16.01.2017
    Andybaut

    Andybaut

    Dabei seit:
    02.04.2015
    Beiträge:
    5.127
    Zustimmungen:
    329
    Beruf:
    Architekt
    Ort:
    Baden-Württemberg
    Vielleicht ist es nun Zeit für einen Planer !?
    Einreichen kannst du das ohnehin nicht, da du nicht Planvorlagenberechtigt bist.

    Was der nette Herr auf dem Amt meinte ist die Definition eines Vollgeschosses.
    Du musst die Grundfläche des EG rechnen und dann die Fläche des DG. Diese darf dann max.
    2/3 so groß sein, wie das EG. Gemessen wird im DG bei einer lichten Höhe von 2,30m.
    Dadurch fallen die Ränder des Daches aus der Fläche heraus.
    Die Gauben kommen aber ganz rein, da diese ja überall höher wie 2,30m sind.

    Das ganze wird dann beim Baugesuch vom Vermesser berechnet und in den Unterlagen
    bestätigt. Sollte die Fläche >2/3 des EG sein, dann wäre dein Dachgeschoss plötzlich ein
    Vollgeschoss und das erlaubt der Bebauungsplan vermutlich nicht.

    Im B-Plan wird irgendwo EG + DG stehen. Oder 1 Geschoss
    Dein Gebäude ist planungsrechtlich quasi ein 1 geschossiges Gebäude.
     
Thema: Anbau an Einfamilienhaus
Besucher kamen mit folgenden Suchen
  1. lageplan gaube einzeichnen

    ,
  2. doppelhaushälfte Anbau nach hinten

    ,
  3. treppenhausanbau baufenster

    ,
  4. oberkante dachhaut
Die Seite wird geladen...

Anbau an Einfamilienhaus - Ähnliche Themen

  1. Anbau an Einfamilienhaus

    Anbau an Einfamilienhaus: Hallo liebes Forum, unser ursprünglicher Plan war es eigentlich auf dem Grundstück der Eltern ein kleine EFH zu bauen. Leider werden wir, so wie...
  2. Einfamilienhaus von 1936 - Kernsanierung und Anbau

    Einfamilienhaus von 1936 - Kernsanierung und Anbau: Hallo zusammen, wir haben die Möglichkeit ein kleines Einfamilienhaus von 1936 zu erwerben. Die Lage ist ok, aber die Wohnfläche ist für uns als...
  3. Anbau an Einfamilienhaus

    Anbau an Einfamilienhaus: Hallo zusammen, wir sind am Überlegen, ob wir an unser EFH aus 1917 einen Anbau erstellen. Es soll eine Art "Schuhschachtel" werden, also 1...
  4. Brandschutz Holzfassade Anbau Einfamilienhaus

    Brandschutz Holzfassade Anbau Einfamilienhaus: Hallo Expertenforum, als Architekt habe ich für einen Bauherren einen kleinen Aufstockung der Garage mit zwei neuen Schlafzimmern (ca. 60 m2)...
  5. Anbau/Neubau eines Einfamilienhauses

    Anbau/Neubau eines Einfamilienhauses: Hallo zusammen. Bin quasi neu hier und wollte mal ein paar Erfahrungen von euch hören. Nachdem mein Bauantrag zweimal nicht durchgegangen ist...