Anbindung Garage an Wohnaus

Diskutiere Anbindung Garage an Wohnaus im Mauerwerk Forum im Bereich Neubau; Hallo Zusammen, ich bin neu in diesem Forum, bin kein Bauexperte und würde mich freuen, wenn Ihr mir mit Eurem Wissen ein klein wenig zur Seite...

  1. #1 Jack Sparrow, 23.01.2021
    Jack Sparrow

    Jack Sparrow

    Dabei seit:
    23.01.2021
    Beiträge:
    1
    Zustimmungen:
    0
    Hallo Zusammen,

    ich bin neu in diesem Forum, bin kein Bauexperte und würde mich freuen, wenn Ihr mir mit Eurem Wissen ein klein wenig zur Seite stehen könntet.

    Um was geht es :

    Ich plane derzeit den Neubau eines Doppelhauses in Ziegelbauweise (Poroton o.ä.) jeweils mit angrenzender Einzelgarage.
    Die Garage soll direkt an das Haus anschließen. Wegen der besonderen Geometrie kommt eine Fertiggarage nicht in Betracht. Die Garage soll unterkellert werden und wird dann wohl auf dem gleichen Fundament wie das Wohngebäude stehen. Die Garage bekommt ein Flachdach mit Begrünung (will die LBK so)

    Jetzt meine Frage :

    Braucht diese Garage eine eigene Kommunemauer (ich hoffe, ich drücke mich richtig aus), oder kann sie an die Aussenmauer des Gebäudes angebaut werden ?

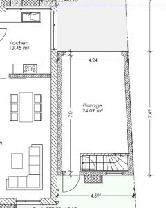
    Zum besserem Verständnis habe ich noch ein Foto vom aktuellen Plan angefügt.

    Vielen Dank für Eure vielzähligen Antworten


    Jack Sparrow
     

    Anhänge:

Thema:

Anbindung Garage an Wohnaus

Die Seite wird geladen...

Anbindung Garage an Wohnaus - Ähnliche Themen

  1. Anbindung neuer Fenster an bestehenden Beton

    Anbindung neuer Fenster an bestehenden Beton: Hallo zusammen, ich bin neu hier und hoffe ihr könnt uns weiterhelfen. Wir haben vor einiger Zeit eine Bestandimmobilie gekauft und dort neue...
  2. Anbindung Abdichtung Neubau an Bestand

    Anbindung Abdichtung Neubau an Bestand: Hallo zusammen, hat Jemand eine Idee, wie ich die Abdichtung auf der Bodenplatte eines Anbaus korrekt an den Bestand angebunden bekomme? Mir fällt...
  3. Anbindung Dampfbremse an der Traufe

    Anbindung Dampfbremse an der Traufe: Hallo Zusammen, bin mir unsicher ob ich die richtige Lösung gefunden habe bezüglich anbindung Dampfbremse an Wand (Traufe). von unten nach oben:...
  4. Anbindung Stahlbetonstütze innerhalb Mauerwerk

    Anbindung Stahlbetonstütze innerhalb Mauerwerk: Hallo. In eine Haus-Außenwand (Porenbeton) soll eine Stahlbetonstütze eingegossen werden. (Wie) wird diese an das umseitige Mauerwerk eingebunden...
  5. Alpha Innotec Wärmepumpe an Solar anbinden

    Alpha Innotec Wärmepumpe an Solar anbinden: Hallo in die Runde, ich bin Laie und deshalb suche ich Euren Rat. Ich habe jetzt eine Photovoltaik bekommen 13,9Kwp und möchte meine Solaranlage...