Anschluss einer Zisternenpumpe

Diskutiere Anschluss einer Zisternenpumpe im Außenanlagen Forum im Bereich Rund um den Garten; Hallo zusammen, wir haben neu gebaut und die Gemeinde hat bereits mit der Erschließung des Baugebietes eine Zisterne auf dem Grundstück verbaut....

  1. #1 studthomas, 24.03.2026
    studthomas

    studthomas

    Dabei seit:
    20.07.2009
    Beiträge:
    29
    Zustimmungen:
    1
    Beruf:
    Adviser Indirect Tax
    Ort:
    Norderstedt
    Hallo zusammen,

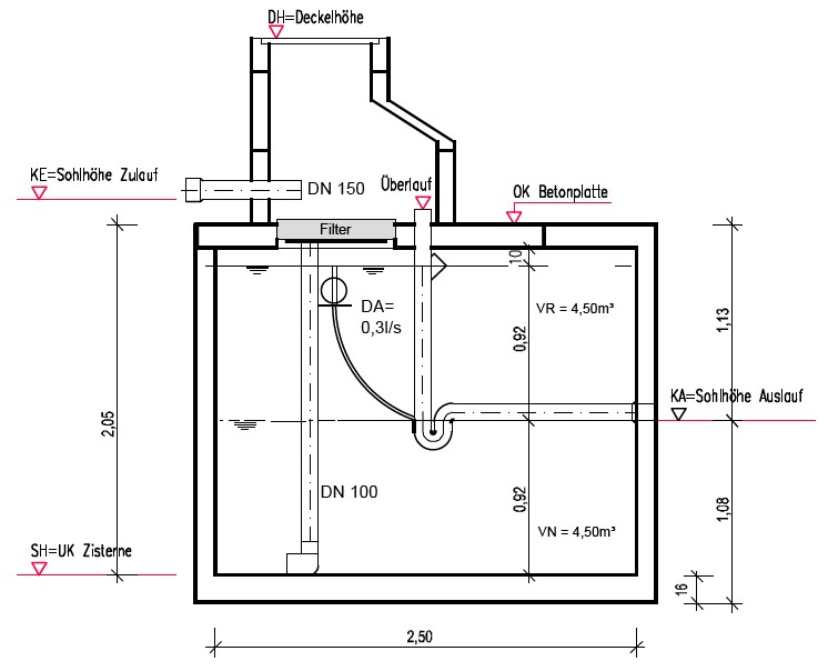
    wir haben neu gebaut und die Gemeinde hat bereits mit der Erschließung des Baugebietes eine Zisterne auf dem Grundstück verbaut.

    Ich frage mich nun, wie ich die Zisternenpumpe anschließen muss, d.h. wo muss ich die Zisternenpumpe einsetzen (muss das "Vlies" (?) entnommen werden / wie wird das Seil für die Zisternenpumpe befestigt / kann in der Zisterne eine Steckdose gesetzt werden (ein Kabel könnte durch das schwarze Leerrohr gezogen werden))?

    Besten Dank und Gruß
    Thomas

    Zisterne.jpg Bild2.jpg
     
  2. #2 VollNormal, 24.03.2026
    VollNormal

    VollNormal

    Dabei seit:
    20.11.2021
    Beiträge:
    4.209
    Zustimmungen:
    2.842
    Beruf:
    Bauingenieur
    Ort:
    Bochum
    Dafür ist wohl das senkrechte Rohr DN100 vorgesehen.

    Welches Vlies? Falls du den Filter meinst, der ist da nicht zum Spass drin. Ich empfehle aber trotzdem, vor dem Zulauf zur Zisterne einen Schlammfang zu installieren.

    Festbinden, ein Auge spleissen, Karabiner, Schäkel, ... - je nachdem, was die Pumpe für einen Anschlagspunkt bietet.

    Kann schon, davon ist aber dringend abzuraten. Elektrischer Strom und Wasser ist eine ungesunde Kombination (man denke an den Fön in der Badewanne).

    Gab es dann da keine Anleitung dazu?

    Und warum ist der Schachtkopf so verdreckt? Das sieht fast so aus, als müsstest du die Zisterne schon vor Inbetriebnahme das erste Mal reinigen.
     
  3. #3 studthomas, 24.03.2026
    studthomas

    studthomas

    Dabei seit:
    20.07.2009
    Beiträge:
    29
    Zustimmungen:
    1
    Beruf:
    Adviser Indirect Tax
    Ort:
    Norderstedt
    Ich befürchte, dass ich ein Verständnisproblem habe :-(

    Wie bekomme ich diese Zisternenpumpe in den "Wasserbereich" (Durchmesser ca. 15cm + Ansaugschlauch)?

    Zisternenpumpe.jpg
     
  4. #4 nordanney, 24.03.2026
    nordanney

    nordanney

    Dabei seit:
    15.09.2021
    Beiträge:
    6.390
    Zustimmungen:
    3.700
    Beruf:
    Finanzierer/Investor/Bau- und Sanierungslaie
    Ort:
    Niederrhein
    Bei einem 100er Rohr gar nicht. Falsche Pumpe.
     
    simon84 gefällt das.
  5. #5 hanghaus2000, 26.03.2026
    hanghaus2000

    hanghaus2000

    Dabei seit:
    24.11.2021
    Beiträge:
    1.532
    Zustimmungen:
    636
    Beruf:
    Bauleiter, Kalkulator, Controller, Salzdesign
    Ort:
    Bayern
    Mein Architekt hat eine Zisterne mit vorgelagerten Zentrifugalfilter sowie eine im Keller befindliche Saugpumpe geplant. Funtioniert seit ueber 20 Jahren ohne Probleme. Die Pumpe muste einmal wegen Blitzeinschlag getauscht werden. Das ging easy da im Keller.
     
Thema:

Anschluss einer Zisternenpumpe

Die Seite wird geladen...

Anschluss einer Zisternenpumpe - Ähnliche Themen

  1. Anschluss und Abdichtung von Pergola an WDVS/Putz

    Anschluss und Abdichtung von Pergola an WDVS/Putz: Hallo! Wir würden gerne diesen Sommer eine Alu-Pergola mit Lamellendach auf unserer Gartenterrasse bauen. Ca. 8x4m, auf 6 Pfosten stehend....
  2. Anschluss Gaubenwange an Hauptdach

    Anschluss Gaubenwange an Hauptdach: [ATTACH] [ATTACH] Hallo in die Runde, unser Dach wurde gedämmt und neu eingedeckt. Als 2. wasserführende Ebene fungieren auf dem Hauptdach...
  3. Anschluss Überdachung an WDVS zweifelhaft

    Anschluss Überdachung an WDVS zweifelhaft: Hallo zusammen, vor etwa 10 Jahren wurde die Nordseite des Hauses mit einem WDVS versehen. Die bestehende Überdachung wurde wohl etwas...
  4. Neue Balkenköpfe im Altbau Mauerwerk - Luftumpült oder gedämmt, Anschlüsse?

    Neue Balkenköpfe im Altbau Mauerwerk - Luftumpült oder gedämmt, Anschlüsse?: Hallo zusammen, ich habe eine Frage zu einem Detail bei einer Altbausanierung. Situation: Altbau von ca. 1890 Ziegelmauerwerk, außen mit 5 cm...
  5. Was ist das? Anschlüsse Armatur Badewanne

    Was ist das? Anschlüsse Armatur Badewanne: [ATTACH] Hallo, hoffe, jemand kann uns helfen das Rätsel zu lösen, worum es sich bei dem durchsichtigen Rohr auf dem Bild handelt. Um die...