Bad Grundriss auf den Kopf gestellt - klappt das?

Diskutiere Bad Grundriss auf den Kopf gestellt - klappt das? im Sanitär Forum im Bereich Haustechnik; Hallo zusammen, ich freue mich, hier im Forum eine sehr aktive Forumsgemeinde rund um das Thema Bauen und Innenausbau gefunden zu haben und bin...

  1. #1 PapaBear4711, 28.12.2021
    PapaBear4711

    PapaBear4711

    Dabei seit:
    28.12.2021
    Beiträge:
    44
    Zustimmungen:
    1
    Hallo zusammen,

    ich freue mich, hier im Forum eine sehr aktive Forumsgemeinde rund um das Thema Bauen und Innenausbau gefunden zu haben und bin sicher, dass ich hier "geholfen werde". :) Während und nach dem Kauf einer Eigentumswohnung kam bei meiner Frau und mir manch "Wunsch" auf, um die Wohnung praktischer zu gestalten. Da sich der Bau gerade noch in der Fertigstellung des Rohbaus befindet und einige Innenwände als Metallständerwände ausgeführt werden, kann man glücklicherweise noch einiges beeinflussen.

    Nun zur eigentlichen Frage oder zum Problem: Nach dem Kauf hat uns der Bauträger verkündet, dass der Abstellraum wegen der umfangreichen Wohnungstechnik bzw. dem Heizungswasserschacht nochmal mehr geschrumpft ist. Der ohnehin schon super kleine HWR ist auf 1.4 m² geschrumpft. Dort ist der Anschluss für die Waschmaschine vorgesehen. Der Trockner könnte auf die WaMa gestellt werden. Der Raum verfügt über einen feuchtigkeitsgeführten Abzug. Einen Waschraum gibt es im Haus nicht.
    Wir würden es gerne vermeiden den HWR mit WaMa und Trockner zu nahezu 100% zu füllen. Daher haben wir schon verschiedene Grundrissanpassungen in den beiden Bädern durchgespielt, um die WaMa in einem der beiden Bäder unterzubringen.

    Letztlich waren aber alle Grundrissversionen mit WaMa in einem der Bäder relativ großer Murks.
    Daher kam meiner Frau die zündende Idee, den HWR durch Verschieben der Trockenbauwand in Richtung des innenliegenden Duschbads zu vergrößern. Die Variante klaut dem Duschbad knapp 30 cm in der Breite. Dafür passen dann aber WaMa und immerhin noch ein halbwegs vernünftiges Regal in den HWR. Das hätte v.a. den Vorteil, dass die WaMa zusammen mit Trockner nicht als "Hochhaus" in einem der Bäder stehen muss.

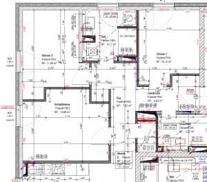
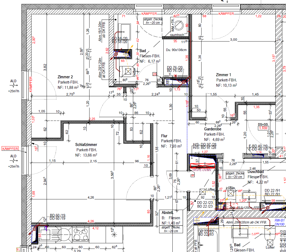
    Zur Verdeutlichung habe ich euch mal den originalen Grundriss von Bad und HWR und den amateurhaft angepassten Grundriss angehängt.

    Originalgrundriss vs. angepasster Grundriss:
    Grundriss_Bad_Original.png Grundriss_Bad_Variante.png

    In dem Grundriss scheint folgendes Fix zu sein:
    - Der Abfluss sowie die Abluft vom Bad sind im Versorgungsschacht in der rechten unteren Ecke.
    - Das Abluftrohr für den HWR ist in dem quadratischen Schacht neben dem HWR.
    - Die Badtür kann nicht beliebig nach rechts geschoben werden, da hier ein Elektroinstallationsschacht verläuft.

    In dem geänderten Grundriss haben wir "drübergemalt", damit man den Vergleich behält. Wundert euch also bitte nicht über die ursprünglichen Bemaßungen. Folgendes haben wir "so maßstabsgetreu wie möglich" geändert:
    - Die Wand vom HWR rutscht knapp 30 cm ins Bad hinein.
    - Die Tür des Bads wird gleichzeitig etwas verschoben.
    - Die Vorwand, an der ursprünglich WC und Waschbecken montiert waren, verliert an Tiefe, um Platz für die Dusche zu machen (s.u.).
    - Die Sanitärinstallationen wandern alle fröhlich durch den Raum und finden einen neuen Platz.
    => Für die Montage von WC und Waschbecken haben wir eine 22 cm tiefe Vorwand vorgesehen.
    - Die Dusche wird insgesamt kleiner (max. 90x90 cm); muss aber auch nicht größer, da es nicht unser Hauptbad ist. Sie wird von einer ca. 16 cm tiefen Vorwand angeschlossen.
    - Die beiden Installationsschächte wurden nicht geändert.

    Nun zu den eigentlichen Fragestellungen:
    1. Denkt ihr, dass die Ausführung des Bads, so wie gezeichnet, umgeändert werden kann?
    Haben wir etwas grundlegendes übersehen?
    2. Konkret stellen wir uns die Frage, ob die Dusche in der geänderten Variante eine Duschtasse benötigt oder ebenerdig gefliest bleiben kann. Wir sehen das Problem im notwendigen Gefälle. Denkt ihr, dass man einen bodentiefen Abfluss über die Vorwand so anbinden kann, dass das Gefälle zum Abflussschacht noch ausreicht?
    Der Abstand zw. Mitte der Dusche bis zum Abfluss rechts beträgt ca. 105 cm.

    Vielleicht noch kurz dazu, warum wir das nicht mit dem Bauträger besprechen: Werden wir, sobald wir ein bisschen mehr Input haben, dass der Plan aufgehen kann. ;)

    Ich freue mich über eure Rückmeldung! :)

    Schöne Grüße
    PapaBear4711
     
  2. #2 simon84, 28.12.2021
    simon84

    simon84
    Moderator

    Dabei seit:
    11.11.2012
    Beiträge:
    23.288
    Zustimmungen:
    6.920
    Beruf:
    Schrauber
    Ort:
    Muenchen
    Leider ist der gesamte Grundriss nicht da. Das wäre super.
    Ich würde immer versuchen die Kalt, Warm und Abwasserleitungen zum Treppenhaus oder Aussenwand hin zu legen (nicht zu den Schlafräumen)
     
  3. #3 PapaBear4711, 28.12.2021
    PapaBear4711

    PapaBear4711

    Dabei seit:
    28.12.2021
    Beiträge:
    44
    Zustimmungen:
    1
    Hallo @simon84, Grundriss habe ich angehängt.
    upload_2021-12-28_17-5-13.png
    Bei dem hier modifizierten innenliegenden Duschbad gibt's wegen den Versorgungsleitungen keine Probleme für die Wohnräume.

    Bei Kinderzimmer (Zimmer 2) ist das Tageslichtbad daneben. Aber immerhin verlaufen die Leitungen anscheinend nicht direkt in der massiven Wand.
    Das bringt hoffentlich was?

    Das Schlafzimmer teilt sich eine Wand mit der Küchenzeile. Soweit ich den Bauleiter verstanden habe, werden die Sanitäranschlüsse in der Küche als Aufputzinstallation ausgeführt. Bringt das für den Schallschutz was?

    Schöne Grüße
    PapaBear4711
     
  4. #4 Fabian Weber, 28.12.2021
    Fabian Weber

    Fabian Weber

    Dabei seit:
    03.04.2018
    Beiträge:
    16.340
    Zustimmungen:
    6.493
    Wenn Ihr die Wand verschiebt dann, lasst doch den Rest so und macht einfach die Dusche schmaler, da reichen auch locker 75cm, hab gerade erst gebaut.
     
    simon84 gefällt das.
  5. #5 simon84, 28.12.2021
    simon84

    simon84
    Moderator

    Dabei seit:
    11.11.2012
    Beiträge:
    23.288
    Zustimmungen:
    6.920
    Beruf:
    Schrauber
    Ort:
    Muenchen
    Persönlich finde ich WC und dusche Richtung Außenwand besser. Aber eine richtig gute Option gibt es bei einem Bad das zwischen zwei Schlafräumen liegt nicht.
    Besonders die Waschmaschine kann mega nerven.

    schellen/Befestigung der Rohre und entkoppelung besonders beachten, Wasser fliess Geräusche und Klack Klack vom Waschbecken Wasserhahn etc Nerven echt
     
  6. #6 PapaBear4711, 29.12.2021
    PapaBear4711

    PapaBear4711

    Dabei seit:
    28.12.2021
    Beiträge:
    44
    Zustimmungen:
    1
    Coole Idee! Damit 75 cm übrig bleiben, können wir nicht ganz so verschieben wir geplant. Könnte aber ein Kompromiss sein.

    Ja, da bin ich bei dir. Ich bin auch kein Freund von benachbarten Wasserleitungen im Schlafzimmer. Ich hoffe aber, dass das durch die Vorwände ganz gut entkoppelt wird. Ich kenne das Problem primär daher, wenn die Sanitärinstallation direkt in/an einer massiven Wand hängt.

    Nochmal zurück zur eigentlichen Frage: Denkt ihr, dass der umgeplante Badgrundriss umsetzbar ist?
    Wie sieht's mit der bodentiefen Dusche und dem Abflussgefälle aus?
     
  7. #7 K a t j a, 29.12.2021
    K a t j a

    K a t j a

    Dabei seit:
    31.05.2019
    Beiträge:
    1.009
    Zustimmungen:
    582
    Ort:
    Leipziger Land
    Das WC finde ich so unglücklich angeordnet - man muss sich seitlich in die Ecke schieben, in der Hoffnung, dabei nicht über die Schüssel zu fallen. Nicht jeder hat Konfektionsgröße 38. Ich würde auch den Badgrundriss lieber so lassen und ein 50er Waschbecken und eine 80er Dusche verbauen. Das dürfte einiges an cm bringen.
    Darüber hinaus frag ich mal, wie wichtig die Dusche im GWC überhaupt ist? Vielleicht reicht auch nur WC und Handwaschbecken?
    Wäre es meins, würde ich vermutlich auf das GWC komplett verzichten und beide Räume zusammen zum HWR / Abstellraum umfunktionieren, weil viel zu wenig Abstellfläche. Allerdings sieht man nur die halbe Wohnung - möglicherweise ist noch irgendwo eine Speisekammer versteckt - wer weiß.
     
  8. #8 K a t j a, 29.12.2021
    K a t j a

    K a t j a

    Dabei seit:
    31.05.2019
    Beiträge:
    1.009
    Zustimmungen:
    582
    Ort:
    Leipziger Land
    Ansonsten frag doch mal, ob der HKV auf die andere Seite kann:
    bad.jpg
     
  9. #9 PapaBear4711, 29.12.2021
    PapaBear4711

    PapaBear4711

    Dabei seit:
    28.12.2021
    Beiträge:
    44
    Zustimmungen:
    1
    Vielen Dank für die tollen Vorschläge! Ich sitze auch gerade vor dem Plan. Ich versuche, die Anmerkungen von dir umzusetzen. Es gibt jedoch leider ein paar Konstanten, die deinen Plan erschweren, bzw. vlt sogar unmöglich machen. Die Tür vom GWC kann leider nur um ca. 20cm nach rechts verschoben werden und ist im abgeänderten Plan von mir bereits maximal verschoben. Dort ist ein Kabelkanal in der Wand, der ein weiteres Verschieben nach rechts unmöglich macht. Da die Wohnung in einem mehretagigen Haus ist, können wir den HKV leider auch nicht verschieben. Das und die zwei Schächte sind leider Vorgaben, an denen wir nicht rütteln können, da sie bei allen Wohnungen von oben bis unten an der gleichen Stelle sein müssen. Es ist wirklich schwer, eine geeignete Lösung zu finden mit diesen Konstanten... :( ABer ich bin sehr dankbar für den Input und knobele noch ein wenig weiter ;), vlt fällt mir ja doch noch eine Möglichkeit ein...
     
  10. #10 PapaBear4711, 29.12.2021
    PapaBear4711

    PapaBear4711

    Dabei seit:
    28.12.2021
    Beiträge:
    44
    Zustimmungen:
    1
    Die Idee, alles nebeneinander zu lassen, finde ich auch sehr interessant. Leider ist das platztechnisch knapp. Auf dem Ursprungsplan ist bereits ein 50cm Waschbecken eingezeichnet... Man könnte es so anordnen: 20cm Abstand zur Wand - Toilette - 20cm Abstand zum Waschbecken - 50cm Waschbecken - 10cm Abstand zur Dusche - 80cm Dusche - und da sind leider noch keine Unschärfen beim Wandaufbau drinnen und kein Handtuchhalter. Findet ihr das besser?
    Vor unserer jetzigen Gästetoilette haben wir vor der Toilette bis zur Wand sogar weniger Platz zum Hinsetzen als bei dem jetzigen Plan. Daher dachten wir, das sei so okay. Natürlich ist es nicht so schön und man fühlt sich recht eingeengt. Wir hätten in der neuen Wohnung knapp 10cm mehr als jetzt und bisher ist noch keiner gestürzt beim Gang zur Toilette. Allerdings fanden aufgrund von Corona auch noch keine Feiern in der Wohnung statt, bei denen die Balancierfähigkeit unter Alkohol auf der Fläche vor der Toilette getestet worden wäre. ;)
     
  11. #11 PapaBear4711, 29.12.2021
    PapaBear4711

    PapaBear4711

    Dabei seit:
    28.12.2021
    Beiträge:
    44
    Zustimmungen:
    1
    Ja, das ist ein guter Aspekt. Wir haben eine kleine Tochter, vielleicht wird noch ein weiteres Kind folgen und wir hätten das GWC dann vielleicht als "Kinderbad" genutzt. Aber natürlich, das ist ein Luxus und wir werden noch mal abwägen, was für uns wichtiger ist - das "Kinderbad" oder der HWR.
     
  12. #12 K a t j a, 29.12.2021
    K a t j a

    K a t j a

    Dabei seit:
    31.05.2019
    Beiträge:
    1.009
    Zustimmungen:
    582
    Ort:
    Leipziger Land
    Ah, sorry, den hatte ich nicht gesehen.
    Wenn das so ist, würde ich den Plan vermutlich so lassen, wie ursprünglich geplant und die Wama ins Bad stellen. Allerdings würde ich die Ecken im SZ raus machen und die Wand dort gerade ziehen. Die Garderobennische würde ich auf's Maximum verbreitern, so dass gerade noch die Tür ins Zimmer 1 hinpasst. Den Technikraum würde ich nur als Abstellkammer nutzen.
    Wenn das GWC verzichtbar ist, würde ich auf jeden Fall den Raum komplett als HWR umnutzen.
     
Thema:

Bad Grundriss auf den Kopf gestellt - klappt das?

Die Seite wird geladen...

Bad Grundriss auf den Kopf gestellt - klappt das? - Ähnliche Themen

  1. Feedback zu Grundriss EFH Nordhang

    Feedback zu Grundriss EFH Nordhang: Hallo zusammen, nachdem unser erster Planungsanlauf mit einem Architekten im letzten Jahr leider komplett gescheitert ist, haben wir nun einen...
  2. Grundriss Bewertung Architektenhaus

    Grundriss Bewertung Architektenhaus: Hallo zusammen, wir wären über euren Input sehr dankbar. Was kann man verbessern? Was würdet ihr ändern? 1. Wir sind: Familie mit einem Kind...
  3. Hilfe Grundriss Untergeschoss

    Hilfe Grundriss Untergeschoss: Ich benötige etwas Hilfe beim Grundriss für das Untergeschoss. Ich würde gerne die Eingangstür nach Süden legen, da dort die Straße ist. Außerdem...
  4. Neubau – Grundriss, Firstrichtung und Vorgehen

    Neubau – Grundriss, Firstrichtung und Vorgehen: Hallo zusammen, wir sind noch ganz am Anfang unseres Bauprojekts: das Grundstück steht fest (muss noch geteilt und umgeschrieben werden,...
  5. Grundriss EFH 150m2 (Hang, Souterrain, ELW) – Feedback zu Effizienz & Raumaufteilung

    Grundriss EFH 150m2 (Hang, Souterrain, ELW) – Feedback zu Effizienz & Raumaufteilung: Hallo liebe Bauexperten, wir planen ein Eigenheim mit ELW in Hanglage und haben uns schon zahlreiche Gedanken gemacht. Ich möchte die Chancen, die...