Badplanung (Bestand) - Verbesserungsvorschläge

Diskutiere Badplanung (Bestand) - Verbesserungsvorschläge im Sanitär Forum im Bereich Haustechnik; Hallo zusammen, wir denken über die Badsanierung nach und wünschen uns Meinungen und Verbesserungsvorschläge. Der Bungalow ist aus dem BJ1980 und...

  1. #1 Dr Kralle, 08.10.2024
    Dr Kralle

    Dr Kralle

    Dabei seit:
    28.08.2024
    Beiträge:
    18
    Zustimmungen:
    0
    Ort:
    Raum Hannover
    Hallo zusammen,

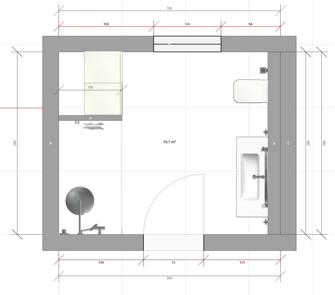
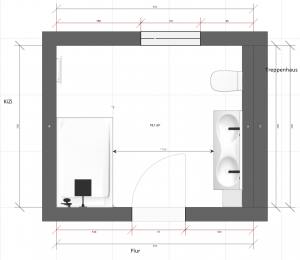
    wir denken über die Badsanierung nach und wünschen uns Meinungen und Verbesserungsvorschläge. Der Bungalow ist aus dem BJ1980 und aktuell noch nicht von uns bezogen. Die Freiheitsgrade sind recht hoch, da ein neuer Estrich eingebracht wird. Aktuell befindet sich in jeder Ecke ein Sanitärobjekt (kleine Dusche, Eckbadewanne, Toilette, Waschbecken). Die Toilette muss allerdings wieder oben rechts platziert werden!

    Meine Dame wünscht sich eine Badewanne. Die Badewanne soll es geben, sofern die Kompromisse nicht zu groß werden. Wichtiger ist uns eine schöne Dusche, die täglich benutzt wird. Außerdem soll nicht zu viel Schall ins Kinderzimmer (im Plan links) eingebracht werden.

    Variante 1 (ohne Badewanne) ist sehr aufgeräumt und barrierearm. Vermutlich nicht zu viel Schall, allerdings kneift es bei einer offenen Tür. Der Waschtisch neben dem WC ist so "naja".

    Variante 2 (mit Badewanne) ist uns fast zu eng. Eine 90er-Dusche möchte ich in der dunklen Nische aber auch ungern.

    Über Tipps würden wir uns freuen. Besten Dank.

    Bad_v1.png Bad_v2.png
     
  2. artibi

    artibi

    Dabei seit:
    08.02.2014
    Beiträge:
    1.396
    Zustimmungen:
    511
    Beruf:
    ITler
    Ort:
    Ludwigsburg
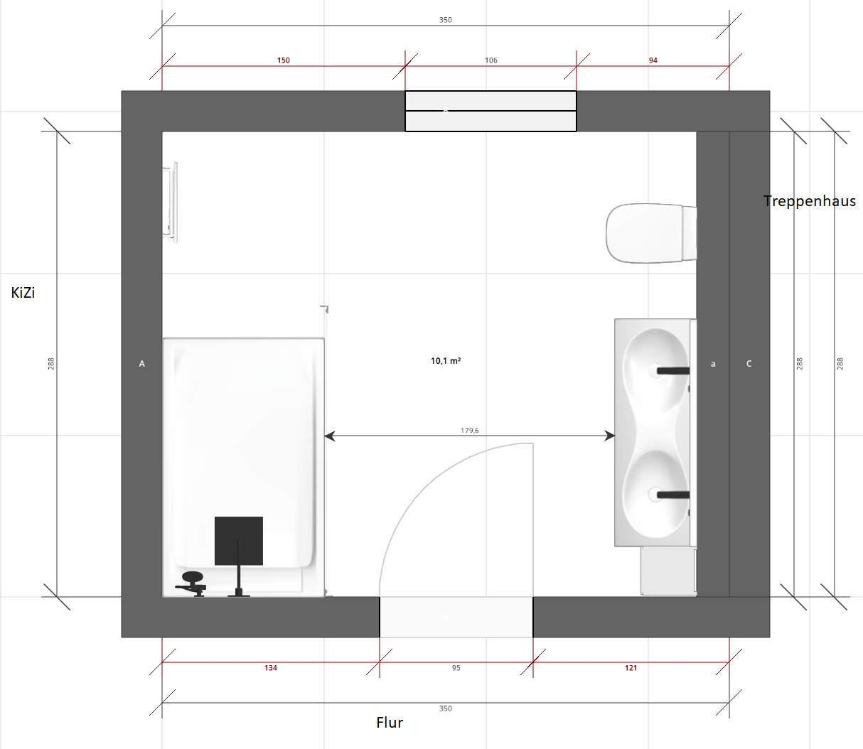
    Warum muss die Toilette oben rechts platziert werden?

    Die Dusche um 90 Grad drehen und den Waschtisch dann an die linke Wand machen?
     
  3. #3 Dr Kralle, 08.10.2024
    Dr Kralle

    Dr Kralle

    Dabei seit:
    28.08.2024
    Beiträge:
    18
    Zustimmungen:
    0
    Ort:
    Raum Hannover
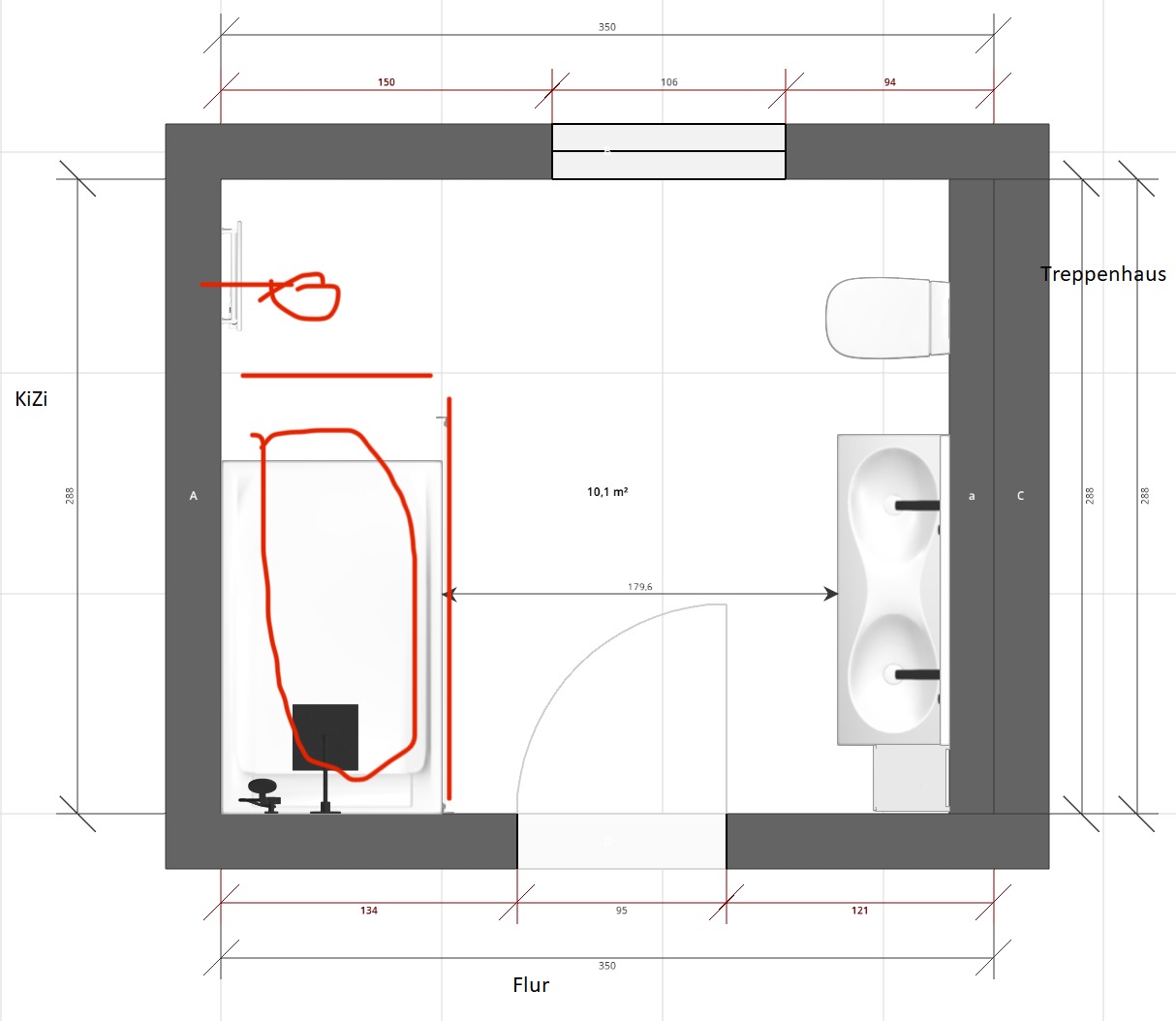
    Dann sind die Toiletten (Keller; EG) übereinander an einem Fallrohr. Geht vermutlich an anders, aber das habe ich als Bedingung hingenommen.

    Deine Idee haben wir sogar schon durchgespielt. Der Vorschlag hat viel gutes. Der Handtuchheizkörper ist aber auf der anderen Seite des Raumes. Man wird vermutlich vor dem WC Wasserpfützen haben. Den Schall hat man dann auch in der Wand.

    Bad_v3.png
     
  4. #4 Fabian Weber, 08.10.2024
    Fabian Weber

    Fabian Weber

    Dabei seit:
    03.04.2018
    Beiträge:
    16.306
    Zustimmungen:
    6.470
    IMG_1499.jpeg Hier mein Vorschlag:
     
  5. artibi

    artibi

    Dabei seit:
    08.02.2014
    Beiträge:
    1.396
    Zustimmungen:
    511
    Beruf:
    ITler
    Ort:
    Ludwigsburg
    Bei einer Dusche mit 150cm hat man eigentlich kein Problem mit Wasser davor
     
  6. #6 GreatScott83, 09.10.2024
    GreatScott83

    GreatScott83

    Dabei seit:
    14.10.2023
    Beiträge:
    310
    Zustimmungen:
    154
    Beruf:
    Steuerzahler
    Ort:
    BW
    Den Vorschlag finde ich eigentlich ganz charmant, würde aber ein paar kleine Modifikationen vornehmen:
    - Anstatt der Standard 175er Wanne, nimmst hier eine Eck bzw. Trapezbadewanne. Die kannst du in der gesamten länge etwas kürzer machen, und die 121 cm Breite hinter der Türe besser ausnutzen ohne groß Liegefläche zu verlieren. Auch von Vorteil wäre, wenn du am WC eh ein Vorwandelement hast, kannst du theroretisch mit den Leitungen von dort raus Aufputz durch den Wannenträger gehen. Dann machst die Armaturen halt nicht an die Wand sondern auf die Wanne. Das spart Schlitzarbeiten.
    Googelst mal nach "Eckbadewanne Infinity", dass du dir Bildlich vorstellen kannst was ich meine. Muss natürlich nicht das Modell sein, aber sowas in der Art halt.

    Mit dem gewonnen Platz würde ich dann vor die Badewanne (Nordseite quasi auf deinem Bild) noch einen kleinen "Raumtrenner" einbauen zwischen Badewanne und Toilette, auch mit Trockenbau / WEDI-Platten. Gleiche Höhe wie das Vorwandelement. Da dann jeweils von Süden und von Norden eine Nische rein. Einmal für Badezubehör (Kinder? Badespielzeug?) und von der anderen Seite für z.B. Toilettenpapier, Feuchttücher etc.

    Auf der anderen Seite den Waschtisch, da würde ich mir, wenns um den Schall geht auch überlegen Vorwandelemente noch ran zu setzen, die dann Entkoppelt von der Wand sind. Bietet Möglichkeiten für zusätzliche Ablagefläche und reduziert die Schallübertragung. Kann man theoretisch an der Dusche auch machen (und dann auch z.B. Nischen rein), dann müsstest du aber vermutlich die Dusche nochmal etwas kürzen, weil sie sonst zu weit ins Fenster rein ragt. Öffnungsrichtung des Fensters noch beachten wenn du da Bündig ran gehst, dass es dir bei einem Windstoß nicht das Fenster aufdrückt und dir gegen die Glas-Duschwand demmelt.

    Mit den Waschtischen würde ich noch ein kleines Stückchen näher an die Dusche, dann hast du an der südlichen Wand noch ein bisschen Platz für z.B. ein Regal für Handtücher etc. alternativ, wenn du die Nischen neben der Toilette hast, kannst du auch ein Hängeregal über die Toilette hämmern für Handtücher etc.
     
  7. #7 driver55, 09.10.2024
    driver55

    driver55

    Dabei seit:
    22.02.2008
    Beiträge:
    6.869
    Zustimmungen:
    1.798
    Beruf:
    Dipl.-Ing.
    Ort:
    Pforzheim
    Generell: Schränke/Schränkchen/Ablagen/Box für schmutzige Wäsche… mit einplanen.
     
  8. #8 Dr Kralle, 09.10.2024
    Dr Kralle

    Dr Kralle

    Dabei seit:
    28.08.2024
    Beiträge:
    18
    Zustimmungen:
    0
    Ort:
    Raum Hannover
    Hier werde ich keinen elektrischen Heizkörper mehr setzen können.

    @GreatScott83 Besten Dank. Bei einer 150er Duschtasse brauche ich vermutlich eine Tür. Ich hoffe, dass das nicht zu blöd mit dem Fenster aussieht. Der Heizkörper ist vor dem Waschtisch einwenig verloren. Das schöne an der Idee ist, im hohen Alter kann ich leicht die Badewanne rauswerfen und habe Platz für Rollator oder Waschmaschine!

    Oder die Dusche kommt nach rechts und links kommt ein Waschtisch mit Schrankwand und Sitzbank ;)
     
  9. artibi

    artibi

    Dabei seit:
    08.02.2014
    Beiträge:
    1.396
    Zustimmungen:
    511
    Beruf:
    ITler
    Ort:
    Ludwigsburg
    Bei unserer Dusche mit 130cm ging das problemlos ohne Tür
     
  10. #10 Kriminelle, 09.10.2024
    Kriminelle

    Kriminelle

    Dabei seit:
    16.05.2013
    Beiträge:
    3.707
    Zustimmungen:
    2.046
    Beruf:
    .
    Ort:
    Niedersachsen
    Unten links eine asymmetrische Wanne (zb 90 x 160), die gibt es auch in tiefer. Hatten wir und man hat auch zu zweit sitzend Platz gehabt. Allein kann man besser entspannen. Oben links die Dusche. Da gibt es ja auch von/bis mit dem seitlichen Eingang bzw. gemauert oder mit Glas bzw. auch kombiniert.
     
  11. #11 GreatScott83, 09.10.2024
    GreatScott83

    GreatScott83

    Dabei seit:
    14.10.2023
    Beiträge:
    310
    Zustimmungen:
    154
    Beruf:
    Steuerzahler
    Ort:
    BW
    Ergänzend: Ich hätte dann gegenüber von der Toilettte eine Pendeltüre gemacht an die Dusche. Waschtisch etwas weiter an die Dusche ran und dann könntest links vom Waschtisch noch ein bisschen Platz für ein Regal / Schrank haben.
     
  12. #12 Dr Kralle, 09.10.2024
    Zuletzt bearbeitet: 09.10.2024
    Dr Kralle

    Dr Kralle

    Dabei seit:
    28.08.2024
    Beiträge:
    18
    Zustimmungen:
    0
    Ort:
    Raum Hannover
    Vielen Dank für die Vorschläge und Hinweise. Wir haben vieles in der Software ausprobiert. Häufig macht die fehlende Wand für einen Heizkörper Probleme oder Wege werden uns zu eng. Aktuell gefällt uns der Grundriss im Anhang - außer ihr seht noch Kritikpunkte.

    @driver55 hat den entscheidenden Hinweis gegeben und uns überzeugt. Wir möchten Raum für einen Einbau-Putz- und Wäscheschrank schaffen (links oben). Die Badewanne würde endgültig entfallen. Der elektrische Heizkörper wandert in die offene Duschkabine (Länge = 180 cm). Die Heizpatrone ist mit IP67 erhältlich. Das Kabel wird direkt in die Wand geführt.

    Glaubt ihr, da spielt der Elektriker mit? Man findet im Internet einige Fotos mit Heizkörpern in Duschnischen.

    Besten Dank.

    Bad_v4.png Bad_v4_vis.png
     
  13. #13 Kriminelle, 09.10.2024
    Kriminelle

    Kriminelle

    Dabei seit:
    16.05.2013
    Beiträge:
    3.707
    Zustimmungen:
    2.046
    Beruf:
    .
    Ort:
    Niedersachsen
    Wozu willst Du denn diesen Heizkörper? Den bieten Hausbaufirmen nur an, wenn die FBH für den kleinen Raum rechnerisch nicht ausreicht.
    Heizen tut er nicht wirklich, vor allem auch dann nicht, wenn Frottee die Stangen nach außen dämmen. Und ob man Lust hat, die Handtücher dort drei mal am Tag reinzufummeln, stelle ich mal in Frage.
     
  14. #14 Dr Kralle, 09.10.2024
    Dr Kralle

    Dr Kralle

    Dabei seit:
    28.08.2024
    Beiträge:
    18
    Zustimmungen:
    0
    Ort:
    Raum Hannover
    Als teuren Handtuchhalter :) Irgendwo müssen die Dinger halt hängen. Dann nehme ich gleich den Halter mit Funktion - am besten in Reichweite.
     
  15. #15 GreatScott83, 09.10.2024
    GreatScott83

    GreatScott83

    Dabei seit:
    14.10.2023
    Beiträge:
    310
    Zustimmungen:
    154
    Beruf:
    Steuerzahler
    Ort:
    BW
    Ich muss ja ehrlich gestehen... ich kenne diese elektrischen Handtuchheizkörper nicht, aber einen elektrischen Heizkörper in die Dusche zu hängen hat für mich ein bisschen was von Föhn in Badewanne.

    Klar ist es Geschmackssache. Aber ich hätte Stauraum hängend über der Badewanne und WC geschaffen.
     
  16. #16 Dr Kralle, 09.10.2024
    Dr Kralle

    Dr Kralle

    Dabei seit:
    28.08.2024
    Beiträge:
    18
    Zustimmungen:
    0
    Ort:
    Raum Hannover
    Dazu lasse ich mich mal beraten. Alternativ wird es der Elektrolüfter in der Übergangszeit.

    Sonst gefällt uns die sehr Optik gut. Der Schrank hilft uns und der Raum ist barrierearm.
     
Thema:

Badplanung (Bestand) - Verbesserungsvorschläge

Die Seite wird geladen...

Badplanung (Bestand) - Verbesserungsvorschläge - Ähnliche Themen

  1. Badplanung mangelhaft - Was ist noch akzeptabel?

    Badplanung mangelhaft - Was ist noch akzeptabel?: Hallo! Wir haben über eine renommierte Sanitärfirma unser Bad neu planen lassen und diese hat begonnen, zu sanieren. Das Bad ist in unserem...
  2. Badplanung

    Badplanung: Guten Abend zusammen! Ich habe in einen anderen Beitrag bereits gefragt, wie man am besten die KG-Rohre für die neue Badplanung verlegt. Nun...
  3. Badplanung - Was meint ihr?

    Badplanung - Was meint ihr?: Hi zusammen, ich bin gerade an meiner Badplanung und überlege, ob ich mit oder ohne Badewanne plane, also: a) Dusche, WC, Waschtisch,...
  4. Badplanung (Bestand) - Verbesserungsvorschläge

    Badplanung (Bestand) - Verbesserungsvorschläge: Hallo, ich möchte mich da Bitte mit einer Frage anhängen: Sind 6,5 m2 für ein Bad zu klein? Skizze siehe Anhang! Nur prov. Zeichnung. Danke für...
  5. Badplanung im Bestand - Ideen? Verbesserungen?

    Badplanung im Bestand - Ideen? Verbesserungen?: Moin Moin, wir haben bei unsere Haussanierung einen Grundriss erhalten von der Planerin, (diese wurde nur für die groben Grundrisse und den...