Badplanung

Diskutiere Badplanung im Sanitär Forum im Bereich Haustechnik; Guten Abend zusammen! Ich habe in einen anderen Beitrag bereits gefragt, wie man am besten die KG-Rohre für die neue Badplanung verlegt. Nun...

  1. SidM

    SidM

    Dabei seit:
    27.04.2025
    Beiträge:
    9
    Zustimmungen:
    0
    Guten Abend zusammen!

    Ich habe in einen anderen Beitrag bereits gefragt, wie man am besten die KG-Rohre für die neue Badplanung verlegt.
    Nun würde ich gerne mal euere Meinung und Vorschläge für die angestrebte Badplanung hören.

    Das Badezimmer welches entstehen soll, hat eine Größe von 10,3m² und befindet sich im Keller.
    Angestrebt ist ein WC, Badewanne, Bodengleiche Dusche und Doppelwaschtisch.

    Ich habe den Grundriss des Gebäudes mit Ashampoo 3D CAD Architecture 11 gezeichnet, welches ich aber für die Badplanung als ungeeignet empfinde.
    Ich habe mich jetzt einmal bei Palette CAD und ViSoft Premium registriert in der Hoffnung dort für 14 Tage ein Testzeitraum zu bekommen um damit besser Planen zu können.

    Für den Anfang habe ich mich mal mit den Badplaner von Geberit versucht um einen ersten Visuellen Eindruck zu erhalten.
    Die einzige Position die vorgegeben ist, ist das WC in der rechten unteren Ecke, da in dieser Ecke das Fallrohr vom darüber liegenden Gäste WC ankommt.

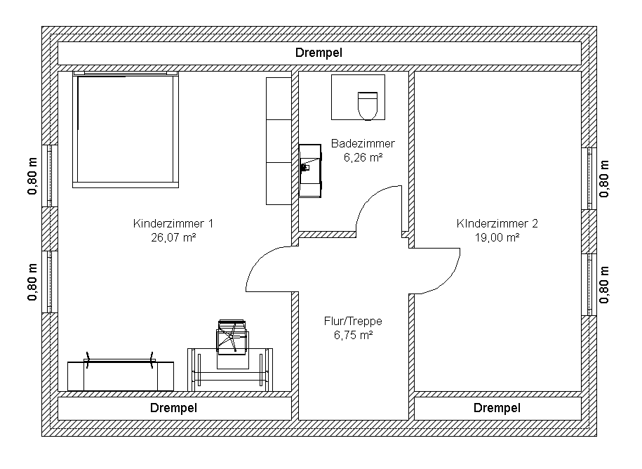
    Außer den Bad im Keller ist bereits wie erwähnt, ein Gäste WC im EG vorhanden welches ebenfalls neu gemacht wird. Ein weiteres Badezimmer soll im OG zwischen den beiden Kinderzimmern entstehen.
    (Hierzu wurden bereits alle Zwischenwände entfernt und die neuen Räume werden mit Ständerwand neu errichtet)

    Das Bad im OG (ca. 6,26m²) soll ein WC, Dusche(alternativ Badewanne) und Waschtisch erhalten. Das Kinderzimmer 1 soll perspektifisch unser Schlafzimmer werden, wenn unsere Tochter später auszieht.
    Hier könnte man auch überlegen die Wand zum Bad später zu entfernen um ein offenes Badezimmer zu realiseren.


    Da wir aktuell die Qual der Wahl haben würden wir gerne mal ein paar Meinungen hören was Sinn macht und was nicht.

    Vielen Dank!
    Kellergrundriss.PNG
    Erdgeschoss.PNG
    Obergeschoss.PNG

    Unbenannt.PNG
    Unbenannt2.PNG
    Unbenannt3.PNG
     
  2. #2 Kriminelle, 04.05.2025
    Kriminelle

    Kriminelle

    Dabei seit:
    16.05.2013
    Beiträge:
    3.840
    Zustimmungen:
    2.163
    Beruf:
    .
    Ort:
    Niedersachsen
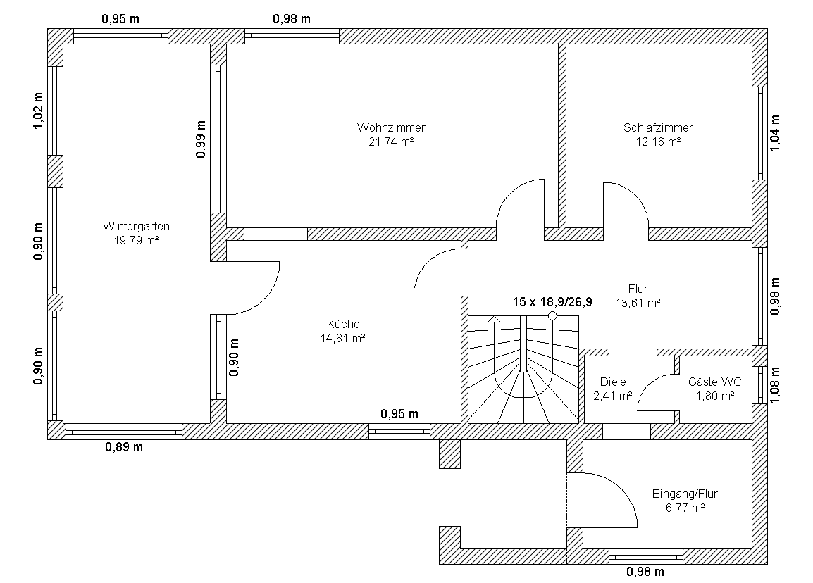
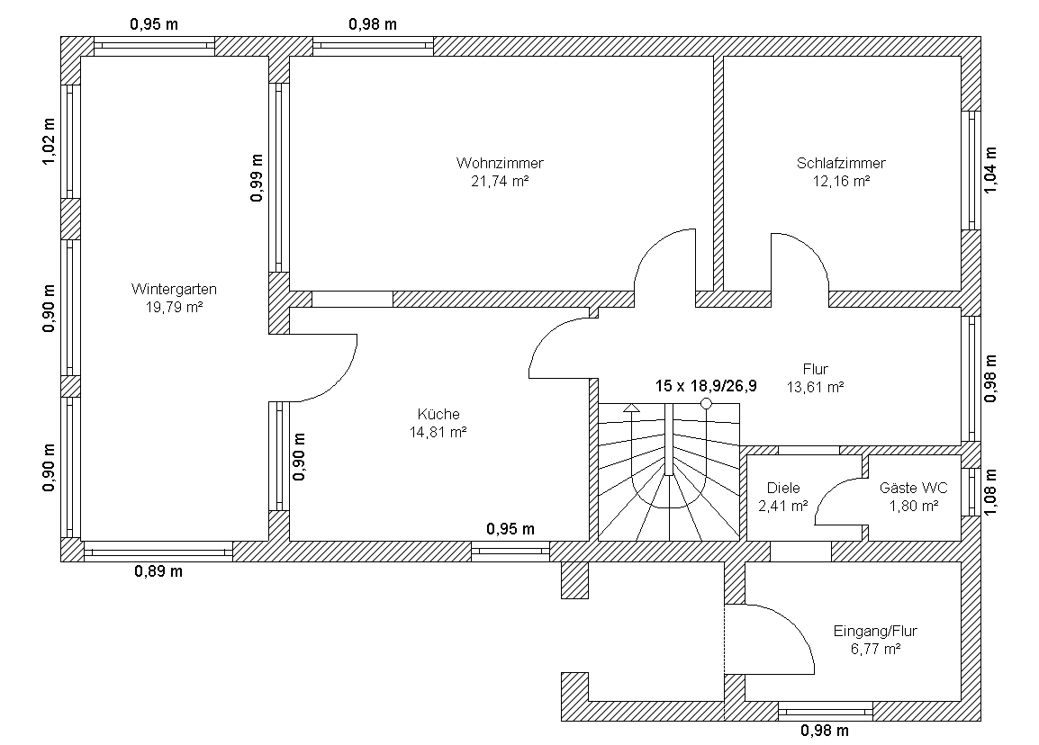
    Ich bin mir jetzt nicht sicher, ob ich den Plan richtig lese: ihr wollt Euer Elternbad in den Keller verlegen, dafür quasi morgens und abends Treppe in den Keller gehen. Aber Ihr habt im EG einen Flur, eine Diele sowie einen weiteren Flur mit insgesamt annähernd 22qm, wovon man eigentlich gut ein Bad, zumindest ein Duschbad abteilen könnte. Liegt es da nicht nahe, im EG das Bad zu planen, im Keller nur das Gäste-WC?
    Zur angedachten Planung: es ist nicht ratsam, den Duschaustritt vor die Tür zu planen. Außerdem: wozu ist denn hier die Schamwand? Eine Schamwand macht nur Sinn, wenn zwei Generationen bzw. Teenager ihre Intimsphäre wahren wollen. Bei Ehepartnern ist sie sinnfrei und trägt, wie man hier sieht, nicht zu einer angemessenen Optik bei.
    Ich halte eine Platzierung der Toi an der Außenwand grundsätzlich immer für sinnvoll, allerdings sollte auch die Platzierung der Dusche wohl überlegt werden. Ich würde mich da auch nicht unbedingt auf die klassisch einfache Form der WalkIn-Dusche festlegen, sondern etwas offener sein.
    Mir fehlen hier ansonsten die Raummaße sowie die Möblierungs-Maße sowie eine Planung von oben. Man braucht hier mit Sicherheit auch eine Vorwand für den Waschtisch. Allerdings bin ich ja bei „Bad im EG“ als Vorschlag.
     
  3. #3 chris84, 05.05.2025
    chris84

    chris84

    Dabei seit:
    15.08.2023
    Beiträge:
    1.850
    Zustimmungen:
    1.093
    Ein Bad mit 2 Türen klingt auch nicht unbedingt sinnvoll würde ich mal sagen....
     
  4. #4 ichweisnix, 05.05.2025
    ichweisnix

    ichweisnix

    Dabei seit:
    21.11.2022
    Beiträge:
    1.925
    Zustimmungen:
    733
    Wieso? Bei mir hat das zweite Bad auch 2 Türen. So hat das Gästezimmer und das Büro einen eigenen Zugang.
     
  5. SidM

    SidM

    Dabei seit:
    27.04.2025
    Beiträge:
    9
    Zustimmungen:
    0
    Den Plan hast du richtig gelesen. Es ist aber so, dass unser Schlafzimmer in ca. 3-4 Jahren (je nachdem wie lange unsere Tochter bei uns bleiben möchte) ins OG wandert (Aus Kinderzimmer 1 wird Schlafzimmer). Vielleicht zieht sie aber auch schon eher aus, je nachdem wie lange der Umbau dauert, ihr Studium beendet, mit Freund zusammen zieht etc.

    Es gab die Überlegung das Gäste WC zum Flur/Eingang zu vergrößern, allerdings ist diese Wand die eigentliche Tragende Außenwand. Zudem würde der Eingangsbereich sehr klein werden, nicht mehr so viel Platz für Garderobe bieten und man könnte nicht mal eben mit 4 Personen rein ohne sich auf die Füße zu treten.

    Mit den Duschaustritt gebe ich dir Recht, aber zur Toilette wollte ich ihn nicht drehen, dadurch wird sie auch relativ kurz. In den Entwurf hat die Glastrennwand eine Länge von 150cm und ich dachte mir, dass dies ausreicht um das Wasser nicht bis zur Türe zu haben. Allerdings habe ich hier keine Erfahrung.
    Die Schamwand fand ich ganz gut um die Toilette ein wenig zu verstecken bzw. das man nicht gleich drauf blickt. Hier hätte ich außerdem Nischen eingebaut um auf der Seite der Badewanne Shampoo und auf der WC Seite Toilettenpapier unterzubringen. Allerdings würde es Optisch nur wirken wenn diese Bündig mit der Wanne abschließt oder zu mindestens noch eine kleine Ablage zwischen Wand und Wanne entstehen würde.


    Festgelegt haben wir uns nicht auf die WalkIn-Dusche, Duschwanne würden wir aber nicht präferieren. Was würde in den Raum noch Sinn machen?
    Ansonsten finde ich Bäder ganz schick die im Raum eine T-Wand als Abtrennung haben, wo dann in den hinteren Bereichen einmal Dusche und WC ist. Und vorne auf der langen Seite dann eine freistehende Badewanne Positioniert ist.
    Allerdings gibt das der Raum nicht her.

    Hier noch die Maße des Bades und der angrenzenden Waschküche. Die Möblierung ist nur als Beispiel zu sehen wie es aussehen könnte. Was es konkret für eine Badewanne, Waschtisch, Armaturen etc. wird ist noch nicht klar.

    Unbenannt.PNG
    Unbenannt2.PNG

    In der Waschküche soll am rechten Fenster die Waschmaschine als auch Trockner Platz finden.
    Der Zugang zur Waschküche soll vermutlich über eine Glasschiebetür auf der gleichen Seite erfolgen.

    Leider nicht anders Möglich. Das einzige was man machen könnte, wäre den Raum mit zum Bad zu integrieren. Hier gab es schon Vorschläge wie Sauna, oder Dusche hinten zu integrieren.
     
  6. #6 Kriminelle, 06.05.2025
    Kriminelle

    Kriminelle

    Dabei seit:
    16.05.2013
    Beiträge:
    3.840
    Zustimmungen:
    2.163
    Beruf:
    .
    Ort:
    Niedersachsen
    Aber gerade deshalb würde ich mir einen (teuren) Bad-Einbau im Keller sparen. Im EG hat man dann ja den Nutzen eines geräumigeren Bades, falls mal einer krank oder unpässlich wird

    Ich würde ein Duschbad, wenn man Optionen hat, nicht unbedingt im Schmutzbereich planen - insofern hat man ja hier den verschenkten Platz im „Innen“-Flur.

    Da man ja aus der Dusche mit nassen Füßen austritt, würde man den Bereich an der Tür befeuchten. Ich würde dort die Dusche nicht setzen, zumindest nicht mit einen Austritt an der Tür. Das wäre im Prinzip eine Fehlplanung, die dann ja auch keinen Spaß macht, die Dusche zu nutzen.
     
  7. #7 Kriminelle, 06.05.2025
    Kriminelle

    Kriminelle

    Dabei seit:
    16.05.2013
    Beiträge:
    3.840
    Zustimmungen:
    2.163
    Beruf:
    .
    Ort:
    Niedersachsen
    Ein sortiertes und strukturiertes Bad im EG könnte so aussehen:

    IMG_1658.jpeg
    IMG_1657.jpeg
     
  8. SidM

    SidM

    Dabei seit:
    27.04.2025
    Beiträge:
    9
    Zustimmungen:
    0
    @Kriminelle

    Vielen Dank für den Entwurf eines Bad im Erdgeschoss, sieht gut aus!

    Die kurze Seite ist aber maximal 1,80m lang. Wenn ich da noch mindestens 10cm für eine Trockenbauwand abziehe bleibt nicht mehr viel für eine Badewanne und wirkt dann vermutlich gequetscht.
    Außerdem ist es so, dass das Fenster im Flur gegen eine Balkon/Haustür ersetzt werden soll, um dann auf die später geplante Terasse zu kommen.

    Vielleicht wäre es ja besser, im Bad nur eine Badewanne und im Obergeschoss nur eine Dusche zu Planen, oder andersherum. Dann kann ich mir auch die Kosten für eine 2te Dusche sparen, denn braucht man wirklich 2 Duschen?
     
  9. #9 chris84, 08.05.2025
    chris84

    chris84

    Dabei seit:
    15.08.2023
    Beiträge:
    1.850
    Zustimmungen:
    1.093
    ich würde mir eher die Frage stellen, wann die Badewanne gebraucht wird. Wenn >2 Personen im Haus wohnen, ist davon auszugehen, dass die 2. Dusche deutlich häufiger genutzt wird, als die 1. Badewanne ;)
     
  10. SidM

    SidM

    Dabei seit:
    27.04.2025
    Beiträge:
    9
    Zustimmungen:
    0
    Die Frage ist durchaus berechtigt, aber eine Badewanne ist Plicht. Wir haben aktuell nur Miete auch nur ein Bad mit Badewanne mit aufgesetzter Duschtrennwand und das für 5 Personen. Deswegen sind 2 Bäder mit jeweils einer Duschmöglichkeit schon ein deutlicher Mehrwert.
     
Thema:

Badplanung

Die Seite wird geladen...

Badplanung - Ähnliche Themen

  1. Badplanung mangelhaft - Was ist noch akzeptabel?

    Badplanung mangelhaft - Was ist noch akzeptabel?: Hallo! Wir haben über eine renommierte Sanitärfirma unser Bad neu planen lassen und diese hat begonnen, zu sanieren. Das Bad ist in unserem...
  2. Badplanung - Was meint ihr?

    Badplanung - Was meint ihr?: Hi zusammen, ich bin gerade an meiner Badplanung und überlege, ob ich mit oder ohne Badewanne plane, also: a) Dusche, WC, Waschtisch,...
  3. Badplanung (Bestand) - Verbesserungsvorschläge

    Badplanung (Bestand) - Verbesserungsvorschläge: Hallo, ich möchte mich da Bitte mit einer Frage anhängen: Sind 6,5 m2 für ein Bad zu klein? Skizze siehe Anhang! Nur prov. Zeichnung. Danke für...
  4. Badplanung/ Wasserinstallation

    Badplanung/ Wasserinstallation: Hallo zusammen, wir sanieren unsere Bäder komplett neu. Haus ist aus 1986, bisher wurde noch nichts renoviert. Da wir vieles in Eigenregie machen,...
  5. Badplanung (Bestand) - Verbesserungsvorschläge

    Badplanung (Bestand) - Verbesserungsvorschläge: Hallo zusammen, wir denken über die Badsanierung nach und wünschen uns Meinungen und Verbesserungsvorschläge. Der Bungalow ist aus dem BJ1980 und...