Baufenster und 2,5 Meter zum Nachbar...

Diskutiere Baufenster und 2,5 Meter zum Nachbar... im Baugesuch, Baugenehmigung Forum im Bereich Rund um den Bau; Hallo zusammen, wir haben vor in Baden Württemberg ein Einfamilienhaus mit Anliegerwohnung zu bauen.Wollen in den nächsten Tagen das Baugesuch...

  1. #1 Petroula, 24.06.2018
    Petroula

    Petroula

    Dabei seit:
    24.06.2018
    Beiträge:
    7
    Zustimmungen:
    0
    Hallo zusammen,

    wir haben vor in Baden Württemberg ein Einfamilienhaus mit Anliegerwohnung zu bauen.Wollen in den nächsten Tagen das Baugesuch einreichen.
    Unser Architekt hat bei der Stadt angefragt ob das Baufenster überschritten werden darf, pauschal gab es die Aussage ein halber Meter ist ok.

    Zählen Balkone auch dazu?
    Den Vorderbau um 0,5 Meter zu kürzen wäre kein Problem.

    Das nächste Problem:
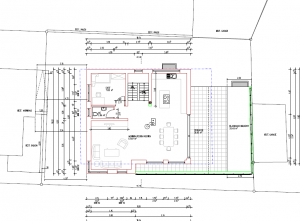
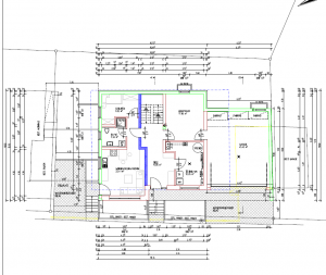
    Bei der Vermessung hat sich herausgestellt das der Balkon vom Nachbar ein paar Zentimeter in unser Grundstück reinragt.(von 2,5 Meter Abstand zur Grenze kann man hier nicht sprechen)

    Können wir das als Argument nehmen um

    a) die 2,5 Meter zum anderen Nachbar auch nicht einzuhalten, (Vergleichsfall, das sind wir von 2 Seiten eingeengt.)
    b) gibt es sonst noch Möglickeiten? (wichtige wäre uns nur das Geländer sollte Bündig mit der Garage abschließen und die ist leider genau an der Grenze.

    Für weitere Tips und Tricks wäre ich natürlich Dankbar..
    Vielen Dank
    Petroula
     

    Anhänge:

  2. #2 Andybaut, 24.06.2018
    Andybaut

    Andybaut

    Dabei seit:
    02.04.2015
    Beiträge:
    5.127
    Zustimmungen:
    329
    Beruf:
    Architekt
    Ort:
    Baden-Württemberg
    für Balkone gelten andere Regeln. Je nach Länge usw. ist dies anders zu werten.
    Steht alles in der LBO. Sprich deinen Planer darauf an.

    was kann der andere Nachbar dafür? Nichts.

    ansonsten ist das viel Text und viele Pläne. Aber so richtige verstehen tue ich das nicht.
    Ein paar Kommentare in den Plänen, was wo ist und was wo sein sollte wäre hilfreich.
     
  3. #3 Petroula, 24.06.2018
    Petroula

    Petroula

    Dabei seit:
    24.06.2018
    Beiträge:
    7
    Zustimmungen:
    0
    Vielen Dank für die schnelle Antwort, ich gehe morgen zur Stadt und wollte einfach noch ein paar Infos haben.

    a) die 2,5 Meter zum anderen Nachbar auch nicht einzuhalten, (Vergleichsfall, das sind wir von 2 Seiten eingeengt.)
    b) gibt es sonst noch Möglickeiten? (wichtige wäre uns nur das Geländer sollte Bündig mit der Garage abschließen und die ist leider genau an der Grenze.


    Bei der Frage a) habe ich gefragt ob ein Vergleichsfall möglich ist.
    b) ob es andere Möglichkeiten gibt, z.B. Befreiung/Genehmigung vom Nachbar....
     
  4. #4 simon84, 24.06.2018
    simon84

    simon84
    Moderator

    Dabei seit:
    11.11.2012
    Beiträge:
    23.247
    Zustimmungen:
    6.890
    Beruf:
    Schrauber
    Ort:
    Muenchen
    Ragt der Balkon wirklich in euer Grundstück rein ??? Oder verwechselt du das mit grenzabstand auf der Nachbarseite.

    Es gibt in Baurecht leider weder Verjährung noch gewohnheitsrecht/„ersitzen“ oder Gleichberechtigungsansprueche

    Eine Übernahme von abstandsflächen auf der Nachbarseite ist generell möglich mit Zustimmung des Nachbarn,auf eine Überschreitung des baufensters besteht kein Rechtsanspruch
     
  5. Dimeto

    Dimeto

    Dabei seit:
    22.07.2017
    Beiträge:
    1.635
    Zustimmungen:
    2.144
    Beruf:
    Vermessungsingenieur
    Ort:
    NRW
    Ja.
    Ich glaube nicht, dass das Bauamt sich darauf einlässt, da die Überschreitung sich über die gesamte Gebäudefront erstreckt. Erst recht nicht, wenn ihr den Plan mit 1m-Überschreitung einreicht. Aber die Einschätzungen können ja nur so gut sein, wie die Informationen und da wäre der Lageplan zum Bauantrag hilfreicher als der Vorabzug ohne geplantes Gebäude. Außerdem müsste man sehen, ob sich die Nachbarn an den B-Plan gehalten haben.
    Das ist Ansichtssache,30cm finde ich schon beeindruckend. Kaum zu glauben, dass es dazu keine Baulasten und /oder Grundbucheinträge gibt.
    Nein.
    Was meinst Du damit?
    Wird Euch keiner abnehmen, dass die Terrasse nur bis 2,5m Abstand zur Grenze genutzt wird, wenn das Geländer an der Grenze angebracht wird. Hier müsste der Nachbar einer Baulast zustimmen. Wobei ein großer Teil der Terrasse außerhalb des Baufensters liegt.
    Das wirst Du ja morgen erfahren. Die vom Bauamt haben mehr Informationen als Du uns hier geben kannst.
     
Thema: Baufenster und 2,5 Meter zum Nachbar...
Besucher kamen mit folgenden Suchen
  1. baufenster nachbar genehmigung

Die Seite wird geladen...

Baufenster und 2,5 Meter zum Nachbar... - Ähnliche Themen

  1. Baufenster und Grenzbebauung Neubaugebiet Bayern

    Baufenster und Grenzbebauung Neubaugebiet Bayern: Hallo Zusammen, wir planen aktuell den Bau eines Einfamilienhauses inkl. Doppelgarage auf einem Grundstück in einem Neubaugebiet in Bayern. Das...
  2. Abriss-Neubau gilt altes Baufenster oder BayBau-O

    Abriss-Neubau gilt altes Baufenster oder BayBau-O: Guten Abend zusammen! Ich benötige Ihre Hilfe bzgl Verständnis des Beamtendeutsch im Bebauungsplan. Wir haben bereits einen uns bekannten...
  3. Baufenster überschreiten

    Baufenster überschreiten: Guten Morgen zusammen, Da ich leider nicht anderweitig zu dem Thema fündig geworden bin, hoffe ich, dass mir evtl. hier jemand eine Frage...
  4. Abweichung GRZ/Baufenster - Zustimmung Nachbar erforderlich?

    Abweichung GRZ/Baufenster - Zustimmung Nachbar erforderlich?: Hallo zusammen, wir planen auf dem Familiengrundstück in Mecklenburg-Vorpommern mit qualifziertem B-Plan von 2004 ein weiteres Einfamilienhaus...
  5. Baufenster um mehrere Meter verlassen - genehmigungsfähig? Erfahrungen?

    Baufenster um mehrere Meter verlassen - genehmigungsfähig? Erfahrungen?: Hallo. Hat hier irgendwer, bevorzugt aus Brandenburg, schon mal gehört oder erlebt, daß in einem B-Plan-Gebiet ein Bau mit einer Abweichung von...