Baukosten individuelle Beton Garage+Carport

Diskutiere Baukosten individuelle Beton Garage+Carport im Baupreise Forum im Bereich Rund um den Bau; Hallo Zusammen, da ich gerade ein privates Bauprojekt habe und viel Umbaue hoffe ich hier ein paar Experten zu finden und mir ein paar...

  1. #1 Jay2024, 05.01.2024
    Jay2024

    Jay2024

    Dabei seit:
    05.01.2024
    Beiträge:
    17
    Zustimmungen:
    4
    Hallo Zusammen,

    da ich gerade ein privates Bauprojekt habe und viel Umbaue hoffe ich hier ein paar Experten zu finden und mir ein paar Erfahrungen, Ratschläge und Meinungen einholen zu können.

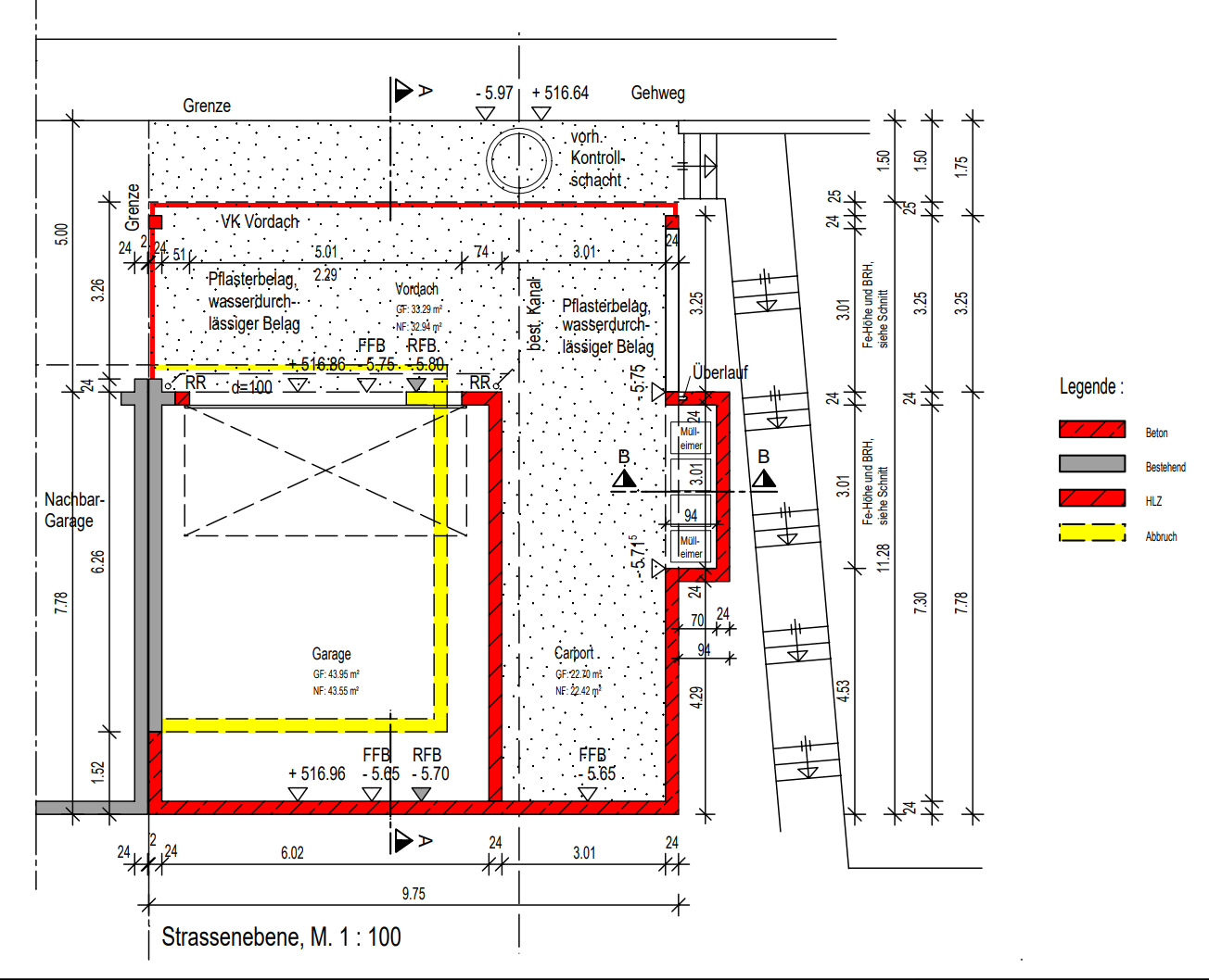
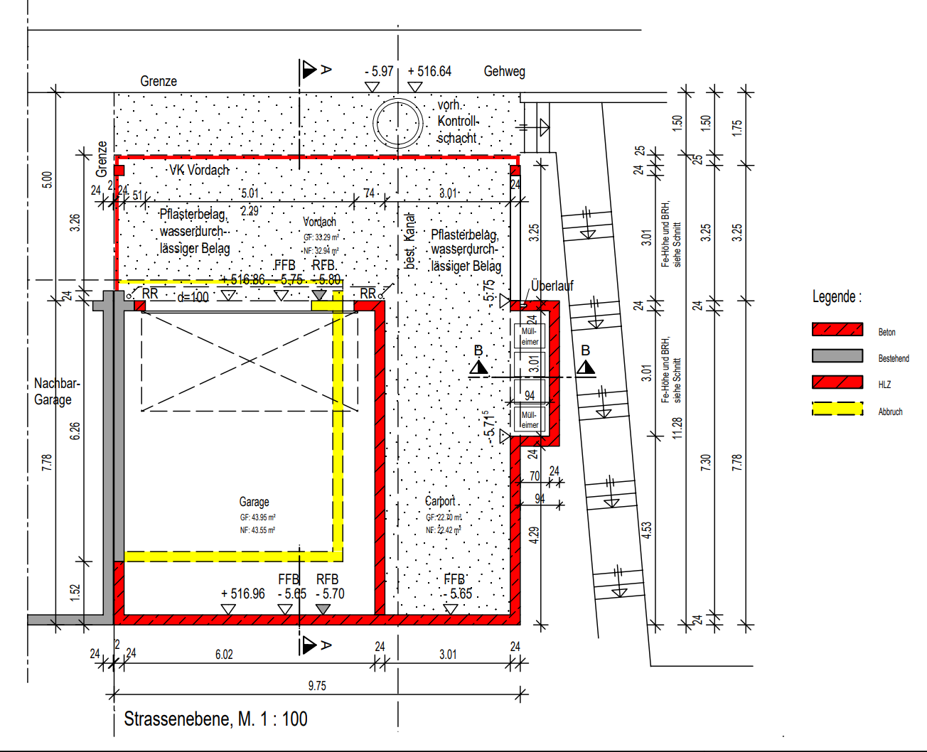
    Ein Thema ist aktuell die Garage inkl. Carport (sehr individuell) zu der ich gerne erfahren würde was ein Preis gerechtfertigt ist:

    Eckdaten Garage (s. auch Anlagen/Zeichnungen)
    Breite 6m
    Tiefe 7,3m
    lichte Höhe ca. 2,3m

    inkl. Carport
    Breite 9m
    Tiefe 11,3m

    Wie man sieht ist durch die Hanglage eine Betonwand notwendig, entsprechend würden sowohl die Wände Garage+Carport, Stützpfeiler als auch die Decke (Carport+Garage sind ein Betonguss) aus Beton erfolgen.


    Nun hatte ich mit dem Architekt mal letztes Jahr das ganze ausschreiben lassen und war von zwei Firmen recht erschrocken was allein der Rohbau der Garage+Carport aus Beton (ohne Putz, ohne Elektrik, ohne Putz, ohne Flaschnerdach) kosten soll:

    aktuelle Kosten (bei beiden Firmen fast gleich):

    - 4.0000 € Baustelleneinrichtung (Schuttcontainer etc.)
    - 12.000 € Erdarbeiten (Baugrubenaushub, Ausbau Treppenaufgang, Flächenaufschüttung, Verfüllung, Abfuhr Aushub, etc. etc)
    - 1.500 € Entwässerungskanalarbeiten
    - 36.000 € Betonarbeiten (Kies, Fundamentbeton, Umfassungswand 24cm, Stützen, Decke, etc)
    - 4.000 € Maurerarbeiten (Vormauerung, Ziegelmauerwerk, Abdichtung etc.)
    - 800€ Taglohnarbeiten

    In Summe komme ich damit auf 54.304 € + 19% = ca. 64.600€ ohne Tor, Tür, Putz und richtiges Dach


    Das halte ich schon für etwas hoch (klar ist das keine Fertiggarage)

    Wie wäre die Einschätzung der Kosten aus Sicht der Forenexperten?

    Vielen Dank vorab für eure Antworten.
     

    Anhänge:

  2. #2 nordanney, 05.01.2024
    nordanney

    nordanney

    Dabei seit:
    15.09.2021
    Beiträge:
    6.414
    Zustimmungen:
    3.721
    Beruf:
    Finanzierer/Investor/Bau- und Sanierungslaie
    Ort:
    Niederrhein
    Kosten passen - hast ja sogar von zwei Unternehmen annähernd identische Preise vorliegen.
     
  3. #3 Fridolin77, 05.01.2024
    Fridolin77

    Fridolin77

    Dabei seit:
    29.04.2023
    Beiträge:
    332
    Zustimmungen:
    114
    Jo das passt, ich hab 2020 21.000 EUR für Erdarbeiten, Bodenplatte und eine 6x7m KS-Garage 17,5cm gelöhnt. Die war aber dann wohl deutlich weniger aufwendig als deine Problemstellung.

    Dach ist in Holz + Fassade (Rhombusleisten Lärche) + Tor in Eigenleistung waren dann am Ende 30k und viel Arbeit.
     
  4. #4 Steffi445, 19.01.2024
    Steffi445

    Steffi445

    Dabei seit:
    19.01.2024
    Beiträge:
    23
    Zustimmungen:
    13
    Ort:
    Aachen
    Basierend auf den von dir genannten Kosten und der Beschreibung des Projekts, scheinen die Preise zwar hoch, aber nicht ungewöhnlich für ein derart spezifisches und individuelles Bauvorhaben, insbesondere bei Berücksichtigung der Hanglage und der umfangreichen Betonarbeiten. Solche Faktoren erhöhen oft die Komplexität und damit die Kosten. Es ist jedoch immer empfehlenswert, Vergleichsangebote einzuholen, um sicherzustellen, dass du das beste Preis-Leistungs-Verhältnis erhältst. Bedenke auch, dass Investitionen in Qualität und individuelle Anpassungen langfristig oft von Vorteil sind, besonders bei einem so wichtigen Bauelement wie einer Garage mit Carport.
    Basierend auf den von dir genannten Kosten und der Beschreibung des Projekts, scheinen die Preise zwar hoch, aber nicht ungewöhnlich für ein derart spezifisches und individuelles Bauvorhaben, insbesondere bei Berücksichtigung der Hanglage und der umfangreichen Betonarbeiten. Solche Faktoren erhöhen oft die Komplexität und damit die Kosten. Es ist jedoch immer empfehlenswert, Vergleichsangebote einzuholen, um sicherzustellen, dass du das beste Preis-Leistungs-Verhältnis erhältst. Bedenke auch, dass Investitionen in Qualität und individuelle Anpassungen langfristig oft von Vorteil sind, besonders bei einem so wichtigen Bauelement wie einer Garage mit Carport.
     
Thema:

Baukosten individuelle Beton Garage+Carport

Die Seite wird geladen...

Baukosten individuelle Beton Garage+Carport - Ähnliche Themen

  1. Baukosten pro qm

    Baukosten pro qm: Hallo Zusammen, ich möchte nur fragen, wie hoch der durchschnittliche Baupreis pro qm momentan beträgt. Es muss nicht sehr genau sein, kann man...
  2. Aktuelle Baukosten (MFH)

    Aktuelle Baukosten (MFH): Hallo zusammen. Derzeit besteht bei uns die Überlegung in einer Baugemeinschaft ein MFH mit 6 Parteien errichten zu lassen. Jede Einheit mit 4...
  3. Baukosten aktuell

    Baukosten aktuell: Guten Tag zusammen, ich bin junger Architekt und erarbeite aktuell die LP2 für einen großen Anbau. Aus dem Buch "Der junge Architekt- Grundlagen...
  4. Baukosten EFH - Holz vs. Massiv?

    Baukosten EFH - Holz vs. Massiv?: Guten Abend zusammen, wir sind sehr spontan zu einem potenziellen Grundstück gekommen und deshal schießen uns gerade hunderte Fragen durch den...
  5. Baukosten pro cbm

    Baukosten pro cbm: Hallo, ein Architekt erstellt gerade den Entwurf für unseren Neubau in Nordbayern im Speckgürtel einer kleinen Großstadt. Das Grundstück...