Bebauung in Abstandsflächen LBO BW

Diskutiere Bebauung in Abstandsflächen LBO BW im Baugesuch, Baugenehmigung Forum im Bereich Rund um den Bau; Hallo zusammen, für den Neubau eines EFH mit Garage benötige ich eine Expertise bzgl Abstandsflächen. Laut LBO Paragraf 6 sind Garagen in...

  1. #1 DavidRittler, 10.01.2024
    DavidRittler

    DavidRittler

    Dabei seit:
    10.01.2024
    Beiträge:
    2
    Zustimmungen:
    0
    Hallo zusammen,

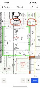
    für den Neubau eines EFH mit Garage benötige ich eine Expertise bzgl Abstandsflächen. Laut LBO Paragraf 6 sind Garagen in Abstandsflächen möglich, wenn die Wandfläche (jede einzelne) der Garage 25qm nicht überschreitet. Wird ein Dachvorsprung (Flachdach) mit einbezogen ? Im Anhang der derzeitige Plan - der Vorsprung mit 1,40m würde im Zweifelsfall zu einer Überschreitung der Fläche führen - ohne diesen, also nur die tatsächliche Wand, nicht.
     

    Anhänge:

  2. #2 Scoundrel, 10.01.2024
    Scoundrel

    Scoundrel

    Dabei seit:
    02.11.2015
    Beiträge:
    82
    Zustimmungen:
    4
    Beruf:
    Architect
    Ort:
    Derby UK
    Fuer den Bauantrag brauchst du einen Lageplan der alle Abstandsflaechen ausweist.
    Der Vermesser / oder dein bauvorlageberchtigter Planer sollten da weiterhelfen koennen. :D

    Kleiner Tipp. Paragraf 6 bezieht sich in dem Fall darauf, wann keine Abstandsflaechen erforderlich sind.
    Es ist nur die Wandhoehe und Wandflaeche massgebend, die auf der Grenze steht. In deinem Fall ist die Grenze links?
     
    DavidRittler gefällt das.
  3. #3 DavidRittler, 10.01.2024
    DavidRittler

    DavidRittler

    Dabei seit:
    10.01.2024
    Beiträge:
    2
    Zustimmungen:
    0
    Vielen Dank für die schnelle Antwort. Mein Architekt bzw. Vermesser sind sich uneinig ob das Vordach zählt oder nicht.
    Genau die Grenze ist links - jedoch hat das Wohnhaus rechts unten (neues EFH) auch Abstandsflächen in der die Garage platziert ist.
     

    Anhänge:

Thema:

Bebauung in Abstandsflächen LBO BW

Die Seite wird geladen...

Bebauung in Abstandsflächen LBO BW - Ähnliche Themen

  1. Hanggrundstück bebauen

    Hanggrundstück bebauen: Hallo liebes Bauexpertenforum, nachdem ich bereits einige Beiträge mit Interesse gelesen habe, möchte ich euch gerne um eure Einschätzung zu...
  2. Garagen wand Grenz-Bebauung

    Garagen wand Grenz-Bebauung: Wir haben mit unserer Garagenwand Grenzbebauung gemacht, mit Genehmigung der Nachbarn (alles schriftlich festgehalten, durch die Stadt). Diese...
  3. Bebauung nach §34 - Großes Haus mit steilem Dach gefordert

    Bebauung nach §34 - Großes Haus mit steilem Dach gefordert: Hallo, ich habe ein Grundstück inkl. einem alten Haus erworben (Hausnummer 14) und möchte darauf ein neues Haus bauen, in dem Gebiet gilt...
  4. Bebauung Grundstücksgrenze

    Bebauung Grundstücksgrenze: Hallo zusammen, Ich habe eine Frage und habe nicht wirklich ein existierendes Thema zu meiner Frage gefunden. Deshalb hoffe ich, ich wiederhole...
  5. Abstandsfläche Nebengebäude - maximale Länge grenznaher Bebauung

    Abstandsfläche Nebengebäude - maximale Länge grenznaher Bebauung: Hallo miteinander, ich habe vor einen Schuppen auf meinem Grundstück an der Grenze zum Nachbarsgrundstück zu errichten. Hier sind Gebäude...