Betoninnentreppe entfernen/abreißen

Diskutiere Betoninnentreppe entfernen/abreißen im Sanierung konkret Forum im Bereich Altbau; Guten Tag, im Zuge eines Sanierungsprojektes soll eine Betoninnentreppe entfernt werden. In die Öffnung des Treppenhauses soll anschließend eine...

  1. #1 Rotstift, 28.08.2022
    Rotstift

    Rotstift

    Dabei seit:
    21.06.2021
    Beiträge:
    7
    Zustimmungen:
    0
    Guten Tag,

    im Zuge eines Sanierungsprojektes soll eine Betoninnentreppe entfernt werden. In die Öffnung des Treppenhauses soll anschließend eine Decke eingezogen und somit das 1. OG vergrößert werden. im Erdgeschoss soll der durch den Treppenabriss entstehende Raum als Abstellraum genutzt werden.
    Entfernt werden sollen also nur die Treppenstufen.

    Was muss dafür beachtet werden? Wie sollte man vorgehen?

    IMG_20220814_113301.jpg
     
  2. #2 JohnBirlo, 28.08.2022
    JohnBirlo

    JohnBirlo

    Dabei seit:
    28.05.2020
    Beiträge:
    1.232
    Zustimmungen:
    461
    Sehr geiles Projekt. Machste das in Eigenleistung?

    Gibts dann außen ne Treppe oder wie macht ihr das?

    Kann dir auf jeden Fall empfehlen die angrenzenden Bereiche vor Staub zu schützen, weil das wird ne richtig dreckige Angelegenheit
     
  3. #3 Rotstift, 28.08.2022
    Rotstift

    Rotstift

    Dabei seit:
    21.06.2021
    Beiträge:
    7
    Zustimmungen:
    0
    Das Haus ist als Zwei-Parteienhaus errichtet worden. Sprich, parallel zu der zu entfernenden Treppe verläuft noch eine Treppe.
     
  4. #4 simon84, 28.08.2022
    simon84

    simon84
    Moderator

    Dabei seit:
    11.11.2012
    Beiträge:
    23.247
    Zustimmungen:
    6.890
    Beruf:
    Schrauber
    Ort:
    Muenchen
    von oben nach unten :)

    gehts bisschen genauer ? Möglichkeiten gibts so viele
    Bohren und stemmen, oder schneiden etc

    so ne Treppe wiegt schon einiges …
     
  5. #5 Rotstift, 28.08.2022
    Rotstift

    Rotstift

    Dabei seit:
    21.06.2021
    Beiträge:
    7
    Zustimmungen:
    0
    Die Treppe ist eine Betontreppe ohne Stahl.
    Ich habe noch einmal ein Foto von unten beigefügt. Bisher gibt es bereits dort einen Abstellraum, allerdings soll hauptsächlich die Treppe entfernt werden aus zwei Gründen:

    1. Einbau eines Schornsteins am Standort der Treppe
    2. Mehr Platz im neben der Treppe liegenden Zimmer (siehe 2. Bild unten)

    IMG_20220814_112942.jpg
    IMG_20220814_113157.jpg

    Von oben nach unten oder von unten nach oben ist tatsächlich die Frage. Muss die Treppe beim Abriss "gestützt" werden, damit diese währenddessen nicht einbricht?

    Was kostet es, den Abriss von Profis machen zu lassen?
     
  6. SIL

    SIL

    Dabei seit:
    06.05.2018
    Beiträge:
    10.865
    Zustimmungen:
    4.211
    Beruf:
    M. Sc. Dipl. Ingenieur
    Ort:
    6210
    Das ist eine Vermutung ...

    Ja und zwar immer Abschnittsweise ..

    Das kann dir keiner sagen, hier gibt es eine enorme Spreize in der Preisfindung, gestandene Rohbauunternehmen werden sich sicher in der der Größenordnung ab 5 k bewegen +- 100%
     
    simon84 gefällt das.
  7. #7 simon84, 30.08.2022
    simon84

    simon84
    Moderator

    Dabei seit:
    11.11.2012
    Beiträge:
    23.247
    Zustimmungen:
    6.890
    Beruf:
    Schrauber
    Ort:
    Muenchen
    Ich hätte eher gesagt unter 10.000 geht da nix, aber das variiert auch Regional sehr stark…. Auf große betonteile rausreißen haben die wenigsten Lust
     
  8. #8 Rotstift, 01.09.2022
    Rotstift

    Rotstift

    Dabei seit:
    21.06.2021
    Beiträge:
    7
    Zustimmungen:
    0
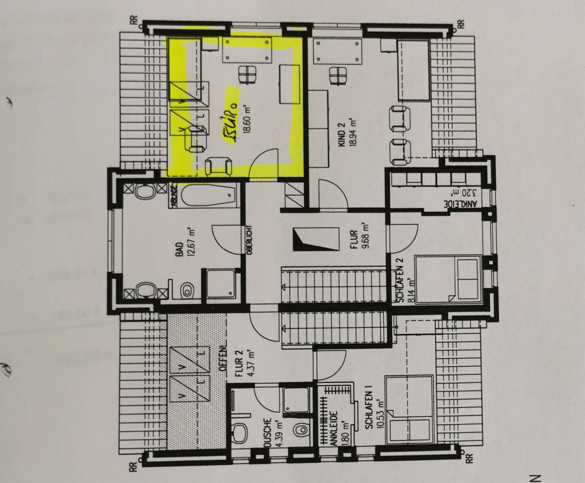
    Ich habe nachfolgend noch einmal den Grundriss des 1. Oag beigefügt. Die auf dem Bild untere Treppe soll entfernt werden.

    IMG_20220830_221447.jpg

    Mit 10.000€ hätte ich nun nicht gerechnet, sondern maximal mit 3.000€-5.000€. grundsätzlich geht es ja hier um den Arbeitslohn und Entsorgung.

    Nachfolgend noch ein Bild von unter der Treppe:

    IMG_20220830_182845.jpg
     
  9. #9 Hercule, 01.09.2022
    Hercule

    Hercule

    Dabei seit:
    11.11.2019
    Beiträge:
    3.736
    Zustimmungen:
    865
    Aktuell wirst du vermutlich sehr lange warten bis überhaupt jemand den Auftrag annimmt und unter 10k wird das auch keiner machen. Und die 10k wird dir auch keiner als verbindlichen Festpreis anbieten sondern "freibleibend" falls doch etwas Stahl verbaut ist oder es zu Folgeschäden kommt.
     
  10. #10 simon84, 01.09.2022
    simon84

    simon84
    Moderator

    Dabei seit:
    11.11.2012
    Beiträge:
    23.247
    Zustimmungen:
    6.890
    Beruf:
    Schrauber
    Ort:
    Muenchen
    Es geht erstmal darum jemanden zu finden der es macht.
    Da hilft nur Angebote einholen
     
  11. ynnus

    ynnus

    Dabei seit:
    19.09.2018
    Beiträge:
    653
    Zustimmungen:
    291
    Beruf:
    Programmierer
    Die Entsorgung von Beton für den Privatmann ist nicht sooooo teuer. Ist sicher von der Region abhängig, aber bei uns hab ich für 0,5m³ irgendwas um die 12 € oder so gezahlt. Rechne mal hoch, wie viel die Treppe wohl haben wird, aber die Entsorgung dürfte den kleineren Teil der Kosten ausmachen (für dich, wenn du es selbst entsorgst).
    Ich würde wohl versuchen das selbst abzureißen. Dazu mehrere Baustützen unter der Treppe anschrauben und dann von Oben die Verbindung zur Decke auftrennen und Schritt für Schritt abstemmen. Wird aber so oder so sehr dreckig werden, egal ob es ein Fachmann macht oder ihr selber.
     
    simon84 gefällt das.
Thema:

Betoninnentreppe entfernen/abreißen

Die Seite wird geladen...

Betoninnentreppe entfernen/abreißen - Ähnliche Themen

  1. Rosette Haustürschloss entfernen

    Rosette Haustürschloss entfernen: Hi zusammen, ich möchte ein Aqara U200 an meiner Haustür anbringen. Damit das aber nicht so wackelig hängt möchte ich die Zylinderrosette...
  2. Stäbchenparkett entfernen - PAK Grenzwerte

    Stäbchenparkett entfernen - PAK Grenzwerte: Moin zusammen, wir sanieren gerade unser Haus aus den 60ern und haben in div. Räumen Stäbchenparkett. Da ich schon mal davon gehört hatte, dass...
  3. Teerstreifen (PAK) von Hohlsteindecke entfernen

    Teerstreifen (PAK) von Hohlsteindecke entfernen: Hallo zusammen, ich saniere für uns ein Reihenhaus (Jahrgang 1953) mit Hohlsteindecken und komme bei einem Punkt nicht weiter: Hat jemand eine...
  4. Klick-Vinyl auf verklebtem PVC verlegen oder PVC entfernen – was ist besser?

    Klick-Vinyl auf verklebtem PVC verlegen oder PVC entfernen – was ist besser?: Hallo zusammen, wir planen, in unserer Wohnung Klick-Vinyl zu verlegen. Aktuell ist ein PVC-Boden vorhanden, der vollflächig auf dem Estrich...
  5. Holzdecke entfernen und verkleiden/verspachteln

    Holzdecke entfernen und verkleiden/verspachteln: Hallo ich brauche einen Rat. In meiner Küche soll die alte Holzdecke runter. Ich habe schon mal ein paar Latten runter um zu sehen was drunter...