Betonstützen in Außenwand bei Ziegelbau zur Rissverhinderung?!

Diskutiere Betonstützen in Außenwand bei Ziegelbau zur Rissverhinderung?! im Mauerwerk Forum im Bereich Neubau; das schaut mir eher nach altbackenen DD/WS aus, mit falscher schraffierung. Was heißt denn DD/WS? Deckendurchbruch/Wandschlitz?

  1. #21 Ralf Wortmann, 15.03.2016
    Ralf Wortmann

    Ralf Wortmann

    Dabei seit:
    30.09.2009
    Beiträge:
    2.206
    Zustimmungen:
    2
    Beruf:
    Fachanwalt für Bau- und Architektenrecht
    Ort:
    Magdeburg
    Was heißt denn DD/WS? Deckendurchbruch/Wandschlitz?
     
  2. Baumal

    Baumal

    Dabei seit:
    02.08.2007
    Beiträge:
    16.077
    Zustimmungen:
    8
    Beruf:
    Architekt
    Ort:
    Ravensburg
    ..... ja.
     
  3. Baumal

    Baumal

    Dabei seit:
    02.08.2007
    Beiträge:
    16.077
    Zustimmungen:
    8
    Beruf:
    Architekt
    Ort:
    Ravensburg

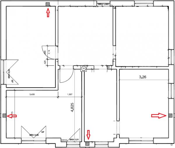
    wobei der EG grundriss, ganz interressant wäre.
    gibt es auch eine treppe zum OG, sind im OG, alle zimmer mehr oder weniger durchgangszimmer?
     
  4. #24 AudiV10, 15.03.2016
    AudiV10

    AudiV10

    Dabei seit:
    29.12.2015
    Beiträge:
    39
    Zustimmungen:
    0
    Beruf:
    Selbst & ständig
    Ort:
    Trier
    Wir haben dem Architekten nun mitgeteilt, dass wir die Betonstützen nicht haben möchten, wenn diese nicht für die Statik erforderlich sind.
    GR_EG.jpg
     
  5. #25 AudiV10, 15.03.2016
    AudiV10

    AudiV10

    Dabei seit:
    29.12.2015
    Beiträge:
    39
    Zustimmungen:
    0
    Beruf:
    Selbst & ständig
    Ort:
    Trier
    Hier noch der Schnitt:
    schnitt.jpg
     
  6. #26 Ralf Wortmann, 15.03.2016
    Ralf Wortmann

    Ralf Wortmann

    Dabei seit:
    30.09.2009
    Beiträge:
    2.206
    Zustimmungen:
    2
    Beruf:
    Fachanwalt für Bau- und Architektenrecht
    Ort:
    Magdeburg
    Das halte ich für einen schweren Fehler. Mein Rat: nehmt diese Erklärung zurück.
    Nur aufgrund von ein paar Ferndiagnosen (ohne den Schnitt und die ganzen Pläne zu kennen) aus dem Bauexpertenforum eine solche Erklärung abzugeben, könnte sich als nachteilig herausstellen, insbesondere dann, wenn später tatsächlich Risse auftreten.
     
  7. #27 Ralf Wortmann, 15.03.2016
    Ralf Wortmann

    Ralf Wortmann

    Dabei seit:
    30.09.2009
    Beiträge:
    2.206
    Zustimmungen:
    2
    Beruf:
    Fachanwalt für Bau- und Architektenrecht
    Ort:
    Magdeburg
    Nachtrag: ihr könntet dem Architekten z.B. wie folgt schreiben:


    -----------------------------------------------------------------------------------------------------------------
    Wir nehmen von unserer Erklärung vom 15.03.2016, dass wir die Betonstützen nicht haben möchten, wenn diese nicht für die Statik erforderlich sind, nach nochmaligem Überlegen wieder Abstand.

    Wir können nicht beurteilen, ob diese Betonstützen erforderlich sind und vertrauen daher auf Ihre Fachkunde als Architekt. Da Sie uns schrieben, diese seien zur Vermeidung von Rissen im Putz erforderlich, folgen wir als bautechnische Laien natürlich Ihrem damit verbundenen Rat, diese Stützen auszuführen, behalten uns aber vor, die Notwendigkeit und insbesondere auch die Tauglichkeit dieser Stützen zu diesem Zweck zu einem späteren Zeitpunkt fachlich überprüfen zu lassen.

    Planen und konstruieren Sie unser Bauvorhaben im Hinblick auf Rissbildungsrisiken und Rissvermeidungsmethoden bitte so, wie es den allgemein anerkannten Regeln der Technik entspricht. Wenn es mehrere den aaRdT entsprechende Möglichkeiten der Rissvermeidung geben sollte, die zur Auswahl stehen, legen Sie uns diese bitte unter Benennung der hierfür zu veranschlagenden Kosten und ihrer Vor- und Nachteile dar.
    ------------------------------------------------------------------------------------------------------------------
     
  8. #28 Inkognito, 15.03.2016
    Inkognito

    Inkognito Gast

    Zugstützen in den Gebäudeecken ergeben durchaus Sinn, hier entstehen eckabhebende Kräfte aus der Deckenplatte (aus Drillmomenten, wen es interessiert etwas in die Plattentheorie einlesen) die eben genau in den oberen Geschossen nicht mehr durch eine ausreichende Auflast überdrückt wird. Dann kann es zu horizontalen Rissen zwischen Deckenplatte und Mauerwerk kommen.

    Sinnlos ist das natürlich dann, wenn diese falsch angeordnet wurden, so wie hier - wenn diese Anordnung doch einen tieferen Sinn ergibt, der sich mir nicht erschließt. Bitte fragen Sie ihren Planer, die Begründung würde mich interessieren.
     
  9. #29 AudiV10, 15.03.2016
    AudiV10

    AudiV10

    Dabei seit:
    29.12.2015
    Beiträge:
    39
    Zustimmungen:
    0
    Beruf:
    Selbst & ständig
    Ort:
    Trier
    Ich habe gerade nochmal den genaueren Sinn dieser Stützen abgefragt, und ihn um weitere Vorschläge der Rissvermeidung gebeten. Ich hatte ihn auch in meiner ersten Mail schon darauf hingewiesen, dass wir einen Alternativvorschlag von ihm möchten, da wir das Risiko einer möglichen Rissbildung nicht tragen möchten.
     
  10. #30 gunther1948, 15.03.2016
    gunther1948

    gunther1948

    Dabei seit:
    05.11.2006
    Beiträge:
    6.917
    Zustimmungen:
    2
    Beruf:
    architekt/statiker
    Ort:
    67685 weilerbach
    hallo
    betonstützen im og bei einer betondecke zum dg können schon sinn machen um das aufschüsseln der freien ecken zu behindern.( fehlende auflast )
    nur die anordnung hier ist vollkommen sinnfrei.

    gruss aus de pfalz

    ps. der inkon....nente war schneller.
     
  11. Yilmaz

    Yilmaz

    Dabei seit:
    28.03.2006
    Beiträge:
    7.230
    Zustimmungen:
    1.262
    Beruf:
    Maurer & Betonbaumeister
    Ort:
    Delbrück/Westfalen
    Benutzertitelzusatz:
    Maurer-und Betonbauermeister
    sehe genau so, aber die drillbewehrung und zugverankerung in den ecken kommen meistens bei flachdächer. Bei einem satteldach eher nicht erforderlich.
     
  12. #32 Ralf Wortmann, 15.03.2016
    Ralf Wortmann

    Ralf Wortmann

    Dabei seit:
    30.09.2009
    Beiträge:
    2.206
    Zustimmungen:
    2
    Beruf:
    Fachanwalt für Bau- und Architektenrecht
    Ort:
    Magdeburg
    Das dann aber als Architekt damit zu begründen, es sei statisch gar nicht erforderlich und diene nur dazu Haarrisse im Putz (und somit also nicht etwa im Mauerwerk!) zu vermeiden, wäre schon ziemlich sportlich.
     
  13. #33 Gast036816, 15.03.2016
    Gast036816

    Gast036816 Gast

    das sehe ich auch so! vermutlich liegt etwas anderes in der luft und die haben einen bolzen in der planung. wenn du jetzt auf die stützen verzichtest und nachher kommen risse, werden sie sich darauf zurück ziehen, dass du die stützen selbst aus der planung gestrichen hast.
     
  14. #34 Inkognito, 15.03.2016
    Inkognito

    Inkognito Gast

    Gepaart mit der Anordnung der Stützen und hinsichtlich der Auflast aus dem Dach wäre meine (hässliche) Vermutung: gefährliches Halbwissen des Architekten.

    Oder er ist schlauer als wir alle und hat eine schlüssige Erklärung und ich nehme alles zurück und behaupte das Gegenteil.
     
  15. Baumal

    Baumal

    Dabei seit:
    02.08.2007
    Beiträge:
    16.077
    Zustimmungen:
    8
    Beruf:
    Architekt
    Ort:
    Ravensburg
    bei dieser abenteuerlichen "schnittdarstellung", wundert mich gar nix mehr.
     
  16. #36 AudiV10, 16.03.2016
    AudiV10

    AudiV10

    Dabei seit:
    29.12.2015
    Beiträge:
    39
    Zustimmungen:
    0
    Beruf:
    Selbst & ständig
    Ort:
    Trier
    Ich habe nun die genaue Erläuterung vom Architekten bekommen. Diese Stützen sollen - wie hier ja auch schon vermutet wurde - das aufschüsseln der Betondecke verhindern. Dazu auch nochmal die relativierende Aussage von ihm, dass das bei 95% der Häuser nicht gemacht würde...

    Jetzt bin ich ratlos.

    Wie gesagt - die Positionen der Stützen machen dafür doch wenig Sinn? Ich hätte die Pfosten dann eher an den Außenkanten vermutet, aber doch nicht mitten in der Wand, wo sie wohl am wenigsten verhindern werden...
    Von der Aufschüsselung gehen doch meist (immer?) Eckrisse aus, die sich bei dieser Anordnung ja trotz Stützen bilden können, wenn diese mitten in der Wand stehen. Ich habe das nochmal abgefragt, welche Verbesserung er sich erhofft, wenn die Stützen an diesen Positionen stehen und ob es aus seiner Sicht keine andere Möglichkeit der Positionierung geben würde, die ebenfalls wirksam wäre (mit dem Hinweis, dass uns die Stützen in den Außenecken z.B. nicht stören würden)
     
  17. Baumal

    Baumal

    Dabei seit:
    02.08.2007
    Beiträge:
    16.077
    Zustimmungen:
    8
    Beruf:
    Architekt
    Ort:
    Ravensburg
    ansprechpartner für tragwerksplanung ist dein statiker,
    nicht dein architekt, der ebenso ratlos erscheint wie du selbst.
     
  18. #38 AudiV10, 18.03.2016
    AudiV10

    AudiV10

    Dabei seit:
    29.12.2015
    Beiträge:
    39
    Zustimmungen:
    0
    Beruf:
    Selbst & ständig
    Ort:
    Trier
    Scheint mir fast so, ja...

    Ich habe nochmal mit ihm gesprochen, weshalb die Stützen so gesetzt werden und warum nicht in die Hausecken. Seine Aussage "in die Ecken soll man die Stützen nicht stellen". In der Wand wären sie aber verschiebbar. Nun ja - er macht die Dinger nun nach seinem Gusto rein, denn ich will ihm als Laien da keine Vorschriften machen, wie er die Teile zu stellen hat (Gewährleistung). Nachvollziehen kann ich es jedoch noch immer nicht. Ich hoffe halt nur, dass es dadurch keine Wärmebrücken oder Horizontalrisse gibt. Laut seiner Aussage hatte er damit noch nie Probleme und das würde schon so passen - wir sollen uns da keine Gedanken machen. Er verlangt für die Stützen übrigens keinen Aufpreis, sondern das gehöre bei ihm zum "Standard". Wir sind dann mal gespannt...
     
  19. Baumal

    Baumal

    Dabei seit:
    02.08.2007
    Beiträge:
    16.077
    Zustimmungen:
    8
    Beruf:
    Architekt
    Ort:
    Ravensburg
    ich habe noch nie einen architekten erlebt,
    der dinge oder stützen nach seinem gusto verteilt.
     
  20. #40 AudiV10, 18.03.2016
    AudiV10

    AudiV10

    Dabei seit:
    29.12.2015
    Beiträge:
    39
    Zustimmungen:
    0
    Beruf:
    Selbst & ständig
    Ort:
    Trier
    Als dummer Kunde bleibt mir hier aber wohl leider nicht viel Auswahl... Entweder er lässt die Teile weg, dann bin ich der blöde, wenn es irgendwo Risse gibt. Oder ich lasse ihn die Teile in die Außenecken verschieben, dann bin ich ebenfalls der Depp, wenn es um Gewährleistung geht. Dann soll er sie halt setzen, wie er meint und ich kann im Fall der Fälle meine Gewährleistungsansprüche gegen ihn geltend machen, wenn es zu Rissbildung kommt.
     
Thema: Betonstützen in Außenwand bei Ziegelbau zur Rissverhinderung?!
Besucher kamen mit folgenden Suchen
  1. Hausecken abstützen

    ,
  2. beton zugstütze obergeschoss

    ,
  3. betonierte hausecken

    ,
  4. warum außenwand obergeschoss mit unterbrechungen,
  5. aussenwand stützen,
  6. außenwände abstützen,
  7. größe betonstütze,
  8. außenwand abstützen
Die Seite wird geladen...

Betonstützen in Außenwand bei Ziegelbau zur Rissverhinderung?! - Ähnliche Themen

  1. Rasenkantstein - Betonstützen und DIN?

    Rasenkantstein - Betonstützen und DIN?: Hallo liebe Gemeinde! Die bereits asphaltierte Geländefläche einer privaten Gewerbeimmobilie soll nach vorangegangenen Kanalbauarbeiten in diesem...
  2. Pflastersteine an Betonstütze für Randsteine

    Pflastersteine an Betonstütze für Randsteine: Was mache ich den mit den Pflastersteinen (20x13,3x8cm) die am Rand, also an der Betongstütze für die Randsteine (25x8x100cm), verlegt werden?...
  3. Betonstützen Murks?

    Betonstützen Murks?: Hi, ich stehe eigentlich kurz davor eine Wohnung in einem Neubau zu erwerben. Heute habe ich die Baustelle besucht und die angehängten Bilder der...
  4. Deckendetail: Deckenauflager bei Planziegelmauerwerk mit Betonstützen

    Deckendetail: Deckenauflager bei Planziegelmauerwerk mit Betonstützen: Hallo, ich habe mich kürzlich hier angemeldet, lese aber schon länger mit. Ich baue ein EFH aus Poroton- Planziegel. Ich stehe kurz vorm...
  5. Betonstütze an wand betonieren

    Betonstütze an wand betonieren: Hallo, Ich bau grad ein sektionaltor ein das 3.50 x 3.50 hat Auf einer seite brauch ich eine stütze worauf dann der sturz liegt. Die stütze soll...