Boden Verlegerichtung

Diskutiere Boden Verlegerichtung im Estrich und Bodenbeläge Forum im Bereich Neubau; Hallo, Ich bräuchte mal euren Rat. Ich möchte nun meinen Boden verlegen, kann mich aber bei der Verlegerichtung im Flur nicht entscheiden. Vom...

  1. #1 Rekoj89, 10.04.2020
    Rekoj89

    Rekoj89

    Dabei seit:
    05.08.2019
    Beiträge:
    29
    Zustimmungen:
    0
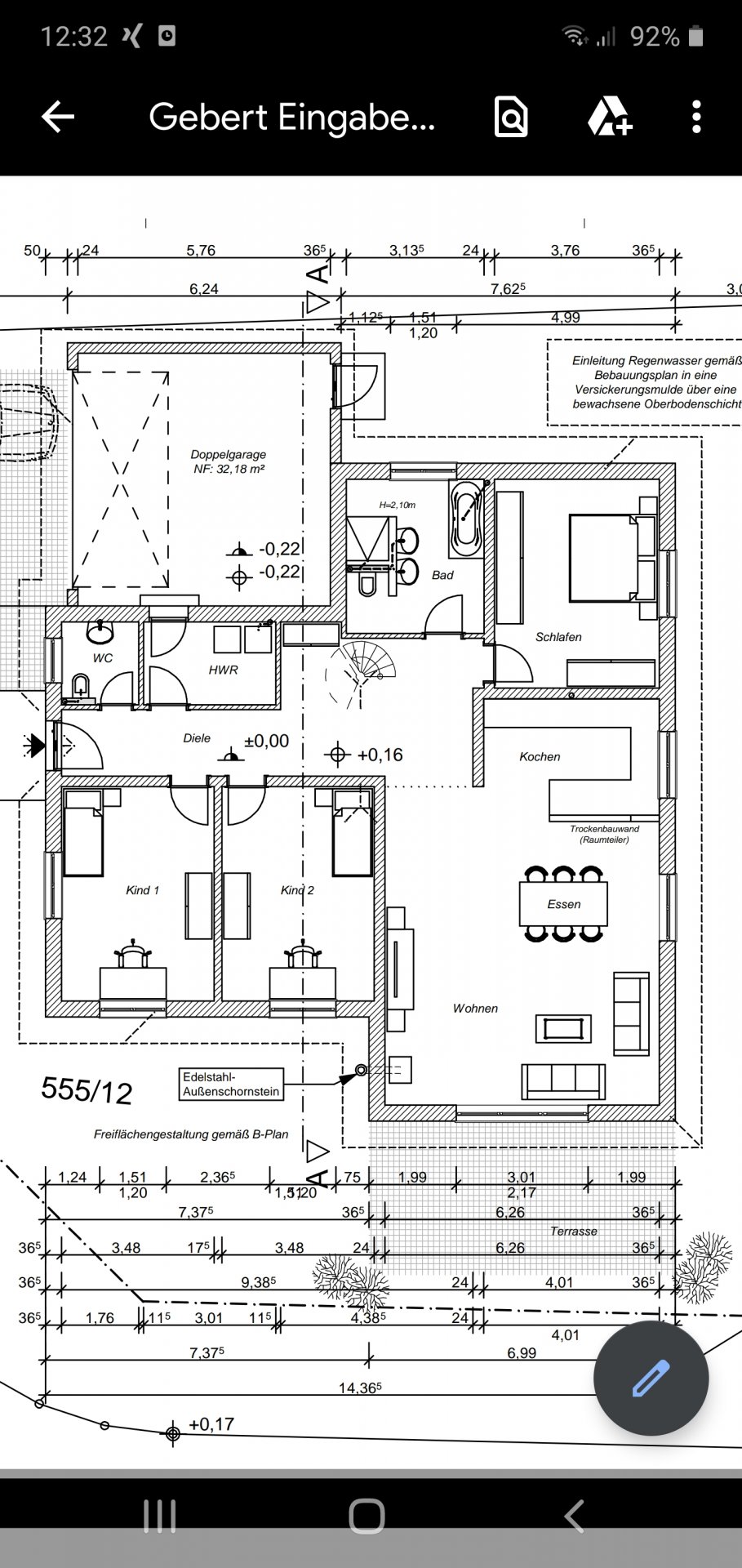
    Hallo,

    Ich bräuchte mal euren Rat.
    Ich möchte nun meinen Boden verlegen, kann mich aber bei der Verlegerichtung im Flur nicht entscheiden.
    Vom Wohnzimmer zum Flur ist der Durchgang offen, im Wohnzimmer würde ich gerne den Boden in Richtung Südfenster verlegen, nun weiß ich nicht ob ich das im Flur beibehalten soll, da dort das Licht aus der Westseite kommt. Soll ich die Richtung beibehalten oder ändern?
    Wie schon erwähnt der Durchgang von Wohnzimmer zum Flur ist offen.
     

    Anhänge:

  2. #2 Fabian Weber, 10.04.2020
    Fabian Weber

    Fabian Weber

    Dabei seit:
    03.04.2018
    Beiträge:
    16.363
    Zustimmungen:
    6.503
    Behalte die Richtung bei, das Wohnzimmer hat Vorfahrt:)
     
Thema:

Boden Verlegerichtung

Die Seite wird geladen...

Boden Verlegerichtung - Ähnliche Themen

  1. Wand und Boden im Gartenhaus ausbessern

    Wand und Boden im Gartenhaus ausbessern: Hallo Forum! Projekt; Umbau in einem massiv gebauten Häuschen auf einem Gartengrundstück. Baujahr zwischen 1970 und 1975. Das Häuschen gründet...
  2. Wasserleitungen im Boden verlegen

    Wasserleitungen im Boden verlegen: Hallo zusammen, Ich möchte in meinem neuen Bad die Wasserleitungen im Boden verlegen. Für meine Duschwanne habe ich bereits den Boden...
  3. Probleme mit Boden-Deckel-Schalung und den lieben Tieren

    Probleme mit Boden-Deckel-Schalung und den lieben Tieren: Hallo zusammen, ich brauche den ein oder anderen Rat von euch im Zusammenhang mit o.g. Thema. Ausgangslage bzw. Vorgeschichte: Auf unserer...
  4. Garage Boden

    Garage Boden: Hallo zusammen! Habe diese Halle günstig angemietet, da sie quasi fast neben meinem zu Hause liegt. sie soll eine kleine Hobby KFZ Werkstatt...
  5. Klick-Vinyl im Haus-Flur auf Fliesen-Boden verlegen; empfohlene Verlegerichtung, Tipps für Tür-Zarge

    Klick-Vinyl im Haus-Flur auf Fliesen-Boden verlegen; empfohlene Verlegerichtung, Tipps für Tür-Zarge: Hallo, wir möchten unseren Flur mit einem neuen Bodenbelag ausstatten und würden dabei gerne einen Klick-Vinyl schwimmend verlegen. Heute ist der...