Bodenplatte passt nicht laut Fertighaushersteller

Diskutiere Bodenplatte passt nicht laut Fertighaushersteller im Tiefbau Forum im Bereich Neubau; Hallo liebes Forum, unsere Bodenplatte (bauseits) wurde jetzt von unserer Fertighaushersteller nachgemessen dort sind Abweichungen aufgetreten ,...

  1. #1 Markl, 12.10.2024
    Zuletzt bearbeitet: 12.10.2024
    Markl

    Markl

    Dabei seit:
    09.11.2023
    Beiträge:
    197
    Zustimmungen:
    21
    Hallo liebes Forum,

    unsere Bodenplatte (bauseits) wurde jetzt von unserer Fertighaushersteller nachgemessen dort sind Abweichungen aufgetreten , Hauslänge,Dicke und Hausbreite.Trotz das wir bis heute keine Werkfreigabe gemacht haben wurde angeblich das Haus bereits gefertigt,

    Haus mit Außendämmung sollte auf 13,325 und die breite auf 8.04m

    unser Bodenplatte+Außendämmung hat folgende Maße
    A1= 12,32
    Breite=8,03
    A2=12,312

    Die Höhe hat eine Toleranz von 1,2cm (zu niedrig).
    Diagonale 1,6cm Toleranz.

    Sind diese Werte noch vertretbar für ein Fertighaus die haben nämlich Toleranzen von 0,5mm und in der Diagonale von 0,8mm

    Heißt das jetzt das unser Haus kleiner wird oder Haus nicht rechtwinklig ist?
     
  2. Markl

    Markl

    Dabei seit:
    09.11.2023
    Beiträge:
    197
    Zustimmungen:
    21
    ---gelöscht--
     
  3. #3 ichweisnix, 12.10.2024
    ichweisnix

    ichweisnix

    Dabei seit:
    21.11.2022
    Beiträge:
    1.875
    Zustimmungen:
    697
    13,325 Eier, Kartoffel?
    13,32 cm ?
    8,03 mm ?
    1,2 cm und 16 m Toleranz? wie ist das zu verstehen?
     
  4. Markl

    Markl

    Dabei seit:
    09.11.2023
    Beiträge:
    197
    Zustimmungen:
    21
    Danke für deine Antwort, mir ist da ein Fehler passiert , hab es nochmal abgeändert.
    A1= 12,32m
    Breite=8,03m
    A2=12,312m

    Die Höhe hat eine Toleranz von 1,2cm (zu niedrig).
    Diagonale 1,6cm Toleranz.
     
  5. #5 Ettlingen, 12.10.2024
    Ettlingen

    Ettlingen

    Dabei seit:
    13.05.2024
    Beiträge:
    554
    Zustimmungen:
    138
    Was sagt die FH Firma zu den Maßabweichungen?
     
  6. Markl

    Markl

    Dabei seit:
    09.11.2023
    Beiträge:
    197
    Zustimmungen:
    21
    Die sagen dazu erstmal nichts, den die Bodenplatte ist schon seit gut 2,5Wochen fertig und wurde erst jetzt abgenommen.

    Sie haben uns nur einen Hinweis gegeben das es zu Mehrkosten kommt wegen dem mehr Estrich in der Höhe.
     

    Anhänge:

    • forum.png
      forum.png
      Dateigröße:
      51,2 KB
      Aufrufe:
      330
  7. Markl

    Markl

    Dabei seit:
    09.11.2023
    Beiträge:
    197
    Zustimmungen:
    21
    Laut eigener Internetrecherchen ist unsere Bodenplatte außer den Toleranzbereich , ob das wirklich von uns so richtig verstanden wurde weiß ich nicht.
     
  8. #8 Ettlingen, 12.10.2024
    Ettlingen

    Ettlingen

    Dabei seit:
    13.05.2024
    Beiträge:
    554
    Zustimmungen:
    138
    D.h. die Abweichungen führen nicht zu Problemen? Dann ist doch alles o.k..
     
  9. Markl

    Markl

    Dabei seit:
    09.11.2023
    Beiträge:
    197
    Zustimmungen:
    21
    Müssen die vorher wenn es zu Problemen kommt dies überhaupt mitteilen? Immerhin ist laut Vertrag 2Wochen vor Stelltermin die Bodenplattenabnahme.
     
  10. Markl

    Markl

    Dabei seit:
    09.11.2023
    Beiträge:
    197
    Zustimmungen:
    21
     
  11. #11 Fabian Weber, 12.10.2024
    Fabian Weber

    Fabian Weber

    Dabei seit:
    03.04.2018
    Beiträge:
    16.306
    Zustimmungen:
    6.470
    Alles noch innerhalb der Toleranz (DIN 18202 Tabelle 3 Zeile 2).

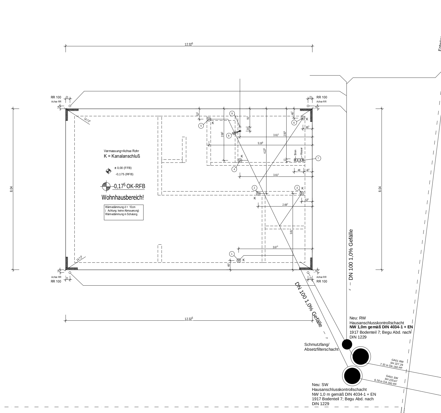
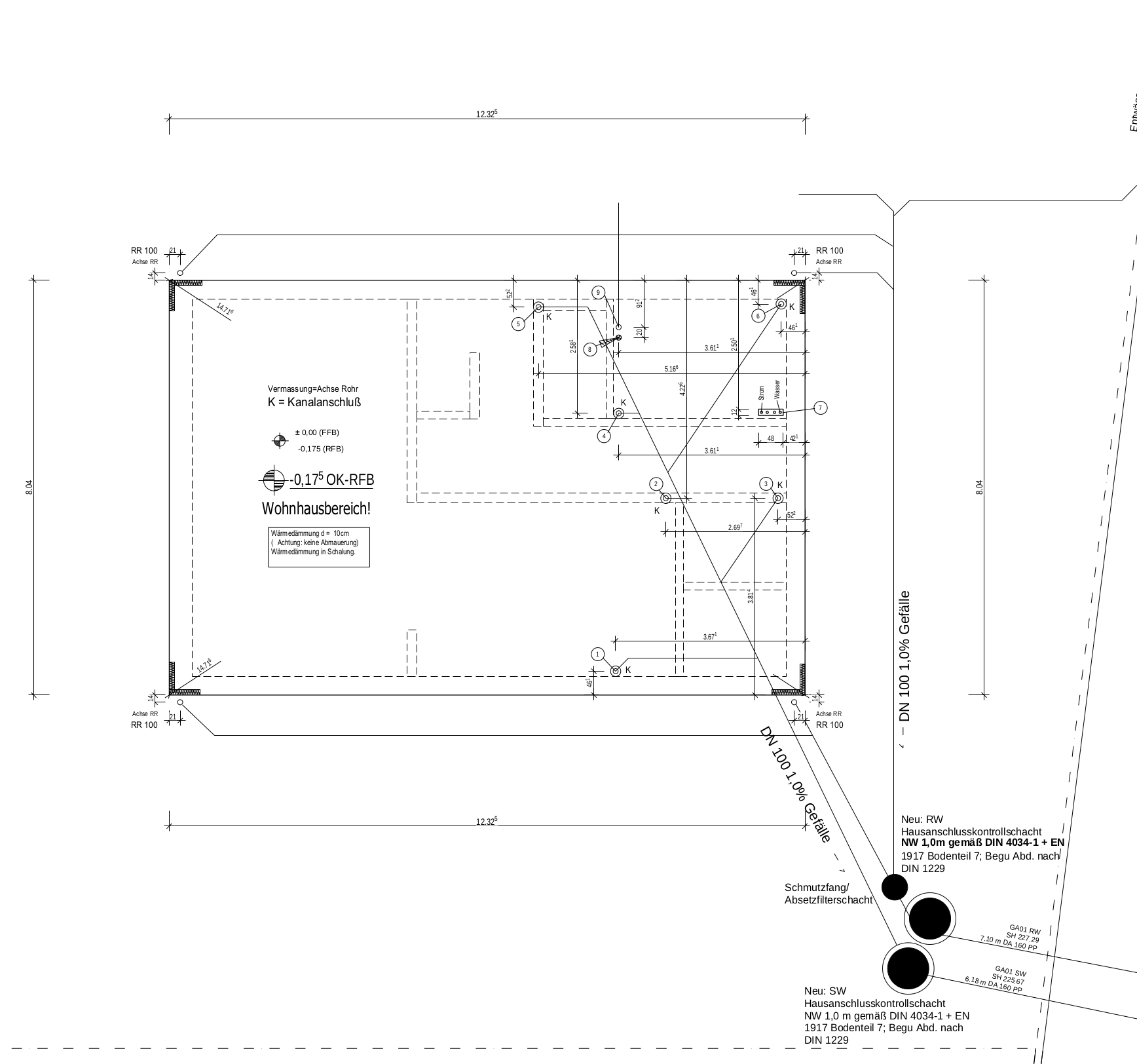
    Aber knapp 1m zu kurz würde mich eher beunruhigen. Zeig doch mal den Bauplan vom Haus (Grundrisse, Schnitte) und den Plan, den der Bodenplattenbauer bekommen hat.
     
  12. #12 Fabian Weber, 12.10.2024
    Fabian Weber

    Fabian Weber

    Dabei seit:
    03.04.2018
    Beiträge:
    16.306
    Zustimmungen:
    6.470
    Das Aufmaß ist sowieso nicht normgerecht, denn genau am Rand darf nicht gemessen werden. Die Messpunkte sind auch gar nicht genau eingekreuzt oder ähnlich.
     
    11ant gefällt das.
  13. #13 Ettlingen, 12.10.2024
    Ettlingen

    Ettlingen

    Dabei seit:
    13.05.2024
    Beiträge:
    554
    Zustimmungen:
    138
    Zu den Fristen und Toleranzen kann ich leider nichts sagen. Wenn ich an deiner Stelle wäre, würde ich das beim FH-ANBIETER ansprechen und um schriftliche Stellungnahme bitten. So ist sichergestellt, daß es am Aufstelltermin nicht zu Überraschungen kommt.

    Internetrecherche/im Forum nachfragen ist o.k. ersetzt aber nicht die verbindliche Kommunikation mit dem FH-ANBIETER. Sollte es ein Problem sein, kommt es so oder so zu Tage.
     
  14. #14 Markl, 12.10.2024
    Zuletzt bearbeitet: 12.10.2024
    Markl

    Markl

    Dabei seit:
    09.11.2023
    Beiträge:
    197
    Zustimmungen:
    21
    Ja das hat mich auch schon gewundert ich vermute mal die sind alle 1m weit weg?!, also ist eigentlich das Protokoll vom FH Anbieter sinnlos für uns ? Dann werd ich mal das Meßprotokoll vom Bodenplattenbauer einholen der ist Isoverzifiziert auf DIN 9001, der muss es ja dann quasi sowieso haben.
     

    Anhänge:

  15. Markl

    Markl

    Dabei seit:
    09.11.2023
    Beiträge:
    197
    Zustimmungen:
    21
    Danke für deine Antwort, schriftlich werden wir dies natürlich der Fh Firma zukommen lassen und ich werde auch versuchen den Bauleiter ans Ohr zu bekommen.
     
  16. Yilmaz

    Yilmaz

    Dabei seit:
    28.03.2006
    Beiträge:
    7.263
    Zustimmungen:
    1.296
    Beruf:
    Maurer & Betonbaumeister
    Ort:
    Delbrück/Westfalen
    Benutzertitelzusatz:
    Maurer-und Betonbauermeister
    Wenn die Masse nicht passen, passen sie nicht und Nacharbeit ist erforderlich. Wir erstellen um 80-100 Bodenplatten für alle namhaften Fertighäuser und alle haben ihre vorgaben die eingehalten werden müssen.
    FH-Firma ist es egal wer die Bodenplatte liefert. Sie wollen Sie bestimmt nicht ärgern. Es soll nur reibungslos weitergebaut werden…
     
    11ant gefällt das.
  17. #17 Fabian Weber, 12.10.2024
    Fabian Weber

    Fabian Weber

    Dabei seit:
    03.04.2018
    Beiträge:
    16.306
    Zustimmungen:
    6.470
    Also im Plan sind es 12,405m und 8,12m.

    Du solltest mal die Haumaße klären, denn Deine Angaben weichen maximal 92cm ab.
     
    11ant gefällt das.
  18. #18 Markl, 12.10.2024
    Zuletzt bearbeitet: 12.10.2024
    Markl

    Markl

    Dabei seit:
    09.11.2023
    Beiträge:
    197
    Zustimmungen:
    21
    Also die Wand sitzt 4cm auf beiden Seiten versetzt über die Bodenplatten
    12,405m - 0,08 =12.325
    Das Problem ist aber das die FH Firma jetzt erst zur Bodenplatteabnahme kam, sich nochmal Zeit gelassen hat kurz vor Feierabend dann am Freitag die Unterlagen geschickt hat und wir jetzt da stehen und niemanden mehr erreichen.
     
  19. #19 Fabian Weber, 12.10.2024
    Fabian Weber

    Fabian Weber

    Dabei seit:
    03.04.2018
    Beiträge:
    16.306
    Zustimmungen:
    6.470
    Du hast aber 13,xxxxm geschrieben!!!! Was stimmt denn nun?!
     
  20. #20 Fabian Weber, 12.10.2024
    Fabian Weber

    Fabian Weber

    Dabei seit:
    03.04.2018
    Beiträge:
    16.306
    Zustimmungen:
    6.470
    Also mal angenommen das war nur ein Zahlendreher?! Dann bleibt die angebliche Toleranz vom Haushersteller. Die hat aber nichts mit den zulässigen Toleranzen im Hochbau zu tun. Der Haushersteller kann hier nicht einfach die Regeln ändern.
    Deswegen macht der doch kein Meßprotokoll, warum sollte er?
     
Thema:

Bodenplatte passt nicht laut Fertighaushersteller

Die Seite wird geladen...

Bodenplatte passt nicht laut Fertighaushersteller - Ähnliche Themen

  1. Hohlstelle unter Bodenplatte (Sauberkeitsschicht rieselt heraus)

    Hohlstelle unter Bodenplatte (Sauberkeitsschicht rieselt heraus): Beim freilegen der Bodenplatte (die Baufirma muss hier noch nacharbeiten) ist mir aufgefallen das an einer Stelle Kies von der Sauberkeitsschicht...
  2. Bodenplatte welche Abstände

    Bodenplatte welche Abstände: Hallo zusammen, wir möchten gerne eine Bodenplatte 20cm gießen wo im Bewährungsplan folgende Werte angegeben sind, für die Betonüberdeckung:...
  3. Grundleitungen unter der Bodenplatte

    Grundleitungen unter der Bodenplatte: Hallo liebe Forums-Nutzer, ich habe einen Grundleitungsplan angehangen und folgende Fragen dazu und hoffe auf hilfreiche Antworten: Wir haben von...
  4. Entkopplungsmatte bei Bodenplatte in Garage

    Entkopplungsmatte bei Bodenplatte in Garage: Moin ich habe in meiner Gemauerten Garage eine Betonplatte. Hier wollte ich nun Fliesen verlegen lassen. Die Überlegung ist nun, Die Betonplatte...
  5. Aufdiscken eine bestehende B25 Bodenplatte fuer garage.

    Aufdiscken eine bestehende B25 Bodenplatte fuer garage.: Hallo, Ich bin neu im Forum, bitte entschuldige mein schlechtes Deutsch, euere Sprache ist nicht einfach für ein Niederländer. Mein Haus (gebaut...