Bungalow Maurerarbeiten Preis

Diskutiere Bungalow Maurerarbeiten Preis im Baupreise Forum im Bereich Rund um den Bau; Hallo zusammen, ich baue derzeit einen Bungalow, dass ganze ohne GU. Ich habe einen Statiker, der mir mir alles soweit fertig gemacht, Bauantrag...

  1. #1 socketspce, 06.02.2024
    socketspce

    socketspce

    Dabei seit:
    22.03.2019
    Beiträge:
    234
    Zustimmungen:
    23
    Hallo zusammen, ich baue derzeit einen Bungalow, dass ganze ohne GU. Ich habe einen Statiker, der mir mir alles soweit fertig gemacht, Bauantrag ist jetzt durch.

    Ich vergebe die Aufträge also selber.

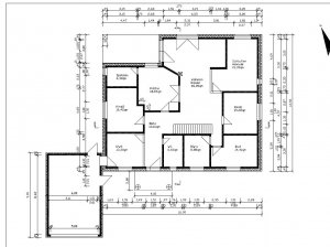
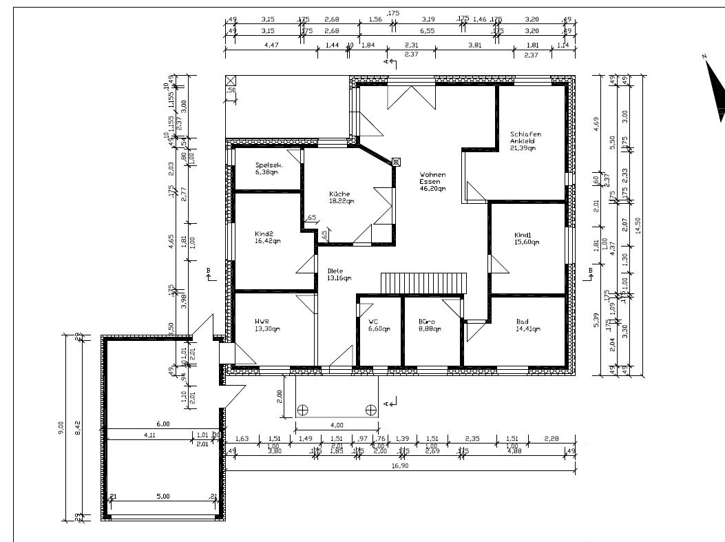
    Der Bungalow hat die Maße von 14.50 x 16.90 und eine Höhe von ca. 3 Meter.
    zuzüglich einer Garage mit 6x9 Metern

    Habe jetzt ein Angebot von einem Maurermeister (kleine Firma) bekommen.

    Reine Lohnkosten. Bodenplatte wurde separat vergeben. Decke kommt aus Holz.

    Ausführung aller Mauerarbeiten ohne Klinkern für Erdgeschoss vom Haus und Garage

    - Außenwände
    - Innenwände

    ca. 142 laufende Meter Poroton in 9DF mit 2.95m Deckenhöhe

    Also ca. 420qm Fläche zu mauern in 9DF zuzüglich Ringanker

    Netto Preis: 19 000€

    Mein Statiker kennt die Firma und sagt, sie macht saubere Arbeit.
    Sie bringen alle mit was notwendig ist.

    Wie ist der Preis einzuordnen?

    Ich denke hierbei handelt es sich um einen guten Preis oder?

    Viele Grüße
     
  2. #2 Holzhaus61, 07.02.2024
    Holzhaus61

    Holzhaus61

    Dabei seit:
    10.04.2023
    Beiträge:
    1.325
    Zustimmungen:
    580
    9 DF?

    Nimmt man die Kalkulationshilfe von Poroton, dann ist der Preis nicht auskömmlich.
     
  3. #3 socketspce, 07.02.2024
    socketspce

    socketspce

    Dabei seit:
    22.03.2019
    Beiträge:
    234
    Zustimmungen:
    23
    Ist 9DF ungewöhnlich? Es wird eine 49er Außenwand mit 17.5 Poroton. 9DF hatte Gestern der Maurer vorgeschlagen. Der Preis ist also zu niedrig? Wo finde ich diesen Rechner?
     
  4. #4 Holzhaus61, 07.02.2024
    Holzhaus61

    Holzhaus61

    Dabei seit:
    10.04.2023
    Beiträge:
    1.325
    Zustimmungen:
    580
    17,5 oder 49 oder 9 DF. Na wat nu? 9DF gibts nicht von Poroton soweit ich weiß, lasse mich aber gerne belehren.

    Google mal nach Poroton und Kalkulationshilfe, dann finnste die Tabellen.
     
    11ant gefällt das.
  5. 11ant

    11ant

    Dabei seit:
    28.02.2017
    Beiträge:
    2.462
    Zustimmungen:
    1.539
    Beruf:
    Bauherrenberater
    Ort:
    RLP Nord
    Benutzertitelzusatz:
    bringt Sie gut beraten ins Eigenheim
    Das machen viele Leute, die das für schlau halten - hinterher wissen sie mehr :-)
    ach ist das herrlich, daß man im Gegensatz zum orangen Forum hier seine Sätze noch mit Smileys abschließen darf !

    Wenn Du bei der ganzen Vergeberei so grob milchmädchenrechnest ...
    ... dann wird das viel Lehrgeld werden.
     
  6. #6 Holzhaus61, 08.02.2024
    Holzhaus61

    Holzhaus61

    Dabei seit:
    10.04.2023
    Beiträge:
    1.325
    Zustimmungen:
    580
    OT: Wie? Darf man das da nicht? :confused::D
     
  7. 11ant

    11ant

    Dabei seit:
    28.02.2017
    Beiträge:
    2.462
    Zustimmungen:
    1.539
    Beruf:
    Bauherrenberater
    Ort:
    RLP Nord
    Benutzertitelzusatz:
    bringt Sie gut beraten ins Eigenheim
    "Nicht dürfen" kann man insofern nicht sagen, da 90% der dortigen Moderationsregeln ungeschriebene sind.
    Fakt ist: seit über einer Woche werden Textsmileys wie ;-) oder :-) offenbar von Hand in . umgewandelt, herausmoderiert, ich möchte fast sagen "wie gewohnt" ohne Bearbeitungshinweis. Immerhin ohne Verwarnung des Delinquenten. Zustände wie im alten Rom. Selbst kleinste Menschlichkeiten zwischen den ForenteilnehmerInnen sind "off Topic" (also ranking-schädlich) und müssen wohl gnadenlos ausgemerzt werden. Traurig :-(
     
  8. #8 nordanney, 08.02.2024
    nordanney

    nordanney

    Dabei seit:
    15.09.2021
    Beiträge:
    6.223
    Zustimmungen:
    3.589
    Beruf:
    Finanzierer/Investor/Bau- und Sanierungslaie
    Ort:
    Niederrhein
    upload_2024-2-8_15-8-40.png
    Es gibt sogar Verwarnungen dafür. Crazy... [​IMG]
     
    simon84 und 11ant gefällt das.
  9. SIL

    SIL

    Dabei seit:
    06.05.2018
    Beiträge:
    10.865
    Zustimmungen:
    4.211
    Beruf:
    M. Sc. Dipl. Ingenieur
    Ort:
    6210
    Ja ist er , am unteren Ende angesetzt, kommt natürlich noch auf regional an, aber sonst passt
    das.
     
  10. #10 driver55, 08.02.2024
    driver55

    driver55

    Dabei seit:
    22.02.2008
    Beiträge:
    6.854
    Zustimmungen:
    1.785
    Beruf:
    Dipl.-Ing.
    Ort:
    Pforzheim
    Wie behindert ist das denn?
    Der hat nicht mehr alle Knödel im Topf.
     
  11. #11 nordanney, 12.02.2024
    nordanney

    nordanney

    Dabei seit:
    15.09.2021
    Beiträge:
    6.223
    Zustimmungen:
    3.589
    Beruf:
    Finanzierer/Investor/Bau- und Sanierungslaie
    Ort:
    Niederrhein
    Es wird noch besser...
    upload_2024-2-12_16-2-41.png
    Man scheint noch nicht mal mehr die Smileys nutzen zu dürfen, die die Forensoftware anbietet...
     
    11ant gefällt das.
  12. 11ant

    11ant

    Dabei seit:
    28.02.2017
    Beiträge:
    2.462
    Zustimmungen:
    1.539
    Beruf:
    Bauherrenberater
    Ort:
    RLP Nord
    Benutzertitelzusatz:
    bringt Sie gut beraten ins Eigenheim
    Welchen Smiley wolltest Du denn da nutzen ?
     
  13. #13 nordanney, 12.02.2024
    nordanney

    nordanney

    Dabei seit:
    15.09.2021
    Beiträge:
    6.223
    Zustimmungen:
    3.589
    Beruf:
    Finanzierer/Investor/Bau- und Sanierungslaie
    Ort:
    Niederrhein
    ;-)

    Noch Fragen? Kein echter Smiley, nur drei Satzzeichen...
    Die tollen externen Smiley schenke ich mir ja schon. Obwohl für manche Fragen würde ich sowas z.B. schon mal gerne nutzen: [​IMG] [​IMG] [​IMG]
     
    11ant gefällt das.
  14. #14 socketspce, 21.03.2024
    socketspce

    socketspce

    Dabei seit:
    22.03.2019
    Beiträge:
    234
    Zustimmungen:
    23
    Lehrgeld? Wofür?
    Rohbau ist fast fertig.
    180qm Platte auf 100mm Dämmung und 53qm Garage auf 100mm Dämmung für 38 000€
    Maurerarbeiten sind auch fast abgeschlossen. Material komplett 13 000€, Lohn 19 000€ Netto wie gesagt.
    In 2 Wochen kommt das 358qm Walmdach mit 2 Erkern für 110 000€.
    Bis lang noch kein Lehrgeld bezahlt
     
  15. #15 socketspce, 21.03.2024
    socketspce

    socketspce

    Dabei seit:
    22.03.2019
    Beiträge:
    234
    Zustimmungen:
    23
     
  16. #16 Holzhaus61, 21.03.2024
    Holzhaus61

    Holzhaus61

    Dabei seit:
    10.04.2023
    Beiträge:
    1.325
    Zustimmungen:
    580
    Also, die Bodenplatte hätte ich ja für 25 gemacht... ;)
     
  17. #17 socketspce, 21.03.2024
    socketspce

    socketspce

    Dabei seit:
    22.03.2019
    Beiträge:
    234
    Zustimmungen:
    23
    Garage und Haus zusammen:
    92 Meter Frostschürze (45x60)
    - 540KG Körbe R118
    - 3150KG Matten Q257a
    - 78 Kubikmeter Beton insgesamt
    - 257qm CS 4000 Dämmung in 100mm
    - 17 KG Rohr Auslässe
    - 70 Meter Edelstahl Erder
    - 320 Meter 12mm Rundeisen
    - Dazu 2 Lagen Folie, Sauberkeitsschicht etc.

    Alleine für Material lag ich mit meinem Berechnung bei fast 30 000€, wenn ich es selber kaufe und 140€ Beton ansetze je Kubikmeter
    Bestelle beim nächsten mal gerne bei Dir für 25 000€ :-)
     
    HansFranz und SIL gefällt das.
  18. #18 HansFranz, 24.03.2024
    HansFranz

    HansFranz

    Dabei seit:
    04.02.2010
    Beiträge:
    173
    Zustimmungen:
    9
    Beruf:
    Elektriker
    Ort:
    Mittel-Deutschland - Sachsen
    Und alles mit den gleichen Steinen, die Innen- wie Außenwände > nur 17,5 cm ?
    Die Bodenplatten haben aber massig an Material verbraucht, früher hat man da mit viel weniger Eisen den gleichen Effekt erzielt, oder wird das ´ne Panzerschmiede mit extremer FußBodenbelastung?

    Bei der Bodenplatte fürs Haus hast dich aber arg verrechnet 14,5 x 17 ist 246,5 m2 und nicht bloß 180 m2, oder wurde intern etwas über 65 m2 weggelassen?
    Die Kosten für die beiden Bodenplatten bei 38 tsnd € waren viel höher aus die vom Ziegelbauwerk.
    Da hätte man sich auch einen Keller dafür leisten können bei etwas mehr Kosten, aber mit der riesen Garage wird da wohl alles drin verschwinden was eigentlich in einen Keller kommt, wie z.B. die Heizung?
    Am Material hat da wohl keiner wirklich was verdient, denn für die Steine hat das allein schon 10,5 tsdn € lt. Onlinerecherche gekostet, ohne Antransport. Der m2-Preis für Mauerwerk so um 45 € inkl. allem, auch mit dem Ringanker u. dem Einschalen wie Gießen? Das sind schon ganz ordentl. Preise und waren nicht schon vor 3 Jahren vor Corona u. nun dem Ukraine-Krieg? Die Region wohl so eher Nord-D-Land, alte oder neue BL?
     
    11ant gefällt das.
  19. #19 socketspce, 24.03.2024
    Zuletzt bearbeitet: 24.03.2024
    socketspce

    socketspce

    Dabei seit:
    22.03.2019
    Beiträge:
    234
    Zustimmungen:
    23
    Ja mit den 180qm habe ich mich vertan, ich habe aus versehen die Wohnfläche angegeben..... Sind 180qm Wohnfläche und 53qm Garage, von den Außenmaße der Platte sind noch 3x18m Terrasse abzuziehen. Somit kommt man auf ca.92,6 umlaufende Meter. Die reine Betonplatte (Haus und Garage) waren dann 258qm insgesamt zuzüglich 31,5cm Fundament Überstand. Der Quadratmeter Sohle inklusive Frostschürze und und 100mm Dämmung hat dann ca. 150€ gekostet. Das ganze als 49er Wand mit 17,5er Poroton und 18er Dämmung zuzüglich Klinker im WDF. Für da komplette Material Rohbauwände und Ringanker habe ich 13 000€ bezahlt (17,5er, Zement, Balkenschalung, Körbe, Rundeisen, Stürze etc.) Der Maurer hat wie gesagt 19 000€ Netto genommen. Gemauert wurde insgesamt 6 Tage mit 4 Mann je 10 Stunden inklusive Ringanker auf allen Wänden. Im Ringanker stecken ca. 5 Tonnen Beton, die kommen noch dazu zur Rechnung. Der Rohbau ohne Platte für Bungalow EG und Garage hat mich dann also ca. 36 000€ gekostet. Das Walmdach (358qm mit 2 Erker, 6 Velux Fenster, umlaufend Schieferband und 4 Meter Vordach) mit 110 000€ kosten. Im ersten . OG werden zusätzlich zu den 180qm noch weitere ca. 90qm Netto Wohnfläche entstehen. Anbei ein paar Bilder. Da sieht man auch den Bewehrungsplan, den Grundriss und das Angebot den Betonplattenbauers. Baukosten insgesamt für Haus und Garage mit abgehängter Decke 25cm auf 180qm ca. 460 000€ zuzüglich NK.

    PS: Heizung etc. kommt alles auf das Dach über den HWR Raum. Haben ja einen riesen Dachboden mit 10 Fenstern, der ausgebaut wird mit Estrich etc.
     

    Anhänge:

    HansFranz gefällt das.
  20. #20 socketspce, 24.03.2024
    socketspce

    socketspce

    Dabei seit:
    22.03.2019
    Beiträge:
    234
    Zustimmungen:
    23
    Die 19 000€ Netto waren reine Lohnkosten für den Maurer, wie gesagt, kommt Material mit ca. 13 000€ noch dazu. Wollten schon vor 3 Jahren bauen aber die Umwandlung des Ackers in Bauland hat sich wegen Corona massiv verzögert. Region ist Hannover
     
Thema:

Bungalow Maurerarbeiten Preis

Die Seite wird geladen...

Bungalow Maurerarbeiten Preis - Ähnliche Themen

  1. Knallgeräusche im Bungalow

    Knallgeräusche im Bungalow: Hallo liebe Community, Wir haben ende 2023 ein Bungalow Baujahr 1970 nach 4 monatiger Innenrenovierung durch eine Baufirma bezogen. Schon an den...
  2. Wand-/Deckenanschluss Bungalow

    Wand-/Deckenanschluss Bungalow: Hallo zusammen, eine kurze Frage zum Thema Spachteln der InnenWand-/Deckenanschlüsse. Wir haben ein Fertighaus-Bungalow, also innen komplett...
  3. Nagelplattenbinder für Bungalow mit Walmdach

    Nagelplattenbinder für Bungalow mit Walmdach: Hallo Zusammen, ich wollte mal nachfragen, ob ihr wisst, wo man eine gute Ausschreibungsunterlage als Beispiel für eine Dachkonstruktion findet: -...
  4. Kostenvergleich Bungalow contra 1.5 Geschossbau?

    Kostenvergleich Bungalow contra 1.5 Geschossbau?: Hallo zusammen, ich hoffe hier als Laie etwas Input bzgl. der möglichen Bauform zu bekommen, um einen möglichen Vorentschied zur weiteren...
  5. Bungalow - Holz-Ständerbau-Wand dämmen

    Bungalow - Holz-Ständerbau-Wand dämmen: Hallo, es geht um die Dämmung eines alten Holz-Bungalows. Die Wände sind aktuell in Ständerbauweise gebaut mit 100er Balken und von außen mit...