Dachgeschoss = Wohnraum?

Diskutiere Dachgeschoss = Wohnraum? im Baugesuch, Baugenehmigung Forum im Bereich Rund um den Bau; Foto hättest Du auch schon eher einstellen können. Das gebaute entspricht nicht dem eingestellten Schnitt. Nur habe ich im DG keine Decke Messen...

  1. #21 Baufuchs, 06.11.2014
    Baufuchs

    Baufuchs Gast

    Foto hättest Du auch schon eher einstellen können.

    Das gebaute entspricht nicht dem eingestellten Schnitt.

    Messen von OK Fußboden bis Schrägenverkleidung.

    Soll = Höhe von 2,40m über 50% der Grundfläche, Flächen unterhalb Höhe 1,50m bleiben ausser Betracht.

    Also: messen an welchen Stellen der Schrägen 1,50m Höhe vorhanden ist und diese Grundfläche ermitteln.
    dann messen an welchen Stellen eine Höhe von 2,40m vorhanden ist, Grundfläche ermitteln.

    Dann prüfen ob 50% mit Höhe 2,40m erreicht werden.
     
  2. OlliL

    OlliL

    Dabei seit:
    12.10.2011
    Beiträge:
    933
    Zustimmungen:
    1
    Beruf:
    Softwareentwickler
    Ort:
    Leverkusen
    Entschuldigung dafür - jetzt sehe ich es auch - im offenen Dachraum des Schnittes ist eine "Decke" eingezeichnet die = dem Beginn des Walmdaches der Dachgauben ist = 2.02m. :(

    Somit sollte doch aber 2,40m "lichte Höhe" OK Fussboden bis zur Holzverschalung des Satteldaches gegeben sein? Natürlich weniger Fläche als die 30qm von mir weiter oben da die sich a) auf 2,30m beziehen und b) auf die Dachaussenhaut.

    Somit
    - a) kein Vollgeschoss
    - b) wieviel Raumfläche mit einer lichten Höhe von 2,40m vorliegt müsste nachgemessen werden - es gilt hier OK Fussboden bis erreichen der Holzverkleidung des Daches/der Dachgaube?

    Edit:
    OK - mein Posting hat sich mit deiner Bearbeitung überschnitten ;)
    Alles klar - genau so habe ich es mir nun gedacht wie du geschrieben hast
    Gilt dies für das gesamte Geschoss oder nur für den beabsichtigten Wohnraum?
    Also - was ist mit Treppen und einer kleinen Abstellkammer (Auf dem Foto zu erkennen - hinter der Tapetentür)?
     
  3. #23 Baufuchs, 06.11.2014
    Baufuchs

    Baufuchs Gast

    Bei Berechnung Vollgeschoss ja/nein wird Treppe und Abstell mitgerechnet.
     
  4. OlliL

    OlliL

    Dabei seit:
    12.10.2011
    Beiträge:
    933
    Zustimmungen:
    1
    Beruf:
    Softwareentwickler
    Ort:
    Leverkusen
    OK, und bei der Berechnung bzgl. Wohnraum? Das meinte ich - ich denke mal nur der Raum der als Wohnraum gelten soll - man könnte sich ja auch vorstellen einen "Trockenraum" und einen "Wohnraum" zusammen auf dem DG zu haben - dann wird der Trockenraum ja sicherlich auch nicht mit bei der Wohnraumberechnung einbezogen ;)
     
  5. #25 Baufuchs, 06.11.2014
    Baufuchs

    Baufuchs Gast

    Nicht "Wohnraum" ist das Kriterium, sondern "Aufenthaltsraum".

    Abstellraum und Treppenhaus sind keine Aufenthaltsräume.
     
  6. OlliL

    OlliL

    Dabei seit:
    12.10.2011
    Beiträge:
    933
    Zustimmungen:
    1
    Beruf:
    Softwareentwickler
    Ort:
    Leverkusen
    OK, alles klar - verstanden nun. Ich werde heute den (geplanten) "Aufenthalsraum" ausmessen von OK Fussboden bis zur Holzvertäfelung:
    - Grundfläche mit lichter Höhe >= 1,50m
    - Grundfläche mit lichter Höhe >= 2,20m
    - Grundfläche mit lichter Höhe >= 2,30m
    - Grundfläche mit lichter Höhe >= 2,40m

    2,20 und 2,30 für den Fall das in der Stadt eine niedrigere Höhe als 2,40m zulässig ist (in Köln z.B. der Fall).

    Noch was anderes - ich weiss jetzt nicht ob ich in der Bauakte den Schlussabnahmeschein habe bzw. sagt der ja auch nichts darüber aus, ob die aktuelle Situation so wie bei der Abnahme war. Aber - wenn im Schnitt (Bestandteil des Bauantrags) eine Decke bei 2,02m "ersichtlich" ist, ich hier nun aber gar keine Decke habe........ rechtens?
     
  7. OlliL

    OlliL

    Dabei seit:
    12.10.2011
    Beiträge:
    933
    Zustimmungen:
    1
    Beruf:
    Softwareentwickler
    Ort:
    Leverkusen
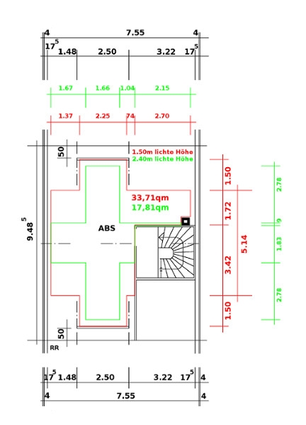
    So... ich habe nun mal gemessen.
    Das schwarze sind die Maße aus dem Grundriss der Baugenehmigung - also sicherlich "Rohbaumaße".
    Die roten Linien stellen die Grundfäche mit lichter Höhe >= 1.50m dar
    Die grünen Linien stellen die Grundfläche mit lichter Höhe >= 2.40m dar
    gemessen habe ich vom Teppich zur Holzvertäfelung des Daches/der Dachgaube

    [​IMG]

    Macht 33.71qm Grundfläche mit lichter Höhe 1,50m
    Macht 17,81qm Grundfläche mit lichter Höhe 2.40m

    Dieser kleine "Zipfel" grüne Grundfläche neben dem Schornstein - wird das mit angerechnet oder "fallen" gelassen da nur ca. 9cm breit? Wenn das ein Problem wäre - könnte man diesen Teil generell als "Abstellraum" definieren und nur den Hauptraum als "Aufenthaltsraum"? Quasi wie der Schwarze Kasten unten - der ist nur Abstellraum mit einer Tapetentür zum Hauptraum.
     
  8. OlliL

    OlliL

    Dabei seit:
    12.10.2011
    Beiträge:
    933
    Zustimmungen:
    1
    Beruf:
    Softwareentwickler
    Ort:
    Leverkusen
    Habe heute mal mit einem ortsansässigen Architekten telefoniert, da es mir doch keine ruhe gelassen hat. Generell sei wohl auch eine Höhe kleiner 2.40 möglich. Ein Knackpunkt dürfte aber wohl der 2. Rettungsweg werden. Nach seiner Aussage muss eine Fensteröffnung mit den lichten Maßen 120x90 zur Verfügung stehen was man "zur Not" auch mit einem zugelassenen DFF erreichen könnte. Nun - für ein derartiges DFF habe ich an der Hausvorderseite keinen Platz (und Rückseite ist sicherlich auch nicht zulässig - wie soll die Feuerwehr da hinkommen....) und die Fenster in meinen 2 Gauben sind Doppelfenster wo jedes einzelne Fenster eine Fensteröffnung von 99x101cm hat. Ohne bauliche Änderungen ist wohl ein "Aufenhaltsraum" nicht genehmigbar nehme ich mal an....
     
  9. OlliL

    OlliL

    Dabei seit:
    12.10.2011
    Beiträge:
    933
    Zustimmungen:
    1
    Beruf:
    Softwareentwickler
    Ort:
    Leverkusen
    steht irgendwo geschrieben, dass das Fenster 1,20m hoch sein muss? Oder reicht auch 1,20m Breite und 90cm Höhe? In der LBauO NRW finde ich nur unter §40:

    Man könnte ja darüber nachdenken die 2flügligen Fenster 2x99x101 durch 1x99x120 und 1x99*78 zu ersetzen?
     
  10. Taipan

    Taipan

    Dabei seit:
    12.10.2011
    Beiträge:
    5.673
    Zustimmungen:
    3
    Beruf:
    Architekt
    Ort:
    in einem Haus
    Angaben sind idR Breite x Höhe x Tiefe

    Dort steht ausserdem ein MUSS. Kein kann, soll oder darf ... Ausserdem ist damit das lichte Rahmenmaß und NICHT das Rohbaulichte angegeben.
     
  11. OlliL

    OlliL

    Dabei seit:
    12.10.2011
    Beiträge:
    933
    Zustimmungen:
    1
    Beruf:
    Softwareentwickler
    Ort:
    Leverkusen
    Ich rede ja auch von lichten Maßen - also "Fenster auf und Öffnung im Fensterrahmen messen".

    Breite x Höhe finde ich "interessant" - ich meine - das macht hier schon Sinn. Der Feuerwehrmann ist mit seinem Atemschutz sicherlich höher als breiter, aber ich kenne halt nur "Höhe x Breite x Tiefe" als Standard wenn nix angegeben ist. Interessant das dies hier im Gesetz nun Breite x Höhe ist ;)

    Ein "MUSS" habe ich nicht abgestritten - aber gut das du nochmal drauf hinweist ;)
     
Thema: Dachgeschoss = Wohnraum?
Besucher kamen mit folgenden Suchen
  1. bayern dachgeschoss zu wohnraum

    ,
  2. dachboden ausbauen genehmigung bayern

    ,
  3. wohnraum im dachgeschoss

    ,
  4. Drempelwand 1 30m,
  5. dachgeschoss ausbauen baugenehmigung bayern,
  6. wohnflächenberechnung dachgeschoss bayern,
  7. wo messe ich die lichte höhe dachgeschoss,
  8. genehmigungsfreie dachausbauten bayern,
  9. aufenthaltsraum dachgeschoss bayern,
  10. ausgebautes dachgeschoss als wohnraum,
  11. wann ist.win Dachgeschoss Wohnraum in bayern,
  12. aufenthaltsräume baybo berechnung gaube,
  13. nutzungsänderung dg ausbau bayern,
  14. dachgauben genehmigungsfrei,
  15. dachgeschoss satteldach als wohnraum,
  16. wann rechnet mann ein dachgeschoss als wohnraum,
  17. lichte höhe dachgeschoss messen,
  18. wohnräume im DG,
  19. dachgaube grundriss,
  20. Schnitt Baugesuch Raumhöhe
Die Seite wird geladen...

Dachgeschoss = Wohnraum? - Ähnliche Themen

  1. Dachgeschoss ausgebaut, überall Risse im Boden

    Dachgeschoss ausgebaut, überall Risse im Boden: Hallo zusammen, Wir sind gerade dabei unser Dachgeschoss aufzubauen und haben in diesem Zug den alten Estrich entfernt. In der Betondecke sind...
  2. Kamin Abwärme aus Dachgeschoss ins Erdgeschoss bekommen.

    Kamin Abwärme aus Dachgeschoss ins Erdgeschoss bekommen.: Hi. Ich hab seit ein paar Wochen einen etwas Überdimensioniert Kamin im 1 1/2 Dachgeschoss und wenn der in der Übergangszeit jetzt an ist wird es...
  3. Dachgeschoss zum Wohnraum ausbauen - viele Problemstellungen

    Dachgeschoss zum Wohnraum ausbauen - viele Problemstellungen: Hallo zusammen, ich möchte bzw. bin gerade dabei unser Dachgeschoss auszubauen - zu einem (fast) vollwertigen Wohnraum. Warum fast? Ein kleiner...
  4. Terasse im Dachgeschoss abdichten (drunter Wohnraum)

    Terasse im Dachgeschoss abdichten (drunter Wohnraum): Hallo zusammen, bei unserem Neubau möchte ich die Terasse abdichten und hoffe ihr könnt mir da ein paar Tipps geben. Infos: Süd-Terasse...
  5. Ausgebautes Dachgeschoss als Wohnraum nutzbar

    Ausgebautes Dachgeschoss als Wohnraum nutzbar: Wir haben ein kleines Reihenhaus (76 qm) und mittlerweile 2 kleine Kinder, wünschen uns aber noch ein drittes. Im EG befinden Sich Toilette,...