Dachloggia zurückbauen, mehr Wohnraum schaffen

Diskutiere Dachloggia zurückbauen, mehr Wohnraum schaffen im Dach Forum im Bereich Neubau; Hallo zusammen, in unserem alten Häuschen Bj. 1966 ist auf der Südseite eine große Dachloggia (Breite 8m, Tiefe ca. 1,9m) eingebaut. Vermutlich...

  1. #1 cyprette, 14.03.2017
    cyprette

    cyprette

    Dabei seit:
    11.06.2013
    Beiträge:
    57
    Zustimmungen:
    1
    Beruf:
    Controller
    Ort:
    Erlangen
    Hallo zusammen,

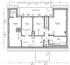
    in unserem alten Häuschen Bj. 1966 ist auf der Südseite eine große Dachloggia (Breite 8m, Tiefe ca. 1,9m) eingebaut. Vermutlich wurde diese nachträglich (evtl. in den 1980ern) gedämmt, da vom Wohnraum zur Loggia eine 8cm hohe Schwelle überwunden werden muss. Aufbau unter den Betonfliesen ist bis auf Kies noch unbekannt.

    Ich überlege nun, die Loggia zurückzubauen, da a) diese schadensanfälllig ist und b) wir weiteren Wohnraum gebrauchen können. Konkret soll aus den drei Räumen dahinter (Arbeit, Kind 1 & 2) zwei Räume ungefähr gleicher Breite werden. Eine Mini-Loggia vor der Treppe und vor Schlafen könnte / sollte bestehen bleiben, ggf. Dämmung mit Vakuumpaneelen bzw. anderer sehr dünner Dämmung.

    Der Kniestock beträgt 90cm, die Dachneigung 49°. Statt der Loggia würde ich gerne mehrere Dachfenster mit Verlängerung nach unten in Form von Kniestock-/Drempelfenstern setzen lassen.

    Mir ist klar, dass ich für diesen Umbau (wie schon bei unseren bisherigen Umbauten) wieder einen Architekten und Statiker beauftragen werde. Mir geht es her um ein kurzes Meinungsbild von euch:

    - Lässt sich das Ganze relativ einfach realisieren oder handelt man sich neue schadensträchtige Lösungen ein?
    - Reicht die neue Zwischenwand zwischen den beiden neuen Räumen (aus Arbeit, Kind 1&2 => 2 Räume) aus, um die darüber liegende Dachpfette zu stützen?
    - Was ist ein kostengünstiger Aufbau für das Vorhaben - z.B. Holzständerbauweise?
    - Was macht man mit dem Überstand des Dachloggia-Bodens an der Fassade? Abschneiden? Verlängern als Überdach für die darunterliegende Außentreppe?
    - Braucht es dafür eine Baugenehmigung? Wohnort Bayern

    IMG_0376_sent.jpg Plan OG.jpg

    Vielen Dank schon vorab!

    Viele Grüße
    Simon
     
  2. #2 Andybaut, 14.03.2017
    Andybaut

    Andybaut

    Dabei seit:
    02.04.2015
    Beiträge:
    5.127
    Zustimmungen:
    329
    Beruf:
    Architekt
    Ort:
    Baden-Württemberg
    Hallo,

    bevor wir hier ins Detail gehen. Dir ist klar, dass wir hier von sicherlich 30-40T€ sprechen?
     
  3. #3 cyprette, 14.03.2017
    cyprette

    cyprette

    Dabei seit:
    11.06.2013
    Beiträge:
    57
    Zustimmungen:
    1
    Beruf:
    Controller
    Ort:
    Erlangen
    Ich wäre jetzt, naiv wie ich bin, von 20-30T€ ausgegangen, davon schon einmal 10T€ für die Dachfenster mit Kniestockfenster...

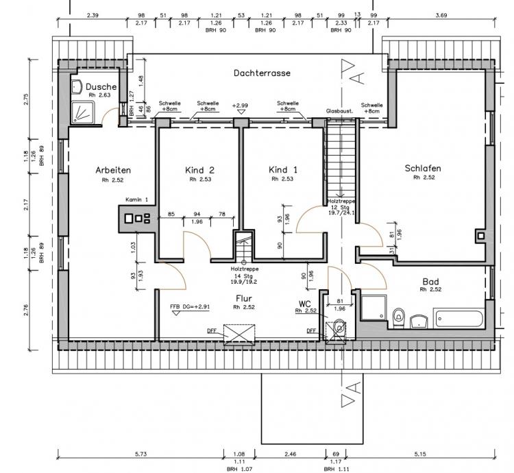
    Schwingt in deiner Frage mit, dass sich der Aufwand im Verhältnis zum erzielten Raumgewinn nicht lohnt? Durch die Verschiebung des Wohnraums nach "oben" im Plan bzw. Süden könnte man eine komplett neue Aufteilung des OGs realisieren, mit wesentliche großzügigeren und gleichmäßiger großen Kinderzimmern. Wir haben drei kleine Töchter, und da wäre auch für später ein separates Kinderbad nicht schlecht. Siehe anbei meine Träumereien...

    Plan OG neu.jpg
     
  4. #4 Andybaut, 14.03.2017
    Andybaut

    Andybaut

    Dabei seit:
    02.04.2015
    Beiträge:
    5.127
    Zustimmungen:
    329
    Beruf:
    Architekt
    Ort:
    Baden-Württemberg
    ich wollte nur sicher gehen, dass du dir keine falschen Vorstellungen bei den Kosten machst :-)


    - Lässt sich das Ganze relativ einfach realisieren oder handelt man sich neue schadensträchtige Lösungen ein?
    ich würde von einer später weniger schadensanfälligen Ausbaulösung ausgehen. Jetzt ist es sicher anfälliger.

    - Reicht die neue Zwischenwand zwischen den beiden neuen Räumen (aus Arbeit, Kind 1&2 => 2 Räume) aus, um die darüber liegende Dachpfette zu stützen?
    auf der Wand wird nicht unbedingt was draufliegen.
    Man wird wohl am Kniestock eine Betonscheibe benötigen mit Fußpfette und das ganze ins bestehende Dach rückverankern müssen.
    So zumindest auf den ersten Blick.


    - Was ist ein kostengünstiger Aufbau für das Vorhaben - z.B. Holzständerbauweise?
    Da wird man um Stahlbeton und Stahleinlagen nicht herumkommen. Das kurze Dachstück zwischen den beiden Räumen der Töchter will nach außen wegdrücken.
    Durch die neuen tiefen Fenster fehlt im hier der halt.

    - Was macht man mit dem Überstand des Dachloggia-Bodens an der Fassade? Abschneiden? Verlängern als Überdach für die darunterliegende Außentreppe?
    Ich bin gedanklich von abschneiden ausgegangen.

    - Braucht es dafür eine Baugenehmigung? Wohnort Bayern
    komme nicht aus Bayern. Vermutlich aber schon, da die Hülle geändert wird.
     
  5. #5 cyprette, 14.03.2017
    cyprette

    cyprette

    Dabei seit:
    11.06.2013
    Beiträge:
    57
    Zustimmungen:
    1
    Beruf:
    Controller
    Ort:
    Erlangen
    Die Lösung mit der Betonscheibe und Rückverankerung hört sich nach dem Kostentreiber an - richtig? Ist die Notwendigkeit dieser Lösung wahrscheinlicher, weil ich mir Kniestockfenster einbilde ? D.h. könnte man Betonscheibe und Rückverankerung evtl. vermeiden, wenn man "nur" Dachfenster einbaut und keine Kniestockfenster?

    Wg. der Aussicht nach Süden lohnt sich halt auch eine große Verglasung (nur Bungalows, dahinter Wald), von der gewünschten Helligkeit ganz zu schweigen. Den meisten Raumgewinn würden natürlich große Gauben bringen, aber das wird ja kostenmäßig noch einmal in einer ganz anderen Liga spielen...:mauer
     
  6. #6 Andybaut, 14.03.2017
    Andybaut

    Andybaut

    Dabei seit:
    02.04.2015
    Beiträge:
    5.127
    Zustimmungen:
    329
    Beruf:
    Architekt
    Ort:
    Baden-Württemberg
    Eine große Gaube würde mir hier gefühlt sogar einfach vorkommen.
    Man könnte sogar den Vorsprung belassen und dämmen und verkleiden.


    Aber das sind alles nur Mutmassungen ohne die Statikunterlagen.
    Wenn du einen favorisierten Zimmermann hast, dann gehe zu dem und lass dich dort beraten.

    Die können das auch besser einschätzen was einfach oder komplex ist als die meisten Architekten.

    Anschliessend ordentlich durchplanen lassen. Nur der Zimmermann ist auch schwierig, da es sonst
    halt gerne auch mal ein "ist halt so geworden" wird.
     
  7. #7 cyprette, 14.03.2017
    Zuletzt bearbeitet: 14.03.2017
    cyprette

    cyprette

    Dabei seit:
    11.06.2013
    Beiträge:
    57
    Zustimmungen:
    1
    Beruf:
    Controller
    Ort:
    Erlangen
    Danke erst mal für deine schnellen und hilfreichen Antworten. Alles weitere würde ohne konkrete Berechnungen und Besichtigung vor Ort zu sehr in Richtung Glaskugel gehen...

    "Einfach" müsste für mich als Bauherrn immer mit geringeren Kosten und/oder höherem Nutzwert einhergehen :konfusius

    Den Tipp mit dem Zimmermann im Zusammenspiel mit Architekten werde ich beherzigen. Hatte bei den anfänglichen Diskussionen dazu am Rande von anderen Arbeiten den Eindruck, dass mir alle (Archi + Handwerker) möglichst viele Gauben verkaufen wollen... also aus meiner Sicht die S-Klasse....:shades
     
  8. #8 Andreas Gr, 14.03.2017
    Andreas Gr

    Andreas Gr

    Dabei seit:
    22.10.2016
    Beiträge:
    588
    Zustimmungen:
    25
    Beruf:
    Zimmermeister
    Ort:
    Kölleda
    Andybaut hat schon Recht , eine Gaube wäre sicher einfacher zu realisieren ,und vor allem ein echter Raumgewinn für dich !
    Das mit dem Zimmermann ist natürlich auch gut :bef1003:
     
  9. #9 cyprette, 15.03.2017
    cyprette

    cyprette

    Dabei seit:
    11.06.2013
    Beiträge:
    57
    Zustimmungen:
    1
    Beruf:
    Controller
    Ort:
    Erlangen
    Wenn du jetzt noch aus der Nähe von Erlangen gekommen wärst, wäre ich stutzig geworden...:wow
     
  10. #10 Andreas Gr, 15.03.2017
    Andreas Gr

    Andreas Gr

    Dabei seit:
    22.10.2016
    Beiträge:
    588
    Zustimmungen:
    25
    Beruf:
    Zimmermeister
    Ort:
    Kölleda
    Ne siehste ja , aber wo er Recht hat.
     
  11. #11 cyprette, 24.03.2017
    cyprette

    cyprette

    Dabei seit:
    11.06.2013
    Beiträge:
    57
    Zustimmungen:
    1
    Beruf:
    Controller
    Ort:
    Erlangen
    Nur noch so als Idee: Wenn über die gesamte Breite der Loggia DFFs mit Kniestockfenstern verbaut werden, es also keine kurzen Dachstücke zwischen den DFFs gibt, würde das ohne aufwändige Rückverankerung gehen? Ggf. mit Stütze durch die Trennwand zwischen den Kinderzimmern? Oder wird das Ganze zu wackelig?
     
  12. #12 Andreas Gr, 25.03.2017
    Andreas Gr

    Andreas Gr

    Dabei seit:
    22.10.2016
    Beiträge:
    588
    Zustimmungen:
    25
    Beruf:
    Zimmermeister
    Ort:
    Kölleda
    gehen mag das , das wird aber viiiiiieeeel teurer, mit viiiieeel weniger Nutzfläche als eine Gaube bringen würde. Zumindest im Verhältnis zur gewonnenen Zugewinn .
    Das musst Du abwägen !
     
Thema: Dachloggia zurückbauen, mehr Wohnraum schaffen
Besucher kamen mit folgenden Suchen
  1. balkon in wohnraum umbauen

    ,
  2. balkon zum wohnraum umbauen

    ,
  3. loggia zum wohnraum umbauen

    ,
  4. umwandlung einer logia in dachgaube,
  5. Loggia schließen Kosten,
  6. wohnzimmer loggia nachträglich,
  7. loggia zum wohnraum umbauen kosten,
  8. loggia zum zimmer umbauen,
  9. logia in wohnraum umwandeln,
  10. loggia zurückbauen,
  11. loggia zu wohnraum umbauen,
  12. umbau loggia zu wohnraum,
  13. ausbau der loggia,
  14. balkon zu zimmer umbauen,
  15. baugenehmigung loggia rückbauen,
  16. giebel dachloggia,
  17. giebel loggia in wohnraUm umwandeln
Die Seite wird geladen...

Dachloggia zurückbauen, mehr Wohnraum schaffen - Ähnliche Themen

  1. Dachloggia zu Wohnraum zurückbauen

    Dachloggia zu Wohnraum zurückbauen: Hallo an alle, wir überlegen, unsere 25 Jahre alte Dachloggia zu Wohnraum zurückbauen zu lassen, da wir immer wieder mit Dichtigkeitsproblemen zu...
  2. Dachloggia/Dacheinschnitt

    Dachloggia/Dacheinschnitt: Hallo zusammen, habe hier nun schon einige Beiträge gelesen und wollte mich auch mal um Eure Expertenmeinung bemühen. Ich bewohne eine...
  3. Dachloggia wird gerade saniert.

    Dachloggia wird gerade saniert.: Hallo, bin etwas beunruhigt , da ich nicht sicher bin, ob dabei alles OK ist, z.B. ob ein Gefälle vorhanden ist. Der Dachdecker, dem ich den...
  4. Dachloggia mit Balkongeländer nachrüsten (Teilschräge entfernen)

    Dachloggia mit Balkongeländer nachrüsten (Teilschräge entfernen): Hallo, Ich hoffe es können mir einige von euch mit Fachwissen, hinsichtlich meines Vorhabens, behilflich sein. Bewohne eine Dachgeschosswohnung...
  5. Bautenschutzmatte auf Dachloggia richtig verlegen

    Bautenschutzmatte auf Dachloggia richtig verlegen: Hallo zusammen, ich lasse gerade ein Haus bauen. Im Dachgeschoss gibt es eine Dachloggia - darunter ist ein Zimmer. Als ich letztens auf der...