Dämmung zwischen Garagenwand und Hauswand

Diskutiere Dämmung zwischen Garagenwand und Hauswand im Mauerwerk Forum im Bereich Neubau; Hallo, Wir haben angefangen, die Innenwand der Garage anzulegen. Nun stelle ich mir die Frage, wie genau wir die Dämmung der zweischaligen Wand...

  1. #1 Erich89, 21.01.2023
    Erich89

    Erich89

    Dabei seit:
    12.11.2018
    Beiträge:
    39
    Zustimmungen:
    1
    Beruf:
    Kfz-Meister
    Ort:
    Großefehn
    Hallo,

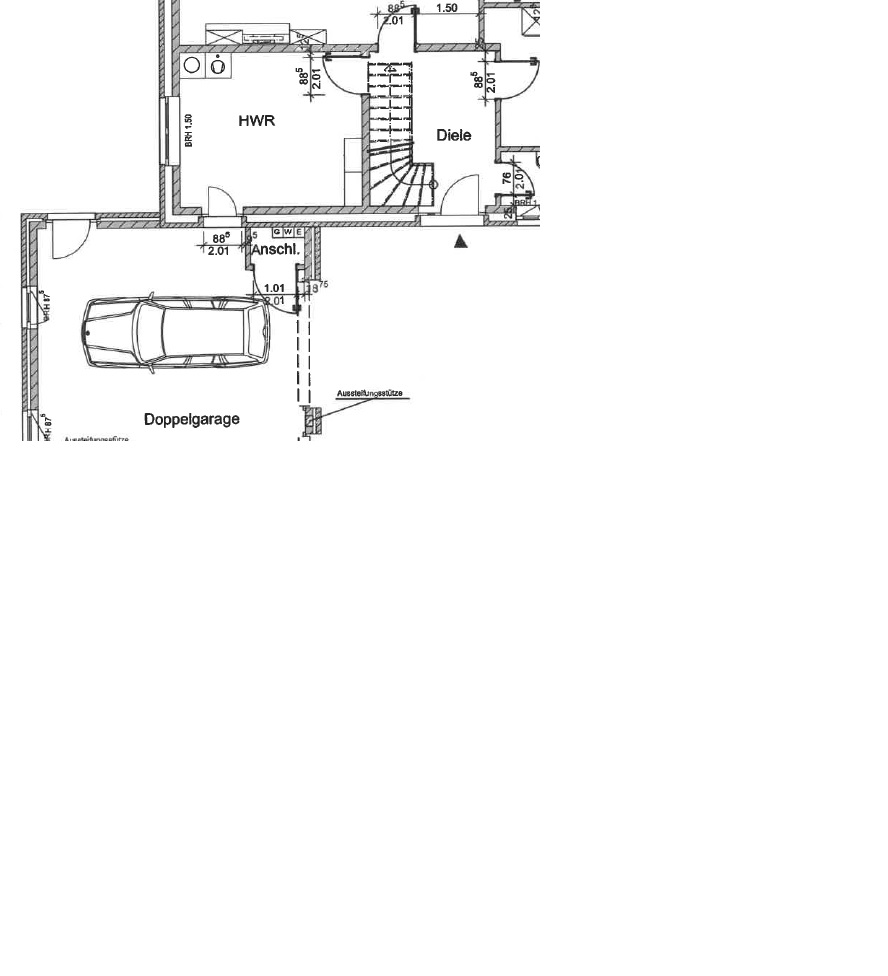
    Wir haben angefangen, die Innenwand der Garage anzulegen. Nun stelle ich mir die Frage, wie genau wir die Dämmung der zweischaligen Wand dort zwischen der Garage und das Haus verbauen müssen. Ich habe dazu ein paar Skizzen gemacht. Könntet ihr mir dabei helfen?

    Die Innenwand der Garage haben wir durchgehend in 17,5er Porenbeton gemacht.

    Rot: Dämmung haus 160mm
    Blau: Dämmung Garage 80mm
    Gelb: Luftschicht/Fingerspalt ca. 3cm

    Beispiel 1.jpg Beispiel 2.jpg Beispiel 3.jpg original.jpg
     
  2. BaUT

    BaUT

    Dabei seit:
    30.10.2019
    Beiträge:
    9.099
    Zustimmungen:
    5.674
    Beruf:
    Baufacharbeiter und Dipl.-Ing. Hochbau
    Ort:
    Berlin
    Benutzertitelzusatz:
    Erklärbär
    Was spricht gegen die Ausführung nach Originalplanung (Bild 4)?
    Was sagt euer Planer/Energieberater dazu?
     
  3. #3 Erich89, 22.01.2023
    Erich89

    Erich89

    Dabei seit:
    12.11.2018
    Beiträge:
    39
    Zustimmungen:
    1
    Beruf:
    Kfz-Meister
    Ort:
    Großefehn
    Ich habe meinem Architekt das auch gefragt und noch keine Antwort erhalten. Mich würde Mal interessieren wie das so im allgemeinen gemacht wird.
    Ich habe nun auch schon gesehen, dass der Hohlraum zwischen den beiden Gebäuden komplett gefüllt worden ist. Ohne Luftschicht.

    Es wurde ohne dämmung in der Garage geplant und nun kommt doch etwas rein.
     
  4. BaUT

    BaUT

    Dabei seit:
    30.10.2019
    Beiträge:
    9.099
    Zustimmungen:
    5.674
    Beruf:
    Baufacharbeiter und Dipl.-Ing. Hochbau
    Ort:
    Berlin
    Benutzertitelzusatz:
    Erklärbär
    Die Garage wird jetzt umlaufend in allen Wänden mit 8 cm gedämmt?
    Wer hat das angeordnet und mit welcher Begründung?
     
  5. #5 Erich89, 22.01.2023
    Erich89

    Erich89

    Dabei seit:
    12.11.2018
    Beiträge:
    39
    Zustimmungen:
    1
    Beruf:
    Kfz-Meister
    Ort:
    Großefehn
    Ja das wird nun gedämmt und habe mich selbst dafür entscheiden und mit einer Baufirma drüber gehabt.
     
  6. BaUT

    BaUT

    Dabei seit:
    30.10.2019
    Beiträge:
    9.099
    Zustimmungen:
    5.674
    Beruf:
    Baufacharbeiter und Dipl.-Ing. Hochbau
    Ort:
    Berlin
    Benutzertitelzusatz:
    Erklärbär
    Na wenn du selbst umplanst und plötzlich eine gedämmte weil beheizte Garage draus machst, dann...
    erklär uns doch erstmal das "WARUM"
    und wenn wir dann die vorgesehene Nutzung (Heizung/Lüftung/Klima) der Garage verstanden haben, können wir auch zu nötiger Dämmung und Luftdichtheit usw. beraten
     
  7. #7 Erich89, 22.01.2023
    Erich89

    Erich89

    Dabei seit:
    12.11.2018
    Beiträge:
    39
    Zustimmungen:
    1
    Beruf:
    Kfz-Meister
    Ort:
    Großefehn
    Ich habe auch mit dem Architekten drüber gehabt, es ist nur als sommerlicher wärmeschutz und das die Temperaturen nicht so stark schwanken. Also ohne Heizung.

    Ich habe heute auf einer Baustelle gesehen, dass der Hohlraum zwischen Garagen und Hauswand komplett gefüllt wird.

    Dann kann ich es ja so machen, richtig?
     
Thema: Dämmung zwischen Garagenwand und Hauswand
Besucher kamen mit folgenden Suchen
  1. dämmung garagenwand zu hauswirtschaftsraum

Die Seite wird geladen...

Dämmung zwischen Garagenwand und Hauswand - Ähnliche Themen

  1. Zweite Abdichtebene unter Fensterbank Dämmung

    Zweite Abdichtebene unter Fensterbank Dämmung: Hallo, mich würde interessieren, wie man bei der zweiten Abdichtebene vorgeht und was für Materialien man verwendet? Bei uns geht es um einen...
  2. Dämmung oberste Betongeschossdecke Neubau

    Dämmung oberste Betongeschossdecke Neubau: Hallo, ich möchte bei meinem massiv gebauten Neubau im Spitzboden die oberste Geschossdecke dämmen. Die Betondecke wurde vor circa 1 Jahr...
  3. Anbau Flachdach Dämmung

    Anbau Flachdach Dämmung: Hallo zusammen, meine Freundin und ich haben letztes Jahr ein Haus aus den 1960er‑Jahren gekauft, das wir aktuell gemeinsam sanieren. Im Jahr...
  4. Dachaufbau im OG bei vorhandener Aufsparrendämmung – Dämmung von unten

    Dachaufbau im OG bei vorhandener Aufsparrendämmung – Dämmung von unten: Guten Tag zusammen, wir haben vor kurzem ein Haus gekauft und sind aktuell mitten in der Renovierung. Im Dach ist bereits eine Aufsparrendämmung...
  5. Dämmung angrenzender Garagenwand zum Wohnbereich

    Dämmung angrenzender Garagenwand zum Wohnbereich: Hallo, ein Anbau (Wohnwintergarte/beheizter Wintergarten) grenzt direkt an eine unbeheizten Garage. Die Garage hat im Winter relativ hohe...