Dickere Decke oder Unterzug

Diskutiere Dickere Decke oder Unterzug im Bauen mit Architekten Forum im Bereich Architektur; [ATTACH] [ATTACH] Hallo, unser Architekt meint dass das ganze mit einer dickeren Decke funktioniert und dass wir keinen Unterzug brauchen. Er...

  1. #1 bauen2025, 16.11.2025
    bauen2025

    bauen2025

    Dabei seit:
    31.03.2024
    Beiträge:
    2
    Zustimmungen:
    0
    upload_2025-11-16_6-22-10.png

    upload_2025-11-16_6-22-31.png
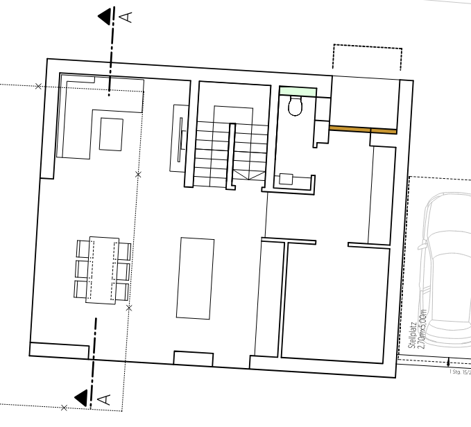
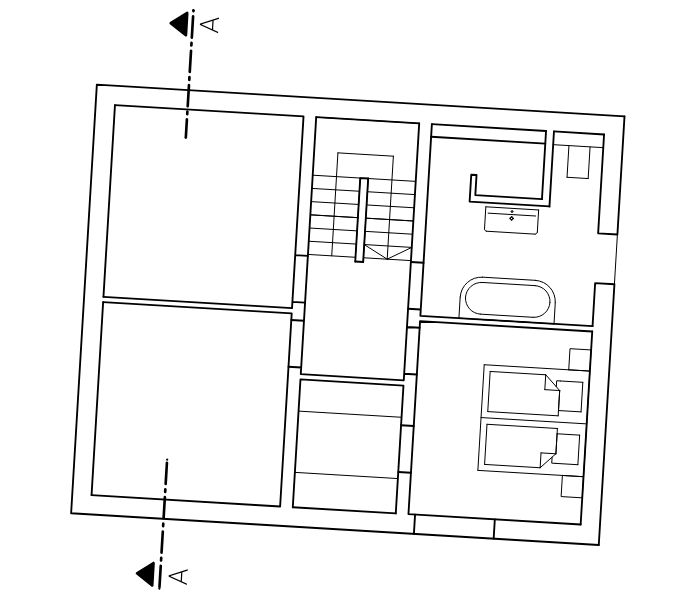
    Hallo,

    unser Architekt meint dass das ganze mit einer dickeren Decke funktioniert und dass wir keinen Unterzug brauchen. Er meint auch dass die Kosten vergleichbar sind.
    Was denkt ihr?
    Ich kannmit einem Unterzug ganz gut leben.
     
  2. Pflunz

    Pflunz

    Dabei seit:
    14.08.2024
    Beiträge:
    80
    Zustimmungen:
    21
    Du hast ja nicht einmal ein Maß angegeben.
    Der Architekt kann da was aus Erfahrung sagen, letztes Wort hat aber der Statiker. Bei einer dickeren Decke brauchst du eventuell eine weitere Stufe bei deiner Treppe.
     
  3. #3 bauen2025, 16.11.2025
    bauen2025

    bauen2025

    Dabei seit:
    31.03.2024
    Beiträge:
    2
    Zustimmungen:
    0
    8.11*9.99
     
  4. Yilmaz

    Yilmaz

    Dabei seit:
    28.03.2006
    Beiträge:
    7.263
    Zustimmungen:
    1.296
    Beruf:
    Maurer & Betonbaumeister
    Ort:
    Delbrück/Westfalen
    Benutzertitelzusatz:
    Maurer-und Betonbauermeister
    Ich denke, weder eine dickere Decke noch eine Unterzug ist erforderlich…
     
    simon84 gefällt das.
  5. Pflunz

    Pflunz

    Dabei seit:
    14.08.2024
    Beiträge:
    80
    Zustimmungen:
    21
    Ich denke, beides ist möglich.
     
  6. #6 Jo Bauherr, 16.11.2025
    Zuletzt bearbeitet: 16.11.2025
    Jo Bauherr

    Jo Bauherr

    Dabei seit:
    19.06.2018
    Beiträge:
    1.047
    Zustimmungen:
    511
    Beruf:
    (Ex)-Vermieter
    Ort:
    Randberlin
    Wenn erforderlich den Pfeiler unter der Kücheninsel ein wenig breiter (nach 'Planlinks') und die Decke evtl. etwas dicker mit einem deckengleichen Unterzug.
     
  7. #7 nordanney, 16.11.2025
    nordanney

    nordanney

    Dabei seit:
    15.09.2021
    Beiträge:
    6.433
    Zustimmungen:
    3.731
    Beruf:
    Finanzierer/Investor/Bau- und Sanierungslaie
    Ort:
    Niederrhein
    Statiker sagt: Decke von 22 auf 26cm. Das war es auch schon.
     
Thema:

Dickere Decke oder Unterzug

Die Seite wird geladen...

Dickere Decke oder Unterzug - Ähnliche Themen

  1. Sehe ich Material und Dicke der Decken und Wände im Bauplan?

    Sehe ich Material und Dicke der Decken und Wände im Bauplan?: Hallo, ich bin mir nicht sicher, ob ich hier im richtigen Unterforum poste. Wenn nicht, bitte ich einen Mod, den Thread zu verschieben. Ich poste...
  2. Kosten für dickere Decke

    Kosten für dickere Decke: Bedingt durch Verlegung von Lüftungsrohren und Elektro-Leerrohre auf der Filigrandecke, also im Beton, werden wir eine stärkere Decke nehmen...
  3. 60 cm dicke Decke

    60 cm dicke Decke: Hallo liebe Experten! Ich wohne in einem Haus Bj. 1914. Es hat einen Anbau aus dem Jahr 1960. In diesem Anbau befinden sich zwei Badezimmer...
  4. Schallschutz - Abgehängte Decke mit minimaler Dicke

    Schallschutz - Abgehängte Decke mit minimaler Dicke: Hallo zusammen, ich hab mir da mal was ausgedacht, um den - vermutlich auf gerichtlichem Wege nicht durchsetzbaren Tritschallschutz bei tiefen...
  5. EG-Decke, Dicke

    EG-Decke, Dicke: Hallo liebe Bauexperten, folgende Frage: Eine EG-Decke für ein ganz einfaches Einfamilienhaus der Dicke von 16 cm ist ausreichend oder ist sie...