EFH 1950 Umbau Erdgeschoss

Diskutiere EFH 1950 Umbau Erdgeschoss im Mauerwerk Forum im Bereich Neubau; Guten Tag! ich habe eine EFH aus 1950 erworben und plane derzeit den Umbau des Erdgeschosses. Ich habe die geplante Idee der Umgestaltung auf dem...

  1. #1 Chris2k2k2k, 08.08.2023
    Chris2k2k2k

    Chris2k2k2k

    Dabei seit:
    08.08.2023
    Beiträge:
    15
    Zustimmungen:
    0
    Guten Tag!

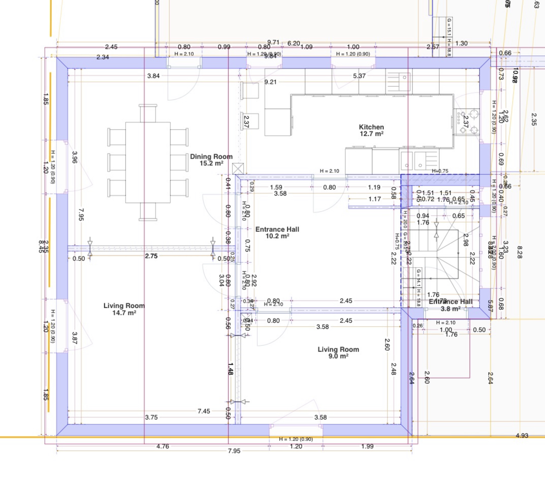
    ich habe eine EFH aus 1950 erworben und plane derzeit den Umbau des Erdgeschosses. Ich habe die geplante Idee der Umgestaltung auf dem ersten Bild grob eingezeichnet.
    Die Entfernung der Wand zwischen WoZi und EssZi habe ich bereits durch den Statiker nachweisen lassen. Hierfür habe ich ein Gutachten und werde einen berechneten Stahlträger verbauen lassen.
    Meine Frage bezieht sich aber auf das Bad im Erdgeschoss. Dieses würde ich gerne vollständig entfernen, um die Küche mit dem Essbereich zu öffnen. Ich hatte bei dem o.g. Gutachten mit dem Statiker schonmal eine Verkleinerung des Bades besprochen, wo man einen offenen Durchgang zwischen Küche und EssZi schafft. Hierzu hatte er keine Bedenken und hat gesagt, dass man das ohne Absicherung wegen nicht-tragenden Wänden durchführen kann.
    Würde das für mich dann heißen, dass ich beide Wände des Bades (11,5 und 6’er) also komplett entfernen kann? Oder muss ich einen Mindestrest stehen lassen, damit die fast 10m lange Außenwand irgendwie gesteift wird?

    Danke für eure Einschätzung.
     

    Anhänge:

  2. #2 Klenkes, 08.08.2023
    Klenkes

    Klenkes

    Dabei seit:
    28.03.2008
    Beiträge:
    88
    Zustimmungen:
    14
    Beruf:
    Bauingenieur
    Ort:
    Aachen
    warum fragst Du nicht Deinen Statiker, der sich das ja schon alles angesehen hat?
     
    driver55 gefällt das.
  3. #3 Chris2k2k2k, 09.08.2023
    Chris2k2k2k

    Chris2k2k2k

    Dabei seit:
    08.08.2023
    Beiträge:
    15
    Zustimmungen:
    0
    Danke, aber ich wollte nicht gleich ein weiteres Gutachten beauftragen, nur um mögliche Varianten auszuloten. Außerdem hatte ich mir weitere gute Anregungen und Ideen erhofft.
     
  4. #4 Fasanenhof, 29.08.2023
    Fasanenhof

    Fasanenhof

    Dabei seit:
    20.02.2023
    Beiträge:
    1.455
    Zustimmungen:
    814
    Beruf:
    Ing für Maschinenbau
    Ort:
    Norddeutschland
    Aus Gründen kann ich nur empfehlen, ein kleines Bad/WC im Eingangsbereich zu belassen.

    Einerseits ist eine 2. Toilette immer nützlich, andererseits ist es ein allzu häufiges Ereignis, dass man "eilig" nach Hause kommt und dringlich etwas erledigen muss...
    Dann ist es Hilfreich, wenn man nur 2 Schritte hat, nicht erst die Schuhe ausziehen muss etc.

    Egal ob viel zu lange Autofahrt, spontane Übelkeit beim Essen, schmutzige Hände nach der Gartenarbeit. Ein WC im Eingangsbereich ist extrem nützlich.
     
  5. #5 Chris2k2k2k, 29.08.2023
    Chris2k2k2k

    Chris2k2k2k

    Dabei seit:
    08.08.2023
    Beiträge:
    15
    Zustimmungen:
    0
    Vielen Dank, da stimme ich voll zu. Es gibt noch ein kleines WC im kleinen Raum gegenüber der Eingangstür. Daher meine Idee, den Wohnraum noch weiter zu öffnen.
     
  6. #6 Chris2k2k2k, 06.09.2023
    Chris2k2k2k

    Chris2k2k2k

    Dabei seit:
    08.08.2023
    Beiträge:
    15
    Zustimmungen:
    0
    Kurz um dieses Thema abzubinden:
    Ich habe jetzt einen Standsicherheitsnachweis erhalten und werde die Wände entfernen. Es ist ein kleiner Stahlträger oder Konstruktionsvollholz einzubauen in die 11,5‘er Wand. Die 6‘er kann so raus.
     
Thema:

EFH 1950 Umbau Erdgeschoss

Die Seite wird geladen...

EFH 1950 Umbau Erdgeschoss - Ähnliche Themen

  1. Altbau 1950 Elektrik, Wasser, Heizung

    Altbau 1950 Elektrik, Wasser, Heizung: Hallo Alle Ich würd euch gerne um einen Blick in die Kristalkugel bitten. Es geht um ein Haus mit 150 qm Wohnfläche. Baujahr 1952....
  2. Feuchter Keller (BJ 1950) - Tipps / Vorgehensweise

    Feuchter Keller (BJ 1950) - Tipps / Vorgehensweise: Hallo Zusammen, Wir haben ein Haus Bj1950 erworben und würden gerne im Keller unsere Wäsche trocknen. In den vergangenen Jahren war der Keller...
  3. Massivhaus 1950 - Material der Wände

    Massivhaus 1950 - Material der Wände: Hallo zusammen, während der Renovierung unseres gekauften Hauses, stellen wir fest, dass wohl damals aufgrund des Materialmangels nach dem 2....
  4. Neue Elektroinstallation im Haus ab 1950 erforderlich

    Neue Elektroinstallation im Haus ab 1950 erforderlich: Wir haben vor kurzem ein Haus gekauft. Die Sicherheitsbox ist das Original (siehe Foto). Dies muss ersetzt werden. Wie stellen wir fest, ob auch...
  5. Betonerwand abdichten Stampfbeton 1950

    Betonerwand abdichten Stampfbeton 1950: Hallo Zusammen, Ich bin gerade dabei den Garten unseres Hauses bj. 1950 umzugestalten. Sobald der Garten einigermaßen fertig ist soll es an...