EFH bei Montabaur

Diskutiere EFH bei Montabaur im Mein Hausbau Forum im Bereich Rund um den Bau; Hallo zusammen, wir haben in der Zwischenzeit nochmal ein wenig rumgeplant. Hier mal vorab der Plan. Das Gebäude ist von außen ca. 8,2 x 9,9m....

  1. #21 awenter, 07.11.2014
    awenter

    awenter

    Dabei seit:
    31.10.2014
    Beiträge:
    25
    Zustimmungen:
    0
    Beruf:
    Leitung IT
    Ort:
    Holler
    Hallo zusammen,

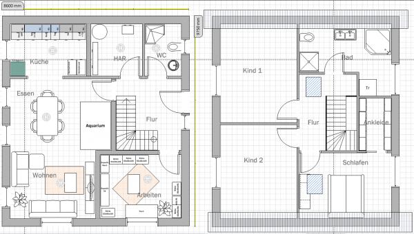
    wir haben in der Zwischenzeit nochmal ein wenig rumgeplant. Hier mal vorab der Plan. Das Gebäude ist von außen ca. 8,2 x 9,9m. Innenfläche ca. 71qm² (inkl. allen Wänden.).
    Grundfläche ca. 66,5qm²

    Grob würde ich mal schätzen: 132m² * 2,9m Deckenhöhe: ~384m³ * 380€/m³ = 145T€
    QM Preis: 132m² * 1250€/m³ = 165T€

    Wir wollen jetzt übernächste Woche zum Architekten, das Konzept mal vorstellen. Ich hoffe das wir Preislich damit hinkommen. Wir wollen in der Summe halt nicht mehr als 260T€ ausgeben.

    So anbei Bilder, mit Bitte um Kritik.

    Unbenannt.jpg

    Vg

    Alex
     
  2. #22 feelfree, 07.11.2014
    feelfree

    feelfree Gast

    Wie lang und breit ist die Treppe? Ist die Viertelgewendelt oder beginnt die wirklich an der Außenwand?
    Ich wage zu behaupten: Passt nicht. Also ab in die Tonne mit dem Plan.
     
  3. #23 Anda2012, 07.11.2014
    Anda2012

    Anda2012

    Dabei seit:
    10.09.2012
    Beiträge:
    1.205
    Zustimmungen:
    0
    Beruf:
    Dipl.- Ing. Arch
    Ort:
    Nürnberger Land
    Benutzertitelzusatz:
    Von der Bauleitung zum Formularausfüllen
    - ein Kommentar: so sinnfreie "Schnirpfel" (wie sagt man auf hochdeutsch dazu?), sollte man sich ersparen. Hatte kürzlich so ein Haus von innen, Das wirkt nicht, bringt keinen Nutzen, ist aber zurzeit der Renner wie damals die Fresswarze in den 80ern, aber kostet und birgt Fehlerquellen

    - noch einer: es muss wirklich keine Gästedusche geben *zwäng* Auch das kostet.

    Und schau mal das Arbeitszimmer (?) an: Türe auf: *peng* an die Wand geknallt.

    "Gehen Sie zurück auf Los"
    und überlassen sie die Arbeit einem kompetenten Fachmann /Fachfrau. Die haben das gelernt. So einfach wie die Programme suggerieren ists nämlich nicht.
     
  4. #24 awenter, 07.11.2014
    awenter

    awenter

    Dabei seit:
    31.10.2014
    Beiträge:
    25
    Zustimmungen:
    0
    Beruf:
    Leitung IT
    Ort:
    Holler
    Hallo,

    die Treppe ist 2,8m lang und 1m breit, 1/4 gewendelt. Gibts so im Baumarkt. Passt bis 2,9m Deckenhöhe.
    Die Eckdusche ist Standard, 80x80 als Grundmaß. Es ist ja auch nur eine Gästedusche.

    Naja... wir gehen mal mit den zwei drei Vorschlägen zum Architekten.

    Und Sorry, wir haben kein Bock für 300 oder 350T€ zu bauen. Es soll ja auch noch bezahlt werden.
    Und nebenbei soll es noch andere Sachen geben, als Hausbau.

    Vg

    Alex
     
  5. nolu13

    nolu13

    Dabei seit:
    29.01.2013
    Beiträge:
    1.448
    Zustimmungen:
    1
    Beruf:
    Elektriker
    Ort:
    RLP
    Malt euch doch mal die 2,8m Treppe und die geplante fertige Deckenhöhe ,meinetwegen 2,50m ,im EG im Maßstab 1:100 auf ein Blatt Papier.
    Das wird steil,zu steil !
     
  6. #26 feelfree, 07.11.2014
    feelfree

    feelfree Gast

    YMMD! Tipp: Da gibt's auch Leitern, die locker 3m lang sind. Brauchen noch weniger Platz.

    Ernsthaft: Rechne einfach selbst zur Übung aus, wieviele Stufen Du brauchst und wie lang dann eine Stufe ist. Und dann misst Du mal deinen Fuß.
     
  7. #27 Anda2012, 08.11.2014
    Anda2012

    Anda2012

    Dabei seit:
    10.09.2012
    Beiträge:
    1.205
    Zustimmungen:
    0
    Beruf:
    Dipl.- Ing. Arch
    Ort:
    Nürnberger Land
    Benutzertitelzusatz:
    Von der Bauleitung zum Formularausfüllen
    @aventer: Irgendwie verstehe ich Dich nicht: Du willst kostensparend bauen, aber da wo man wirklich die Kosten einsparen kann, da nimmst Du keinen Profi, sondern setzt DIch selbst ran.
    Schau doch mal Deinen Grundriss an: Da alleine entdecke ich schon auf den ersten Blick Punkte, die teuer sind ohne Mehrwert.

    Hiermit gebe ich den Tipp, der hier immer wieder geschireben wird:
    Schreib auf, was Du willst, geh damit zum Fachmann/frau.
     
  8. nolu13

    nolu13

    Dabei seit:
    29.01.2013
    Beiträge:
    1.448
    Zustimmungen:
    1
    Beruf:
    Elektriker
    Ort:
    RLP
    Man muß aber auch gutieren,daß die " Verkehrsflächen " beim DIY -Entwurf reduziert sind .
    Kleines kompaktes Haus !
    Aber nicht mit dieser Treppe und mit dieser "angedachten" Austattung der Räumlichkeiten,wie unser Prof.Dr.Dr. immer mit seiner stoischen Weißheit versuchte ,uns klarzumachen das man ein x nicht gegen ein u tauschen kann!
     
  9. #29 awenter, 09.11.2014
    awenter

    awenter

    Dabei seit:
    31.10.2014
    Beiträge:
    25
    Zustimmungen:
    0
    Beruf:
    Leitung IT
    Ort:
    Holler
    Hallo zusammen,

    erst einmal vielen Dank für die anregende Kritik. Ich hab den Gebäudeplan gestern mit einem befreundeten angehenden Architekt (Bachelor ist er aber noch nicht Vorlageberechtigt) überarbeitet.

    Treppe ist klar, so nicht machbar, die Baumarkt Raumspartreppe währe beim Gebäude nicht zulässig gewesen. Die neue Treppe (angaben in cm):

    Geschosshöhe: 280
    Lichte Raumhöhe: 260
    Stufen: 15
    Breit Austrittstufe: 8
    Treppenbreite: 85
    Lauflinie: 337
    Steigungshöhe: 18,67
    Auftrittsbreite: 23,5
    Schrittmaß: 60,83
    Kopffreiheit: 201,62
    Deckenöffnung: 250x140

    Die Treppe entspricht DIN18065. Gebäude ist jetzt Außenmaß: 8,6 x 9,75m Satteldach mit 42° DN. Grundfläche Innen ca. 72qm² pro Etage inkl. allen Wänden.
    BRI: ca. 403,2

    Unbenannt.jpg

    Rest sehen wir ja dann beim Architekt im Vorgespräch.

    Vg
    Alex
     
  10. #30 awenter, 20.11.2014
    awenter

    awenter

    Dabei seit:
    31.10.2014
    Beiträge:
    25
    Zustimmungen:
    0
    Beruf:
    Leitung IT
    Ort:
    Holler
    Hallo zusammen,

    so gestern war der Architekten Termin. Also die ersten Pläne werden erstmal verworfen. Der Plan oben wäre als Grundlage ok (In der Form, die Möbel sind zu gebrauchen), er würde einiges ändern. Insbesondere Treppe Fenster, Raumaufteilung, .... Er macht mir jetzt erstmal ein Angebot über seine Leistungen. Sagt aber direkt, das 180T€ für das Gebäude sehr sehr sportlich werden, selbst wenn es einfach ausgeführt wird.

    Er würde auch nur einen Stein mit U-Wert 0,1 verwenden, der 0,09 wäre zu weich, dafür mehr Dämmung im Dachbereich.

    Ich halte euch auf den laufenden.

    Vg
    Alex
     
  11. #31 Thomas B, 20.11.2014
    Thomas B

    Thomas B

    Dabei seit:
    17.08.2005
    Beiträge:
    11.181
    Zustimmungen:
    4
    Beruf:
    Dipl.Ing.
    Gemeint ist wahrscheinlich die Wärmeleitfähigkeit Lambda. 0,1 entspricht dann einem T10, 0,9 einem T9.

    Warum sollt ein T9 zu weich sein? Bei EFH und Co. ist auch ein T8 oder T7 kein Problem....

    Dafür mehr Dämmung im Dach? O.K., mag rechnersich schon passen. Besser aber wäre es ein stimmiges Konzept zu haben. Nach dem Motto : ich gehe heute im T-Shirt raus. Ist kalt. Ich friere. Dafür setze ich einfach 2 Wollmützen auf.
     
  12. #32 Anda2012, 20.11.2014
    Anda2012

    Anda2012

    Dabei seit:
    10.09.2012
    Beiträge:
    1.205
    Zustimmungen:
    0
    Beruf:
    Dipl.- Ing. Arch
    Ort:
    Nürnberger Land
    Benutzertitelzusatz:
    Von der Bauleitung zum Formularausfüllen
    Thomas hat recht. Schönes Beispiel mit T-Shirt und Mütze, das trifft es genau.
    T9 ist schon ein Bröselkeks, aber nichtsdestotrotz geeignet.
     
  13. #33 Thomas B, 20.11.2014
    Thomas B

    Thomas B

    Dabei seit:
    17.08.2005
    Beiträge:
    11.181
    Zustimmungen:
    4
    Beruf:
    Dipl.Ing.
    Was die Ungefüllten anbelangt, gebe ich Dir zu 100% recht. Die Gefüllten (Perlite o. MiWo) sind keinesweg Bröselkekse.
     
  14. R.B.

    R.B.

    Dabei seit:
    19.08.2005
    Beiträge:
    48.826
    Zustimmungen:
    17
    Beruf:
    Dipl.Ing. NT
    Ort:
    BW
    Hoffen darfst Du, erfüllen wird sich das aber kaum. 260T€ budget bei 60T€ allein schon für´s Grundstück, bleiben für das Haus inkl. ALLER Nebenkosten glatte 200T€ übrig. Bei Deiner Aufstellung der nebenkosten fehlen ein paar Positionen, beispielsweise Gasanschluss, und einige Positionen sind sehr optimischt angesetzt (Bsp.: Vermessung). Aus dem Bauch heraus würde ich sagen, dass selbst 30T€ sportlich wären, und da reden wir noch gar nicht über Architekt, Statik etc. Die Außenanlagen würde ich ebenso mit Vorsicht genießen. Für ein bisschen Schotter in der Einfahrt und einen Bretterverschlag als Unterstellplatz für das Auto könnte das schon reichen, aber für richtig angelegte Außenanlagen (es geht immerhin um 800m2 Grundstück) reicht das nicht.

    Achtung, mache nicht den Fehler und versuche aufgrund irgendwelcher Pauschalen wie xxx€/m³ auf die zu erwartenden Baukosten zu schließen. Das geht mit Sicherheit in die Hose. Solche Pauschalen sind geeignet um mal grob die Größenordnung abzuschätzen (Bsp.: ob 200T€ oder 300T€) aber sie sind unzureichend wenn man, wie in Deinem Fall, bereits auf Kante näht. Bei dieser Herangehensweise kippt Dir die Finanzierung noch bevor es an den eigentlichen Innenausbau geht. Es geht einfach um zu viel Geld, als dass man hier mit Pauschalen arbeiten könnte. Ich könnte Dir jetzt schon sagen wie Dein Bauablauf sein wird. Noch bevor die letzten Rechnungen eintrudeln wirst Du bei Deiner Bank stehen und um eine Nachfinanzierung verhandeln, selbst wenn Du vorher bereits Gelder umverteilt hast und die Außenanlagen sowieso nicht gemacht werden (Ausrede: die machen wir später. Erfahrung: Irgendwann einmal.)

    Meine Empfehlung, bevor Du hier weiter planst, kläre mit der Bank welches max. budget zur Verfügung steht. Dann plane so, dass Du mit den ersten Kalkulationen min. 10% unter dem budget bleibst. Sollte sich damit Dein Hauswunsch nicht erfüllen lassen, dann das Thema abhaken, und daran arbeiten, dass Du ein größeres budget stemmen kannst. Es lohnt nicht Zeit und Energie in eine Sache zu stecken die von vornherein zum Scheitern verurteilt ist.

    Am Grundriss kannst Du nicht mehr viel einsparen. Das Haus ist jetzt bereits so "handlich", dass man den gleichen Komfort auch in einer Mietwohnung bekommt. Um dieses Haus in Dein budget zu bekommen könnte man nur versuchen billigst zu bauen. Ob man das will, nur damit man ein eigenes Haus und Schulden hat?

    Gruß
    Ralf
     
  15. #35 awenter, 20.11.2014
    awenter

    awenter

    Dabei seit:
    31.10.2014
    Beiträge:
    25
    Zustimmungen:
    0
    Beruf:
    Leitung IT
    Ort:
    Holler
    Hallo Ralf,

    wir haben bei der Bank ein Finanzierungsrahmen von maximal 310T€, welchen wir aber nicht ausschöpfen möchten. Ich gehe aktuell maximal mit 270T€ an die Sache. Wir sind auch am überlegen, ob die 800qm² Gründstück sein müssen oder wir hier 15T€ einsparen und was um die 500-600qm² nehmen. Das Gebäude wird ca. 180-200T€ + Grundstück + Baunebenkosten liegen. Genaueres weiß ich erst in der Planungsphase. Vorher muss ich noch die Preise bei der Planung verhandeln. Mir gehts jetzt erstmal um das Geld, was ich investiere um zu Wissen, was das Gebäude kostet. Dann sehe ich weiter, ob wir das machen oder nicht. Der Fertighausfirma, die das oben gennante Gebäude für 210T€ Schlüsselfertig, ohne Gründstück, hinstellt haben wir jetzt abgesagt.

    Vg

    Alex
     
  16. #36 awenter, 20.11.2014
    awenter

    awenter

    Dabei seit:
    31.10.2014
    Beiträge:
    25
    Zustimmungen:
    0
    Beruf:
    Leitung IT
    Ort:
    Holler
    Noch was vergessen:

    Und Ziel soll sein: Die Mietwohnung zu ersetzten... wir wollen ja kein Palast bauen (Wer jetzt mit dem Aquarium anfängt, mein jetztigen Becken hat schon 2,7qm² ... kleiner gehts bei mir nicht).

    ....
     
  17. R.B.

    R.B.

    Dabei seit:
    19.08.2005
    Beiträge:
    48.826
    Zustimmungen:
    17
    Beruf:
    Dipl.Ing. NT
    Ort:
    BW
    Wenn die Lage passt, warum nicht? Dann hast Du die 15T€ schon wieder als Reserve für´s Haus.

    310T€ budget, Annahme 270T€, also so wie ich oben geschrieben habe, min. 10% unter budget kalkulieren. Die Mehrkosten kommen von ganz alleine.

    Denke an das was ich zu den Pauschalen geschrieben habe, Du brauchst verlässlichere Zahlen, denn große Abweichungen müssen vermieden werden. Sonst passiert das was ich oben geschrieben habe, und Du wirst Dein budget ausreizen müssen.

    Das Problem beim Hausbau ist, dass es so viele "Kleinigkeiten" gibt, die Dir in der Summe die Kalkulation völlig über den Haufen werfen können. Jeder handwerker wird zuerst einmal versuchen sein Angebot so zu gestalten, dass er zumindest in die engere Auswahl kommt (höchstens er hat kein Interesse an diesem Auftrag). Die Überraschung kommt dann später.
    Ein Beispiel. Angeboten war Sanitärausstattung in weiß. Auf Nachfrage kam die Antwort, in grau kostet das keinen Aufpreis. Als es dann ernst wurde und noch einmal um ein verbindliches Angebot gebeten wurde, war die "graue" Ausstattung viel teurer. Ausrede: Ja das WC kostet in grau dasselbe, Wanne, Dusche, Waschbecken natürlich nicht, die kosten Aufpreis. Wenn Du Pech hast, und zu leichtgläubig bist, dann erfährst Du das erst wenn der Kram schon verbaut ist.
    Ich könnte Dir noch eine Menge ähnlicher Beispiele nennen.

    Vielleicht versteht Du, warum ich so gegen diese "Pauschalkalkulation" bin, denn die Erfahrung zeigt, dass die ermittelten Werte nie aber auch niemals passen. Wenn dann die Sache auf Kante genäht ist........Peng. Wohl dem der dann noch Reserven hat.
     
  18. #38 awenter, 21.11.2014
    awenter

    awenter

    Dabei seit:
    31.10.2014
    Beiträge:
    25
    Zustimmungen:
    0
    Beruf:
    Leitung IT
    Ort:
    Holler
    Hi,

    mir ist das schon klar. Mein Bauanwalt (dem ich aus der Historie her vertraue) hat schon einige Gebäude mit dem Architekten gebaut. Die haben hier einen sehr vernünftigen Handwerkerkreis, mit dem man Arbeiten kann. Der Architekt macht eigentlich auch größere Objekte.

    Die Leistungsbeschreibung läuft ja über Architekt und Anwalt. Material wird zentral bezogen, da ich hier recht gute Kontakte habe.

    Er sagt, 350€/m³ ist ein Richtwert der bei 800 – 1200m³ umbauten Raum hinkommt. Technik etc. wird ja durch weniger Qm nicht günstiger.

    Wir versuchen jedenfalls mit dem Budget hinzukommen. Beide, Anwalt und Architekt sagen, beim Bau bitte nichts mehr an Ausstattung oder an den Plänen ändern -> dann kommen sehr viele Mehrkosten. Aber wir haben schon eine vollständige Bemusterung, was wir haben wollen.

    Bleibt spannend …

    Vg

    Alex
     
  19. #39 awenter, 22.11.2014
    awenter

    awenter

    Dabei seit:
    31.10.2014
    Beiträge:
    25
    Zustimmungen:
    0
    Beruf:
    Leitung IT
    Ort:
    Holler
    Hallo zusammen,

    Angebot vom Architekten ist da. Hat natürlich nach HAOI. ~22 T€ ... ich glaub wir lassen das mit dem Hausbau...

    Vg

    Alex
     
  20. R.B.

    R.B.

    Dabei seit:
    19.08.2005
    Beiträge:
    48.826
    Zustimmungen:
    17
    Beruf:
    Dipl.Ing. NT
    Ort:
    BW
    Und als nächstes muss er Dir erklären, dass das budget nicht nur sportlich, sondern schlichtweg zu klein ist. ;)

    Vielleicht verstehst Du jetzt so manche Kommentare hier. Wunder gibt es nicht.
     
Thema: EFH bei Montabaur
Besucher kamen mit folgenden Suchen
  1. grobasteckung selber

    ,
  2. haus einmessen montabaur