EFH oder DHH ? Planung des Baufensters

Diskutiere EFH oder DHH ? Planung des Baufensters im Hilfestellung für Neulinge Forum im Bereich Sonstiges; Guten Abend, kurz zu mir, Ich heiße Mathias und bin 26 Jahre Jung und seit kurzem hier im Forum und habe mir schon viele Interessante Beiträge...

  1. #1 Matzeludwig, 11.12.2019
    Matzeludwig

    Matzeludwig

    Dabei seit:
    04.12.2019
    Beiträge:
    3
    Zustimmungen:
    0
    Guten Abend,

    kurz zu mir, Ich heiße Mathias und bin 26 Jahre Jung und seit kurzem hier im Forum und habe mir schon viele Interessante Beiträge von euch durchgelesen. Ich selber bin im Hausbau ein neuling.

    Jetzt habe ich selber einmal ein Anliegen und hoffe das ihr mir da eventuell helfen könnt oder mir gute Tipps geben könnt.
    Und zwar geht es sich darum das ich in der zukunft mit meinem Bruder zusammen Bauen will.

    Die Grundstücke wo gebaut werden soll stehen schon fest und ein Baufenster ist auch bereits eingetragen. Das Baufenster ist genau passend für eine DHH. Das Problem ist das mein Bruder eher die DHH bauen will und ich gerne ein EFH bauen würde.

    Bei einem EFH wäre die grundfläche Maximal 12x8m und mir ist es wichtig das es später, mit relativ wenig aufwand, möglich wäre aus OG und EG jeweils eine Wohnung machen zu können.

    Auf einem der Bilder sind die Garagen in der Mitte so das man darüber noch einen Raum hätte, meiner Meinung nach wäre dieser Raum allerdings nicht so gut zu nutzen. Denn der First über der Garage müsste denk ich tiefer wie bei den Haushälften daher hätte man ja fast nur Dachschräge in dem Raum über der Garage. Falls dem nicht so ist belehrt mich gerne eines besseren.

    Jetzt kam mir der Gedanke das man anstatt dem Raum über der Garage dort einfach eine 'Dachterasse' zu machen.
    Wäre das möglich? Hatte eventuell jemand schonmal ein ähnliches Problem und kann über die Lösung berichten?

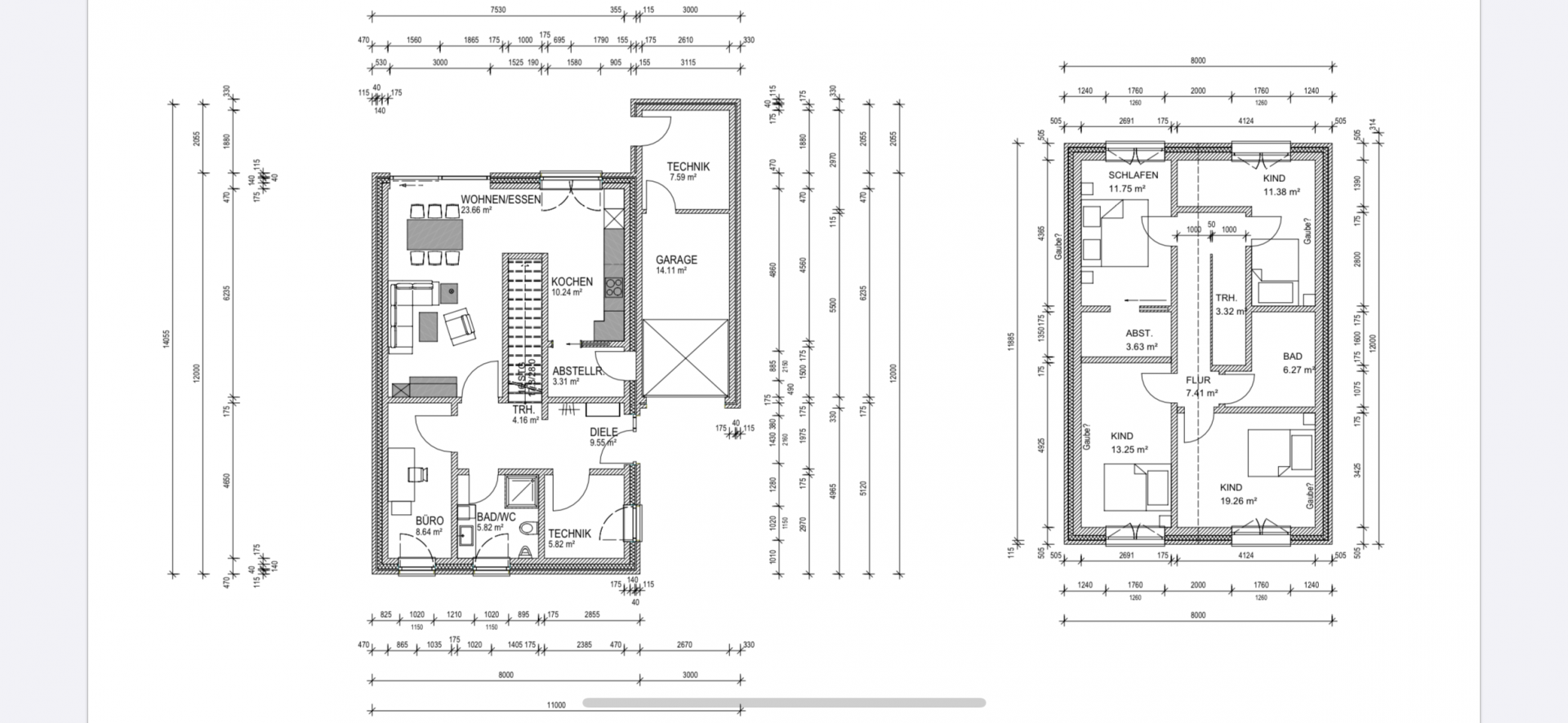
    Ich werde hier unten mal ein paar Dateien und 'Zeichnungen' von überlegungen reinstellen.


    Eventuell habt ihr ja gute Ideen für einen Kompomiss.

    Ich hoffe das ich jemanden finde der das hier alles liest und sich dazu meldet. Würde mich über gute Vorschläge freuen.

    Danke im voraus und Schöne Grüße,
    Mathias

    DHH Garage in der Mitte.PNG IMG_3997.JPEG IMG_3998.JPEG IMG_4001.PNG
     
  2. #2 Taust, 12.12.2019
    Zuletzt bearbeitet: 12.12.2019
    Taust

    Taust

    Dabei seit:
    01.04.2019
    Beiträge:
    306
    Zustimmungen:
    109
    die Grundrisse sind furchtbar und funktionieren an allen Ecken und Enden nicht. Wer hat die denn erstellt? Sicher kein Architekt....
    Ich würde hier ein klassisches DH (also mit durchgehender Kommunwand) bauen und die Garagen nach außen auf die Grenze legen.
    Ist denn die Firstrichtung vorgegeben bzw. was sagt der Bebauungsplan oder ist das nach §34 umgebender Bebauung? Wo ist Norden auf den Grundstücken?
    Mit 12x8m kriegt man locker was schönes hin, auch ein TH das eine spätere Trennung in zwei Einheiten zulässt
     
  3. arch

    arch

    Dabei seit:
    01.06.2017
    Beiträge:
    568
    Zustimmungen:
    234
    Beruf:
    Architekt
    Ort:
    Bodensee
    Also, zwei Einfamilienhäuser würden gehen, aber nur 6 meter von einander entfernt stehen. so das links und rechts neben jedem haus nur 3 meter bis zur Grundstücksgrenze sind. Gehen würde also beides. vor und Nachteile müsstet ihr selbst gegenüberstellen, und gewichten. So zur ersten Überlegung ist der Grundriss vielleicht ok, damit man ein Gefühl für die Größe bekommt, aber ihr bräuchtet Profis, die euch da helfen. 8m x 12 m ist ja auch ne Standardgröße die viele Fertighausanbieter in der Schublade haben, vielleicht mal einfach die Werbegrundrisse anschauen, die die so haben.

    Zunächst offensichtliche Kritikpunkte am EFH Grundriss:
    -Türen schlagen in Betten > Zeichen dafür, das die räume zu klein sein oder schlecht geschnitten sind.
    -Alles muss sich der ungeschickt liegenden Treppe mit geradem Lauf unterordnen.
    -Garage verhindert die Belichtung der Küche
    -Büro schlauchartig
    -Kind mit 11,38m² oben rechts ist nicht nutzbar, rechteckiger Grundriss ist ein muss, maximal mit Nische für schrank oder bett.
    -Bad OG zu klein, min 7-8 m², mit Kindern ohne Badewanne geht praktisch nicht.
    -Diese Art der Treppe verbraucht im OG zu viel Platz, vor allem mit dem Gang.
    -wenn die Garage 5,50 m lang ist, kannst du Türe zum Abstellraum kaum nutzen, wenn ein Auto drin steht. man muss sich immer am auto vorbei quetschen, außer es ist eher klein
    -Diele ist Dunkel, weil keine andere Belichtung außer Seitenteil der Türe
    -Ankleide/Abstell im chlafzimmer wäre besser duchgang zum schlafzimmer, da mann auf die art niemanden schlafenden stört, wenn man sich angezogen hat, die abfolge ist: zugang=> ankleide => Schlafen. Mit Elternbad wäre sie: Elternbad <= Zugang => Ankleide => Schlafen
     
    Matzeludwig und 11ant gefällt das.
  4. #4 Kriminelle, 12.12.2019
    Kriminelle

    Kriminelle

    Dabei seit:
    16.05.2013
    Beiträge:
    3.829
    Zustimmungen:
    2.157
    Beruf:
    .
    Ort:
    Niedersachsen
    Ein EFH würde auf einer Hälfte die Maße von max 12 x 5 haben, wenn je das Baufenster 12 x 8 ist.

    Die Grundrisse sind nicht der Rede wert, die funktionieren nicht, noch sind das Räume. Wer hat so einen Blödsinn gemalt? Hat da jemand einen Grundrissmaler zum Nikolaus bekommen und verwechselt das Bedienen mit Entwerfen und Planen?

    Das Problem ist ja eh hier, dass man sich vernünftig unter Geschwistern einigen muss. Und wie es jetzt schon aussieht: er will so, Du willst anders.
     
    11ant gefällt das.
  5. 11ant

    11ant

    Dabei seit:
    28.02.2017
    Beiträge:
    2.572
    Zustimmungen:
    1.622
    Beruf:
    Bauherrenberater
    Ort:
    RLP Nord
    Benutzertitelzusatz:
    bringt Sie gut beraten ins Eigenheim
    Wenn nicht der Wille beider Beteiligten nach einem Doppelhaus besteht, war die Teilung von Flurstück 452 in die neuen Flurstücke 879 und 880 ein Eigentor, das zu seitlichen Bauwichen entlang der Trennlinie geführt hat.

    Das Baufenster mag man unverändert gelassen haben, um sowohl Einzel- als auch Doppelhäuser zu ermöglichen - allerdings nicht "gemischt": baust Du Einzel, muß Dein Bruder das auch - einen seitlichen Bauwich schmaler als gewünscht - und baut er Doppel, mußt Du ebenso nachziehen.

    In den "gemeinsamen" Grenzabstand die Garagen zu stellen, ist möglich - jedoch gilt dieses Privileg nur für die Garagen und in der Regel bis 3 m Höhe - also ohne Terrassen darauf, und erst recht ohne die Garagen mit Wohnraum zu überbauen.

    Im jetztigen Alter 26 bist Du noch jung genug, um ruhestandsnah neu zu bauen; vergiß´ die Zweiwohnungen-Aufteilung Deines Hauses.

    Daß Du das Plänesoufflé zu früh aus dem Ofen geholt hast, da muß ich leider zustimmen.
     
  6. #6 simon84, 12.12.2019
    simon84

    simon84
    Moderator

    Dabei seit:
    11.11.2012
    Beiträge:
    23.319
    Zustimmungen:
    6.935
    Beruf:
    Schrauber
    Ort:
    Muenchen
    Mach lieber DHH , hast mehr Garten, wen interessiert ob eine Wand vom Haus zu ist. Braucht weniger Energie und du machst einfach die Treppe an die Seite sowie vielleicht Toilette und Waschbecken vom Bad.
     
    Matzeludwig gefällt das.
  7. #7 driver55, 13.12.2019
    driver55

    driver55

    Dabei seit:
    22.02.2008
    Beiträge:
    6.931
    Zustimmungen:
    1.841
    Beruf:
    Dipl.-Ing.
    Ort:
    Pforzheim
    Um Himmels Willen....
    Wer war denn hier am Werk? Jede Bewertung ist überflüssig. Ab in die Tonne!
    Ein sauber geplantes DH und alles wird gut...
     
    simon84 gefällt das.
  8. #8 simon84, 13.12.2019
    simon84

    simon84
    Moderator

    Dabei seit:
    11.11.2012
    Beiträge:
    23.319
    Zustimmungen:
    6.935
    Beruf:
    Schrauber
    Ort:
    Muenchen
    Ihr könntet sogar eine gemeinsame Heizung machen !! Vielleicht draußen untergebracht von beiden von außen zugänglich (hinter Garage zb)
     
Thema: EFH oder DHH ? Planung des Baufensters
Besucher kamen mit folgenden Suchen
  1. baufenster dhh

Die Seite wird geladen...

EFH oder DHH ? Planung des Baufensters - Ähnliche Themen

  1. Planung Einfamilienhaus auf schmalem Grundstück

    Planung Einfamilienhaus auf schmalem Grundstück: Hallo zusammen, wir haben letztes Jahr ein Grundstück in Bayern gekauft auf dem wir gerne ein Einfamilienhaus errichten würden. Da die Stadt das...
  2. Poolterrasse verdichten und Gefälle Planung

    Poolterrasse verdichten und Gefälle Planung: Hallo zusammen, ich möchte dieses Jahr einen ConZero Stahlwandpool samt Terrasse errichten. Ich habe einen Lehmigen Boden. Jetzt benötige ich...
  3. Statiker notwendig oder passt die Planung?

    Statiker notwendig oder passt die Planung?: Moin Moin, wir wollen unser Obergeschoss (Haus aus 2019) ausbauen. Aktuelle Situation: Rohfußboden aus Rauhspund vorhanden. KVH-Trockenbauwand...
  4. Tausch Haustüre, Planung WDVS

    Tausch Haustüre, Planung WDVS: Hallo zusammen, unsere Haustüre soll getauscht werden, nächstes Jahr soll dann die Fassade (14-16cm) gedämmt werden. Wir haben die Besonderheit,...
  5. Planung Neubau

    Planung Neubau: Moin zusammen! Wir beabsichtigen im Kreis Plön ein Haus zu bauen. Ein Grundstück ist in Aussicht, dieses soll mit einem weiteren Bauherren...