Einbau Holz Alu

Diskutiere Einbau Holz Alu im Fenster/Türen Forum im Bereich Neubau; Hallo, bei uns wurde erneut im Rahmen von Fassadenarbeiten Fenster getauscht. Die neuen Fenster sind Holz Alu. Wir haben ein WDVS, weshalb das...

  1. #1 Bauherr24, 04.06.2021
    Zuletzt bearbeitet: 05.06.2021
    Bauherr24

    Bauherr24

    Dabei seit:
    05.12.2018
    Beiträge:
    316
    Zustimmungen:
    46
    Hallo,

    bei uns wurde erneut im Rahmen von Fassadenarbeiten Fenster getauscht. Die neuen Fenster sind Holz Alu.

    Wir haben ein WDVS, weshalb das Fenster durch die äußere Leibungsdämmplatte einen Anschlag hat.

    Abgedichtet wurde wie folgt:
    - Otto Trio BKA
    - an den Anschlag zur Leibungsdämmung ein Soudal Kompriband entsprechender Dimension
    - außen soll jetzt noch eine Anputzleiste gesetzt und angeputzt werden

    Kann man das so machen oder sind die Otto Bänder / „Trio“ nur ohne Anschlag geeignet?

    Kann mir zudem jemand sagen warum bei dem Otto Band in der Mitte ein Freiraum ist?

    Vielen Dank
     
  2. #2 klappradl, 05.06.2021
    Zuletzt bearbeitet: 05.06.2021
    klappradl

    klappradl

    Dabei seit:
    10.02.2021
    Beiträge:
    2.050
    Zustimmungen:
    879
    Beruf:
    Abfallentsorgung
    Ort:
    Düsseldorf
    Das Band ist dafür geeignet. Warum die Frage?
    PS Warum das zweigeteilt ist, muss du Otto fragen. Wahrscheinlich es es so einfacher, Innen und Außenseiten in einem Band zu vereinigen. Vielleicht gibts noch einen anderen Grund. Damit geht Otto aber wohl nicht hausieren, scheint also nicht das "Killer"-Kriterium zu sein.
     
  3. #3 Bauherr24, 05.06.2021
    Bauherr24

    Bauherr24

    Dabei seit:
    05.12.2018
    Beiträge:
    316
    Zustimmungen:
    46
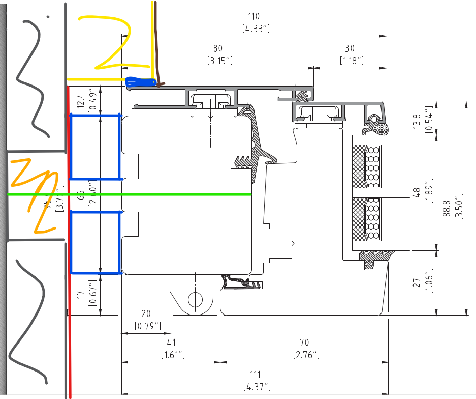
    Bei den meisten Fenstern ist die Einbausituation so:

    upload_2021-6-5_9-11-8.png

    grau: Mauerwerk
    gelb: Leibungsdämmung
    orange: Bauschaum
    rot: Glattstrich
    blau: Kompriband bzw. Trio
    grün: Montageschraube
    braun: Anputzleiste

    Ich würde gern folgende Punkte klären:

    Diffusionsgefälle
    Ich bin unsicher, ob das das Diffusionsgefälle nach außen nicht stimmen könnte, weil wir ja von innen nach außen dann haben:
    * Trio
    * zusätzliches Kompriband
    * Anputzleiste

    Montageabstand
    Die Wand hatte leider keine glatte Leibung sondern eine U-Form. Warum auch immer man das so gebaut hat früher. In diesem "U" wurde einfach der alte Fensterschaum belassen und dann der Glattstrich drüber gezogen. Somit ergeben sich vom Fensterrahmen bis zur wirklichen Wand 5cm Montageabstand. Ist das zu viel?

    Verklotzung
    Die Fenster wurden nach unten nur auf das Trio FBA (Fensterbankanschlussband) gestellt (ca. 1cm Luft exkl. Band) und nicht extra verklotzt. Ist das zulässig?

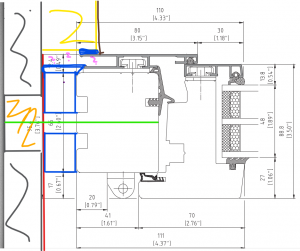
    Bei einem Fenster wurde das Trio-Band leider weiter nach außen geklebt und zwar wie folgt:

    upload_2021-6-5_9-15-8.png

    Hinterlüftung
    Der Bereich mit den rosa Fragezeichen ist bei den anderen Fenstern über die Hinterlüftung der Aluschale mit belüftet. Bei diesem Fenster aber verschließt das Trio die Hinterlüftungsöffnung seitlich und somit ist der Bereich mit den rosa Fragezeichen nicht mehr belüftet. Ist das ein Problem und sollte das Band nochmal bündig mit dem Rahmen gesetzt werden? Das Band ist eigentlich genau 66mm - also so breit wie der Holzrahmen.

    Vielen Dank für eure Hilfe.
     
    simon84 gefällt das.
  4. #4 Bauherr24, 06.06.2021
    Bauherr24

    Bauherr24

    Dabei seit:
    05.12.2018
    Beiträge:
    316
    Zustimmungen:
    46
    Kann mir keiner weiterhelfen?
     
  5. #5 klappradl, 06.06.2021
    klappradl

    klappradl

    Dabei seit:
    10.02.2021
    Beiträge:
    2.050
    Zustimmungen:
    879
    Beruf:
    Abfallentsorgung
    Ort:
    Düsseldorf
    Zur Diffusion: Dazu müsste man die Wasserdampfdiffionswerte vergleichen. Vielleicht kann das der Fensterbauer vorrechnen. Der hat schließlich die technischen Werte der Bänder und Leisten vorliegen (wir nicht).
    Die Hinterlüftung der Aluschale halte ich auch in dem Fall für ausreichend.
    Eigentlich müssen Fenster nach unten mit einer lastabtragenden Verklotzung eingebaut werden. Auch hier würde ich den Fensterbauer mal befragen, warum er meint, darauf verzichten zu können.
     
  6. #6 DerSchreiner, 07.06.2021
    Zuletzt bearbeitet: 07.06.2021
    DerSchreiner

    DerSchreiner

    Dabei seit:
    07.05.2021
    Beiträge:
    1.392
    Zustimmungen:
    693
    Beruf:
    Schreiner & Holztechniker
    Hallo

    Das mit dem Anschluss wird heute mit einem Winflex geregelt eins für Innen eins für Außen( Diffusionsgefälle)
    Das Winflex wird dann verputzt..

    Winflex Innen und Außen :: BOSIG GmbH

    Wichtig ist das, dass Fenster im Wasser liegt, den Rest kann man ausgleichen. mit einem Kompriband und zusätzlich deinem Holz, warum verwendest du zwei Kompribänder? Eins reicht vollkommen, dieses auf die Seite aufkleben wo nach draußen zeigt , (da wo deine Fragezeichen sind) und den freien Abstand mit Dämmwolle und Hölzer und Winflex versehen und dann im Wasser verschrauben... siehe unten im Bild LG

    Alfa Fugendichtband BG1, einseitig klebendes Kompriband
    [​IMG]
     
Thema:

Einbau Holz Alu

Die Seite wird geladen...

Einbau Holz Alu - Ähnliche Themen

  1. Einbau Velux Dachfenster durch Dachdecker

    Einbau Velux Dachfenster durch Dachdecker: Hallo, ich mache gerade eine richtige Leidensgeschichte durch. Ich habe mir drei Velux GPU einbauen lassen; an dem Tag waren gleich fünf...
  2. Tür Einbau welche Schrauben für Holz

    Tür Einbau welche Schrauben für Holz: Hallo liebe Forum Gemeinde, erst einmal frohe Pfingsten. Ich möchte auf meiner Terrasse eine Tür aus Kunststoff einbauen. Die Tür soll an zwei...
  3. Fenster in verschindelten Giebel Holz bauweise einbauen.

    Fenster in verschindelten Giebel Holz bauweise einbauen.: Hallo zusammen, Ich möchte in einer Giebelwand ein Fenster einbauen. Zeichnung vom statiker ist ok. Es ist ein Holzständerwerk von außen...
  4. Holz- Alu- Fenster an Anschlagsteinen richtig einbauen

    Holz- Alu- Fenster an Anschlagsteinen richtig einbauen: Hallo und Guten Abend, wir lassen ein Haus bauen. Die verwendeten Steine, S8 von Schl.....n. Die Holz- Alu- Fenster sollen an Anschlagsteinen...
  5. Einbau Unilux Holz-Alu

    Einbau Unilux Holz-Alu: Hallo Zusammen! Unser Fensterbauer möchte unsere Unilux Holz-Alu-Fenster mit dem T-Fal Dichtsystem XL einbauen? Spricht da was dagegen?!?...