Entwässerung an Kellerdecke sichtbar - Ist das nicht anders machbar ?

Diskutiere Entwässerung an Kellerdecke sichtbar - Ist das nicht anders machbar ? im Tiefbau Forum im Bereich Neubau; Hallo, zu aller erst möchte ich sagen dass es mir klar ist dass irgendwo / irgendwie entwässert werden muss. Wir haben heute unseren...

  1. #1 frankgayer, 22.07.2017
    Zuletzt bearbeitet: 22.07.2017
    frankgayer

    frankgayer

    Dabei seit:
    04.02.2009
    Beiträge:
    35
    Zustimmungen:
    0
    Beruf:
    Vertriebskaufmann
    Ort:
    71735 Nussdorf
    Hallo,

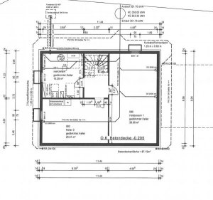
    zu aller erst möchte ich sagen dass es mir klar ist dass irgendwo / irgendwie entwässert werden muss. Wir haben heute unseren Entwässerungsplan erhalten und fragen ob es hierzu keine andere Lösung gibt, dass weniger Rohre im Keller sichtbar sind, vor allem im Hobbyraum ?
    Wir bauen einen Fertigkeller mit Glatthaar

    Bildschirmfoto 2017-07-22 um 08.05.05.jpg
     
  2. #2 Andybaut, 22.07.2017
    Andybaut

    Andybaut

    Dabei seit:
    02.04.2015
    Beiträge:
    5.127
    Zustimmungen:
    329
    Beruf:
    Architekt
    Ort:
    Baden-Württemberg
    Hallo,

    wenn deine Entwässerungspunkte über dem Hobbyraum sind, dann müssen die auch dort abgeführt werden.
    Alternativen sind ein höherer Fußbodenaufbau im EG um alle Leitungen dort unterzubringen, ein tieferer Keller und eine
    abg. Decke oder eine Umplanung der Entwässerungspunkte im EG.
     
  3. #3 petra345, 22.07.2017
    petra345

    petra345

    Dabei seit:
    17.02.2017
    Beiträge:
    5.186
    Zustimmungen:
    1.004
    Beruf:
    Ing. plus B. Eng.
    Ort:
    Rhein-Main-Gebiet
    Benutzertitelzusatz:
    Ing.(grad.) plus B. Eng.
    Schön ist sicher anders. Aber es ist sehr sinnvoll!

    Ein Rückstau von der Straße wird euch weniger stören als jede andere Lösung und die Leitungen sind bei Verstopfungen leichter erreichbar.

    In einer großen Tiefgarage hat man es gerade auch so gemacht. Weil die Tiefgarage auch Minustemperaturen haben kann, haben die Regenwasserleitungen eine elektrische Begleitheizung.
     
  4. #4 frankgayer, 23.07.2017
    frankgayer

    frankgayer

    Dabei seit:
    04.02.2009
    Beiträge:
    35
    Zustimmungen:
    0
    Beruf:
    Vertriebskaufmann
    Ort:
    71735 Nussdorf
    Hallo,

    danke für die Antworten. Für sinnvoll erachte ich das auch, sieht aber sehr unschön aus mit den vielen Rohren
     
  5. Yilmaz

    Yilmaz

    Dabei seit:
    28.03.2006
    Beiträge:
    7.260
    Zustimmungen:
    1.289
    Beruf:
    Maurer & Betonbaumeister
    Ort:
    Delbrück/Westfalen
    Benutzertitelzusatz:
    Maurer-und Betonbauermeister
    Wer plant so ein Müll!? Die Entwässerung muss aus kürzeste weg aus der gebäude geführt werden. So würde ich es nie dulden..,.
     
  6. #6 frankgayer, 23.07.2017
    frankgayer

    frankgayer

    Dabei seit:
    04.02.2009
    Beiträge:
    35
    Zustimmungen:
    0
    Beruf:
    Vertriebskaufmann
    Ort:
    71735 Nussdorf
    Ich sehe jetzt nicht wie man diesen Weg kürzer machen könnte
     
  7. Yilmaz

    Yilmaz

    Dabei seit:
    28.03.2006
    Beiträge:
    7.260
    Zustimmungen:
    1.289
    Beruf:
    Maurer & Betonbaumeister
    Ort:
    Delbrück/Westfalen
    Benutzertitelzusatz:
    Maurer-und Betonbauermeister
    Einfach runter in Keller und aus Kellerwänden raus. Waschbecken und sowas kann man unterm Estrich auf die Decke legen.
     
  8. #8 frankgayer, 23.07.2017
    frankgayer

    frankgayer

    Dabei seit:
    04.02.2009
    Beiträge:
    35
    Zustimmungen:
    0
    Beruf:
    Vertriebskaufmann
    Ort:
    71735 Nussdorf
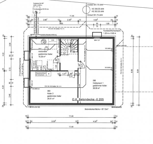
    So, ich hatte Erfolg mit dem Architekten. Da unser Kanal sehr tief ist und neu gemacht wird. Haben wir jetzt die Möglichkeit über die Bodenplatte zu entwässern. Siehe Anlage

    Ich denke jetzt passt das so !


    Bildschirmfoto 2017-07-23 um 21.01.14.jpg
     
  9. #9 Fred Astair, 23.07.2017
    Fred Astair

    Fred Astair

    Dabei seit:
    02.07.2016
    Beiträge:
    12.642
    Zustimmungen:
    6.511
    Beruf:
    Tänzer
    Ort:
    San Bernardino
    Du meinst sicher unter der Bodenplatte?
    Dann gratuliere ich zu dieser großartigen Fehlentscheidung, die Du spätestens im Falle eines Defekts bitter bereuen wirst.
    Du kommst nie wieder an die Leitungen ran und den anerkannten Regeln der Technik widerspricht es obendrein.
     
  10. #10 frankgayer, 24.07.2017
    frankgayer

    frankgayer

    Dabei seit:
    04.02.2009
    Beiträge:
    35
    Zustimmungen:
    0
    Beruf:
    Vertriebskaufmann
    Ort:
    71735 Nussdorf
    Na gut das ist der andere Aspekt der Geschichte. Frage mich aber was schwerer wiegt bzw. ob es oft vorkommt dass ein Entwässerungsrohr ein Problem macht.
     
  11. #11 Lexmaul, 24.07.2017
    Lexmaul

    Lexmaul

    Dabei seit:
    15.09.2014
    Beiträge:
    8.921
    Zustimmungen:
    2.163
    Benutzertitelzusatz:
    Mimosenlecker
    Beim Bau kann viel schief gehen - und dann ist es zu spät. Ich habe zwei Entwässerungsausgänge aus dem Haus und damit jeweils nur 2x2m in zwei Räumen.
     
  12. #12 Fred Astair, 24.07.2017
    Fred Astair

    Fred Astair

    Dabei seit:
    02.07.2016
    Beiträge:
    12.642
    Zustimmungen:
    6.511
    Beruf:
    Tänzer
    Ort:
    San Bernardino
    Wie groß die Gefahr einer Abwasserstörung ist, musst Du für Dich entscheiden. Kommt es oft vor, dass Du mit dem Auto gegen eine Wand fährst? Einen Sicherheitsgurt hast Du aber doch eingebaut?
    Das Wichtigste, um solch ein Leitungsgewirr zu vermeiden, ist eine intelligente Hausplanung.
     
Thema: Entwässerung an Kellerdecke sichtbar - Ist das nicht anders machbar ?
Besucher kamen mit folgenden Suchen
  1. Entw?sserung Nu?dorf

Die Seite wird geladen...

Entwässerung an Kellerdecke sichtbar - Ist das nicht anders machbar ? - Ähnliche Themen

  1. Entwässerung für freitragende Terrasse mit Metallwanne

    Entwässerung für freitragende Terrasse mit Metallwanne: Hallo zusammen, in einem Bereich eine freitragende Terrasse mit folgendem Aufbau: Befestigung mit Stahlträgern an der Wand Metallwanne...
  2. Entwässerung, Spritzschutz und Weg ums Haus mit vielen Probleme

    Entwässerung, Spritzschutz und Weg ums Haus mit vielen Probleme: Moin, wir haben aktuell das Haus leicht Ausgebuddelt und wollten jetzt die Entwässerung machen & Anschließend einen Weg darüber bauen. Dabei...
  3. Innenliegende Entwässerung Fertigbetongarage undicht

    Innenliegende Entwässerung Fertigbetongarage undicht: Ich habe eine Griessmann Doppel- Fertigbetongarage aus 2010. Heute ist mir aufgefallen, dass an der Decke am Anschluss der innenliegenden...
  4. Terrasse Fliesen mit Stufen mit Entwässerung

    Terrasse Fliesen mit Stufen mit Entwässerung: Hallo zusammen, wir wollen unsere Terrasse (25 m2, Südausrichtung, lange Stufe von 7m) neu fliesen und haben uns jetzt schon sehr umfassend...
  5. EFH Neubau: Lösung für Entwässerung Fensterbank vor Terrassentüren

    EFH Neubau: Lösung für Entwässerung Fensterbank vor Terrassentüren: Hallo zusammen, wir sind auf der Suche nach einer geeigneten Lösung für die Entwässerung vor unseren Terrassentüren. In unserem Neubau haben wir...