Erfahrungen mit sehr breiten Lichtgraben

Diskutiere Erfahrungen mit sehr breiten Lichtgraben im Außenanlagen Forum im Bereich Rund um den Garten; Hallo liebe Bauexperten Community, ich bin gerade dabei die Außenanlage meines Kellers zu planen. Wir haben mehrere Möglichkeiten, welche wir...

  1. cucks

    cucks

    Dabei seit:
    07.01.2025
    Beiträge:
    3
    Zustimmungen:
    0
    Hallo liebe Bauexperten Community,

    ich bin gerade dabei die Außenanlage meines Kellers zu planen. Wir haben mehrere Möglichkeiten, welche wir uns vorstellen können und wollten hierzu eine Einschätzung haben.

    Zu aller erst aber noch ein paar Informationen zum Haus:



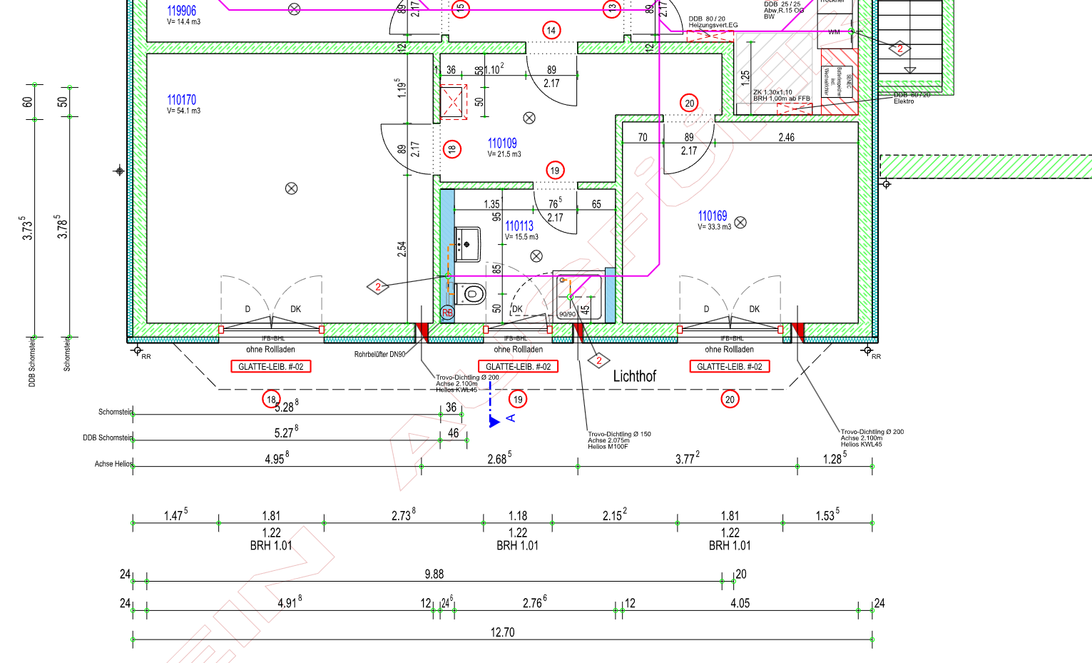
    upload_2025-1-25_1-20-15.png upload_2025-1-25_1-21-23.png

    Kurze Erläuterung zum Grundriss:
    Die Räume 110170, 110109, 110113 & 110169 sind als Einliegerwohnung gedacht, also Wohnraum. Im EG werde ich wohnen und im OG dann ebenfalls wieder vermietet. Eine Zeit lang möchte ich das so handhaben um den Kredit einfacher tilgen zu können.

    Welche Art von Lichtgraben/Lichtschacht würdet ihr bei einer geplanten Wohnfläche einplanen? Wir dachten mal an Mauerscheiben Typ 180 welche wir u-förmig anordnen (analog folgendem Bild, allerdings ohne Abgang). Abstand zum Fenster hätten wir jetzt mal mit 2m angesetzt, sodass wir zwei in der Tiefe nebeneinander stellen können. 3,50 wären meiner Meinung nach zu massiv im Gesamtbild, immerhin sprechen wir von einer Länge von 12m entlang der Hauswand.
    [​IMG]
    Im Plan wurde dies bereits angedeutet. Hat hier jemand schon Erfahrungen mit einer solchen Ausführung. Gerade in Anbetracht der Tatsache, dass das EG bewohnt wird wäre ein "Käfig" vor den Fenster in Form eines Geländers nicht der aller schönste Anblick. Jedoch denke ich, dass ein klassischer Schacht kein wohnliches Gefühl vermittelt, wenn man direkt gegen die Mauerscheibe blickt. Im Worst-Case liegt noch ein Gitter oben drauf.

    Ich bin hier noch unschlüssig, wäre aber über eure Meinungen / Bedenken / Ideen dankbar.

    Viele Grüße
     
Thema:

Erfahrungen mit sehr breiten Lichtgraben

Die Seite wird geladen...

Erfahrungen mit sehr breiten Lichtgraben - Ähnliche Themen

  1. Hilfe von erfahrenem Maler - wir wissen nicht weiter

    Hilfe von erfahrenem Maler - wir wissen nicht weiter: Hallo, haben letzten Freitag mit Dispersionsfarbe unser Wohnzimmer gestrichen, leider war darunter Latex angebracht. Nach dem Streichen bis...
  2. Habt ihr Erfahrungen /Meinungen zu digitalen Zwillingen in der Industrie?

    Habt ihr Erfahrungen /Meinungen zu digitalen Zwillingen in der Industrie?: Hallo hallo, kurze Frage, nicht ganz Hauptfokus -> wir bauen bzw. modernisieren gerade bei uns in der Firma einiges um, und dabei hat mir jemand...
  3. Erfahrungen LED-Spots in Betondecke vs. Rigipsdecke

    Erfahrungen LED-Spots in Betondecke vs. Rigipsdecke: Hallo zusammen, ich plane aktuell gemeinsam mit Architekt bzw. GU ein Einfamilienhaus in Massivbauweise (Ziegel mit Betondecken). Dabei kam nun...
  4. Erfahrung mit Fundermax Balkonbodenplatten Max Exterior Podio 20 mm

    Erfahrung mit Fundermax Balkonbodenplatten Max Exterior Podio 20 mm: Hallo ich plane einen Anstellbalkon über 2 Stockwerke. Hat jemand Erfahrung mit Fundermax Balkonbodenplatten Max Exterior Podio 20 mm. Diese soll...
  5. Haustür Köster vs. Groke Erfahrungen

    Haustür Köster vs. Groke Erfahrungen: Guten Abend zusammen, zusätzlich zu den Fenstern stehe ich aktuell auch vor der Entscheidung bei der Haustür und würde gerne eure Erfahrungen...