Fachplanung Innenausbau Stahlhalle

Diskutiere Fachplanung Innenausbau Stahlhalle im Trockenbau Forum im Bereich Neubau; Liebe Forengemeinde, ich wende mich an euch bzgl. einem "kleinen" Anliegen. Ich bin gerade dabei mir eine Lagerhalle zu bauen und müsste die nun...

  1. #1 acsgmbh, 13.08.2024
    acsgmbh

    acsgmbh

    Dabei seit:
    10.02.2024
    Beiträge:
    3
    Zustimmungen:
    0
    Liebe Forengemeinde,

    ich wende mich an euch bzgl. einem "kleinen" Anliegen.

    Ich bin gerade dabei mir eine Lagerhalle zu bauen und müsste die nun aufgrund des Brandschutzes etwas umbauen bzw. mir wurde nahegelegt, die Konstruktion mit einer doppelt beplankten Gipskartonwand- bzw. Decke zu verkleiden.

    Nun habe ich mich etwas informiert und würde die Wände bzw. Decke dementsprechend gerne komplett verkleiden sodass es quasi ein "großer" Raum wird, sprich die Wand- bzw. Deckenkonstruktion wird auf die Stützen gesetzt sodass alles komplett verkleidet ist.

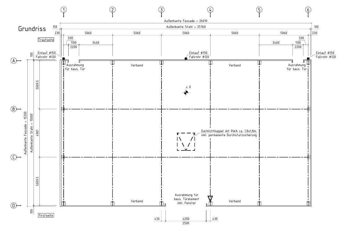
    Ich habe mal die Zeichnungen vom Hallenbauer beigefügt damit auch Maße darauf zu erkennen sind. Ich hoffe das hilft euch.

    Die Berechnung der notwendigen Platten sowie die Montage stellt kein Problem da, das hab ich schon öfters gemacht und mir auch ausreichend Informationen über den Knauf Youtube Kanal eingesammelt. Die Verbindung zum Boden ist soweit auch klar.

    Mir geht es nun um die Frage wie genau die Unterkonstruktion am oberen Teil der Wand bzw. wie die Unterkonstruktion der Decke montiert wird. Ich habe im Internet gelesen dass es für die Decke spezielle Profile mit einer Spannweite für bis zu 5m gibt, ist das richtig? Könnte ich die einfach auf die Dachträger "schrauben"? oder muss ich zwingend abhängen?

    Würde mich sehr über eine Antwort freuen, vielen Dank schonmal :)
     

    Anhänge:

Thema:

Fachplanung Innenausbau Stahlhalle

Die Seite wird geladen...

Fachplanung Innenausbau Stahlhalle - Ähnliche Themen

  1. Verhältnis Architekt - Fachplaner

    Verhältnis Architekt - Fachplaner: Sicherlich nicht uninteressant: Muss ein Architekt die Berechnungen von Fachplanern nachrechnen? Wie sieht die Verantwortlichkeit eines...
  2. Fachplaner für Sanitär Heizung von Nöten?

    Fachplaner für Sanitär Heizung von Nöten?: Hallo in die Runde, ich hoffe es kann uns jemand bei unserem Problem helfen. Wir bauen mit Architekt ein EFH, bzw. planen wir es gerade. Der...
  3. Fachplaner Elektro sinnvoll? Lohnt es sich?

    Fachplaner Elektro sinnvoll? Lohnt es sich?: Hallo! Mein Architekt regt an, die Elektroplanung durch einen Handwerksbetrieb durchführen zu lassen. Alternativ könnte man auch einen Fachplaner...
  4. Zur Haftung des Fachplaners

    Zur Haftung des Fachplaners: Entscheidung: Oberlandesgericht Düsseldorf, Urt. v. 25.10.2012 - I-5 U 162/11 Schlagworte: Abgrenzung zwischen Fachplaner und Objektplaner;...
  5. Fachplaner für Heizung/Lüftung/Sanitär EFH sinnvoll?

    Fachplaner für Heizung/Lüftung/Sanitär EFH sinnvoll?: Hallo, wir planen derzeit unser Einfamilienhaus (ca. 160 m² mit Fußbodenheizung, Gastherme, KWL, keine Solarthermie). Nun stellt sich uns die...