Fenstermaße Kellerfenster / Lichtschacht

Diskutiere Fenstermaße Kellerfenster / Lichtschacht im Fenster/Türen Forum im Bereich Neubau; Hallo, unser Archi hat im Plan Fenstergrößen im Keller von 1,01 x 0,635 m aufgeschrieben. Ein Rohbauer sagte uns nun, dass wir auf Grund dieses...

  1. #1 gaby886, 08.07.2017
    gaby886

    gaby886

    Dabei seit:
    01.11.2016
    Beiträge:
    125
    Zustimmungen:
    0
    Hallo,

    unser Archi hat im Plan Fenstergrößen im Keller von 1,01 x 0,635 m aufgeschrieben. Ein Rohbauer sagte uns nun, dass wir auf Grund dieses Fenstermaßes einen breiteren Lichtschacht benötigen, der deutlich mehr kostet als die Standartgröße von 1,00 m.

    Daher würde mich mal interessieren, wie groß normalerweise ein Fenster in einem reinen Kellerraum (Technik, Keller, Abstellraum, etc.) bemessen sein sollte?

    Reicht hierfür nicht ein 0,885 x 0,635 m Ausschnitt auch aus? Oder ist das kein Standartmaß?

    Was wird Standartmäßig mittlerweile im Keller eingebaut?

    Grüße
    gaby886
     
  2. #2 simon84, 08.07.2017
    simon84

    simon84
    Moderator

    Dabei seit:
    11.11.2012
    Beiträge:
    23.309
    Zustimmungen:
    6.925
    Beruf:
    Schrauber
    Ort:
    Muenchen
    Es gibt keine "Standardmasse" für Fenster.

    Wenn der kleinere Lichtschacht wesentlich billiger ist, dann sprich mit deinem Architekt und sag ihm das!
    Dann nehmt ihr halt Fenster ein paar cm kleiner !

    In Aufenthaltsräumen musst du in Bayern mindestens 1/8 der Nettogrundfläche des Raums an Fensterfläche haben (Rohbaumaß).

    In Lager- und Technikräumen musst du das nicht einhalten.
     
  3. #3 bauspezi 45, 08.07.2017
    bauspezi 45

    bauspezi 45

    Dabei seit:
    20.02.2017
    Beiträge:
    1.780
    Zustimmungen:
    335
    Beruf:
    Meister der Steinkunst (Maurermeister)
    Ort:
    solingen wald
    Benutzertitelzusatz:
    iR.
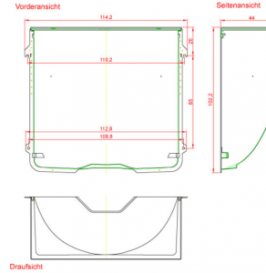
    "normalerweise" passt ein Lichtschacht von 1,0m an eine Rohbau Fensteröffnung
    von 1,01m. die Verschraubungslöcher sin ca 1,08m auseinander.
    allerdings kennen wir nicht die derzeitigen Umstände warum das nicht gehen sollte
    -
    Snap_2017.07.08_15h04m53s_003.png
     
Thema: Fenstermaße Kellerfenster / Lichtschacht
Besucher kamen mit folgenden Suchen
  1. abstellraum keller lichtschacht

    ,
  2. 1 m Fenster im keller

    ,
  3. lichtschacht fenster höhe

    ,
  4. fenstermaße abstellraum,
  5. keller fenstergröße forum
Die Seite wird geladen...

Fenstermaße Kellerfenster / Lichtschacht - Ähnliche Themen

  1. wie harmonische Fenstermaße ermitteln? Goldener Schnitt?

    wie harmonische Fenstermaße ermitteln? Goldener Schnitt?: Hallo zusammen, ich bin nun ein wenig weiter mit meiner Hausplanung. Die exakten Richtlinien habe ich dem Architekten vorgegeben, somit mussten...
  2. woran erkennt man deass fenster zu klein gemessen wurde

    woran erkennt man deass fenster zu klein gemessen wurde: Hallo, vor einigen Tagen wurde ein fenster ausgetauscht. das neue kunststofffenster hat über dem äußeren Rahmen eine Blende, die die...
  3. Fenstergrößen

    Fenstergrößen: Die XY Eigenheim baut laut Bauleistungsbeschreibung Kellerfenster mit einer Fenstergröße Höhe=50cm ein. Dafür ist das entsprechende...
  4. Bodentiefes Fenstermaß ok ?

    Bodentiefes Fenstermaß ok ?: Hallo, Wir sind grade dabei unseren Neubau zu Planen und hängen gerade bei den Fenstern. Gerne würde wir in das Wohnzimmer 3 Bodentiefe...
  5. Fenstermass

    Fenstermass: Guten Morgen Nachdem Lieferfristen und Preise in Italien utopisch sind habe ich mich entschlossen zwei "grosse" Fenster fest ca. 2000x1800mm in...