Fertighaus Deckenaufbau Wasserschaden

Diskutiere Fertighaus Deckenaufbau Wasserschaden im Sanierung konkret Forum im Bereich Altbau; Hallo zusammen, wir besitzen ein Fertighaus aus dem Jahr 2000. Der Aufbau der Decken sieht zurzeit wie folgt aus: Estrich—>OSB-Platte—>Lattung...

  1. #1 paula1212, 14.01.2023
    paula1212

    paula1212

    Dabei seit:
    14.01.2023
    Beiträge:
    4
    Zustimmungen:
    0
    Hallo zusammen,

    wir besitzen ein Fertighaus aus dem Jahr 2000. Der Aufbau der Decken sieht zurzeit wie folgt aus: Estrich—>OSB-Platte—>Lattung mit Dämmwolle—>Folie(Dampfbremse)—>Lattung—>Paneele
    Nun kam vorgestern Wasser von der Decke. Wir haben die Paneele abgezogen und an einer 1,5m langen Stelle zur Außenwand Wasser vorgefunden (Dämmwolle war hauptsächlich von unten nass, OSB Platten waren trocken). Nun sind wir davon ausgegangen, dass das Wasser von oben an der Außenwand runter gekommen ist (vielleicht Riss in Fassade etc.). Gestern waren Dackdecker da und meinten, dass sie sich eher vorstellen könnten, dass es sich um Kondenswasser handeln könnte. Sie sagten, dass normalerweise keine Dampfbremse in die Decken eingebaut werden, wenn OSB Platten drüber sind. Somit könnte die Wolle nicht atmen und es würde sich Wasser sammeln. Dies wundert mich aber, weil wir diesen Raum kaum benutzen und das Wasser auch nur an einer Stelle war. Zudem sind die Decken in den anderen Zimmern alle ok.

    Es stellen sich mir zwei Fragen:
    - sollte ich die Folie überall wieder entfernen (außer Küche und Bad)?
    - woher könnte das Wasser kommen?

    Liebe Grüße
    Paula
     
  2. BaUT

    BaUT

    Dabei seit:
    30.10.2019
    Beiträge:
    9.144
    Zustimmungen:
    5.717
    Beruf:
    Baufacharbeiter und Dipl.-Ing. Hochbau
    Ort:
    Berlin
    Benutzertitelzusatz:
    Erklärbär
    Die raumseitige "Folie" hat zwei wichtige Aufgaben zu erfüllen:
    1. Luftdichtheitsebene gemäß DIN 4108-7
    2. Dampfbremse gemäß DIN 4108-3
    Bitte die Empfehlung des DD mit Vorsicht betrachten und nicht in blinden Aktionismus verfallen.

    Wir reden hier über eine Decke zu einem nicht ausgebauten bzw. nicht beheizten Dachraum, oder was ist da oben drüber?
    Ihre Aufbaubeschreibung korregiere ich mal etwas:

    - Estrich (Was für ein Estrich?)
    - OSB-Platte
    - Deckenbalken mit Dämmwolle im Gefachbereich
    - Dampfbremse (blaue PE-Folie oder welches Produkt wurde hier verbaut?)
    - Lattung
    - Paneele

    Wenn sie bei einem solchen Aufbau (Decke zum Kaltdach) die unterseitige Folie rausreißen, dann säuft ihnen die Konstruktion erst recht ab. Deshalb erstmal die genaue Ursache des Wasserschadens lokalisieren. Da brauchen sie mehr als die Mutmaßungen eines Dachdeckers, sondern eher einen Fachmann für Bauschäden (Sachverständigen), der sich die Konstruktion rundum anschaut und etwas mehr bauphysikalisches Verständnis mitbringt als ihr Dachdecker. Sorry liebe Dachdeckerkollegen hier im Forum - aber nicht jeder DD versteht, dass das Tauwasserspeichervermögen und dessen Rücktrocknung nach innen auch seine Grenzen hat...
     
  3. #3 paula1212, 15.01.2023
    paula1212

    paula1212

    Dabei seit:
    14.01.2023
    Beiträge:
    4
    Zustimmungen:
    0
    Hallo,

    dieser Aufbau ist sowohl zum OG als auch zum Dachboden hin. Unten und oben sind Isover Stopair als auch teils blaue Folie verlegt worden.

    Liebe Grüße
    Paula
     
  4. BaUT

    BaUT

    Dabei seit:
    30.10.2019
    Beiträge:
    9.144
    Zustimmungen:
    5.717
    Beruf:
    Baufacharbeiter und Dipl.-Ing. Hochbau
    Ort:
    Berlin
    Benutzertitelzusatz:
    Erklärbär
    Lass dir doch nicht alles aus der Nase ziehen!!!
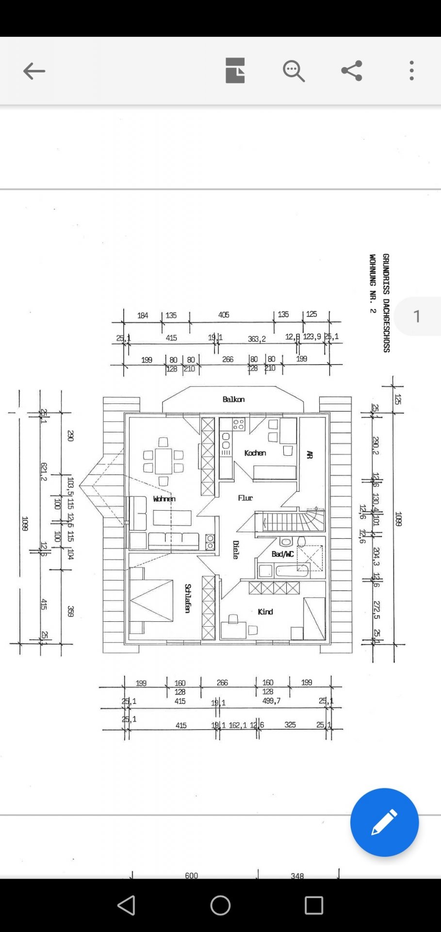
    Bitte Grundrisse und Schnitt vom Haus online stellen und dort bitte mal eintragen wo der Wasserschaden aufgetreten ist!
    1. in der Decke zum Dachboden oder
    2. Decke zwischen zwei Wohngeschossen?
     
  5. #5 paula1212, 15.01.2023
    paula1212

    paula1212

    Dabei seit:
    14.01.2023
    Beiträge:
    4
    Zustimmungen:
    0
    00E4F79E-FC93-4730-A4EA-982E366C5795.jpeg C2B03A86-1E05-4BF7-B32E-E1F3231FDCBC.jpeg FC606F01-90FB-4214-9789-6231753FCE47.jpeg

    Hallo,
    es wäre schön, wenn SIE mich nicht so angehen würden. Ich bin noch jung und kenne mich nicht aus. Die Folie im OG wollten wir nicht rausreißen. Nur im EG (außer Bad und Küche) wenn dann (lt. DD).Der Schaden ist im EG im Esszimmer entstanden. In diesem Raum hält sich niemand auf. Oben drüber ist das Zimmer meiner Tochter, das zurzeit ebensowenig benutzt wird. An der Stelle im Zimmer meiner Tochter ist eine Dachschräge. Der Schaden ist somit zwischen EG und OG. Wenn Sie weitere Infos benötigen, dann stelle ich sie gerne zur Verfügung.
     
  6. #6 BaUT, 15.01.2023
    Zuletzt bearbeitet: 15.01.2023
    BaUT

    BaUT

    Dabei seit:
    30.10.2019
    Beiträge:
    9.144
    Zustimmungen:
    5.717
    Beruf:
    Baufacharbeiter und Dipl.-Ing. Hochbau
    Ort:
    Berlin
    Benutzertitelzusatz:
    Erklärbär
    Sorry, wollte SIE nicht ärgern. Es ist nur leider deprimierend (und führt hier manchmal zu Beraterfrust), wenn man um Rat gefragt wird und sich die Sachen nicht selbst ansehen kann (keine Fotos, keine Pläne) und dann auch noch komische Vor-Ort-Aussagen von Handwerkern kommentieren soll.

    OK - Da ist also Raumluftfeuchte in die Dämmebene der EG-Decke eingedrungen und im Auflagerbereich der Decke stirnseitig am "kalten" Deckenrand innenseitig kondensiert.
    Eigentlich (gemäß Fachregeln des Holzrahmenbaus bzw. der Holztafelbauweise) sollte dort von innen am Deckenrand kein OSB zu sehen sein, sondern eine Folie verlaufen!

    Da muss man sich jetzt Gedanken machen um dieses Detail "wärmer" zu machen und "tauwasserfrei" zu sanieren.
    Gibt es evtl. Herstellerdetails der Hausbaufirma zur Ausbildung dieses Decken-Außenwand-Anschlusses?

    Für diesen Teil schwanke ich gerade zwischen 2 "Behelfslösungen"
    [A] Deckenrandbereiche anstelle der vorhandenen Mineralwolle (geringe Feuchtespeicherfähigkeit) lieber mit Holzweichfaserdämmung füllen und dann auf sommerliche Rücktrocknung hoffen.
    Im Randbereich der Gefachen eine dampfdichte Dämmung einkleben und dann die Decke wieder herstellen.

    Aber:
    Erstmal sollte man sich unbedingt das Luftdichtheitskonzept des Hausbauers mal ansehen und prüfen auf welchem Weg überhaupt die Feuchtigkeit in die Decke gelangen konnte.
     
  7. #7 paula1212, 15.01.2023
    paula1212

    paula1212

    Dabei seit:
    14.01.2023
    Beiträge:
    4
    Zustimmungen:
    0
    Wir haben das Haus Ende 2019 erworben und die Vorbesitzer hatten ohne Probleme hier gewohnt. Wir haben auch alle Decken geöffnet, um neue Paneele dranzumachen. Da sind uns keinerlei Feuchteschäden aufgefallen. Es wundert mich, woher nun dieses Kondenswasser kommen sollte. Ich habe in den Unterlagen nur angehängte Dokumente gefunden. Was auffällt ist, dass offiziell keine PE-Folie im EG aufgetragen werden sollte.
     

    Anhänge:

  8. BaUT

    BaUT

    Dabei seit:
    30.10.2019
    Beiträge:
    9.144
    Zustimmungen:
    5.717
    Beruf:
    Baufacharbeiter und Dipl.-Ing. Hochbau
    Ort:
    Berlin
    Benutzertitelzusatz:
    Erklärbär
    Ja in der Fläche der EG-Decke gehört eigentlich keine Dampfsperre hin.
     
Thema:

Fertighaus Deckenaufbau Wasserschaden

Die Seite wird geladen...

Fertighaus Deckenaufbau Wasserschaden - Ähnliche Themen

  1. Befestigung Markise an einem Fertighaus

    Befestigung Markise an einem Fertighaus: Das Haus ist aus 1988 von der Fa. Schwörer. Die Markise hat Maße 250x200. Von einer Befestigung in Massivholz kann nicht ausgegangen werden,...
  2. 60-70er Jahre Fertighaus mit Formaldehyt

    60-70er Jahre Fertighaus mit Formaldehyt: Guten Abend, Wir wollen uns ein Haus kaufen aus den 60/70ern. Problem es ist ein Holz fertig Haus und der Gutachter hatte sehr hohen Formaldehyt...
  3. Risse in den Anstoßfugen des Daches beim Fertighaus

    Risse in den Anstoßfugen des Daches beim Fertighaus: Hallo zusammen, wir sind dabei ein Fertighaus zu kaufen. Bei der Besichtigung sahen wir überall im Deckenbereich in den Anschlussfugen (Wand zu...
  4. Neuer Wandaufbau in älterem Fertighaus (Badsanierung)

    Neuer Wandaufbau in älterem Fertighaus (Badsanierung): Moin, ich saniere gerade ein altes Fertighaus (1978) und bin gerade an den Bädern. Kürzlich habe ich mit nem Zimmermann gesprochen der mir...
  5. Wand- und Deckenaufbau in Ordnung?

    Wand- und Deckenaufbau in Ordnung?: Hallo miteinander, ich lese schon länger hier im Forum mit, da wir vorhaben entweder eine Gebrauchtimmobilie zu kaufen oder eben neu zu bauen....