Feuchter Keller von 1958, Innenabdichtung vs. Injektionsverfahren

Diskutiere Feuchter Keller von 1958, Innenabdichtung vs. Injektionsverfahren im "Bautenschutz" Forum im Bereich Altbau; Hallo Bauexpertenforum, in unserer Doppelhaushälfte (BJ 1958) is der Keller "baujahrestypisch" feucht. Anscheinend ist das auch bei den...

  1. #1 klausey, 07.07.2019
    klausey

    klausey

    Dabei seit:
    07.07.2019
    Beiträge:
    6
    Zustimmungen:
    0
    Hallo Bauexpertenforum,

    in unserer Doppelhaushälfte (BJ 1958) is der Keller "baujahrestypisch" feucht. Anscheinend ist das auch bei den baugleichen Häusern der Siedlung nicht viel anders.

    Was wir wissen:
    - Betonwände (Stampfbeton?), 30cm stark. (Innenwände 24cm)
    - Boden auf Streifenfundament gegossen
    - Aussenwände feucht bis nass, teilweise über 90 digits - und nicht "nur" aufsteigend, sondern auch weiter oben (obwohl es auf ca. 1m höhe an den meisten Stellen "nur" 30-50 digits waren.
    - Bodenplatte ist auch feucht nach Messung (und wenn man Karton draufstellt, wird der auch schwarz/schimmelt)
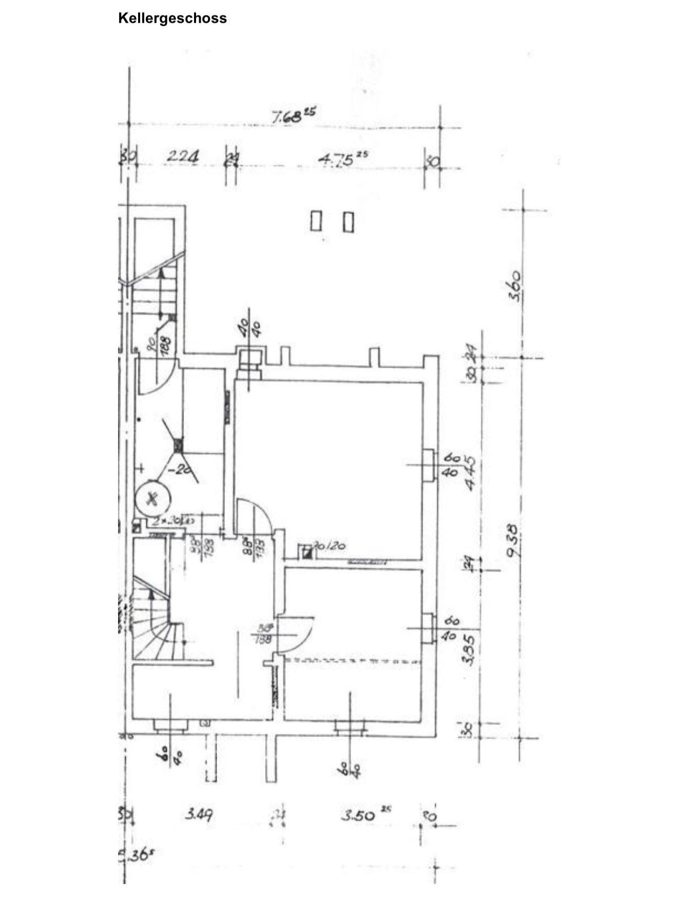
    - Keller ist ca. 1.80m im Erdreich, Raumhöhe ca. 2m. Das Haus ist 7.68m (Süd-/Nordseite) x 9.38m (Westseite=Wetterseite, Ostseite=Kommunwand) groß.
    - Grundwasser ist in der Gegend mindestens 5m unter der Oberfläche
    - Sehr diszipliniertes Lüften hilft natürlich schon ein bisschen, aber löst das Problem auch nicht

    Unser Ziel ist, den Keller zu einem trockenen Lagerkeller und evtl. einem Hobbyraum (ohne große Ansprüche) aufzuwerten. Wir wollen Kleidung, Bücher, usw. dort aufbewahren können, ohne dass sie verrotten und stinken.

    Auf der Suche nach Lösungen haben wir nun Angebote von einem lokalen Isotec-Anbieter sowie Drytech, die (wenig überraschenderweise) "ihr" Verfahren vorschlagen - Innenabdichtung bzw. Rasterinjektion. Beide kommen auf gute 40.000 EUR (incl. Mehrwertsteuer). Das kommt mir selbst im Raum München nicht gerade günstig vor.
    Beide Anbieter meinen, selbstverständlich würde auch eine Außenabdichtung helfen, wäre allerdings normals ca. 20.000 EUR teurer (wegen der Erdarbeiten).

    Zusätzlich hat Isotec noch optional angeboten, den Kellerboden zu sanieren, mit einer wenige Millimeter dicken Versiegelung (soweit ich mich erinnere mit Mehrkomponenten-Epoxidharz oder sowas). Kostenpunkt: weitere 15.000 EUR. Bei beiden Anbietern gab's keine klare Aussage, ob das nun wirklich nötig uns sinnvoll ist.
    Aufgrund der niedrigen Raumhöhe ist es nicht optimal (aber prinzipiell möglich), einen Estrich auf den Boden gießen.

    Fragen:
    1) Funktionieren beide Verfahren zuverlässig in unserer Situation? Gibt's klare Vor-/Nachteile?
    2) Isotec würde für die Innenabdichtung die Innenwände am Anschluss an die Außenwand schneiden, um die Dicht-Beschichtung durchgehend an der Außenwand anzubringen. Ist das statisch bedenklich, so dass ich einen Statiker hinzuziehen sollte?
    3) Ist eine Innenabdichtung empfindlich? Schränkt mich das stark ein (kann ich z.B. Regal anbohren?)
    4) Ist eine high-tech Versiegelung zum Preis eines Kleinwagens die einzig sinnvolle Methode, den Kellerboden abzudichten?
    5) Sollten wir am Ende doch lieber von außen Aufgraben und abdichten, und versuchen einen Anbieter zu finden, der keine 60k dafür will?

    Hilfe und Meinungen sind sehr willkommen. Gerne kann ich auch per PN die Angebote teilen, wenn das hilft.
    Vielen herzlichen Dank!

    Klaus
     
  2. #2 simon84, 07.07.2019
    simon84

    simon84
    Moderator

    Dabei seit:
    11.11.2012
    Beiträge:
    23.287
    Zustimmungen:
    6.920
    Beruf:
    Schrauber
    Ort:
    Muenchen
    Tendiere eher zu 5) und vor allem erstmal GENAU rauszufinden wo was wie feucht ist.

    "Bodenplatte" in der Mitte des Raumes genauso feucht wie in den Ecken?


    Warum ist die Außenabdichtung so teuer? Wie sieht denn konkret der Aufbau vom Angebot aus ?

    DHH heisst, 3 Seiten? Vorgarten/Eingang (Bodenbelag, Treppe etc? ) , Eine freie Seite ? Hinten dann Garten/Terrasse (Bodenbelag? )
     
  3. #3 klausey, 07.07.2019
    klausey

    klausey

    Dabei seit:
    07.07.2019
    Beiträge:
    6
    Zustimmungen:
    0
    Feucht sind alle Außenwände, ab ausgeprägtesten ist aber die Wetterseite (Westen). Konsequent im unteren Meter nass, und im oberen Meter eher zufällig verteilt feucht/naß.

    Bodenplatte: Ich weiß es ehrlich gesagt nicht, dem haben die Anbieter wenig Aufmerksamkeit geschenkt. Müsste ich nochmal ein Messgerät organisieren.

    Für eine Außenabdichtung habe ich kein konkretes Angebot, nur die mündliche Aussage der beiden Firmen ("Können wir auch machen, kostet aber das gleiche plus 20k für Erdarbeiten").

    Genau, 3 Seiten. Vorgarten mit Treppe im Norden (an der Seite ist auch Gas-, Wasser- und Stromanschluss), "freie" Seite im Westen (da kommt nur die elektrische Erdung raus), Terrasse im Süden mit Treppe in den Keller am Rand. Rundherum liegen Waschbetonplatten. Wenn die aber wegkommen wäre zumindest meine Frau nicht unglücklich ;)
     
  4. #4 klausey, 07.07.2019
    klausey

    klausey

    Dabei seit:
    07.07.2019
    Beiträge:
    6
    Zustimmungen:
    0
    Hier mal noch ein Grundriss und ein paar Fotos.
    Die Fotos sind allerdings von vor unserem Einzug und nachdem das Haus ein Jahr nicht bewohnt war (und davor wohl schlecht gelüftet). Im Moment schaut's besser aus, aber nicht gut.
     

    Anhänge:

  5. #5 Manufact, 07.07.2019
    Zuletzt bearbeitet: 07.07.2019
    Manufact

    Manufact
    Moderator

    Dabei seit:
    21.11.2016
    Beiträge:
    3.813
    Zustimmungen:
    1.360
    Beruf:
    Bautenschutz
    Ort:
    Bayern
    1) Funktionieren beide Verfahren zuverlässig in unserer Situation? Gibt's klare Vor-/Nachteile?
    -> Isotec funkioniert zuverlässig.
    ->DRYTEC kann ich nicht beurteilen, es gilt aber physikalisch immer noch die Regel: Mit Wasser gefüllte Kapillaren können NICHT mit Druck gefüllt werden.
    Gefüllt werden können nur nicht wasserführende Kapillaren und Poren.
    Ausserdem finde ich kein WTA-zugelassenes Injektionsprodukt von Drytech...
    2) Isotec würde für die Innenabdichtung die Innenwände am Anschluss an die Außenwand schneiden, um die Dicht-Beschichtung durchgehend an der Außenwand anzubringen. Ist das statisch bedenklich, so dass ich einen Statiker hinzuziehen sollte?
    -> nein, denn normalerweise erfolgt das Schneiden und wieder vermauern Abschnittsweise.
    3) Ist eine Innenabdichtung empfindlich? Schränkt mich das stark ein (kann ich z.B. Regal anbohren?)
    -> Eine Innenabdichtung darf nachträglich nicht durchbrochen werden.
    4) Ist eine high-tech Versiegelung zum Preis eines Kleinwagens die einzig sinnvolle Methode, den Kellerboden abzudichten?
    -> Geht auch mit z.B. Multi-Baudicht und oben drauf Fliesen.
    5) Sollten wir am Ende doch lieber von außen Aufgraben und abdichten, und versuchen einen Anbieter zu finden, der keine 60k dafür will?
    -> beim Aufgraben wird die Ursache beseitigt, d.h. die Wände trocknen aus.

    Du hast keine herkömmliche durchgehende "Bodenplatte" , sondern einen Magerbetonestrich, der zwischen den Streifenfundamenten eingebracht wurde.

    Du kannst mir gerne mal die Angebote senden zwecks Diskussion, was genau angeboten wurde.
    Bei Drytech interessiert mich der weiter Aufbau nach der Injektion (versteckte Innenabdichtung?)
    Finde 40 K etwas zu teuer..
     
    simon84 gefällt das.
  6. #6 simon84, 07.07.2019
    simon84

    simon84
    Moderator

    Dabei seit:
    11.11.2012
    Beiträge:
    23.287
    Zustimmungen:
    6.920
    Beruf:
    Schrauber
    Ort:
    Muenchen
    Wie lange kann man eigentlich eine Monoblock-Klimaanlage für 40.000 EUR betreiben ? Schon mal ausgerechnet ? :)
     
  7. #7 Manufact, 07.07.2019
    Manufact

    Manufact
    Moderator

    Dabei seit:
    21.11.2016
    Beiträge:
    3.813
    Zustimmungen:
    1.360
    Beruf:
    Bautenschutz
    Ort:
    Bayern
    Vollkommen richtiger Einwand, aber leider schimmelt es trotzdem am Boden und an den Wänden, wenn Sachen nahe hingestellt werden...

    Und zum Monoblock:
    Kann man auch selbst machen: (youtube]R_g4nT4a28U) :) :)
     
    simon84 gefällt das.
  8. #8 klausey, 08.07.2019
    klausey

    klausey

    Dabei seit:
    07.07.2019
    Beiträge:
    6
    Zustimmungen:
    0
    Danke für die Antworten!

    Zum Thema Drytec - das sagt:
    "Injektion mit 2-komponentigem
    Injektionsharz - DRYflex. Erstellen der
    Bohrungen im Rasterverfahren
    (waagrecht und im Winkel 45°) .
    Das Injektionsharz wird über Bohrpacker
    im Bereich des Boden- / Wandanschlusse
    sowie des Fundamentes im Hochdruck-
    verfahren eingepresst."

    Ja, die 40k finde ich wirklich abschreckend, am Ende kommen ja dann doch auch noch Dinge wie neue Fenster usw. dazu.
     
  9. #9 Manufact, 08.07.2019
    Manufact

    Manufact
    Moderator

    Dabei seit:
    21.11.2016
    Beiträge:
    3.813
    Zustimmungen:
    1.360
    Beruf:
    Bautenschutz
    Ort:
    Bayern
    Das kann nicht das ganze Angebot sein..
     
  10. #10 klausey, 08.07.2019
    klausey

    klausey

    Dabei seit:
    07.07.2019
    Beiträge:
    6
    Zustimmungen:
    0
    Nein nein, das ist nur der Ausschnitt zum Thema Außenwände.
    Du sagtest
    "Mit Wasser gefüllte Kapillaren können NICHT mit Druck gefüllt werden.
    Gefüllt werden können nur nicht wasserführende Kapillaren und Poren"

    - deswegen wollte ich das wenige, was ich über das Verfahren und verwendete Harz weiß, beitragen :)
     
  11. #11 simon84, 08.07.2019
    simon84

    simon84
    Moderator

    Dabei seit:
    11.11.2012
    Beiträge:
    23.287
    Zustimmungen:
    6.920
    Beruf:
    Schrauber
    Ort:
    Muenchen
    wie kommen denn dann die 60K zu stande für außenabdichtung ?
    Abschreckangebot ? Oder ist dann der neue bodenbelag schon eingerechnet.
     
  12. #12 Manufact, 08.07.2019
    Zuletzt bearbeitet: 08.07.2019
    Manufact

    Manufact
    Moderator

    Dabei seit:
    21.11.2016
    Beiträge:
    3.813
    Zustimmungen:
    1.360
    Beruf:
    Bautenschutz
    Ort:
    Bayern
    In die Kosten der potentiellen Ausschachtung mische ich mich nicht ein.
    Aber bei DER geringen Aussenfläche sind in Franggen (zumindest bei uns) deutlich geringere Beträge angesagt (weniger als 30 K).

    Nach Durchsicht der Angebote von Drytech und Isotec geht eine IAD ebenfalls DEUTLICH unter 40K.
    (Wozu braucht man denn Klimaplatten für einen gelegentlich genutzten Hobbyraum?)

    P.S:
    Die Fussboden-Beschichterei kann man wesentlich günstiger mit Multi-Baudicht und Fliesen lösen :)
     
  13. #13 klausey, 08.07.2019
    klausey

    klausey

    Dabei seit:
    07.07.2019
    Beiträge:
    6
    Zustimmungen:
    0
    Vielen Dank für die ausführliche Beratung, Manufact!
    Für die die mitlesen, ich habe unter anderem gelernt:
    - Klimaplatten brauche ich nicht für meine Verwendung (4-5k EUR)
    - Für die obere Hori-Sperre brauche ich kein Paraffin sondern es reicht auch eine günstigere Injektion
    - Rasterinjektion hat oft höheres Risiko bzgl. weiterhin feuchter Stellen (aber wohl schwer allgemein Aussagen zu treffen)
    - Fußboden geht billiger (siehe Oben)
    - automatische Lüftungsanlage ist besser investiertes Geld als z.B. neue Fenster, wenn es kein Wohnraum wird
    - Wenn es nicht unbedingt ein Isotec-Franchise ist, dann werden die Materialen auch ein bissl billiger
    - München ist teuer (was für eine Erkenntnis...) :D

    Die 60k waren eben nur "Abdichten kostet aussen und innen das gleiche, Erdarbeiten ca. 20k" - aber nur mündlich, da bräuchte ich mal ein echtes Angebot für die Erdarbeiten.
     
  14. #14 Bromm Edmund, 01.10.2019
    Bromm Edmund

    Bromm Edmund

    Dabei seit:
    11.06.2004
    Beiträge:
    383
    Zustimmungen:
    16
    Beruf:
    Selbstständig
    Ort:
    Ismaning
    Benutzertitelzusatz:
    Praktiker; Ehrenamtlicher Berater im Bauzentrum Mü
    Wir wurde denn der Anteil Tauwasser ermittelt? Wenn hier eine Abdichtung erfolgen sollte -wegen was? Dringt denn Oberhaupt Wasser ein? Wenn ja wie hoch? Wenn sich das Wasser jedoch staut wie wird verhindert, dass es dann nicht durch den Boden drückt? Ich kann das nicht nachvollziehen! Insbesondere dann nicht wenn diese Messung en bzw Bewertungen fehlen. Da lesen Sie sich erst auf meiner Seite bei Aktuell ein Ist alles was machbar ist auch sinnvoll.
     
Thema: Feuchter Keller von 1958, Innenabdichtung vs. Injektionsverfahren
Besucher kamen mit folgenden Suchen
  1. keller trotz isotek immer noch wassereindringung

Die Seite wird geladen...

Feuchter Keller von 1958, Innenabdichtung vs. Injektionsverfahren - Ähnliche Themen

  1. EFH Bj. 2000, Feuchte Stellen im Keller, kaufen oder lieber nicht?

    EFH Bj. 2000, Feuchte Stellen im Keller, kaufen oder lieber nicht?: Moin zusammen, ich würde mich sehr über eure Meinung zu folgender Situation freuen: Meine Frau und ich würden gerne ein EFH aus dem Baujahr 2000...
  2. Vinylboden auf Beton im unbeheizten, feuchten Keller – sinnvoll?

    Vinylboden auf Beton im unbeheizten, feuchten Keller – sinnvoll?: Guten Tag zusammen, ich habe ein älteres Haus mit einem unbeheizten Keller, der ausschließlich als Lagerraum genutzt wird. Es gibt keine...
  3. Feuchten Keller entlüften, wie viele Lüfter etc. und wo???

    Feuchten Keller entlüften, wie viele Lüfter etc. und wo???: Hallo zusammen, hier mal eine grobe Skizze meines Kellers. [ATTACH] Ich habe vor neue Kellerfenster mit Lüfter zu verbauen (Abtransport...
  4. Badezimmer im Keller und feuchter Außenwand sanieren

    Badezimmer im Keller und feuchter Außenwand sanieren: Guten Abend zusammen. In unserem Haus (Baujahr 1975) soll ein vorhandenes Badezimmer im Keller saniert werden. Das Badezimmer besteht aus einer...
  5. Feuchten Keller mit Lüftungen trocken halten?

    Feuchten Keller mit Lüftungen trocken halten?: Hallo zusammen, ich habe ein Haus gekauft, das 7 Jahre lang leer stand und in dieser Zeit auch nicht gelüftet wurde. Während die oberen...