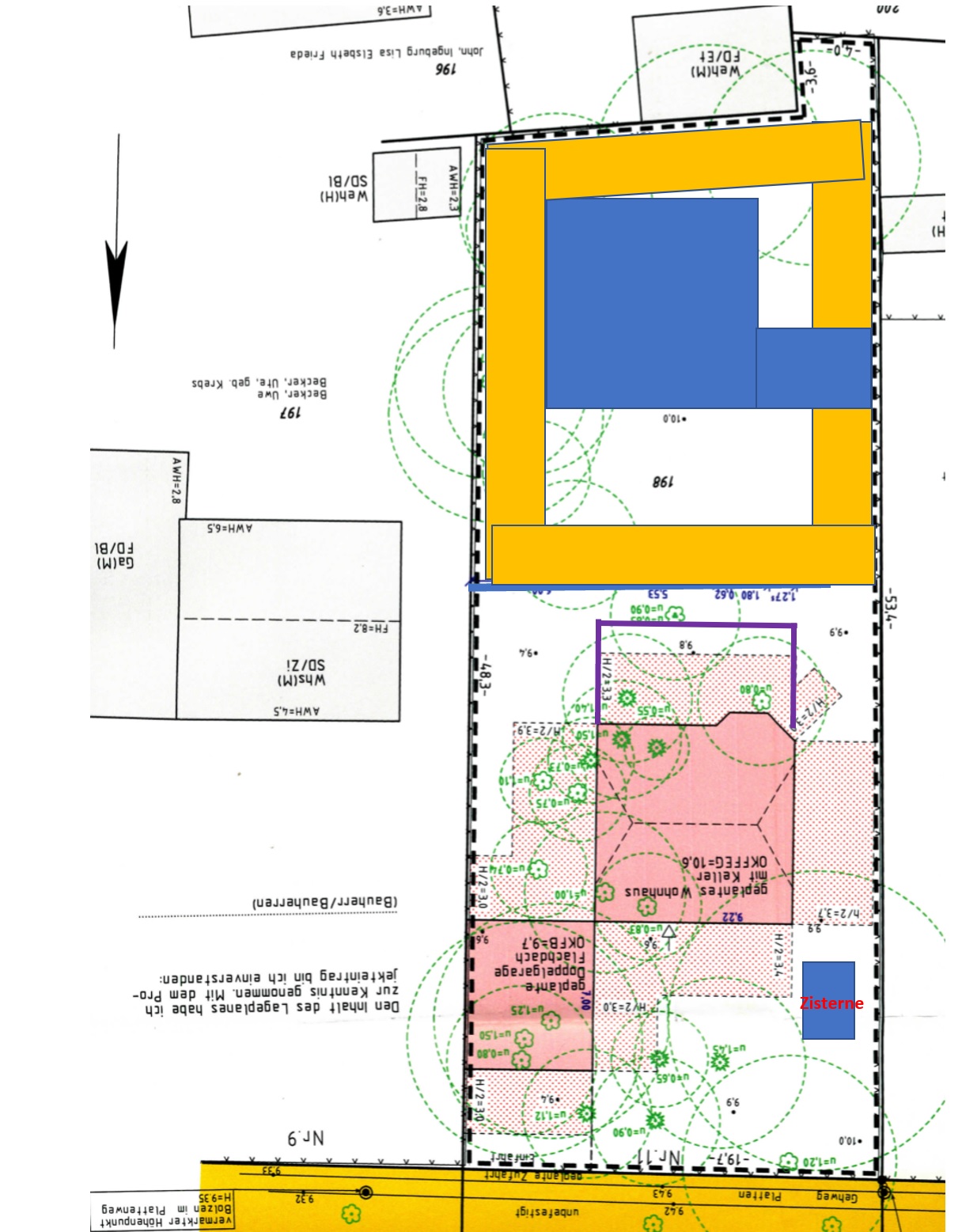
Feuerwehrzufahrt direkt am Keller
Diskutiere Feuerwehrzufahrt direkt am Keller im Praxisausführungen und Details Forum im Bereich Architektur; Hallo, ich bin neu im Forum und freue mich auf einen interessanten Austausch. Ich habe gleich mal eion ziemlich knifflig wirkendes Rätsel ......
Thema:
Feuerwehrzufahrt direkt am Keller
Die Seite wird geladen...
-
Feuerwehrzufahrt direkt am Keller - Ähnliche Themen
-
Welcher Winkel (Abfluss) ist möglich direkt nach vertikalem Duschsiphon ?
Welcher Winkel (Abfluss) ist möglich direkt nach vertikalem Duschsiphon ?: Hallo zusammen, wir installieren aktuell die Abflussrohre , grundsätzlich ist mir bekannt das Bögen mit 45% -Stücken ausgeführt werden sollte...... -
Terrasse direkt an Verblendfassade // Entwässerungsschlitze überbauen? Mauerwerk schützen.
Terrasse direkt an Verblendfassade // Entwässerungsschlitze überbauen? Mauerwerk schützen.: Wir stehen davor unsere Terrasse zu planen. Es wurde mit einem Bauträger gebaut; dieser sieht einen Spritzschutzstreifen und beim... -
Badsanierung, Badewanne direkt auf Dämmung
Badsanierung, Badewanne direkt auf Dämmung: Hi zusammen, wir sanieren gerade unserem Altbau. Um im Badezimmer im EG eine FBH zurealiseren, erhält das Bad eine neue Sohle, damit keine Stufe... -
Verputzen direkt auf Fliesenkleber?
Verputzen direkt auf Fliesenkleber?: Habe ein 120 J altes Haus gekauft, welches ein XXL Badezimmer hat. Das Badezimmer wurde Mitte/Ende der 90er modernisiert. Ist von Boden bis Decke... -
Gipskartonplatten direkt auf Dampfbremse schrauben?
Gipskartonplatten direkt auf Dampfbremse schrauben?: Gute Tag zusammen, meine Frage wäre ob es möglich ist die Gipskartonplatten direkt auf die Dampfbremse zu schrauben oder ob immer zwingend ein...