Fischgräte im Neubau mit Klick Vinyl

Diskutiere Fischgräte im Neubau mit Klick Vinyl im Estrich und Bodenbeläge Forum im Bereich Neubau; Hallo, meine Freundin möchte unbedingt Fischgrät im kompletten EG unseres Neubaus verlegen. Unser Wohnzimmer ist relativ groß mit 5mx7m. [ATTACH]...

  1. #1 eNdless2k, 02.09.2023
    eNdless2k

    eNdless2k

    Dabei seit:
    26.10.2022
    Beiträge:
    9
    Zustimmungen:
    0
    Hallo,

    meine Freundin möchte unbedingt Fischgrät im kompletten EG unseres Neubaus verlegen.
    Unser Wohnzimmer ist relativ groß mit 5mx7m.
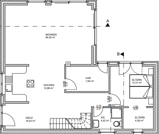
    upload_2023-9-2_6-8-35.png

    Jetzt stellt sich mir die Frage. Hat das jemand von euch schon mal mit Klick Vinyl umgesetzt?
    Gibt es Erfahrungswerte? Auf was sollte man bei der Auswahl des Vinyl achten?
     
  2. #2 driver55, 02.09.2023
    driver55

    driver55

    Dabei seit:
    22.02.2008
    Beiträge:
    6.928
    Zustimmungen:
    1.837
    Beruf:
    Dipl.-Ing.
    Ort:
    Pforzheim
    Kannste machen, wenn‘s gefällt.

    Hättest aber vor Monaten lieber mal nach einer Grundrissbewertung gefragt.:cool:
    Welche Raumhöhe habt ihr jetzt final?
     
  3. #3 eNdless2k, 02.09.2023
    eNdless2k

    eNdless2k

    Dabei seit:
    26.10.2022
    Beiträge:
    9
    Zustimmungen:
    0
    2.57m
     
  4. #4 Hendrik76, 04.09.2023
    Hendrik76

    Hendrik76

    Dabei seit:
    17.03.2023
    Beiträge:
    15
    Zustimmungen:
    12
    Beruf:
    Raumausstatter
    Ort:
    Lippstadt
    Hallo
    5x7 ist bei Design Böden zum clicken in der Regel kein Problem
    Es gibt einen Holz Großhändler in Kassel der mich auch beliefert und dieser hat einen neuen Fischgrät Bodenbelag zum verclicken auf den Markt gebracht.
    Hab ich in der vergangenen Woche als Musterfläche gelegt sieht genial und täuschend echt aus. ist so neu das er auf der Internet Seite noch nicht vorgestellt wird.
     
  5. #5 Fasanenhof, 07.09.2023
    Fasanenhof

    Fasanenhof

    Dabei seit:
    20.02.2023
    Beiträge:
    1.494
    Zustimmungen:
    839
    Beruf:
    Ing für Maschinenbau
    Ort:
    Norddeutschland
    Ich frage mich auch, ob man nicht erstmal Mauern und Türen bauen sollte, ehe man den Bodenbelag legt.

    Aber gut, falsches Thema.
    ____________________________________________________________________________________

    Achte beim Fischgrät auf den "Fluss" des Musters. je nach Licht und Gestaltung sieht es einfach nur falsch aus, wenn das Muster in die falsche Richtung ausgerichtet ist.

    Meine (bescheidene) Meinung ist, dass Sichtachsen immer entlang des Musters laufen sollten, nicht quer. Guckt man quer auf ein Fischgrät, wirkt der Raum "kaputt". Guckt man entlang des Musters, wirkt der Raum gezogen/weit.

    FG_Richtung.png

    und jetzt wird es kompliziert.
    Dein Flur hat die Sichtachse wie in grün dargestellt
    Der Übergang Küche/Wohnbereich wie in rot dargestellt.
    Wenn dein Fischgrät das ganze EG abdeckt, wirst du in einem der Räume eine falsche Sichtachse haben.

    Keine leichte Entscheidung.
     
  6. #6 derjacky, 09.09.2023
    derjacky

    derjacky

    Dabei seit:
    11.09.2008
    Beiträge:
    278
    Zustimmungen:
    63
    Beruf:
    Beamter
    Ort:
    Eifel
    Man kann es ja auch so sehen: Die rote Verlegerichtung lenkt den Blick beim Eintreten dann direkt in den Wohnbereich (an der hoffentlich immer perfekt aufgeräumten Küche vorbei). Ich würde diese rote Verlegerichtung wählen.
     
  7. #7 eNdless2k, 30.09.2023
    eNdless2k

    eNdless2k

    Dabei seit:
    26.10.2022
    Beiträge:
    9
    Zustimmungen:
    0
    Fasanenhof hat natürlich einen berechtigten Einwand.

    Noch ist nichts gekauft, aber der Traum meiner Frau war schon immer Fischgrät ;)

    Der Coretec Fischgrät Meadow lässt sich auf 400qm ohne Dehnungsfuge verlegen.

    Und ich denke ich würde auch lieber rot wählen.
     
Thema:

Fischgräte im Neubau mit Klick Vinyl

Die Seite wird geladen...

Fischgräte im Neubau mit Klick Vinyl - Ähnliche Themen

  1. Fischgräte fliesen in der Dusche - Welche Variante wirkt optisch besser?

    Fischgräte fliesen in der Dusche - Welche Variante wirkt optisch besser?: Hallo zusammen, wir möchten die Rückwand unserer Dusche gerne in einem Fischgrätenmuster in grün fliesen. Unsere Duschwanne ist 90 cm breit und...
  2. Wie ordentlich muss ein Parkettleger arbeiten? Fischgräte mit Fries

    Wie ordentlich muss ein Parkettleger arbeiten? Fischgräte mit Fries: Hallo, werte Forengemeinde! Wir haben uns kürzlich zwei Räume und einen Flur mit 22mm Stabparkett aus massiver Eiche in Fischgrätverband mit...
  3. Fischgrät Parkett, unbehandelt?

    Fischgrät Parkett, unbehandelt?: Hallo liebes Forum, vielleicht kann mir ja jemand helfen.... Ich bin auf der Suche nach einem Fertigparkett aus Eiche im Fischgrätmuster. Da...