Fliesenlegen im Neubau EFH - keine Ahnung, viele Fragen :)

Diskutiere Fliesenlegen im Neubau EFH - keine Ahnung, viele Fragen :) im Estrich und Bodenbeläge Forum im Bereich Neubau; Hallo zusammen, wir bauen gerade und bislang ist nur das Fliesen der Bäder (EG+OG) sowie des HWR vergeben (über BU). Bzgl. der übrigen Räume im...

  1. #1 IchBauWohlBald, 26.07.2022
    IchBauWohlBald

    IchBauWohlBald

    Dabei seit:
    14.08.2019
    Beiträge:
    19
    Zustimmungen:
    0
    Hallo zusammen,

    wir bauen gerade und bislang ist nur das Fliesen der Bäder (EG+OG) sowie des HWR vergeben (über BU). Bzgl. der übrigen Räume im EG sind wir uns mittlerweile einig, dass dort ebenfalls Fliesen hin sollen. Daher wollte ich mir mal ein paar Tipps holen und hinterfragen, ob man das nicht vielleicht auch selber erledigen könnte.

    Paar Fakten:
    -Ich bin handwerklich eher Anfänger.
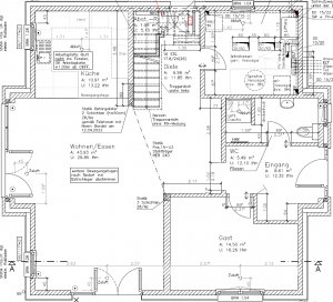
    -Den Grundriss EG habe ich beigefügt.
    -Der Haupteingang ist rechts, links ist Westen.
    -Wir hätten am liebsten Fliesen in Holzoptik Eiche, derzeit sind wir bei dem Format 120x30.
    -Bis auf Gästebad und HWR sollen überall die gleichen Fliesen hin, insgesamt sind das ca. 85m².
    -Die Treppenstufen werden vermutlich aus Buche sein. Ich hoffe das beißt sich nicht so mit der Eichenoptik.
    -Wir haben noch keinen Fachmann um Rat gefragt, wobei mein Eindruck hier im Forum entstand, dass die Meinungen der Fachmänner auch öfter mal auseinandergehen...

    Was uns nun so auf dem Herzen liegt:
    1. Kann man sich so eine Fläche als Laie überhaupt zumuten? Der Umzug sollte sich deshalb nicht um 3 Monate hinauszögern...
    2. Hat jmd. Erfahrungen mit Heimwerker-Workshops, wo einem das Fliesenlegen nähergebracht wird? Habe gesehen, dass sowas bspw. manchmal von Baumärkten angeboten wird.
    3. Habt Ihr Erfahrung mit diesen Niveliersystemen, wo man benachbarte Fliesen miteinander verbindet, um die gleich Höhe zu erhalten? Ohne würde ich vermuten, könnte das bei den großen Räumen schnell krumm und schief aussehen...
    4. Würdet Ihr die fliesen quer (links-rechts) verlegen oder längs? Tendieren momentan eher zu quer:
    -Parallel zur Dehnungsfuge zw. Küche und Essbereich sowie vermutlich auch zu einer Fuge, die zwischen Ess- und Wohnbereich noch kommen müsste (nicht im Plan).
    -In Richtung der Räume wenn man zur Haustür hereinkommt.
    -Im Westen steht die Sonne auch mal tiefer und so wären die Fugen/Kanten nicht ganz so hervorgehoben.
    -Parallel zu den Treppenstufen.
    5. Am einfachsten stelle ich mir hier einen wilden Verband vor. Es soll auf keinen Fall gleichmäßig werden.
    6. Wo würde man am besten anfangen?
    -Generell erst mal inder Küche oder dem Gästezimmer üben :D ?
    -Sonstige Tipps?
    7. Wisst Ihr, ob es den Fliesenlegern in der Regel egal ist, dass man die Fliesen separat kauft oder wollen die die Fliesen lieber selber beschaffen? Grund ist, dass ich die Fliesen sonst jetzt demnächst schon mal kaufen würde, um Preiserhöhungen und Lieferengpässe zu vermeiden und das Geld der Bank schon mal ausgeben kann, bevor die Bereitstellungszinsfreie Zeit endet.
    8. Das BU will irgendwann wissen wie hoch unser Boden wird, um die Estrichhöhe entsprechend anzupassen, damit es mit den Türen etc. passt. Wie geht man da am besten vor? Die Fliese ist bspw. 8mm hoch, der Kleber 1mm, also kommt man auf 9mm :) Klingt irgendwie zu einfach.

    Vorab schonmal danke, danke, danke
     

    Anhänge:

    • EG.png
      EG.png
      Dateigröße:
      126,8 KB
      Aufrufe:
      248
  2. SvenvH

    SvenvH
    Moderator

    Dabei seit:
    22.11.2019
    Beiträge:
    4.170
    Zustimmungen:
    1.584
    Ich halte das für keine gute Idee. Ein paar Videos ersetzen keine Ausbildung. Die Theorie ist eine Sache, die grundlegenden Punkte kann man sich schon irgendwie aneignen. Für die Praxis braucht es Handwerkliches Geschick und jede Menge Übung. Gerade dieses Format über mehrere Räume und dann auch noch auf Fbh? Das ist Außerdem nicht mal eben an einem Wochenende verlegt.
    Die Fliesen selber besorgen kann ich ebenfalls nicht empfehlen. In der Regel zahlen die Kunden drauf, weil entweder zu wenig bestellt wird und die Fliesen für teures Geld nachgeordert werden müssen oder man zuviel bestellt und man darauf sitzen bleibt. Und wenn die Fliesen nicht in Ordnung sind hat man ebenso ein großes Problem. Die Entsorgungskosten für Fliesenabfälle muss der Kunde dann auch noch selber tragen.
    Mich nervt sowas immer wenn die Kunden irgendwas rausnehmen und selber machen wollen. Erstmal arbeiten Fliesenleger Akkord und du nimmst die besten Flächen raus. Dann kommen die Kunden in einer Tour angeködelt mit "hast mal dies und hast mal das" oder "wie geht das".
    Ein paar Sanierungen als Heimwerker finde ich ganz in Ordnung wenn keine anderen Handwerker involviert werden.
     
    meisterLars, Jo Bauherr und Alex88 gefällt das.
  3. #3 Hercule, 27.07.2022
    Hercule

    Hercule

    Dabei seit:
    11.11.2019
    Beiträge:
    3.736
    Zustimmungen:
    865
    Hauptproblem am Fliesen: wenn die kleben kann man die nur mit viel Aufwand entfernen. Noch schlimmer auf Gipskartonwänden oder Styropor Wannenträger die man beim entfernen wegen Fehler sogar dauerhaft schädigt.
    Ich würde es einen Fliesenleger machen lassen.
     
  4. artibi

    artibi

    Dabei seit:
    08.02.2014
    Beiträge:
    1.406
    Zustimmungen:
    518
    Beruf:
    ITler
    Ort:
    Ludwigsburg
    Ich mache handerwerklich wirklich viel und hab im Haus auch viel gemacht. Aber vom Fliesen legen lasse ich die Finger. Wenn es nicht gerade unter dem Waschbecken im Keller ist dann kommt da ein Fachmann. Das Fliesenformat von euch ist auch absolut ungeeignet als Anfänger. Und bis du das ganze Werkzeug besorgt hast, was du brauchst, hast du locker zwei Fliesenleger bezahlt. In meinen Augen kann der Plan nur schief gehen. Und ohne Erfahrung würde ich mal schätzen, dass du mindestens vier Wochen benötigst, eher mehr.
     
    meisterLars, simon84 und Alex88 gefällt das.
  5. #5 klappradl, 27.07.2022
    klappradl

    klappradl

    Dabei seit:
    10.02.2021
    Beiträge:
    2.050
    Zustimmungen:
    879
    Beruf:
    Abfallentsorgung
    Ort:
    Düsseldorf
    Kommt auf die Ansprüche an.
    Ich würde da aber bei dem Format eher mit nein antwworten.

    Und Eiche und Buche passt nicht gut zusammen, aber das ist nur mein Geschmack.
     
    simon84 gefällt das.
Thema:

Fliesenlegen im Neubau EFH - keine Ahnung, viele Fragen :)

Die Seite wird geladen...

Fliesenlegen im Neubau EFH - keine Ahnung, viele Fragen :) - Ähnliche Themen

  1. Fliesenleger: bodengleiche Dusche mit Stufe und schlechtes Fugenbild

    Fliesenleger: bodengleiche Dusche mit Stufe und schlechtes Fugenbild: Hallo, vorab vielen Dank an die Fachleute, die hier Zeit investieren und mir mit Ihren Beiträgen schon oft weitergeholfen haben. der...
  2. Fliesenlegen über alte Zwischenwanddachrinne

    Fliesenlegen über alte Zwischenwanddachrinne: Hallo, da seit Jahren die Dachrinne in der Zwischenwand mehr oder weniger undicht ist, möchte ich diese jetzt gerne komplett nach draußen vor den...
  3. Erfahrene Trockenbauer / Verputzer / Maurer / Fliesenleger gesucht

    Erfahrene Trockenbauer / Verputzer / Maurer / Fliesenleger gesucht: Hallo! Ich suche erfahrene Verputzer / Trockenbauer / Maurer / Fliesenleger, die Lust haben in Spanien zu leben und zu arbeiten! Ich bin vor mehr...
  4. Neubau: Streichen & Fliesenlegen vor Übergabe?

    Neubau: Streichen & Fliesenlegen vor Übergabe?: Guten Abend zusammen! In unserem Neubau trocknet gerade noch der Estrich. Gern würden wir in den nächsten drei Wochen Treppenhaus und Flur...
  5. Neubau: Fliesenleger verweigert Korrektut optischer Mängel. Toleranzbereich??

    Neubau: Fliesenleger verweigert Korrektut optischer Mängel. Toleranzbereich??: Hallo liebes Forum! Wir haben in unserem neuen Bad über einen Architekten einen Meisterbetrieb beauftragt, hochwertige Fliesen zu verlegen. Wir...