Frage bzgl. Schäden an Fassadenübergang
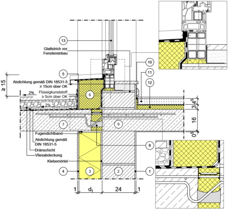
Diskutiere Frage bzgl. Schäden an Fassadenübergang im Außenwände / Fassaden Forum im Bereich Neubau; Verehrte Experten, folgende Frage betreffend fotografierter Schäden am Fassadenübergang: wie könnte es zu den Aufplatzungen gekommen sein und...
Thema:
Frage bzgl. Schäden an Fassadenübergang
Die Seite wird geladen...
-
Frage bzgl. Schäden an Fassadenübergang - Ähnliche Themen
-
Fragen bzgl. Fliesenverlegung
Fragen bzgl. Fliesenverlegung: Hallo, wir haben bei uns Fliesen verlegen lassen und ich habe einige Fragen bzgl. der Verlegung des Fliesenlegers. Ich möchte das noch gegenüber... -
Frage bzgl. Dämmung OG
Frage bzgl. Dämmung OG: Hallo zusammen, wir sind gerade im Prozess des Eigenheimerwerbs. Es handelt sich um ein Reihenendhaus aus 1980. Im gesamten OG sind die... -
Frage zum Träger bzgl. Abbruch einer tragenden Wand
Frage zum Träger bzgl. Abbruch einer tragenden Wand: Hallo zusammen, wir möchten eine tragende Wand entfernen lassen und haben alles von einem Statiker berechnen lassen. Er hat die Träger/Stützen... -
Frage bzgl. Abkürzungen in Grundrissplan d. Maurer
Frage bzgl. Abkürzungen in Grundrissplan d. Maurer: Wer weiß was die 7x "AB" im angehängten Plan bedeuten? Außerdem: Warum müssen bei der einen Wand 3 Schichten "untergemauert" werden? -
Frage bzgl. Dämmung von Rolladenkästen bei neuen Fenster
Frage bzgl. Dämmung von Rolladenkästen bei neuen Fenster: Hallo Leute, ich hätte folgende Frage: Wir haben letztes Jahr neu gebaut und haben jetzt im ersten richtigen Winger gemerkt, dass sich an den...