Fragen zu Dachkonstruktion bei Flachdach (Kaltdach)

Diskutiere Fragen zu Dachkonstruktion bei Flachdach (Kaltdach) im Praxisausführungen und Details Forum im Bereich Architektur; Hallo Forum, ich werde demnächst das Dach unseres Anbaus selbst herstellen. Vorab möchte ich möglichst zu 100 Prozent wissen, was zu tun ist,...

  1. #1 Kantarrenfreund, 15.02.2022
    Kantarrenfreund

    Kantarrenfreund

    Dabei seit:
    16.10.2018
    Beiträge:
    41
    Zustimmungen:
    3
    Hallo Forum,

    ich werde demnächst das Dach unseres Anbaus selbst herstellen. Vorab möchte ich möglichst zu 100 Prozent wissen, was zu tun ist, damit mir keine Fehler unterlaufen. Dafür bin ich um jeden Rat dankbar!

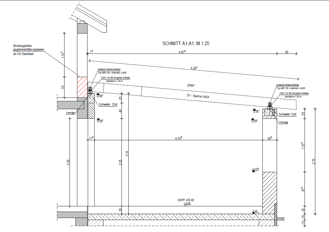
    Im Anhang ist eine Seitenansicht, damit ersichtlich ist, was es für ein Bauwerk ist.

    Die Statik ist für den folgenden Dachaufbau berechnet (von unten nach oben):

    12,5 mm Gipskarton
    1cm Luftschicht
    Klimamembran
    20 cm Zwischensparrendämmung (Sparren: 24cm)
    4 cm Luftschicht
    Unterspannbahn
    2,4 cm Lattung
    Dachziegel

    Da bei 5 Grad Dachneigung keine Ziegel möglich sind und mir selbst von Blechen abgeraten wurde, möchte ich jetzt eine EPDM Dachabdeckung verwenden. Warum der Statiker Ziegel geplant hat, ist mir bis jetzt nicht klar. Aber aufgrund des hohen Gewichts von Ziegeln spricht es ja erstmal für eine sehr stabile Dachplanung.

    Dies ist nun mein Plan für den Aufbau des Daches:

    9,6mm Profilholz
    1cm Luftschicht
    Klimamembran
    20 cm Zwischensparrendämmung (Sparren: 24cm)
    4 cm Luftschicht
    25mm OSB3-Platte
    Resitrix EPDM-Bahn

    Unklarheiten habe ich nun bei der Belüftung. Bei meinem Plan würden die OSB-Platten auf den Sparren aufliegen. Dadurch ergibt sich, dass nur zwischen den Sparren Luft zirkulieren kann. Die Luftschicht zwischen Dämmung und OSB-Schicht beträgt dabei 4 cm. Beim Wandanschluss an das alte Haus würde ich einen entsprechenden Lüftungsschlitz vorsehen.

    Meine Fragen dazu:
    1) Reicht das als Belüftung? Oder macht es vielleicht Sinn, die Sparren mit kurzen, 3cm hohen Latten "aufzubocken" und Abstände dazwischen zu lassen, so dass zum einen der Abstand zwischen Dämmung und OSB-Platten höher wird und zudem auch eine Lüftung in seitlicher Bewegung möglich ist? Das wäre dann ja ungefähr die Belüftung, die man mit Dachlatten hätte.

    2) Falls ich die Idee aus 1) verwende, wäre dann noch eine zusätzliche Unterspannbahn auf den Sparren sinnvoll (Dämmung -> 4cm Luft -> Unterspannbahn -> 3 cm Luft -> OSB) ?

    Danke für Eure Hilfe!
     

    Anhänge:

Thema:

Fragen zu Dachkonstruktion bei Flachdach (Kaltdach)

Die Seite wird geladen...

Fragen zu Dachkonstruktion bei Flachdach (Kaltdach) - Ähnliche Themen

  1. Frage zu Dachkonstruktion 50er Jahre Altbau

    Frage zu Dachkonstruktion 50er Jahre Altbau: Hallo liebes Forum! Heute möchte ich euer Schwarmwissen sammeln, um der Konstruktion meines Hauses aus dem Bj. 1953 auf den Grund zu gehen....
  2. Frage zur Dachkonstruktion von Reiheneckhaus Bj. 92

    Frage zur Dachkonstruktion von Reiheneckhaus Bj. 92: Guten Tag, ich plane den Kauf eines Hauses, konkret ein Reiheneckhaus Bj. 92. Bei der Besichtigung ist mir aufgefallen das sich an einigen...
  3. Fragen zur Dachkonstruktion beim Neubau

    Fragen zur Dachkonstruktion beim Neubau: Hallo zusammen, bei unserem Neubau wird momentan der Dachstuhl gebaut. Ich habe mitbekommen dass unser GÜ Leimbinder bestellt hat. Diese...
  4. Frage zu Aufdachdämmung/Dachkonstruktion

    Frage zu Aufdachdämmung/Dachkonstruktion: Hallo, da in unserem Bebauungsplan die Wandhöhe bis zur Dachhaut bei 2 Vollgeschossen auf 6,50m begrenzt ist, muss ich Platz sparen - möchte aber...