Fußbodenheizung im Altbau mit unterschiedlichen Höhen angrenzender Räume

Diskutiere Fußbodenheizung im Altbau mit unterschiedlichen Höhen angrenzender Räume im Praxisausführungen und Details Forum im Bereich Architektur; Guten Tag, ich habe eine Wohnung in einem Altbau und möchte da auf 50 m² eine Fußbodenheizung verlegen. Die Grundfläche besteht aus einem langen...

  1. #1 patrikw, 12.01.2026
    Zuletzt bearbeitet: 12.01.2026
    patrikw

    patrikw

    Dabei seit:
    12.01.2026
    Beiträge:
    1
    Zustimmungen:
    0
    Guten Tag,
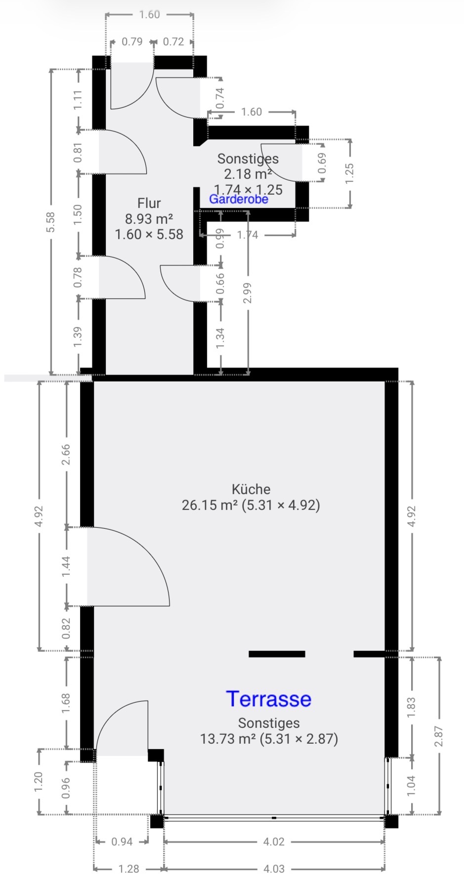
    ich habe eine Wohnung in einem Altbau und möchte da auf 50 m² eine Fußbodenheizung verlegen. Die Grundfläche besteht aus einem langen Flur und einem angrenzenden Raum. der Raum hat eine Türe mit ca. 7cm Höhe bis zum Betonboden, die Fußböden der Zimmer am Ende des an den Raum angrenzenden Flurs, liegen 11cm hoch, Länge Raum + Flur = ca. 12m
    Boden= durchgehend Beton, Stahlarmiert.
    Wenn ich den Boden auf 6,5 cm nivelliere (1,5cm Fliese&Kleber + 3cm Fußbodenheizungsplatte +6,5cm Ausgleichsmasse -> 11cm), habe ich bei den hinteren Räumen zwar keine Stufe, bekomme die Türe der Terrasse aber nicht mehr auf. Gehe ich auf 2,5cm Ausgleich, habe ich Stufen von 4cm bei den hinteren Räumen.

    Bei dem „Nordic Fußbodenheizung Trockenbau XPS 550“ Set von „de-baustoffe“ brauche ich anscheinend keine zusätzlichen Fermacell-Platten o.ä.
    Habe ich ein 30mm XPS-System mit zusätzlicher Abdeckplatte 10-15mm, verringert sich natürlich der Höhenausgleich.

    Frage? Ist es Sinnvoll ein Gefälle vom 4cm auf die 12m zu verbauen, also ein leicht schräger Fußboden, und darauf dann die Fußbodenheizung zu verlegen?

    Oder müssen die Heizungsplatten ohne Gefälle eingebaut werden und dann darauf der schräge Fußboden aufgebaut werden? Wie gesagt, Fliesenbelag.

    Kann man auch Dämmung als Niveauausgleich verbauen und die Übergänge mit Ausgleich verfüllen?

    Ich bitte um Ideen für eine Lösung. VG Patrik
     

    Anhänge:

Thema:

Fußbodenheizung im Altbau mit unterschiedlichen Höhen angrenzender Räume

Die Seite wird geladen...

Fußbodenheizung im Altbau mit unterschiedlichen Höhen angrenzender Räume - Ähnliche Themen

  1. Fußbodenheizung im Altbau bei 12cm Aufbau nachrüsten

    Fußbodenheizung im Altbau bei 12cm Aufbau nachrüsten: Hallo zusammen, ich habe folgendes Projekt mit einem gekauften Einfamilienhaus vor mir: Das Haus wurde 1995 als Wolf-Fertigteilhaus mit Vollkeller...
  2. Fußbodenheizung Altbau

    Fußbodenheizung Altbau: Servus liebe Freunde! mich habe eine Frage zu meinem Projekt. Habe ein Haus von 1921. Möchte im Erdgeschoss eine Fußbodenheizung installieren....
  3. Fußbodenheizung in Altbau Holzbalkendecke - Feuchteschutz

    Fußbodenheizung in Altbau Holzbalkendecke - Feuchteschutz: [IMG]
  4. Wandheizung oder Fußbodenheizung im Keller (Altbau)?

    Wandheizung oder Fußbodenheizung im Keller (Altbau)?: Hallo, erstmal paar Eckdaten zum Haus: Bungalow aus dem Jahr 1960, gebaut aus 24 cm dicken Bims-Hohlblocksteinen und Klinkerriemchen + eine Seite...
  5. Fussbodenheizung im Altbau: Übergänge zw. Dielen und Flur (ohne Dielen)

    Fussbodenheizung im Altbau: Übergänge zw. Dielen und Flur (ohne Dielen): Hallo allerseits, ich habe mal eine Frage zum Einbau einer Fussbodenheizung im Altbau. In einem 100j alten Haus will ich die konventionellen...