Fußbodenheizung nachrüsten bei mehreren Steigleitungen pro Wohnung

Diskutiere Fußbodenheizung nachrüsten bei mehreren Steigleitungen pro Wohnung im Heizung 2 Forum im Bereich Haustechnik; Moin Moin zusammen, ich habe im Haus pro Heizkörper jeweils eine Steigleitung direkt aus dem Keller nach oben. Wie kann ich hier eine...

  1. #1 TimTimxx, 15.09.2025
    TimTimxx

    TimTimxx

    Dabei seit:
    30.04.2025
    Beiträge:
    9
    Zustimmungen:
    1
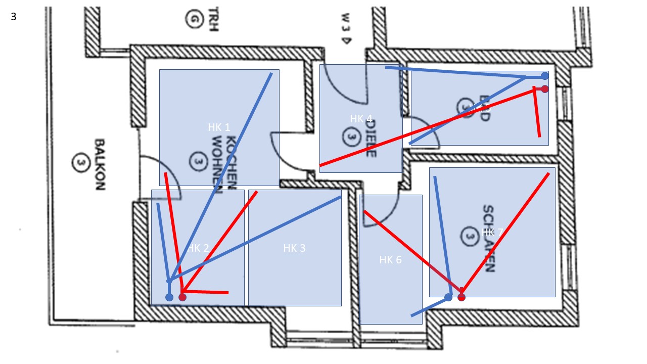
    Moin Moin zusammen,

    ich habe im Haus pro Heizkörper jeweils eine Steigleitung direkt aus dem Keller nach oben. Wie kann ich hier eine Fußbodenheizung nachrüsten? Mir sind bisher die folgenden zwei Optionen eingefallen, vielleicht habt ihr noch clevere Ideen:
    Option 1:
    Alle Steigleitungen verbinden und zum Heizkreisverteiler zusammenführen. Ab da würde die FBH dann genau so installiert werden wie beim "normalen" einfräsen mit einer Steigleitung.

    Option 2:
    Ich baue an jeden Steigstrang ein paar Heizkreise dran. Da gestaltet sich dann nur die Heizkostenabrechnung schwierig, dass jeder Heizkreis die passende Leistung bekommt würde ich auch noch in Frage stellen.

    Beste Grüße
     

    Anhänge:

  2. #2 Fred Astair, 16.09.2025
    Fred Astair

    Fred Astair

    Dabei seit:
    02.07.2016
    Beiträge:
    12.731
    Zustimmungen:
    6.600
    Beruf:
    Tänzer
    Ort:
    San Bernardino
    MFH? Welche Etage?
     
  3. #3 TimTimxx, 16.09.2025
    TimTimxx

    TimTimxx

    Dabei seit:
    30.04.2025
    Beiträge:
    9
    Zustimmungen:
    1
    MFH im zweiten OG
     
  4. #4 Fred Astair, 16.09.2025
    Fred Astair

    Fred Astair

    Dabei seit:
    02.07.2016
    Beiträge:
    12.731
    Zustimmungen:
    6.600
    Beruf:
    Tänzer
    Ort:
    San Bernardino
    Habe ich befürchtet.
    Dürfte schwierig werden.
    Wie willst Du VL-Temperatur auf die FBH anpassen?
    Was sagt die Eigentümergemeinschaft / der Eigentümer dazu?
    Wie willst Du Deinen Verbrauch zum Verbrauch der anderen Nutzer abgrenzen?
    Einfräsen bedeutet keinerlei Wärmedämmung nach unten. Willst Du Deinem Unterlieger eine Deckenheizung spendieren?
    .
    .
    .
     
    TimTimxx gefällt das.
  5. #5 TimTimxx, 19.09.2025
    TimTimxx

    TimTimxx

    Dabei seit:
    30.04.2025
    Beiträge:
    9
    Zustimmungen:
    1
    Ich habe zum Glück das ganze MFH gekauft =) Das mit der Eigentümergemeinschaft ist also kein Ding, nach und nach werden die ganzen Heizkörper entweder auf TYP 33 inkl. aktiver Belüftung oder auf FBH umgerüstet.
    Den Verbrauch korrekt zu messen wird tatsächlich spannend. Da habe ich noch keine gute Idee.
    Da ohnehin 30 .- 50 % der Heizkosten auf die Allgemeinheit umgelegt werden ist die warme Decke beim Nachbarn unten drunter weniger das Problem =)
     
  6. #6 Fred Astair, 19.09.2025
    Zuletzt bearbeitet: 19.09.2025
    Fred Astair

    Fred Astair

    Dabei seit:
    02.07.2016
    Beiträge:
    12.731
    Zustimmungen:
    6.600
    Beruf:
    Tänzer
    Ort:
    San Bernardino
    Dann empfehle ich Dir, an möglichst zentraler Stelle eine neue Steigleitung hoch zu legen, an die nacheinander die bereits umgerüsteten Wohnungen angeschlossen werden. Dort kann dann auch der Wärmezähler installiert werden.
    Im Flur gar keinen Heizkreis verlegen und die Anbindeleitungen möglichst gedämmt durchlegen. Der wird sonst der wärmste Raum der Wohnung.
     
    TimTimxx gefällt das.
  7. #7 TimTimxx, 25.09.2025
    TimTimxx

    TimTimxx

    Dabei seit:
    30.04.2025
    Beiträge:
    9
    Zustimmungen:
    1
    Besten Dank für den Tipp, dann lasse ich es so einbauen. Nach und nach werden dann die ganzen Wohnungen umgerüstet, das wird allerdings noch einige Jahre dauern.
     
    Fred Astair gefällt das.
  8. #8 Fred Astair, 25.09.2025
    Fred Astair

    Fred Astair

    Dabei seit:
    02.07.2016
    Beiträge:
    12.731
    Zustimmungen:
    6.600
    Beruf:
    Tänzer
    Ort:
    San Bernardino
    Darum ein zweites Heizkreissystem parallel zum Bestand legen und mittels Mischergruppe die niedrigere Heizkurve fahren. Dann musst Du nur einmal durch alle Flure bis unters Dach und kannst in allerRuhe Wohnung für Wohnung umstellen, so wie sie frei werden.
     
Thema:

Fußbodenheizung nachrüsten bei mehreren Steigleitungen pro Wohnung

Die Seite wird geladen...

Fußbodenheizung nachrüsten bei mehreren Steigleitungen pro Wohnung - Ähnliche Themen

  1. Fußbodenheizung im Altbau bei 12cm Aufbau nachrüsten

    Fußbodenheizung im Altbau bei 12cm Aufbau nachrüsten: Hallo zusammen, ich habe folgendes Projekt mit einem gekauften Einfamilienhaus vor mir: Das Haus wurde 1995 als Wolf-Fertigteilhaus mit Vollkeller...
  2. Fußbodenheizung Küche nachrüsten nur 6cm Höhe

    Fußbodenheizung Küche nachrüsten nur 6cm Höhe: Hallo Zusammen, hoffentlich bin ich in diesem Unterforum richtig. Wir haben eine neue Küche geplant. Der Raum wird komplett renoviert: Neue...
  3. Fußbodenheizung nachrüsten im Haus Bj. 1983 – Aufbau zu knapp?

    Fußbodenheizung nachrüsten im Haus Bj. 1983 – Aufbau zu knapp?: Hallo zusammen, ich stehe aktuell vor der Planung einer Sanierung und bin unsicher, ob bzw. wie bei mir eine Fußbodenheizung sinnvoll...
  4. Fußbodenheizung nachrüsten. Holzbalken auf Decke entfernen?

    Fußbodenheizung nachrüsten. Holzbalken auf Decke entfernen?: Hallo zusammen, wir haben ein Haus aus 1955 erstanden und möchten hier im Erdgeschoss eine Fußbodenheizung installieren. Es kommt zeitnah eine...
  5. Fußbodenheizung und Erdwärmepumpe nachrüsten oder Holzvergaser

    Fußbodenheizung und Erdwärmepumpe nachrüsten oder Holzvergaser: Hallo ich stehe vor der Situation, dass ich ein bereits renoviertes Haus von den Groseltern erbe. Das Haus ist von 1970. Freistehend Gastherme...