Garage mit Holzdach: Ringanker nötig?!

Diskutiere Garage mit Holzdach: Ringanker nötig?! im Beton- und Stahlbetonarbeiten Forum im Bereich Neubau; Hallo zusammen! Ich beginne gerade mit dem Bau unserer Garage (8m x 3.5m) aus 17.5er Kalksandsteinen. Oben drauf soll ein Flachdach aus Holz mit...

  1. #1 ordi303, 24.05.2017
    ordi303

    ordi303

    Dabei seit:
    01.06.2014
    Beiträge:
    32
    Zustimmungen:
    0
    Beruf:
    Jugendreferent
    Ort:
    Kahl
    Hallo zusammen!
    Ich beginne gerade mit dem Bau unserer Garage (8m x 3.5m) aus 17.5er Kalksandsteinen. Oben drauf soll ein Flachdach aus Holz mit Kies als Beschwerung der Abdichtung.

    Meine Frage: muss ich bei diesen Maßen überhaupt einen Ringanker gießen? Bzw. welche (kostengünstigen) Möglichkeiten gibt es für die Stabilisierung des Bauwerks? Welche Art von Bewährung MUSS rein, welche SOLLTE rein, wenn überhaupt welche nötig ist (?).

    Garagentor soll 2500 breit sein und in der kurzen Wand verbaut werden.

    Da ich mich leider nicht sooooo viel mit Statik auskenne, wäre ich für jede Hilfe dankbar!
     
  2. #2 Andybaut, 24.05.2017
    Andybaut

    Andybaut

    Dabei seit:
    02.04.2015
    Beiträge:
    5.127
    Zustimmungen:
    329
    Beruf:
    Architekt
    Ort:
    Baden-Württemberg
    Hallo,

    besprich das mit einem Statiker.
    Das ist keine Bastelarbeit, die man mal kurz mit ein paar Eisen erläutern kann.
    Außerdem muss das Dach gegen Windsog und die Wände vor Winddruck bzw. Sog auf der Gegenseite gesichert werden.
    Das ist alles kein Hexenwerk, aber nur mit Statik.
     
  3. #3 ordi303, 24.05.2017
    ordi303

    ordi303

    Dabei seit:
    01.06.2014
    Beiträge:
    32
    Zustimmungen:
    0
    Beruf:
    Jugendreferent
    Ort:
    Kahl
    PS: was für einen Sturz brauche ich eigentlich für die Garagentoröffnung?! Der muss ja fast 3m breit sein... gibt es sowas preisgünstig oder gibt es da eine Alternative?

    2 Türen und 1 Fenster (1000x1000) sind ebenfalls geplant, aber da ist das mit den Stürzen ja unkompliziert..
     
  4. #4 Onkel Dagobert, 24.05.2017
    Onkel Dagobert

    Onkel Dagobert

    Dabei seit:
    23.10.2014
    Beiträge:
    724
    Zustimmungen:
    33
    Beruf:
    Bauingenieur
    Ort:
    Emlichheim (Nds.)
    Wenn man sich nicht sooooo viel mit Statik auskennt sollte man einen fragen der sich damit auskennt, sinnigerweise ein Statiker.

    Glaskugel an: Ringanker umlaufend + jeweils eine Stahlbetonstütze in den 8m-Wänden zur Aussteifung. Bewehrung muss sicherlich rein; Dimensionierung gibt der Statiker vor.

    Angaben zur Bewehrung mache ich jetzt bewusst nicht, da DIY.
    Also, ab zum Statiker dann wird`s was mit der Garage

    Auch zum Thema Sturz kann dir der Statiker etwas sagen.
    Nochmal Glaskugel: Zusammen mit dem Ringanker direkt den Sturz betonieren. Das wird mit Fertigstürzen nichts werden
     
  5. #5 ordi303, 24.05.2017
    ordi303

    ordi303

    Dabei seit:
    01.06.2014
    Beiträge:
    32
    Zustimmungen:
    0
    Beruf:
    Jugendreferent
    Ort:
    Kahl
    Andy: also unser Architekt hat damals die Garage gleich mit in der Statik-Berechnung eingeschlossen und die Pläne liegen mir auch vor. Aber von Bewährung und Ringanker finde ich da eben keine Infos zu...

    Wohlgemerkt: er hat es mit einem 45° Satteldach oben drauf berechnet (kurzer First, also 4m hohes Dach!) .. da uns das (derzeit) ein Overkill ist, soll erstmal nur ein Flachdach aus Holz drauf...
     
  6. #6 ordi303, 24.05.2017
    ordi303

    ordi303

    Dabei seit:
    01.06.2014
    Beiträge:
    32
    Zustimmungen:
    0
    Beruf:
    Jugendreferent
    Ort:
    Kahl
    Noch mal PS: es ist eine freistehende Garage. Also liegt nirgendwo an einer Hauswand an, oder sowas.
     
  7. #7 ordi303, 24.05.2017
    ordi303

    ordi303

    Dabei seit:
    01.06.2014
    Beiträge:
    32
    Zustimmungen:
    0
    Beruf:
    Jugendreferent
    Ort:
    Kahl
    Ok.. werde den Statiker von damals nochmal anrufen.. weiß jemand, ob und wieviel so eine Auskunft / Planung kostet? Genehmigt ist das ganze Ding ja seitens des Bauamts schon seit fast 3 Jahren.
     
  8. #8 Onkel Dagobert, 24.05.2017
    Onkel Dagobert

    Onkel Dagobert

    Dabei seit:
    23.10.2014
    Beiträge:
    724
    Zustimmungen:
    33
    Beruf:
    Bauingenieur
    Ort:
    Emlichheim (Nds.)
    1. Also wenn die Garage in der Statik eingeschlossen sein soll und da steht nichts zur Bewehrung, dann ist das keine (richtige) Statik.
    2. Aufgrund des anderen Daches ist die Statik sowieso hinfällig so es denn eine richtige war. Also: ab zum Statiker
     
  9. #9 ordi303, 24.05.2017
    ordi303

    ordi303

    Dabei seit:
    01.06.2014
    Beiträge:
    32
    Zustimmungen:
    0
    Beruf:
    Jugendreferent
    Ort:
    Kahl
    @Onkel Dagobert: erstmal danke, aber.. eine Stahlbetonstütze wird doch von oben nach unten verbaut, oder sehe ich das falsch? Wozu sollte sowas in der 8m Wand dienlich sein? Da ist doch überall der gleiche "Druck" von oben drauf, wenn da ein Flachdach drauf kommt - oder übersehe ich da etwas?
     
  10. #10 Andybaut, 24.05.2017
    Andybaut

    Andybaut

    Dabei seit:
    02.04.2015
    Beiträge:
    5.127
    Zustimmungen:
    329
    Beruf:
    Architekt
    Ort:
    Baden-Württemberg
    also so eine Baugenehmigung verfällt auch mal. Die hält nicht ewig.
    In BW nach 3 Jahren.

    Sie gilt aber auch nur für das genehmigte und nicht für anderes.
    Wenn ein Satteldach genehmigt wurde, kann man nicht einfach ein Flachdach bauen.

    Meistens bekommt man auch ein Flachdach genehmigt, aber halt nicht immer.
    Und was Bauämter gar nicht mögen, von der Genehmigung abweichen ohne Bescheid zu geben.

    Das der Architekt die Statiker der Garage gerechnet hat ist eher unwahrscheinlich.
    Wenn er auch Statiker ist, dann ja, sonst nein.
     
  11. #11 simon84, 24.05.2017
    simon84

    simon84
    Moderator

    Dabei seit:
    11.11.2012
    Beiträge:
    23.247
    Zustimmungen:
    6.890
    Beruf:
    Schrauber
    Ort:
    Muenchen
    Das Satteldach ist das beste was du machen kannst, wenn es genehmigt ist.
    Platz nach oben ist in der Garage doch Gold wert :)
     
  12. #12 ordi303, 24.05.2017
    ordi303

    ordi303

    Dabei seit:
    01.06.2014
    Beiträge:
    32
    Zustimmungen:
    0
    Beruf:
    Jugendreferent
    Ort:
    Kahl
    @Andy: Genehmigung wäre kein Thema, da das Bauamt hier bei uns eh so ziemlich alles durchwinkt und laut Bebauungsplan Flachdächer hier auch klar gehen (alle anderen haben auch Flachdachgaragen neben uns). Der Architekt ist selbst kein Statiker, er hat das von einem Statiker machen lassen - aber er war unser direkter Ansprechpartner und er würde auch den Kontakt wieder mit dem Statiker herstellen bzw. unsere Anfrage weiterleiten. Ist recht unkompliziert, da unser Architekt und wir beide Kids im selben KiGa haben :)
     
  13. #13 ordi303, 24.05.2017
    ordi303

    ordi303

    Dabei seit:
    01.06.2014
    Beiträge:
    32
    Zustimmungen:
    0
    Beruf:
    Jugendreferent
    Ort:
    Kahl
    @simon: jap... aber das würde uns im 1. OG doch a bisserl die Sicht nehmen - und die Aussicht von "da oben" ist recht schick :) Außerdem ist es auch ein Kostenfaktor... ein 45° Satteldach mit einer reinen Dachhöhe von 4m ist echt mal ne finanzielle Ansage!
     
  14. #14 Andybaut, 24.05.2017
    Andybaut

    Andybaut

    Dabei seit:
    02.04.2015
    Beiträge:
    5.127
    Zustimmungen:
    329
    Beruf:
    Architekt
    Ort:
    Baden-Württemberg
    :hammer:
    genau wegen solcher Fragen solltest du zum Statiker gehen.
    Bin mal gespannt ob Dagobert was schreibt.
     
  15. #15 Onkel Dagobert, 24.05.2017
    Onkel Dagobert

    Onkel Dagobert

    Dabei seit:
    23.10.2014
    Beiträge:
    724
    Zustimmungen:
    33
    Beruf:
    Bauingenieur
    Ort:
    Emlichheim (Nds.)
    Diese Stütze dient der Aussteifung der 17,5er KS-Wand. Faustformel bei 17,5er Wände: max alle 6m eine Stütze oder Querwand

    By The Way: Wie willst du eine Stütze von oben nach unten bauen??? Verstehe ich jetzt nicht.
    Falls du die vertikale Belastung meinst: natürlich ist die auf der Wand gleichmäß verteilt, und wird auch problemlos durch die Wand aufgenommen. Zur Aussteifung braucht es halt diese Stütze.
     
  16. #16 Onkel Dagobert, 24.05.2017
    Onkel Dagobert

    Onkel Dagobert

    Dabei seit:
    23.10.2014
    Beiträge:
    724
    Zustimmungen:
    33
    Beruf:
    Bauingenieur
    Ort:
    Emlichheim (Nds.)
    Nur so nebenbei:

    Mein Schuppen zu Hause ist massiv gebaut, 2-schalig (17,5 Innenschale, 6cm Dämmung 2cm Luft, 11,5cm Verblender), Außenmaße 8,00 x 3,50 m.
    In den Längswänden jeweils eine Aussteifungsstütze 17,5/25 cm, umlaufender Ringanker 17,5/25 cm
    natürlich berechnet durch einen Statiker.
     
  17. #17 ordi303, 24.05.2017
    ordi303

    ordi303

    Dabei seit:
    01.06.2014
    Beiträge:
    32
    Zustimmungen:
    0
    Beruf:
    Jugendreferent
    Ort:
    Kahl
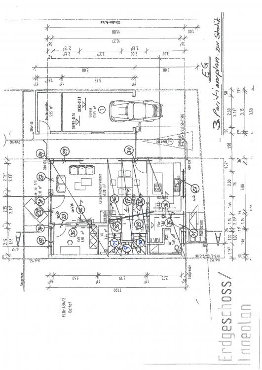
    Oh - dann sollte ich ggf. erwähnen, dass da noch eine Querwand rein kommt :) Ich versuche mal ein Bild aus der Statik-Berechnung des Hauses einzufügen - daraus geht das hervor. Der einzige Unterschied ist, dass die Tür nicht unten, sondern links raus geht und eine weitere Tür unten-links Richtung Haus zeigend rein kommt: Statische Berechnung_01.jpg
     
  18. #18 Onkel Dagobert, 24.05.2017
    Onkel Dagobert

    Onkel Dagobert

    Dabei seit:
    23.10.2014
    Beiträge:
    724
    Zustimmungen:
    33
    Beruf:
    Bauingenieur
    Ort:
    Emlichheim (Nds.)
    OK, dann haben sich die Aussteifungsstützen warscheinlich erledigt. Einen umlaufenden Ringbalken wirds aber trotzdem brauchen
     
  19. #19 ordi303, 24.05.2017
    ordi303

    ordi303

    Dabei seit:
    01.06.2014
    Beiträge:
    32
    Zustimmungen:
    0
    Beruf:
    Jugendreferent
    Ort:
    Kahl
    Oha - ok - und genau da ist meine Frage: wo liegt der Unterschied zwischen einem Ringanker (betoniert & bewährt) und einem Ringbalken? Ist ein Ringbalken sozusagen aus Holz mit Stahl drin? Muss der irgendwie an den Ecken mit den anderen Ringbalken verbunden werden?
     
  20. #20 simon84, 24.05.2017
    simon84

    simon84
    Moderator

    Dabei seit:
    11.11.2012
    Beiträge:
    23.247
    Zustimmungen:
    6.890
    Beruf:
    Schrauber
    Ort:
    Muenchen
Thema: Garage mit Holzdach: Ringanker nötig?!
Besucher kamen mit folgenden Suchen
  1. ringanker garage

    ,
  2. ringanker flachdach

    ,
  3. ringanker garage flachdach

    ,
  4. garage ringanker ,
  5. alternative ringanker,
  6. ringbalken garage,
  7. ringanker aus holzbalken,
  8. garage ohne ringanker,
  9. steine für garage berechnen,
  10. Garage holzdach,
  11. ringbalken aus holz,
  12. ringanker für Flachdach notwendig ,
  13. holzdach garage,
  14. garage flachdach ringanker,
  15. holzdsch auf garage,
  16. höhe ringanker garage,
  17. ringanker gartenhaus,
  18. holzdach für garage ,
  19. ringanker bei flachdach notwendig ,
  20. ringanker dach,
  21. ringanker mauern,
  22. ringanker garage nötig,
  23. aufbau flachdach ohne ringanker,
  24. ringanker für garage,
  25. ringanker bei Flachdach
Die Seite wird geladen...

Garage mit Holzdach: Ringanker nötig?! - Ähnliche Themen

  1. Ungewöhnlicher Ringanker für Garage

    Ungewöhnlicher Ringanker für Garage: Hallo ich mauer gerade unsere garage und weiß nicht so richtig wie ich den ringanker ausführen soll. ich habe mal ein bild mit meinem problem...
  2. Garage Boden

    Garage Boden: Hallo zusammen! Habe diese Halle günstig angemietet, da sie quasi fast neben meinem zu Hause liegt. sie soll eine kleine Hobby KFZ Werkstatt...
  3. Garagen Betonboden ausgleichen

    Garagen Betonboden ausgleichen: Hi an euch alle. direkt die Frage, danach bisschen mehr Input: Die Bodenplatte meiner Garage (50qm) ist leider sehr wellig und hat einen...
  4. Von Garage am sinnvollstren Leitung nach aussen führen

    Von Garage am sinnvollstren Leitung nach aussen führen: Ich möchte eine Elektro und eine Wasserleitung aus der Garage in eine Ventilbox im Garten legen. Wie mache ich das am besten von den Bohrungen...
  5. Dachbegrünung Garage gesucht - Holzdach

    Dachbegrünung Garage gesucht - Holzdach: Hallo Community, ich habe eine selbst gebaute 6x3m Garage/Schuppen mit einem flachen Holzdach. Die Statik ist für etwa 150km/m² ausgelegt. Darauf...