Garagenanbau an Haus - Feuerschutz, Abstände, Alternativen

Diskutiere Garagenanbau an Haus - Feuerschutz, Abstände, Alternativen im Fenster/Türen Forum im Bereich Neubau; Hallo zusammen, ich bin bei meinen Internet-Recherchen immer wieder auf dieses Forum gestoßen und konnte dadurch einiges klären. Danke dafür!...

  1. done

    done

    Dabei seit:
    28.05.2020
    Beiträge:
    1
    Zustimmungen:
    0
    Hallo zusammen,

    ich bin bei meinen Internet-Recherchen immer wieder auf dieses Forum gestoßen und konnte dadurch einiges klären. Danke dafür! Jetzt komme ich jedoch nicht weiter.

    Neubau in Brandenburg - Landkreis Havelland - mit Hausbaufirma.
    Fertigstellung soll Anfang August 2020 sein.
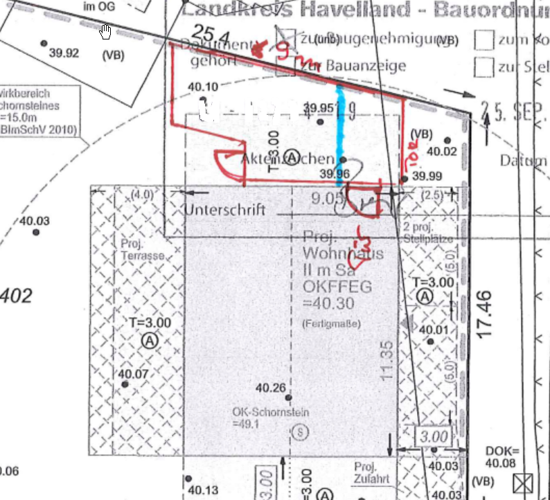
    Ich möchte eine Garage an die Nordwand des Hauses anschließen lassen.
    Ich hänge zwei einfache Skizzen an.

    Maße der Garage: Grenzseite max. 9 Meter / Torseite ca. 3,8 Meter / Hausseite ca. 6,7 Meter / Grundfläche ca. 40 qm / Höhe ca. 3 Meter

    Ich habe die Garage anfangs nicht geplant und möchte sie nach Fertigstellung des Hauses ohne die Hausbaufirma gerne als Grenzbebauung zwischen Haus und nördlicher Grundstücksgrenze setzen.
    Auf der Nordseite befindet sich ein Küchenfenster - daher der eigenwillige Grundriss - und eine Nebeneingangstür, die zum HWR (kein Wohnraum?) führt. Darüber möchte ich gerne aus der Garage ins Haus gehen können.

    Wenn ich jetzt die Garage mit direktem Übergang zum Haus baue, benötige ich laut meiner Recherche eine Feuerschutztür. Da dies in der Planung mit der Hausbaufirma noch nicht feststand und die Tür zum HWR schon eingebaut ist, habe ich jetzt ein Problem, das ich irgendwie lösen muss. Dafür suche ich eine sichere und günstige Lösung.
    Hier hoffe ich auf eine Bewertung meiner Lösungsansätze oder vielleicht auch andere Wege, die ich momentan noch nicht sehe.

    Geplant war außerdem die Seite der Garage, die an der Hauswand liegt nur mit Stützen, auf denen das Dach aufliegt, zu gestalten. Also, keine durchgehende Wand.

    Folgende Optionen sehe ich:
    1. Die bestehende Tür zum HWR durch entsprechende feuerhemmende Tür ersetzen.
    2. Die Garage auch zu der Hauswand zu mauern und dort eine zusätzliche feuerhemmende Tür einzubauen.
    3. Die Garage nach vorne zu kürzen (blaue Linie) und erst hinter der Tür mit dem geschlossenen Bereich zu beginnen.
    4. Die Garage in ausreichender Entfernung zu bauen, damit sie nicht als Anbau gilt und kein Feuer auf Haus/Garage überspringen kann.

    Zu 1. Das ist teuer und ich muss bestehende Arbeit vernichten. Ansonsten sicher die sauberste Lösung.

    zu 2. Das bedeutet zwar, dass immer zwei Türen geöffnet werden müssen, könnte ich mir aber vorstellen. Vielleicht ist es ohnehin eine Vorgabe, dass Garagen, die an einer Fassade anlehnen, mit einer durchgehenden, nicht brennbaren Mauer versehen sind und die reinen Stützen nicht erlaubt sind?

    zu 3. Das wäre meine letzte Wahl.

    zu 4. Hier glaube ich, irgendwo etwas von 2,50 m Mindestabstand gelesen zu haben? Wenn das stimmt, fehlt der Platz. Wenn eine reine Entkoppelung von z. B. 30 cm reicht, wäre es wohl eine Option.

    Zusatzfrage: Wenn Option 2 die Lösung sein wird, muss die Decke bzw. die Konstruktion für das Flachdach der Garage dann aufgrund der Nähe zum Haus auch auf brennbare Materialien verzichten? Geplant war eine Dachkonstruktion aus Holzbalken.

    Hier wollte ich noch die Brandenburgische Bauordnung posten, die ich leider nicht komplett verstehe bzw. richtig interpretieren kann, das darf ich aber noch nicht.
    h*ps://bravors.brandenburg.de/gesetze/bbgbo_2016

    Wenn ich noch etwas undeutlich oder gar nicht formuliert habe, bitte einfach nachfragen.

    Vielen Dank schon vorab für konstruktive Beiträge.

    Gruß
    done

    Garage_ErsteSkizze_02.png Garage_ErsteSkizze_01.jpg
     
  2. #2 simon84, 06.06.2020
    simon84

    simon84
    Moderator

    Dabei seit:
    11.11.2012
    Beiträge:
    23.305
    Zustimmungen:
    6.925
    Beruf:
    Schrauber
    Ort:
    Muenchen
    Einzig sinnvoll ist 1)
     
Thema:

Garagenanbau an Haus - Feuerschutz, Abstände, Alternativen

Die Seite wird geladen...

Garagenanbau an Haus - Feuerschutz, Abstände, Alternativen - Ähnliche Themen

  1. Garagenanbau mit Trapezblech oder Sandwichpanelen?

    Garagenanbau mit Trapezblech oder Sandwichpanelen?: Hallo zusammen, Ich habe ein kleines Bauprojekt wohl ein bisschen blauäugig begonnen... An meine Garage habe ich einen Anbau, ca 4m tief und 5,7m...
  2. Dämmung Dach im Garagenanbau

    Dämmung Dach im Garagenanbau: Hallo zusammen, ich habe es in einem gewerblich genutzten Parkgaragenanbau mit einer etwas abenteuerlichen, ca. 25 Jahre alten Konstruktion zu...
  3. Unverputzten Garagenanbau irgendwie streichen oder so...

    Unverputzten Garagenanbau irgendwie streichen oder so...: Hallo guten Tag, ich habe mich eben erst registriert und möchte mich daher kurz vorstellen: ich bin w, 67, und habe mir im August für meinen...
  4. Streifenfundamente für Garagenanbau auf Drainag

    Streifenfundamente für Garagenanbau auf Drainag: Guten Tag miteinander, es ist geplant eine Massivgarage 6x7m an unser Fertighaus anzubauen, bzw. direkt daneben errichtet werden (nicht...
  5. Unterfangen der Bodenplatte bei Garagenanbau

    Unterfangen der Bodenplatte bei Garagenanbau: Hallo zusammen, nach längerer Recherche habe ich für dieses doch individuelle Problem keine Antwort hier gefunden: An eine nicht-unterkellerte...