Garagendach Erneuerung

Diskutiere Garagendach Erneuerung im Praxisausführungen und Details Forum im Bereich Architektur; Guten Abend, Wir möchten unser Garagendach sanieren und würden gerne andere Meinungen einholen. Ist Situation: Garage direkt am Haus. Garage hat...

  1. #1 benutzer20240509, 09.05.2024
    benutzer20240509

    benutzer20240509

    Dabei seit:
    09.05.2024
    Beiträge:
    1
    Zustimmungen:
    0
    Guten Abend,

    Wir möchten unser Garagendach sanieren und würden gerne andere Meinungen einholen.

    Ist Situation:
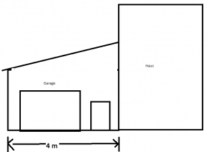
    Garage direkt am Haus. Garage hat drei eigene Mauern, die vierte Mauer ist gleichzeitig Hauswand. Schrägdach der Garage von Hauswand weg abfallend:
    [​IMG]
    Die Garage ist 4 Meter breit und 6 Meter tief.


    Aktuell ist der Dachaufbau folgender:
    Sparren des Garagendachs sind direkt in die Hauswand eingelassen:
    [​IMG]

    Auf der gegenüberliegenden Seite ist ein Balken aufs Mauerwerk aufgesetzt, auf dem die Sparren, die von der Hauswand kommen befestigt sind. Der aufliegende Balken ist in einer sehr schlechten Verfassung, die Sparren fangen an der Stelle auch schon an zu faulen:
    [​IMG]

    Auf den Sparren ist eine mehr oder weniger gestückelte Konterlattung, darauf ist die aktuelle Dacheindeckung befestigt.

    Unter den Sparren waren die ganze Zeit Sauerkrautplatten mit Styropor beklebt befestig. Diese haben wir bereits entfernt.

    Die aktuellen Sparren sind ca. 100 x 80 mm. Da die Sparren "unterdimensioniert" sind, biegen sie sich auch ordentlich durch.

    Unser Dachaufbau soll folgendermaßen aussehen:
    Neue Sparren, (160 x 80 mm), im Abstand von ca. 70 cm zu einander, darauf 15 mm OSB Platte (Kat 3), darauf Unterspannbahn, darauf Dachlatten jeweils über einem Sparren, darauf Konterlattung (60 x 40 mm), Darauf Trapezblech.

    Neue Sparren - Befestigung - Niedrige Dachseite
    Die Befestigung der Sparren auf der niedrigen Dachseite (gegenüber der Hauswand) wollten wir wie folgt machen: Mauersperrbahn, Balken auflegen, darauf die Sparren

    Neue Sparren - Befestigung - Hohe Dachseite (Hauswand)
    Wobei wir uns noch nicht ganz klar sind ist, wie wir die Sparren an der Hauswand befestigen sollten. Ergibt es sinn, die alten Löcher in der Hauswand zu vergrößern, die neuen Balken (mit Mauersperrbahn "umwickelt") einfach einzupassen und mit Winkeln zu befestigen?
    Oder eher die alten Sparrenlöcher zumauern, dann einen Sparren parallel der Hauswand mit Gewindestäben befestigen und auf diesen dann die neuen Sparren aufsetzen. Welche Dimension müssen die Gewindestäbe dann haben? Hat jemand einen Rat, wie wir die Befestigung der Sparren Hauswand Seitig am Besten lösen könnten?

    Vielen Dank für die Hilfe im Vorraus!
    LG Franziska
     

    Anhänge:

  2. #2 Fabian Weber, 11.05.2024
    Fabian Weber

    Fabian Weber

    Dabei seit:
    03.04.2018
    Beiträge:
    16.314
    Zustimmungen:
    6.481
    Die Sparren an der Hausseite sehen doch noch gut aus, die würde ich lassen und dort die neuen Sparren anlaschen.

    Wahrscheinlich reicht es schon, bei der Gammelseite ca. 1,50m wegzuschneiden.
     
  3. Ettlin

    Ettlin

    Dabei seit:
    17.09.2014
    Beiträge:
    32
    Zustimmungen:
    9
    Beruf:
    Industriekaufmann
    Ort:
    Karlsruhe
    Das ist kein Projekt für DIY.
    Würde als erstes klären, weshalb es zu Fäulnis gekommen ist (Kondenswasser vom Eternitdach?). Weiter wäre für die Frage, ob man die Reparatur nicht dazu nutzt, dem ganzen ein ansprechenderes Erscheinungsbild zu verleihen. Von Eternit auf Profilblech halte ich nicht für den richtigen Ansatz. So ganz beurteilen kann ich es natürlich nicht, da ich das "Gesamtensemble" aus Haus und Garage nicht kenne.
    Was die hausseitige Befestigung der Sparren anbelangt: Da die "Zusammensetzung" der Wand nicht bekannt ist, würde ich eher zu Stützen raten. Aber nochmal: Würde mindestens einen Zimmermann hinzuziehen, der kann die örtlichen Gegebenheiten mit erfahrenem Blick besser beurteilen und einen (ansprechenden-) Umsetzungsvorschlag machen. Im Stuttgarter Raum kenne ich einen Zimmermann, der bei DIY Projekten unterstützt - falls zu weit von euch entfernt, geht das vielleicht auch per Onlineberatung.
     
Thema:

Garagendach Erneuerung

Die Seite wird geladen...

Garagendach Erneuerung - Ähnliche Themen

  1. Terassenbelag auf Garagendach - Moos

    Terassenbelag auf Garagendach - Moos: Hallo, wir haben seit 2019 ein Eigenheim und eine Aussenterasse auf unserer Garage. Der Boden ist mit Kunststofffliesen belegt und darunter...
  2. Garagendach Aufbau

    Garagendach Aufbau: Hallo, wir haben vor kurzem unser Garagendach erneuert. Dabei wurde das Eternitdach entfernt und ein neues Trapezblechdach aufgebaut. Hierbei...
  3. Altes Garagendach ohne Konterlattung

    Altes Garagendach ohne Konterlattung: Hallo zusammen, neben meinem Haus, Baujahr 1961 befindet sich eine Garage mit Satteldach, Dachneigung ca. 28 °. Nachdem ich vor 2 Jahren eine...
  4. Garagendach-Erneuerung

    Garagendach-Erneuerung: Hallo zusammen! Nachdem ich nun zwei Tage begeistert in diesem Forum „rum geschmökert“ und einen vergleichbaren Fall nicht gefunden habe, bin...
  5. Erneuerung Garagendach

    Erneuerung Garagendach: Hallo alle zusammen! Bin seit eben neu hier dabei und habe gleich mal ne Frage. Ich möchte meinen Garagen ein neues Dach spendierung und bin...