Gartenhaus Planung
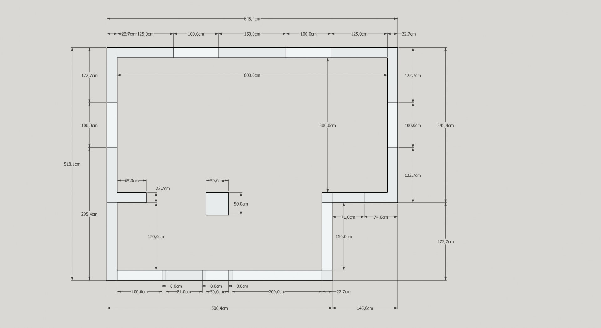
Diskutiere Gartenhaus Planung im Holzrahmenbau / Holztafelbau Forum im Bereich Neubau; Hallo, ich plane gerade ein kleines Gartenhaus für unseren Garten. Soll ungefähr so wie auf dem Foto im Anhang aussehen. Grundriss: siehe...
Thema: Gartenhaus Planung
Besucher kamen mit folgenden Suchen
gartenlaube grundriss statik
,gerätehaus 8x8 kvh
Die Seite wird geladen...
-
Gartenhaus Planung - Ähnliche Themen
-
Bodenaufbau "Gartenhaus" unter Carport
Bodenaufbau "Gartenhaus" unter Carport: Hallo zusammen, ich möchte unter einem größeren Carport (der Carport ist frostsicher mit Pflastersteinen ausgebildet) einen geschlossenen Raum... -
Gartenhaus dach wird mir nicht dicht
Gartenhaus dach wird mir nicht dicht: Hallo ich weis nicht was ich falsch gemacht habe aber es tropft hier und da einfach rein, Habe dachpappen oben überlappen befestigt und natürlich... -
Gartenhaus mit Bitumenschindeln
Gartenhaus mit Bitumenschindeln: Hallo zusammen, ich möchte im Frühjahr ein Gartenhaus bauen und mache mir da aktuell ein paar Gedanken zu. Mein Plan ist zuerst V13 oder R333... -
Auswahl Fundamentart für Gartenhaus
Auswahl Fundamentart für Gartenhaus: Guten Tag zusammen, wir wollen im nächsten Jahr ein relativ großes Gartenhaus bauen. 6,7x4.8m in 70mm Wandstärke. Gewicht beträgt ca. 2.5 Tonnen... -
Hilfe bei Planung eines Gartenhauses
Hilfe bei Planung eines Gartenhauses: Hallo, wieder einmal ein Neuling. Bitte schon jetzt um Entschuldigung falls falsches Forum nutze, dann bitte ein richtiges anzeigen, Danke. Ich...