Grobe Kostenschätzung für EFH

Diskutiere Grobe Kostenschätzung für EFH im Baupreise Forum im Bereich Rund um den Bau; Moin, wir haben kürzlich die Zusage zu einem Grundstück erhalten, leider ist dort nur 1 Vollgeschoss erlaubt. Da ich in einer Handwerksfirma...

  1. #1 kerets87, 22.05.2024
    kerets87

    kerets87

    Dabei seit:
    22.05.2024
    Beiträge:
    71
    Zustimmungen:
    2
    Moin,

    wir haben kürzlich die Zusage zu einem Grundstück erhalten, leider ist dort nur 1 Vollgeschoss erlaubt.
    Da ich in einer Handwerksfirma arbeite, würden wir gerne die gesamten TGA-Leistungen selber ausführen.

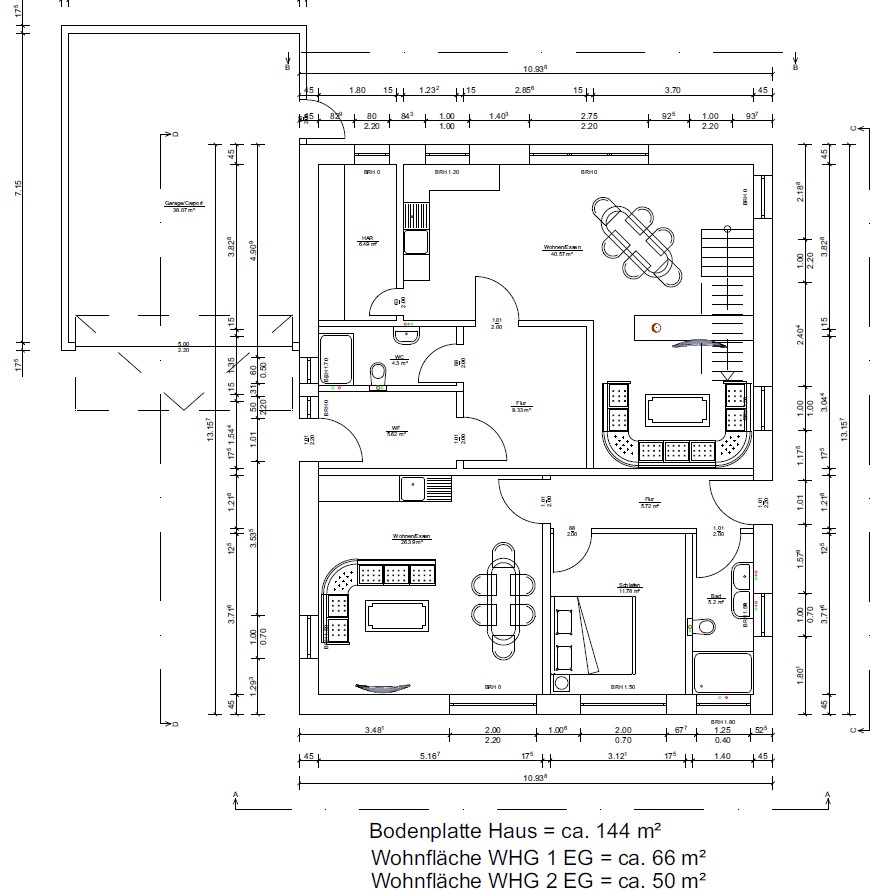
    Ich hänge mal zum besseren Verständnis ein paar Bilder an, wie es in etwa aussehen sollte. Die Wohnfläche soll irgendwo um die 150/160 m² liegen, die Bodenplatte in diesem Beispiel hat ca. 114m² an Grundfläche.

    Wo seht ihr die reinen Hausbaukosten inkl. Fenster, Wände, Bodenbeläge etc.? Google hatte mir mal irgendwas um die 600 EUR/m² für den Rohbau rausgeschmissen. Klar, nach oben sind nie Grenzen gesetzt, aber mal nur um einen realistischen Eindruck zu bekommen, wenn man die TGA ausblenden würde.

    Standort ist im Norden Niedersachsens in einem kleineren Ort.
     

    Anhänge:

  2. #2 nordanney, 22.05.2024
    nordanney

    nordanney

    Dabei seit:
    15.09.2021
    Beiträge:
    6.435
    Zustimmungen:
    3.734
    Beruf:
    Finanzierer/Investor/Bau- und Sanierungslaie
    Ort:
    Niederrhein
    Ich würde all in außer Bau-NK, Außenanlagen, Garage etc. mit +/- 3.000€/qm für eine normale Ausstattung schätzen. Rechne dann Deine Eigenleistungen/Lohnkosten raus - das müsstet Ihr doch als Handwerker grob überschlagen können, was Strom, Wasser, Abwasser, Heizung an Lohn im EFH kostet.
     
  3. #3 kerets87, 22.05.2024
    kerets87

    kerets87

    Dabei seit:
    22.05.2024
    Beiträge:
    71
    Zustimmungen:
    2
    Ja, ist glaube ich nicht weit hergeholt, wenn man das über einen Anbieter machen würde. Mir wurde von meinem Bekannten irgendwas um die 2500 EUR/m² genannt, der auch erst kürzlich dort gebaut hat, allerdings auch ohne Pflasterung, Garage etc.

    Ich hätte jetzt mal grob ...:
    - 120.000 EUR für den Rohbau angesetzt
    - 30.000 EUR für Fenster&Türen
    - 15.000 EUR für Trockenbau
    - 20.000 EUR Boden
    - 15.000 EUR Maler
    Habe ich hier noch wichtige Punkte vergessen? Sind die Zahlen komplett daneben oder als grobe Grundlage i.O.?

    TGA würde natürlich extra on top kommen.
    Pauschal wahrscheinlich irgendwo um die 100-150k. Heizung, Lüftung, Sanitär + Elektro, je Gewerk wahrscheinlich um die 20-30k
     
    simon84 gefällt das.
  4. #4 driver55, 22.05.2024
    driver55

    driver55

    Dabei seit:
    22.02.2008
    Beiträge:
    6.923
    Zustimmungen:
    1.835
    Beruf:
    Dipl.-Ing.
    Ort:
    Pforzheim
    einen Architekten beauftragen (bei diesem Grundriss.)
     
    Grillbaer und 11ant gefällt das.
  5. #5 kerets87, 22.05.2024
    kerets87

    kerets87

    Dabei seit:
    22.05.2024
    Beiträge:
    71
    Zustimmungen:
    2
    Das wird selbstverständlich passieren, ob über einen separaten oder über die Baufirma wird sich dann noch entscheiden. Den Grundriss hatte ich nur schnell erstellt um einfach grob einen Überblick zu erhalten wieviel Räume wir ungefähr planen und wie groß das Haus in etwa werden wird.
    Deshalb auch die Kosteneinschätzung hier, bevor ich Termine bei verschiedenen Baufirmen habe. Ich gehe da nur sehr ungern unvorbereitet in ein Gespräch.
    Wird sich erstmal zeigen müssen, ob irgendein Bauunternehmen überhaupt dazu bereit ist, die o.g. Punkte anzubieten,...
    ...ohne die TGA-Leistungen zu inkludieren.
     
  6. #6 nordanney, 22.05.2024
    nordanney

    nordanney

    Dabei seit:
    15.09.2021
    Beiträge:
    6.435
    Zustimmungen:
    3.734
    Beruf:
    Finanzierer/Investor/Bau- und Sanierungslaie
    Ort:
    Niederrhein
    Fenster und Türen könnte (deutlich) zu wenig sein. Viele große Fensterflächen.
    160qm Böden zu T€ 20 wird auch richtig eng - je nach Boden. Da ist nicht nur der Belag, sondern auch Kleber, Sockelleisten, Treppenbelag (ansonsten fehlt noch die Fertigtreppe) und Kleinzeug zu berücksichtigen. 100qm hochwertiges Parkett kann all in schon T€ 20 kosten, ohne sich merklich anzustrengen.
    Maler - was soll gemacht werden? Welche Wandqualitäten (alles Trockenbau, ansonsten fehlt Putz), Malervlies oder nur Anstrich? Decke auch streichen? Wird wohl eng mit dem Budget.
     
    kerets87 gefällt das.
  7. #7 kerets87, 22.05.2024
    kerets87

    kerets87

    Dabei seit:
    22.05.2024
    Beiträge:
    71
    Zustimmungen:
    2
    Das stimmt, würde ich wahrscheinlich auch noch bedeutend teurer werden, wenn einige Fenster dann auch noch so eine Art Raffstore bekommen sollen.
    Das ist so das Einzige was ich mir in letzter Zeit mal im Baumarkt angesehen habe und die Preise dort lagen so zwischen 8-35 EUR/m² in der Qualität, die wir uns vorstellen. Das hält sich also doch in Grenzen was die Materialkosten anbelangt, wie gesagt, wir planen da nichts Extravagantes, dass die Kosten nach oben hin eh immer bodenlos sind, ist natürlich klar.
    Hiervon haben wir selbst absolut null Ahnung. Es ist sogar möglich, dass eine Abhangdecke rein kommt, da ich gerne eine Lüftungsanlage hätte, die Leitungen allerdings gerne unter die Decke verbauen würde. Was letztendlich Trockenbau wird und was nicht, wird dann auch eher der Statiker entscheiden müssen, würde ich jetzt mal annehmen. Gehe mal unten von 2-3 Massivwänden aus + die Außenwände natürlich, der Rest wäre dann wahrscheinlich Trockenbau.
    Also gut möglich, dass man da mit 15k nicht hinkommen wird, wahrscheinlich auch eher die Richtung 20-30k.

    Sehr guter Punkt, den hatte ich tatsächlich so gar nicht auf dem Schirm...
     
  8. #8 VollNormal, 22.05.2024
    VollNormal

    VollNormal

    Dabei seit:
    20.11.2021
    Beiträge:
    4.211
    Zustimmungen:
    2.844
    Beruf:
    Bauingenieur
    Ort:
    Bochum
    Ich vermute du möchtest ein Haus, das vor Allem deinen Ansprüchen genügt und nicht denen des Bauunternehmens. Da sollte die Entscheidung doch leicht fallen ...
     
    11ant gefällt das.
  9. #9 kerets87, 28.05.2024
    kerets87

    kerets87

    Dabei seit:
    22.05.2024
    Beiträge:
    71
    Zustimmungen:
    2
    So, wir haben unsere Grundrisse nochmal etwas angepasst, da wir gemerkt haben, dass das Grundstück leider nicht optimal geschnitten ist und man hier sonst entweder kaum noch Garten hätte, oder mit den Bebauungsgrenzen kollidieren würde.

    Mittlerweile sind auch zwei Preisanfragen zurückgekommen.
    - der 1. wollte für einen Rohbau 2100 EUR/m² haben
    - der 2. sagte, er würde mir das schlüsselfertig für 400.000 EUR bauen inkl. Garage!
    - ein 3. ist voll gebucht und gibt daher keinen KVA ab

    Die nächsten Tage sollten wohl noch mehr Preise eintrudeln. Bei den 400k kann man ja nicht mal groß was sagen, außer dass wir eigentlich den Ausbau selber machen wollten :D Da werde ich die nächsten Tage mal vorstellig und wir schauen mal, was da noch so geht.

    Der Termin bei der Bank ist für Ende der Woche geplant, ich frage mich allerdings gerade ob es für den "normalen KFW40-Standard" auch je ein Kredit pro Wohneinheit gibt oder ob es vielleicht sogar besser wäre auf die KFW zu verzichten, da die Zinsbindung eh nur relativ kurz ist. Schwierig.
     

    Anhänge:

    • EG.jpg
      EG.jpg
      Dateigröße:
      141,7 KB
      Aufrufe:
      402
    • OG.jpg
      OG.jpg
      Dateigröße:
      142,7 KB
      Aufrufe:
      398
    • Iso1.jpg
      Iso1.jpg
      Dateigröße:
      133 KB
      Aufrufe:
      383
  10. #10 Ettlingen, 28.05.2024
    Ettlingen

    Ettlingen

    Dabei seit:
    13.05.2024
    Beiträge:
    554
    Zustimmungen:
    138
    Würde das mit den Terrassen im OG nochmal überdenken. Die nutzt man wenig (vor allem im Kinderzimmer) und sind neuraligisch in Sachen Wärmedämmung und Abdichtung. Wenn ihr daran festhalten möchtet, dann als Abdichtung rollnahtgeschweisste Edelstahlabdichtung.

    Die Dachüberstände würde ich großzügiger wählen.
     
    kerets87 gefällt das.
  11. #11 kerets87, 28.05.2024
    kerets87

    kerets87

    Dabei seit:
    22.05.2024
    Beiträge:
    71
    Zustimmungen:
    2
    @Ettlingen Danke für den Input. Die Überlegungen hatte ich selbst auch schon. Würde die Terrassen auch gerne kleiner haben wollen, aber muss natürlich weiterhin bebauungsplankonform sein. Wieviel Überhang kann man denn seitlich so maximal machen bei einem Pultdach? Hatte mal so ein bisschen damit rumgespielt und fand, dass schon 1m irgendwie komisch aussieht :D
     
  12. #12 Fridolin77, 28.05.2024
    Fridolin77

    Fridolin77

    Dabei seit:
    29.04.2023
    Beiträge:
    332
    Zustimmungen:
    114
    Man kann auch mit Satteldach 1,5-geschossig bauen, wir haben z.Bsp. ca. 1,80m Kniestock und 28° Dachneigung, aber das kommt natürlich stark auf das Bundesland und ggf. Bebauungsplan an.
     
    kerets87 gefällt das.
  13. #13 kerets87, 28.05.2024
    kerets87

    kerets87

    Dabei seit:
    22.05.2024
    Beiträge:
    71
    Zustimmungen:
    2
    Hi @Fridolin77 . Das ist richtig, wir würden allerdings tatsächlich die Pultdachvariante vorziehen um diese dann komplett mit PV zu bedecken. Wäre so ziemlich eine komplette Südausrichtung und damit perfekt.
     
  14. #14 Ettlingen, 28.05.2024
    Ettlingen

    Ettlingen

    Dabei seit:
    13.05.2024
    Beiträge:
    554
    Zustimmungen:
    138
    Wenn das Pultdach Südausrichtung hat, dann sind die Fensterflächen im Sinne solarer Wärmegewinne nicht optimal geplant. Bei zuviel an Sonne kann man mit Rolladen abschirmen. In der Übergangszeit kann die Heizung aus bleiben. Daher größere Fensterflächen nach Süden einplanen.

    Zu deiner Frage wegen B-Plan im Zusammenhang mit Dachterrassen kann ich leider nichts beitragen. Geht es da um die maximal mögliche Wohnfläche?
     
    kerets87 gefällt das.
  15. #15 kerets87, 28.05.2024
    kerets87

    kerets87

    Dabei seit:
    22.05.2024
    Beiträge:
    71
    Zustimmungen:
    2
    @Ettlingen
    Ja richtig, geht um die Wohnfläche bzgl. der 2/3-Regelung, da ist man also schon etwas begrenzt, wobei man oben mit Sicherheit auch noch etwas größer gestalten könnte, was sich dann wieder auf die Kosten auswirken würde.
    Das ist zwar richtig, wird jetzt aber denke ich nicht so den Unterschied machen. Es kommt wahrscheinlich noch ein Kamin rein und die Südseite ist auch so ziemlich die einzige Seite wo ein Nachbarhaus mehr oder weniger direkt neben uns ist, daher "benötige" ich dort keine Fenster, ist oben eh nur der Flur und ein Büro und im EG das Wohnzimmer, sowie die ELW.
    Ich gehe mal von ca. 6-7 kW an Heizlast aus, wahrscheinlich so um die 4 kW für uns, 2 kW für die ELW + noch evt. WW über die WP, das ist ja komplett im Rahmen und kostentechnisch auch kein großer Posten. Sole würden wir eh nicht machen, daher würden wir wohl auf Luft-Wasser setzen, da wir hier auch gute Angebote bekommen. Pro Geschoss gibts dann auch noch ein Klimainnengerät im WZ und oben im Flur, damit sollte man für den Sommer und Winter eigentlich in Kombination mit PV&Kamin gut gerüstet sein. PV kriegt man aktuell ja eh hinterhergeschmissen, Kamin muss man sich wirklich noch überlegen. Ich mags ehrlich gesagt nicht, wenn es zu warm ist. Selbst im Winter sind wir meistens so bei maximal 20°, eher 19° im Wohnzimmer, im Schlafzimmer meist 16-17° und selbst das Bad sieht nie 24°.
     
  16. #16 Ettlingen, 28.05.2024
    Ettlingen

    Ettlingen

    Dabei seit:
    13.05.2024
    Beiträge:
    554
    Zustimmungen:
    138
    Je länger ich mir das anschaue, desto mehr sehe ich ein Flachdach - oder ist das nicht erlaubt?
     
  17. #17 kerets87, 28.05.2024
    kerets87

    kerets87

    Dabei seit:
    22.05.2024
    Beiträge:
    71
    Zustimmungen:
    2
    Leider nicht, so hätte ich es nämlich am liebsten gehabt ;D Sind mindestens 20° Dachneigung gefordert. So hatte ich es bisher auch in meiner Planung berücksichtigt, wobei das selbst mit 20° schon arg "steil" aussieht...
     
  18. #18 Ettlingen, 28.05.2024
    Ettlingen

    Ettlingen

    Dabei seit:
    13.05.2024
    Beiträge:
    554
    Zustimmungen:
    138
    Eure bescheidenen Temperaturansprüche sprechen schon fast für ein Passivhaus..
    Aber im Ernst: In gut gedämmten Häusern sollte die Heizung auf ein minimum beschränkt werden. Eine Kombi aus WP + Kaminofen ist da definitiv Overkill. Das Geld für den Kamin besser in Dämmung stecken.
     
  19. #19 kerets87, 28.05.2024
    kerets87

    kerets87

    Dabei seit:
    22.05.2024
    Beiträge:
    71
    Zustimmungen:
    2
    Ja, da ist was dran, wobei es mir subjektiv meistens nicht so gefällt in diesen dichten Häusern, selbst mit einer Lüftungsanlage nicht.
    Heizungstechnisch definitiv overkill, die Anschaffung ist eher für's "Design" und die Atmosphäre. Bin da aber selbst noch mit mir am Hadern, eben weil man die Wärme kaum wegbekommt. Da kann man dann im Wohnzimmer im Winter mit offenem Fenster und kurzer Hose sitzen, wäre schon etwas blöd. Da werd ich nochmal in mich gehen müssen, tendiere auch eher dazu ihn wegzulassen.
     
  20. #20 Ettlingen, 28.05.2024
    Ettlingen

    Ettlingen

    Dabei seit:
    13.05.2024
    Beiträge:
    554
    Zustimmungen:
    138
    ...und noch abschließend für heute: Lass dir von niemand einreden, dass mehr Wohnfläche sich nach der Formel Baukosten= Preis/m2 x m2 errechnet. Ein paar Quadratmeter mehr im OG kosten fast nichts. Die Kosten stecken in der Technik. Reine Wohnfläche ist vergleichsweise günstig.
     
    ichweisnix und kerets87 gefällt das.
Thema:

Grobe Kostenschätzung für EFH

Die Seite wird geladen...

Grobe Kostenschätzung für EFH - Ähnliche Themen

  1. Grobe Kostenschätzung für Umbau einer Scheune (ca. 400 m²)

    Grobe Kostenschätzung für Umbau einer Scheune (ca. 400 m²): Hallo zusammen, im Rahmen einer MBA-Arbeit recherchiere ich zu Sanierungskosten von Nebengebäuden in Mecklenburg-Vorpommern. Konkret geht es um...
  2. EFH 1927 grobe Kostenschätzung

    EFH 1927 grobe Kostenschätzung: Hallo zusammen, wir sind seit einiger Zeit auf der Suche nach einem Haus in Stuttgart. Aufgrund der hohen Grundstückspreise kommt für uns nur ein...
  3. Grobe Kostenschätzung Abwasser und Regenleitungen ändern

    Grobe Kostenschätzung Abwasser und Regenleitungen ändern: Hallo Alle, ich bräuchte mal eure Hilfe und eine grobe Kostenschätzung. Ich und meine Partnerin befinden uns gerade im Kaufprozess für ein...
  4. Grobe Kostenschätzung für einen neuen Dachstuhl

    Grobe Kostenschätzung für einen neuen Dachstuhl: Liebe Experten. ein neuer Dachstuhl für Satteldach muss her, ganzzz normal. Das Gebäude hat eine Fläche von ca. 60 qm (pro Etage). Wie viel würde...
  5. grobe Kostenschätzung einer Zwischendecke

    grobe Kostenschätzung einer Zwischendecke: Moin und Grüße aus dem Ländle, ich bin auf der Suche nach einer groben Schätzung, was das Einziehen einer Zwischendecke betrifft. Aktuell eine...