Größe Dachflächenfenster

Diskutiere Größe Dachflächenfenster im Fenster/Türen Forum im Bereich Neubau; Liebes Forum, Ich brauche Euren Rat. Meine Frau und ich bauen ein EFH. Das erste OG hat einen Kniestock von einem Meter. Für das Kinderzimmer 2...

  1. #1 FrankeInMuenchen, 27.09.2022
    FrankeInMuenchen

    FrankeInMuenchen

    Dabei seit:
    29.08.2020
    Beiträge:
    13
    Zustimmungen:
    1
    Liebes Forum,

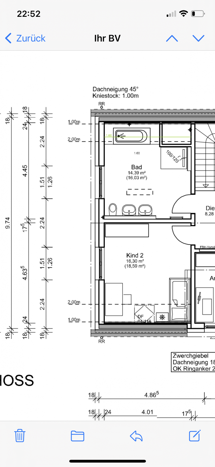
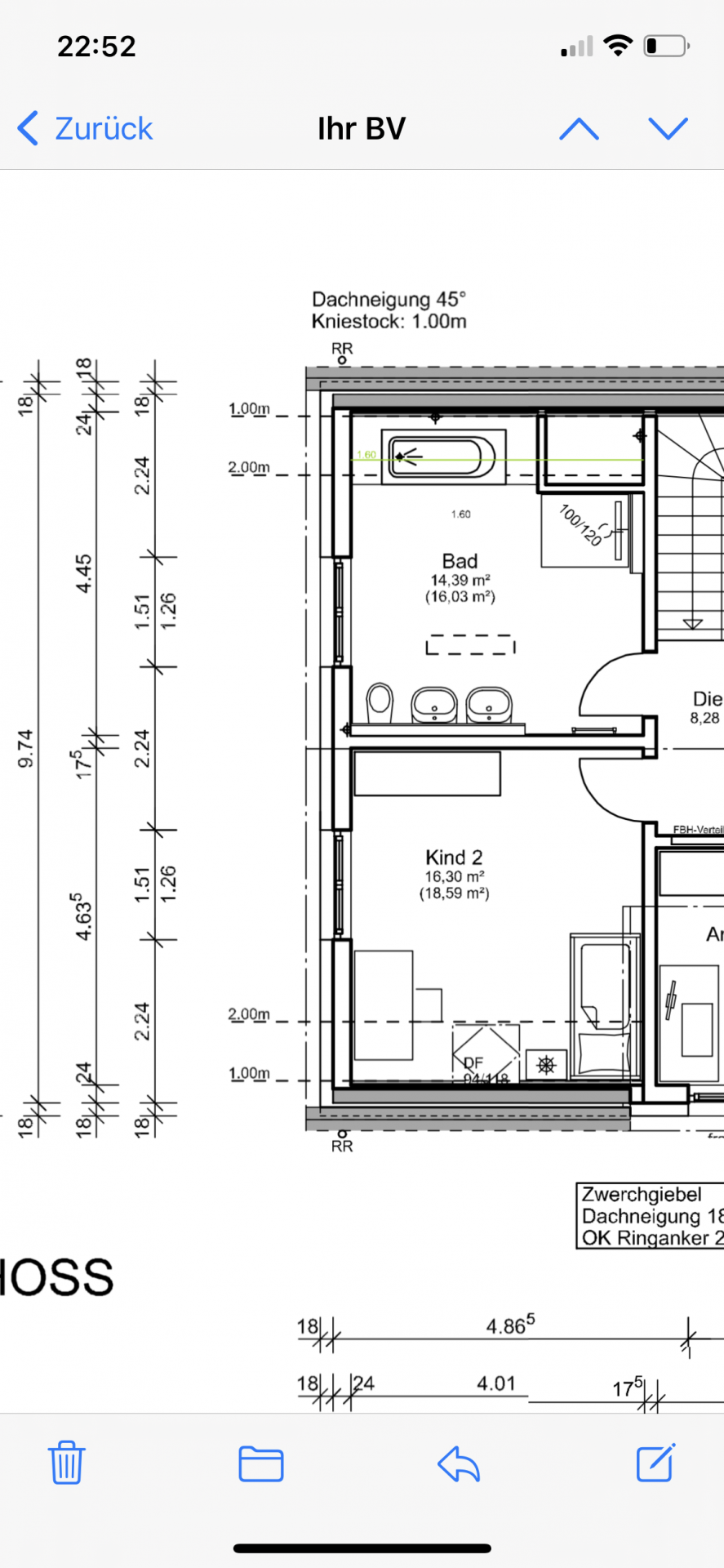
    Ich brauche Euren Rat. Meine Frau und ich bauen ein EFH. Das erste OG hat einen Kniestock von einem Meter. Für das Kinderzimmer 2 möchten wir gerne neben dem „normalen Fenster“ (151cm breit und 126cm hoch) noch ein Dachflächenfenster (inkl. elektrischem Rollladen) einbauen lassen, sind uns aber bzgl der Größe noch uneins. Wir schwanken zwischen einem etwas Kleinerem mit 94cm x 118cm und einem Größerem mit 114cm x 140cm.

    Potenzielle Vor- und Nachteile, die wir sehen:

    Vorteile des Größeren: mehr Tageslicht, wirkt großzügiger.

    Nachteile des Größeren: teurer (450€) im Sommer heizt das Zimmer stärker auf (Südseite), 114x140 wirkt vielleicht sogar zu groß???

    Wir wären um Eure Einschätzung/Rat dankbar, für welche Größe Ihr Euch entscheiden würdet. Ist Größer hier wirklich im besser? Hätte man nicht auch mit dem etwas Kleineren genügend Tageslicht im Zimmer?

    Lieben Dank für Euren Input.

    Grüße
    Felix
     

    Anhänge:

  2. #2 Kriminelle, 28.09.2022
    Kriminelle

    Kriminelle

    Dabei seit:
    16.05.2013
    Beiträge:
    3.710
    Zustimmungen:
    2.048
    Beruf:
    .
    Ort:
    Niedersachsen
    Bei Südseite als Ersatzzusatzfenster würde ich das kleinere nehmen. Das reicht mM völlig aus.
     
  3. #3 Deliverer, 28.09.2022
    Deliverer

    Deliverer

    Dabei seit:
    24.07.2022
    Beiträge:
    1.783
    Zustimmungen:
    836
    Das Aufheizproblem sollte durch einen Rollladen ja keines mehr sein. Ich kann von unserem Süd-Dachfenster (im KiZi) sagen, dass an ca. 6 Monaten der Rollladen nur zwischen ganz zu und 15cm geöffnet ist. Und wir haben kein anderes Fenster in dem Raum! Süd und Dachfenster ist also keine wirklich gute Kombi und daher würde ich auch sagen: Wenn, dann klein.

    Da du (ggf. perspektivisch) auf der Südseite auch PV haben wollen wirst, ist ebenfalls klein oder kein die bessere Wahl.
     
    Viethps gefällt das.
Thema:

Größe Dachflächenfenster

Die Seite wird geladen...

Größe Dachflächenfenster - Ähnliche Themen

  1. Große weiße Flecken an Schalungssteinen

    Große weiße Flecken an Schalungssteinen: Hallo, die Mauer wurde vor circa 5 Jahren gebaut, leider sind seit dem die weißen Flecken nicht weniger geworden. Sind das Kalkausblühungen...
  2. Große Risse entlang Terrasenfenster

    Große Risse entlang Terrasenfenster: Hallo zusammen, Wir haben in 05/23 unser schlüsselfertiges Haus übernommen. Es hat soweit alles gut geklappt, es waren regionale Unternehmen für...
  3. Kernbohrung größer als Kabelkanal: Vorgehen?

    Kernbohrung größer als Kabelkanal: Vorgehen?: Servus Einfaches "Problem", für das ich die beste Lösung suche: Ein Deckendurchbruch (Kernbohrung) wird wird einen Durchmesser von 80 mm haben....
  4. Empfehlung zur Größe des Technikraums

    Empfehlung zur Größe des Technikraums: Hallo zusammen, ich bin gerade dabei ein altes EFH kernzusanieren. Ich arbeite mit einem Architekten zusammen und wir sind gerade in der LP2. Wir...
  5. Größere Abstände zwischen Trockenestrich und Randdämmstreifen verfüllen

    Größere Abstände zwischen Trockenestrich und Randdämmstreifen verfüllen: Hallo und guten Morgen, ich habe einen Altbau mit nicht perfekt rechtwinkligen Wänden. Der Boden ist mit gebundener Schüttung ausgeglichen und...