Grundriss richtig lesen

Diskutiere Grundriss richtig lesen im Hilfestellung für Neulinge Forum im Bereich Sonstiges; Hallo zusammen, meine Frage wird es euch sofort outen: Ich bin ein kompletter Neuling im Thema Bauen. Konkret geht es noch nicht mal ums Bauen...

  1. stero

    stero

    Dabei seit:
    04.12.2019
    Beiträge:
    3
    Zustimmungen:
    0
    Hallo zusammen,

    meine Frage wird es euch sofort outen: Ich bin ein kompletter Neuling im Thema Bauen. Konkret geht es noch nicht mal ums Bauen per sé, sondern viel mehr um das richtige Ablesen des angehängten Grundrisses einer bestehenden Immobilie.

    Zur Frage:

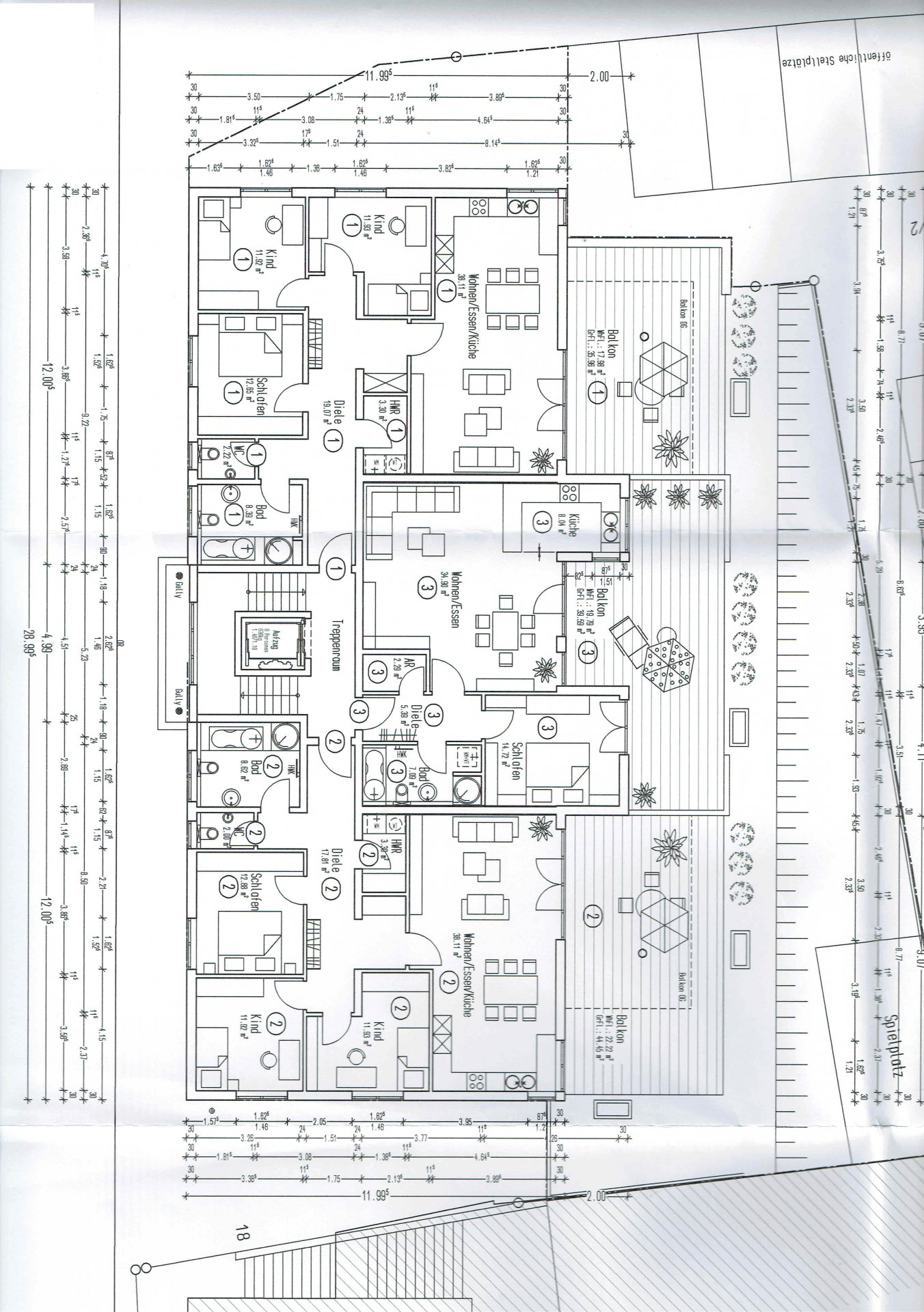
    Bei Wohnung 3 wurden in der untersten Bemaßungs-Linie über und unter der Linie ein Maß eingetragen. Welches Maß muss ich ablesen, wenn ich die Innenmaße der Räume wissen möchte? Was bedeuten überhaupt die zwei von einander abweichenden Maße auf dieser Linie?

    Ich würde mich freuen, wenn ihr euch kurz Zeit für eine Antwort zu meiner Frage nehmt. Vielen Dank!

    MfG CCI04122019-1.jpg
     
  2. arch

    arch

    Dabei seit:
    01.06.2017
    Beiträge:
    568
    Zustimmungen:
    234
    Beruf:
    Architekt
    Ort:
    Bodensee
    Die roten Maße sind die höhe des Fenstersturzes, die Blauen die breite des Fensters. Die Maßkette ist nicht geeignet, Innenraummaße abzulesen. das ist die Maßkette darüber. Aber die Bemaßung ist etwas kompliziert gemacht, aber auch wegen der Springenden Geometrie im inneren. Das Wohnzimmer in Wohnung 3 ist zum beispiel 6,635 breit.
    upload_2019-12-4_16-57-2.png
     
  3. stero

    stero

    Dabei seit:
    04.12.2019
    Beiträge:
    3
    Zustimmungen:
    0
    Hallo arch,

    vielen Dank für die Hilfe. Wie lese ich denn am Besten das Maß der Küche bzw. der Nische für die Küche in Breite und Länge ab? Mir fehlt da noch der Durchblick...

    MfG
     
  4. stero

    stero

    Dabei seit:
    04.12.2019
    Beiträge:
    3
    Zustimmungen:
    0
    Bitte um Entschuldigung für die Frage. Ich sehe eben, dass die Maßtabelle unterhalb des Grundrisses andere Maße beinhaltet, als die Maßtabelle oberhalb des Grundrisses. Die Küchen-Nische sollte somit 2.575M haben.
     
  5. #5 Kriminelle, 04.12.2019
    Kriminelle

    Kriminelle

    Dabei seit:
    16.05.2013
    Beiträge:
    3.678
    Zustimmungen:
    2.026
    Beruf:
    .
    Ort:
    Niedersachsen
    Die Breite des Küchenerkers wird 1,75 + 0,75 - 0,30 sein. Also 2,20. Allerdings sind das alles Rohbaumasze.
    Für (Küchen)möbel gibt es kein angegebenes Maß. Es ist kein eigener Raum. Meist sind die Küchenmöbel ja vom Erwerber der Wohnung einzubauen oder auszusuchen. Da darf man dann wählen.
    Die Einrichtung ist nur als Wohnbeispiel zu sehen.
     
Thema: Grundriss richtig lesen
Besucher kamen mit folgenden Suchen
  1. grundriss lesen und verstehen

    ,
  2. grundriss dachgeschoss verstehen

    ,
  3. grundriss lesen

    ,
  4. grundriss dachgeschoss lesen
Die Seite wird geladen...

Grundriss richtig lesen - Ähnliche Themen

  1. Grundriss Bewertung Architektenhaus

    Grundriss Bewertung Architektenhaus: Hallo zusammen, wir wären über euren Input sehr dankbar. Was kann man verbessern? Was würdet ihr ändern? 1. Wir sind: Familie mit einem Kind...
  2. Hilfe Grundriss Untergeschoss

    Hilfe Grundriss Untergeschoss: Ich benötige etwas Hilfe beim Grundriss für das Untergeschoss. Ich würde gerne die Eingangstür nach Süden legen, da dort die Straße ist. Außerdem...
  3. Neubau – Grundriss, Firstrichtung und Vorgehen

    Neubau – Grundriss, Firstrichtung und Vorgehen: Hallo zusammen, wir sind noch ganz am Anfang unseres Bauprojekts: das Grundstück steht fest (muss noch geteilt und umgeschrieben werden,...
  4. Grundriss EFH 150m2 (Hang, Souterrain, ELW) – Feedback zu Effizienz & Raumaufteilung

    Grundriss EFH 150m2 (Hang, Souterrain, ELW) – Feedback zu Effizienz & Raumaufteilung: Hallo liebe Bauexperten, wir planen ein Eigenheim mit ELW in Hanglage und haben uns schon zahlreiche Gedanken gemacht. Ich möchte die Chancen, die...