Hang und Ytong Schuppen stützen mit Palisaden?

Diskutiere Hang und Ytong Schuppen stützen mit Palisaden? im Außenanlagen Forum im Bereich Rund um den Garten; Hallo liebe Gemeinde, ich bräuchte mal Rat von Experten. Wir planen einen Schuppen aus Ytong und einer Betonbodenplatte 20cm mit...

  1. #1 PyroPappe, 20.08.2024
    PyroPappe

    PyroPappe

    Dabei seit:
    20.08.2024
    Beiträge:
    2
    Zustimmungen:
    0
    Hallo liebe Gemeinde,
    ich bräuchte mal Rat von Experten.
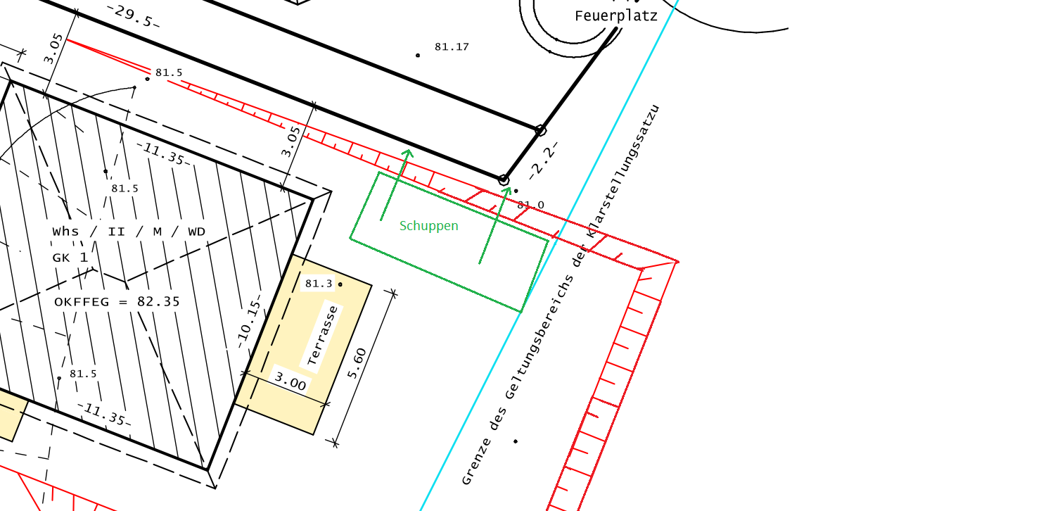
    Wir planen einen Schuppen aus Ytong und einer Betonbodenplatte 20cm mit Streifenfundamente 20cm Breit 80cm Tief.
    Ich habe versucht das mal auf dem Plan einzuzeichnen. Unsere Idee war jetzt den Platz zur Grenze auszunutzen und eine Palisade (Betonwand) an der Grenze zu bauen, um den Schuppen möglichst nah an der Grenze zu kriegen. Die Höhe die dabei überbrückt werden müsste beträgt bis Oberkante Bodenplatte ca. 1,5m.
    Idee war jetzt das Streifenfundament an der Grenzseite 2,5m Tief und 30cm Breit zu machen, sodass es unten am Hang noch einen Meter in den Boden geht. Ist sowas Statisch machbar? wenn ja, würde ja eine 1,50m hohe Betonwand an der Grenze entstehen, muss man da noch was zwecks Frost machen?
     

    Anhänge:

  2. #2 PyroPappe, 23.08.2024
    PyroPappe

    PyroPappe

    Dabei seit:
    20.08.2024
    Beiträge:
    2
    Zustimmungen:
    0
    gar keiner eine Idee?
     
Thema:

Hang und Ytong Schuppen stützen mit Palisaden?

Die Seite wird geladen...

Hang und Ytong Schuppen stützen mit Palisaden? - Ähnliche Themen

  1. Wie mittlere Höhe für 2teiliges Carport am Hang errechnen?

    Wie mittlere Höhe für 2teiliges Carport am Hang errechnen?: Hallo, ich habe aufgrund unserer Geländebegebenheiten ein Problem beim Errechnen der mittleren Höhe. Wie man auf der Zeichnung sehen kann haben...
  2. Zaun (als Absturzsicherung) am Hang

    Zaun (als Absturzsicherung) am Hang: Hallo, auf unserem neu erworbenen Grundstück befindet sich ein 8-10m tiefer Hang "nach unten" auf Lehm/Mergelboden. Der Hang ist mit Büschen und...
  3. Grundriss EFH 150m2 (Hang, Souterrain, ELW) – Feedback zu Effizienz & Raumaufteilung

    Grundriss EFH 150m2 (Hang, Souterrain, ELW) – Feedback zu Effizienz & Raumaufteilung: Hallo liebe Bauexperten, wir planen ein Eigenheim mit ELW in Hanglage und haben uns schon zahlreiche Gedanken gemacht. Ich möchte die Chancen, die...
  4. Zusätzlicher Abfluss mit Hang-Austritt am Revisionsschacht – Zulässig?

    Zusätzlicher Abfluss mit Hang-Austritt am Revisionsschacht – Zulässig?: Hallo zusammen, ich beschäftige mich gerade mit der Überprüfung der Grundstücksentwässerung für ein Gebäude in Hanglage und bin über eine...
  5. Bau einer Garage in Hang

    Bau einer Garage in Hang: Hallo und vielen Dank für Aufnahme:) Und zwar wollte ich hier mal die Erfahrenen unter euch Fragen bezüglich eines Bauvorhabens in einem Hang...