Haus BJ'90 übernehmen / Umbau / Ideen / Grundriss

Diskutiere Haus BJ'90 übernehmen / Umbau / Ideen / Grundriss im Hilfestellung für Neulinge Forum im Bereich Sonstiges; Hallo zusammen, ich hab hier im Forum schon ganz viel gelesen und traue mich nun meinen eigenen Fall vorzustellen. Bei uns (2 Erwachsene und...

  1. #1 Sumako, 01.06.2024
    Zuletzt bearbeitet: 01.06.2024
    Sumako

    Sumako

    Dabei seit:
    01.06.2024
    Beiträge:
    7
    Zustimmungen:
    0
    Hallo zusammen,

    ich hab hier im Forum schon ganz viel gelesen und traue mich nun meinen eigenen Fall vorzustellen. Bei uns (2 Erwachsene und 3jährige Zwillinge) steht aktuell im Raum mein Elternhaus (BJ'90) zum kommenden Jahr zu übernehmen.

    Aktuell wohnen meine Eltern im EG und wir im OG - wenn ich das Haus komplett übernehme, will ich allerdings zeitnah ebenerdig wohnen - meine Eltern würden dann ausziehen in ihre bereits vorhandene Altersresidenz :)

    Nun ist der Grundriss im EG nicht so ganz das, wie ich mir unser zukünftiges Zuhause vorstelle - viele Wandvorsprünge - ungünstig geschnittene Terrassen - kleine Kinderzimmer - dunkler Flur usw.
    Das Haus ist aufgrund des abgetrennten Treppenhauses und der Größe nicht darauf ausgelegt auf zwei Stockwerken zu leben - daher muss aus dem EG irgendwas gemacht werden, mit dem ich in den nächsten 10/20/30 Jahren leben kann.

    Wichtig wäre...
    1. ein größeres Bad mit großer ebenerdiger Dusche
    2. zwei größere bzw. etwa gleich große Schlafzimmer:
    Elternschlafzimmer + Kinderzimmer (zunächst werden die Zwillinge in einem Zimmer untergebracht sein)
    3. ein Büro, welches in einigen Jahren eventuell dem Elternschlafzimmer weichen können sollte, wenn die Zwillinge separate Zimmer bekommen.
    4. Fußbodenheizung (dieses Jahr wird noch eine neue Heizung eingebaut - wechseln von Öl auf Wärmepumpe)

    Ich hänge mal ein Bild des aktuelles Grundrisses an - sowie meine selbst gestaltete Idee - wie die Umsetzung aus statischer Sicht ist, weiß ich natürlich nicht - ich habe mich bereits mit einigen ortsansässigen Baufirmen in Verbindung gesetzt und werde dann Termine zur Begehung machen, sobald ich eine oder mehrere Ideen hinsichtlich Umsetzbarkeit durchgehen kann.

    Mit einigen Punkten meiner eigenen Überlegungen bin ich nicht ganz so glücklich:
    ...sehr lange Küchenzeile, weil ich unbedingt eine KüchenHALBinsel möchte mit Tresen. Küche als 'Schlauch' schwierig zu gestalten? Vielleicht sollte Pantry weichen?
    ...Terrasse um's Eck oder nur Ost oder Süd? Wo sitzt man eher? In der brütenden Sonne mit Blick auf die Straße der 30er Zone oder mit Blick auf den angrenzenden Kindergarten?
    ...Kosten/Nutzen Bad versetzen, damit mehr Tageslicht rein kommt als aktuell unter'm Dachvorsprung Richtung Westen?
    ...Kosten/Nutzen Vergrößerung Wohnraum (Esszimmer / Schlafzimmer) um die derzeitigen Terrassen? Bei der Terrasse am Essbereich wäre es wohl kein all zu großer Aufwand, da diese unterkellert ist. Allerdings ist die östliche Terrasse NICHT unterkellert.
    ...Kosten/Nutzen Fußbodenheizung?

    Ich hoffe sehr auf kreative Ideen eurerseits, damit ich bald Termine mit den Baufirmen machen kann um verschiedene Ideen durchzusprechen - hab hier im Forum schon einiges von Mitgliedern gelesen was mir Hoffnung auf tolle Vorschläge für unseren Fall macht.

    Schöne Grüße
    Susanne
     

    Anhänge:

  2. #2 driver55, 01.06.2024
    driver55

    driver55

    Dabei seit:
    22.02.2008
    Beiträge:
    6.852
    Zustimmungen:
    1.784
    Beruf:
    Dipl.-Ing.
    Ort:
    Pforzheim
    Bitte Bilder und keine pdfs einstellen.
     
    11ant gefällt das.
  3. Sumako

    Sumako

    Dabei seit:
    01.06.2024
    Beiträge:
    7
    Zustimmungen:
    0
    oh sorry - hab's geändert :)
     
  4. #4 Kriminelle, 01.06.2024
    Zuletzt bearbeitet: 02.06.2024
    Kriminelle

    Kriminelle

    Dabei seit:
    16.05.2013
    Beiträge:
    3.672
    Zustimmungen:
    2.024
    Beruf:
    .
    Ort:
    Niedersachsen
    Ein, zwei Schreibtische zu positionieren ist kein Hexenwerk. Hast Du in Deiner Idee mal versucht, das Schlafzimmer mit Ehebett und Kleiderschrank einzuplanen? Das sehe ich nicht passend.
    Grundsätzlich empfinde ich es immer als Problem, wenn man Wünsche, die man an einen Neubau stellen kann, auf eine Gebrauchtimmobilie überträgt. Das ist dann oft nur teuer umsetzbar oder beeinflusst vieles andere, was erstmal nicht im Fokus ist, aber später beim Wohnen sehr nachteilig sein kann.
    Ich sag mal nur als Beispiel:
    um die gewünschte Insel zu bekommen, muss sehr wahrscheinlich die Speis weichen. Kann man sicherlich machen, ggf nur einen Qm AB lassen, aber da ist dann auch keine Alternative, mal Staubsauger und Wischmop griffbereit zu lagern. Und wenn man ständig in den geliebten Keller laufen muss, dann könnte man sich jetzt schon fragen, ob eine „nur“ offene Küche mit Raum nicht mehr Freude macht als die Insel.
    Auch würde ich bei 4 Personen nicht auf eine zweite Toilette verzichten. Und wenn doch, dann würde sich wohl eher anbieten, das jetzige Kizi planlinks mit dem Wc zu vereinen und als späteres SZ zu nutzen.
    Die Verlängerung der Zimmer planrechts macht erstmal keinen Sinn. Es entstehen ja nur größere Räume von Räumen, die ansich schon nett sind.
    Die _Verlagerung_ der Räume nach planrechts könnte Sinn machen, wenn man im dann breiteren Flur dadurch Schrankfläche generiert oder planoben einen Gewinn erzielt, zb durch WC, AB oder Ankleide. Oder durch geschickte Platzierung der Ki-Zimmertüren noch mehr Raum generiert.
    (Vielleicht komme ich nachher noch dazu, das mal zu zeichnen, falls ich mich schlecht ausgedrückt habe)

    Die Verbreiterung allerdings beeinflusst auch iwie das Dachgeschoss bzw das Dach.
    Und wenn man damit gedanklich spielt, (tragende) Wände zu entfernen sowie eine Toi zu versetzen, dann spielt das Dachgeschoss mit (Statik, Entlüftung)
    Ich gehe mal davon aus, dass eine Sanierung auch ansteht? Wenn Außenwände versetzt werden, Dämmung eine Rolle spielt, dann ist das kostspielig. Ich denke, dass Ihr in der Anfangs- und Planungsphase mit einem Architekten besser aufgestellt seid als mit einem Bauunternehmen, der dann mit Hand und Fuß plant und dann die Ausschreibungen macht oder Euch ein geeignetes BU nennt.
    Gibt es einen Plan, wo man tragende Wände und Fenster ohne Nachzeichnerei erkennt?
    Stelle doch mal bitte auch das Dachgeschoss sowie das Grundstück mit ein (mit Nachbarschaftshäuser, zur Not geht auch GoogleMaps)
    Ich gehe mal davon aus, dass Stellplätze für 2 WE kein Problem darstellen und Privatsphäre für zwei sich fremde Parteien bei Vermietung gegeben ist?!
     
  5. #5 VollNormal, 01.06.2024
    VollNormal

    VollNormal

    Dabei seit:
    20.11.2021
    Beiträge:
    4.158
    Zustimmungen:
    2.800
    Beruf:
    Bauingenieur
    Ort:
    Bochum
    Weder die Tür zum Treppenhaus noch die Größe wären etwas, was mich davon abhielte, beide Etagen zu nutzen.

    Viel spannender als die Unterkellerung ist doch die Frage, wie die Lasten der aufgehenden Wände des OG abgetragen werden, wenn die darunter stehenden Wände entfernt werden. Machbar ist das bestimmt, der Aufwand aber vermutlich recht hoch.
     
    11ant gefällt das.
  6. #6 Kriminelle, 02.06.2024
    Kriminelle

    Kriminelle

    Dabei seit:
    16.05.2013
    Beiträge:
    3.672
    Zustimmungen:
    2.024
    Beruf:
    .
    Ort:
    Niedersachsen
    Beim Warten auf das DG ist mir das auch so in den Sinn gekommen: Schöne Erweiterung der Diele und Platz für Garderobe. Ein Büro darf man später behalten und einen Hobbyraum, der Tageslicht hat, wäre auch nicht verkehrt. Ob Kinder nach oben oder Eltern, die Frage kann man sich stellen.
    Das ist alles einfacher als Maßnahmen, die die Außenwände betreffen. Und für Gäste ist dann unterm Dach auch noch Platz.
     
  7. Sumako

    Sumako

    Dabei seit:
    01.06.2024
    Beiträge:
    7
    Zustimmungen:
    0
    Vielen Dank zunächst für deine Gedanken!
    Ich hoffe, das klappt jetzt mit dem zitieren...

    das stimmt - wäre sehr eng das Elternbett ins Büro zu quetschen. Ich überlege hier, dass die Zwillinge vielleicht im besten Fall bis sie 8-10 sind in einem gemeinsamen Zimmer sein können - dann 3-4 Jahre getrennte Zimmer im EG und mit 14/15 können sie dann gemeinsam den oberen Stock beziehen (so haben das meine Eltern mit uns damals in diesem Haus gemacht). Würde bedeuten, dass wir Eltern 'nur' 4 Jahre in ein kleines Schlafzimmer ausweichen müssten. Schön ist das natürlich nicht - aber es war eine Überlegung.

    Ja, das Problem mit nur einer Toilette haben wir im OG aktuell schon zu viert. Es wäre allerdings im Keller/Waschküche noch eine Toilette, die man eventuell irgendwann noch einem weiteren Badezimmer umbauen könnte.​


    Das stimmt - es wären aktuell schon größere Zimmer als viele andere haben - dies wäre für mich eine Abwägung, ob ja oder nein, wenn mir ein Architekt/Statiker/Bauunternehmen für diese Aktion eine Preisrichtung nennen könnte. Aber vermutlich wird hier Kosten/Nutzen in keinerlei Relation stehen.
    Ich denke, ich kann es mir vorstellen :) Allerdings glaube ich, dass die Verlagerung nicht möglich sein wird, weil die rechte Wand im Flur vermutlich eine tragende Wand ist. Ich hab davon allerdings keine Ahnung - hab mir nur laienhaft gedacht, dass die 'dicken' Wände im Bausgesuch tragend sein müssten (bitte nicht steinigen :D)


    Energetische Sanierung meinst du? Ich kenne bzw. verstehe leider die aktuellen Gesetze nicht bei einer Hausübernahme - ob ich die Fassade dämmen müsste oder nicht. Ich würde allerdings bei dem Baujahr dieses Hauses (1990) 'erst' mal nur das machen, was gesetzlich sein muss. Hier wird mir der Architekt/Bauunternehmen bestimmt auch weiterhelfen können, oder?

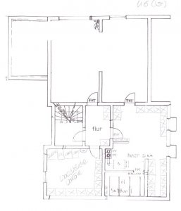
    Hab Bilder aus'm Baugesuch nochmal gemacht - da ist aber vieles nicht so, wie's heute tatsächlich steht. Deswegen hab ich vom OG nochmal ein Bild einer meiner Nachzeichnereien angehängt :) Die Bilder sind leider nicht so gut geworden vom Licht her - meine Kinder riechen, dass ich was machen will und lassen mir keine Ruhe :-/

    Genau - das wäre überhaupt kein Problem. Ist tatsächlich auch ein Gedanke: oben vermieten oder Ferienwohnung, solange uns unten zu viert der Platz reicht.

     

    Anhänge:

  8. #8 Sumako, 02.06.2024
    Zuletzt bearbeitet: 02.06.2024
    Sumako

    Sumako

    Dabei seit:
    01.06.2024
    Beiträge:
    7
    Zustimmungen:
    0

    Beide Stockwerke zu nutzen kommt für mich aktuell eigentlich überhaupt nicht in Frage bzw. kann ich mir nicht vorstellen. So viel Wohnraum muss auch erst mal beheizt und geputzt werden.

    Ich bin hier halt aufgewachsen - zu viert unten (vor 30 Jahren brauchten meine Eltern noch kein Büro - haben die Zimmer ausgereicht aber die Kinderzimmer waren schon sehr klein).
    In der Pubertät sind mein Bruder und ich dann hoch gezogen - früher hätte ich aber auch nicht hoch wollen. Eben durch das abgetrennte Treppenhaus können die Eltern kein Auge auf die Kinder haben.
    Mir fällt es sehr schwer auf dieses Haus einen anderen Blick zu werfen als wie ich's mein Leben lang schon kenne.​
     
  9. Sumako

    Sumako

    Dabei seit:
    01.06.2024
    Beiträge:
    7
    Zustimmungen:
    0
    Kannst du versuchen mir das mit der Erweiterung der Diele zu erklären? Meine Vorstellungskraft lässt mich im Stich ^^​
     
  10. #10 Kriminelle, 02.06.2024
    Kriminelle

    Kriminelle

    Dabei seit:
    16.05.2013
    Beiträge:
    3.672
    Zustimmungen:
    2.024
    Beruf:
    .
    Ort:
    Niedersachsen
    Ist das eine jetzt Eure Wohnung ohne Dachschrägen, und darauf, ist ein Dachboden, auch mit Loggia?


    Dann solltest Du Dich einlesen, zumindet was den Teil betrifft, was man bei Hausübernahme machen muss...

    ... und was sinnvoll wäre. zum Beispiel eine Verlegung einer FBH würde ich nur machen, wenn das Heizkonzept überdacht ist für die nächsten 20 Jahre.

    Das ist eine Ansage, damit kann ein Forianer leben.

    Aber Ihr scheint ja ein Büro zu brauchen bzw habt jetzt andere Bedürfnisse als Eure Eltern vor über 30 Jahren.

    Das kann man aber beim besten Willen nicht erkennen, ob da dicke oder weniger dicke Wände, bzw ob da mit Edding nachgemalt wurde.
    Wolltest Du nicht die Originalzeichnung einstellen?

    Geht es um Zeit oder eine geeignete Möblierung des Kleiderschrankes und eines Doppelbettes?!

    Ich würde jetzt nicht im EG alles ummodeln für eine begehbare Dusche, um dann im Keller auch noch ein Bad zu sanieren. Und überhaupt: soll man im Alltag morgens durch das kalte Treppenhaus, um das zweite Klo zu erreichen, weil die Toilette im Familienbad besetzt ist?

    Warum nicht zB so? Das wäre der normale IST-Zustand, nur die Vorratskammer hat sich verkleinert. Die Bezeichnungen in den Räumen zeigt die ersten Jahre, danach die späteren Jahre. Das Büro fällt weg, das kann man dann wohl im OG generieren? In 10 Jahren könnt Ihr ja das OG anfangen zu renovieren für Euren Eigenbedarf.
    Bildschirmfoto 2024-06-02 um 17.58.51.png

    Naja, ich meine so in etwa:

    Bildschirmfoto 2024-06-02 um 18.12.22.png

    Vorratskammer fällt weg für eine grössere Küche, im Flur generiert sich ein Abstellschrank für Garderobe und Staubsauger und co.
    SZ oben links lässt sich wohl auch noch nett möblieren, da das Fenster planoben ist.

    Ob die Erweiterung planrechts finanziell sinnvoll ist, kann ich nicht sagen - ich bin nur spielerisch mit Raumplanung unterwegs.
     
  11. #11 Kriminelle, 15.06.2024
    Kriminelle

    Kriminelle

    Dabei seit:
    16.05.2013
    Beiträge:
    3.672
    Zustimmungen:
    2.024
    Beruf:
    .
    Ort:
    Niedersachsen
    @Sumako
    Kommt hier noch eine Resonanz von Dir?
     
  12. 11ant

    11ant

    Dabei seit:
    28.02.2017
    Beiträge:
    2.462
    Zustimmungen:
    1.539
    Beruf:
    Bauherrenberater
    Ort:
    RLP Nord
    Benutzertitelzusatz:
    bringt Sie gut beraten ins Eigenheim
    Architektenverzicht ist eine Schnapsidee, die schon so mancher bereut hat.
    Ja, eine unverhunzte Originalzeichnung wäre für kundige BetrachterInnen erheblich informativer.
    Gratulation nachträglich.
    Beim Baujahr ´90 gehe ich bereits von einer FBH aus - oder (wo ?) habe ich Gegenteiliges überlesen ?
     
  13. #13 Kriminelle, 15.06.2024
    Kriminelle

    Kriminelle

    Dabei seit:
    16.05.2013
    Beiträge:
    3.672
    Zustimmungen:
    2.024
    Beruf:
    .
    Ort:
    Niedersachsen
    Das Baujahr sagt nichts über die Heizkörper oder -schleifen aus.
     
  14. #14 Sumako, 16.06.2024
    Zuletzt bearbeitet: 16.06.2024
    Sumako

    Sumako

    Dabei seit:
    01.06.2024
    Beiträge:
    7
    Zustimmungen:
    0
    natürlich - sorry, dass ich so lange nichts hab hören lassen.


    Genau - das Bild "1_OG_ausgebaut" ist der aktuelle Stand des Obergeschosses/1.Stock, in dem wir momentan wohnen - hier wurde 2015/2016 komplett renoviert. Hier sind Dachschrägen und drüber ist noch der Dachboden.


    Hab ich in den letzten Tagen versucht - mich schlau zu machen - ist echt schwierig da genau für unseren Fall was rauszubekommen. An wen würdest du dich da wenden?

    Ich lese von drei wichtigen Punkten:
    - Dämmung der obersten Geschossdecke und des Daches von Wohngebäuden (das wurde durch meine Eltern bereits gemacht)
    - die Modernisierung der Heizungsanlagen (dieses Jahr kommt noch die Wärmepumpe)
    - die Dämmung von warmwasserführenden Rohren in unbeheizten Räumen (wurde ebenfalls durch meine Eltern gemacht)

    Aber dann lese ich noch von einer Sanierungspflicht, wenn mehr als 10 % eines Gebäudes erneuert werden. Zählt da jetzt unser Vorhaben mit dazu? Oder zählt das zu 'Modernisierung'?
    Würde man die Terrassen zu Wohnraum machen, würde man 10% der Fassade 'erneuern' - würde dann bedeuten, man müsste die komplette Fassade dämmen?

    Diese Themen meinte ich ursprünglich mit 'ich verstehe die aktuellen Gesetzte nicht' :-/


    Dieses Jahr kommt hier noch eine Wärmepumpe - Photovoltaik ist ebenfalls auf dem Dach - sind das nicht gute Voraussetzungen für eine durchgängige FBH?


    Ja, das stimmt - deshalb meine Überlegung, ob die Schlafzimmer vergrößert werden könnten, damit die Kinder länger ein Kinderzimmer teilen könnten.


    Tut mir leid - ich habe vergessen das Bild anzuhängen - hab's hier nochmal angehängt - das ist ein Foto des Original-Bauplans. Was besseres hab ich leider nicht.


    Nein, das ist nicht schön morgens durch's kalte Treppenhaus auf's zweite Klo zu gehen - ich hab's aktuell ja auch schon so, weil wir im OG nur ein WC haben - nur dass ich aktuell zwei Stockwerke runter und in die offene Waschküche muss. Die Überlegung für ein Badezimmer im Keller wäre auch dahingehend, dass mein Mann nach Waldarbeiten dann direkt in der Waschküche Klamotten ausziehen und dort auch direkt duschen könnte.


    Der Vorschlag ist super - vielen Dank für deine Gedanken!


    Und dieser Vorschlag ist genau das, was ich mir von diesem Forum erhofft habe - einen ganz anderen Blick auf den Grundriss - vielen vielen Dank!


    Und darin bist du wirklich super :)
     

    Anhänge:

  15. #15 Sumako, 16.06.2024
    Zuletzt bearbeitet: 16.06.2024
    Sumako

    Sumako

    Dabei seit:
    01.06.2024
    Beiträge:
    7
    Zustimmungen:
    0
    Ich würde natürlich nicht auf einen Architekten verzichten wollen - mit 'Bauunternehmen' meinte ich diverse Anbieter hier um Umkreis, die 'Alles-aus-einer-Hand' anbieten.

    Habe ich im vorherigen Post angehängt - was BEsseres hab ich leider nicht.

    Gratulation wofür?

    Im EG ist lediglich im Badezimmer ein FBH, die - soweit ich mich erinnere - NIE gelaufen ist. Sonst ist nirgends im Haus FBH verlegt.
     
  16. #16 Kriminelle, 16.06.2024
    Kriminelle

    Kriminelle

    Dabei seit:
    16.05.2013
    Beiträge:
    3.672
    Zustimmungen:
    2.024
    Beruf:
    .
    Ort:
    Niedersachsen
    Vielen Dank!
    :)

    Das hätte mal damals eingestellt werden. Man kann schön erkennen, welche Wände tragend sein werden.
    Insofern entfallen einige Ideen, zumindest würde ich zw Ess und Küche einen Träger ziehen, damit man es offener gestalten kann.
    Weitere Träger rechtfertigen wohl den Nutzen nicht.

    Und deshalb ist der erste Gang der Architekt, der Dir ein günstiges, dennoch effektives Konzept erstellt.
    Der kann Dir dann später eine Baufirma empfehlen, die Dir das umsetzen wird. Eine „Alles-aus-einer-Hand“-Firma wird Dir keinen sinnvollen Plan erstellen, weil sie nach einer Planung anfangen. Ggf auch ohne Planung. Das ist hier nicht sinnvoll.

    Notar oder Steuerberater? Keine Ahnung. Wohl eher ersteres. Die beraten.
     
  17. 11ant

    11ant

    Dabei seit:
    28.02.2017
    Beiträge:
    2.462
    Zustimmungen:
    1.539
    Beruf:
    Bauherrenberater
    Ort:
    RLP Nord
    Benutzertitelzusatz:
    bringt Sie gut beraten ins Eigenheim
    Natürlich für die Ruhe vor den Ollen während der Teenagerzeit. Da quasi eine Art Baumhaus mit eigenem WC gehabt zu haben, darum werden Dich manche Mitleser beneiden. Gönne es auch wieder Deinem Nachwuchs.
    Das sind die maximal falschen Freunde für Dein Projekt, nimm´ Dir einen freien Bauberater. In diesem Fall stehe ich selbst nicht bereit - nimm´ einen Kollegen, der Architekt ist. Dir den zu finden, kann ich allerdings gerne tun.
     
Thema:

Haus BJ'90 übernehmen / Umbau / Ideen / Grundriss

Die Seite wird geladen...

Haus BJ'90 übernehmen / Umbau / Ideen / Grundriss - Ähnliche Themen

  1. Hilfe bei Vorplanung gesucht: Passt mein Haus (8,84m x 13,64m) auf dieses Grundstück?

    Hilfe bei Vorplanung gesucht: Passt mein Haus (8,84m x 13,64m) auf dieses Grundstück?: Hallo zusammen, ich bin gerade in der ersten Planungsphase für mein Bauprojekt und bräuchte mal eure Einschätzung bzw. die Hilfe von jemandem mit...
  2. Fuge vom Gartenweg zum Haus erneuern

    Fuge vom Gartenweg zum Haus erneuern: Liebes Forum, die Fuge vom Gartenweg zum Haus ist an einigen Stellen kaputt (bei der Reinigung mit dem Hochdruckreiniger sind mir leider ein paar...
  3. Ton im Haus

    Ton im Haus: Guten Morgen Liebe Mitglieder des Forums Wir brauchen Ihre Hilfe. Ich versuche das Problem einmal kurz zusammenzufassen. Seit dieser Heizperiode...
  4. Ideen gesucht: Terrasse im U-förmigen Haus schließen – wie Durchgang und dunklen Eckraum nutzen?

    Ideen gesucht: Terrasse im U-förmigen Haus schließen – wie Durchgang und dunklen Eckraum nutzen?: Hallo zusammen, wir überlegen, unser neu erworbenes älteres Haus umzubauen und würden uns sehr über Ideen oder Erfahrungen freuen. Das Haus ist...
  5. Verantwortlichkeit Abdichtung Garage zu Haus

    Verantwortlichkeit Abdichtung Garage zu Haus: Hallo liebe Gemeinde, Die Abdichtung von Garage zum Haus (Bitumen, Profil etc) ist undicht geworden, Frage nun: Wer muss die Reparatur...